Аренда торгового помещения ОСЗ "Сущёвский Вал, 18А"

Объект успешно реализован!
Аренда торгового помещения ОСЗ
Москва, улица Сущёвский Вал, 18А
Объект успешно реализован, но у нас есть много других интересных предложений. Позвоните по телефону +7 495 230-28-26, либо оставьте заявку на подбор прямо сейчас и получите список подходящих для вас объектов.
загрузка карты...
Аренда в год за м2 36 272 ₽
Аренда в месяц 2 400 000 ₽
Схема сделки прямая аренда
Общие
ID 61529
Тип сделки Аренда
Площадь 794.00
Площадь всего 512.00
Тип объекта Административное здание
Этаж 1 - 2
Всего этажей в здании 2
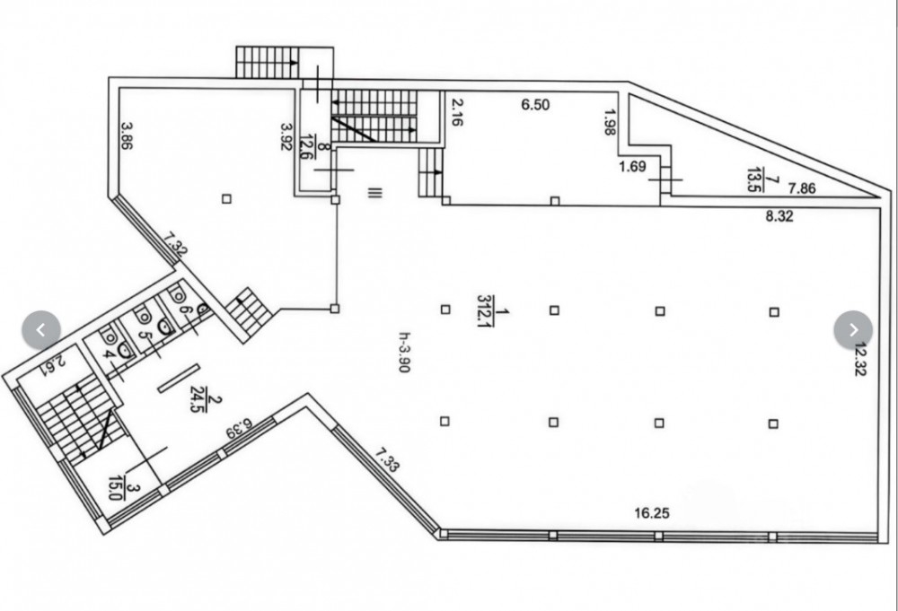
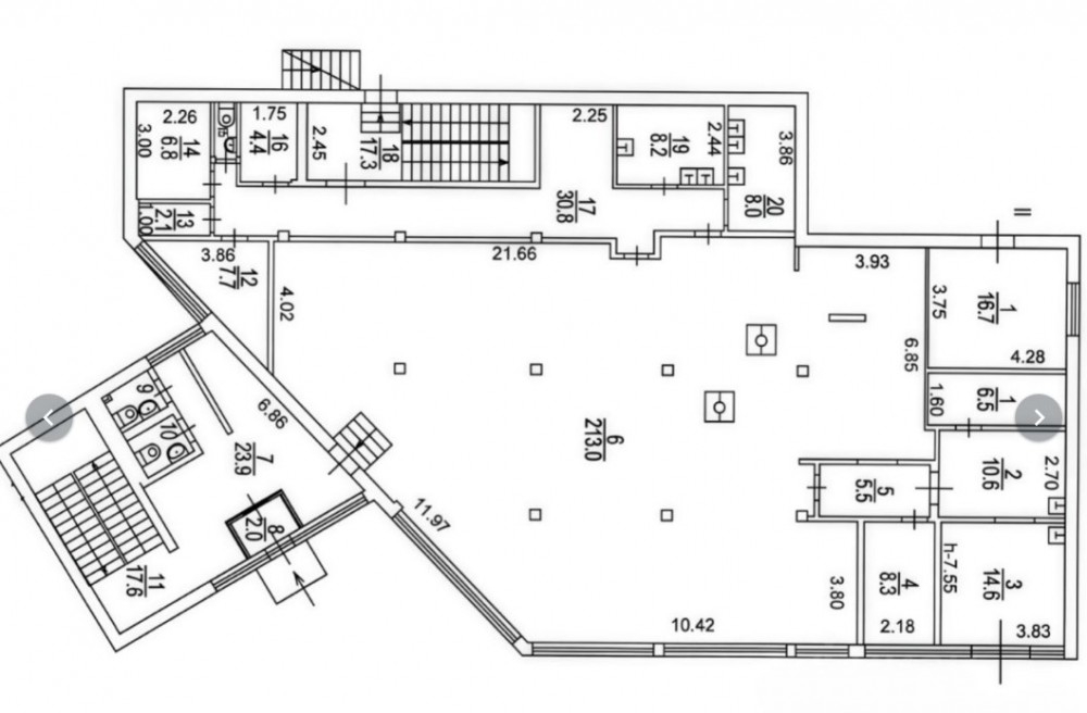
Метраж по этажам
Этаж: 1 - 409.3 м2
Этаж: 2 - 384.3 м2
Информация об объекте
Состояние объекта рабочее
Состояние блока отделка арендатора
Планировка Открытая
Перекрытия Железобетонные
Парковка наземная
Нюансы Отдельный вход
Торговая недвижимость
Линия домов 1 линия
Возможности Ресторанная вытяжка,Витрины,Место для рекламы,Проходное место,Проездное место
Электр. мощность (кВт) 150
Коммерческие условия
Аренда в год за м2 36 272 ₽
Аренда в месяц 2 400 000 ₽
Схема сделки прямая аренда
Тип собственника Юридическое лицо

Описание объекта
Предлагаем к аренде помещение ресторана в Марьиной Роще. До метро 10 минут пешком. Рядом большой бизнес-центр Ново и Университет транспорта.
Два этажа по 400м2, витринные окна по фасаду и потолки до 3,9м. Вход с ул.Сущевский вал. Ремонт за выездом арендатора. Выделенная мощность 150квт, технологическая вытяжка под общепит.
Помещение свободно к заезду.

Нужна консультация по подбору торговых площадей для аренды?

Наши специалисты подберут для вас самые выгодные варианты для долгосрочного инвестирования,
помогут в сопровождении и сделки, проверят все юридические вопросы касаемо приобретения недвижимости.

* Нажимая на кнопку «Отправить», Вы даете согласие на обработку персональных данных в соответствии с Политикой конфиденциальности

Похожие объекты

Медведково (3 мин. 🚶)
Москва, улица Грекова, вл7
Административное здание "улица Грекова, вл7"
Тип: Торговое помещение
Площадь: 872.57 м2
4 362 850 в месяц
60 000 в год за м2
Позвонить Подробнее
Чкаловская (12 мин. 🚗)
Москва, Нижняя Сыромятническая улица, 10с2
Бизнес-центр Центр дизайна Artplay (Артплэй)
Тип: Торговое помещение
Площадь: 770.00 м2
3 208 333 в месяц
50 000 в год за м2
Позвонить Подробнее
(3 мин. 🚶)
Москва, Лермонтовский проспект, 2к1
Жилое здание "Лермонтовский проспект 2 корп1"
Тип: Торговое помещение
Площадь: 790.00 м2
Мощность:150 кВт
1 700 000 в месяц
25 823 в год за м2
Позвонить Подробнее
Тверская (5 мин. 🚶)
Москва, Тверская улица, 22
Бизнес-центр «Саммит»
Тип: Торговое помещение
Площадь: 831.60 м2
Мощность:82 кВт
8 454 600 в месяц
122 000 в год за м2
Позвонить Подробнее
Авиамоторная (13 мин. 🚶)
Москва, Проезд Завода Серп и Молот, 10
Бизнес-центр «Интеграл»
Тип: Торговое помещение
Площадь: 770.70 м2
2 350 635 в месяц
36 600 в год за м2
Позвонить Подробнее
Баррикадная (1 мин. 🚶)
Москва, Кудринская площадь, 1
Жилое здание "Кудринская площадь, 1"
Тип: Торговое помещение
Площадь: 830.80 м2
2 500 000 в месяц
36 110 в год за м2
Позвонить Подробнее
Бауманская (2 мин. 🚶)
Москва, Бауманская улица, 32с2
Бизнес-центр «Елоховский пассаж»
Тип: Торговое помещение
Площадь: 752.70 м2
1 500 000 в месяц
23 914 в год за м2
Позвонить Подробнее
Марьино (15 мин. 🚶)
Москва, улица Перерва, 11с1
Технопарк "Перерва"
Тип: Торговое помещение
Площадь: 796.20 м2
1 459 700 в месяц
22 000 в год за м2
Позвонить Подробнее
Технопарк (5 мин. 🚶)
Москва, проспект Лихачёва, 8
Бизнес-Центр "Тесла"
Тип: Торговое помещение
Площадь: 720.00 м2
Мощность:100 кВт
3 888 000 в месяц
64 800 в год за м2
Позвонить Подробнее
Ул. Горчакова (13 мин. 🚶)
Москва, Чечёрский проезд, вл22
ОСЗ "Чечёрский пр-д вл. 22"
Тип: Торговое помещение
Площадь: 850.00 м2
Мощность:200 кВт
2 550 000 в месяц
36 000 в год за м2
Позвонить Подробнее
Кунцевская (23 мин. 🚗)
Закрытая продажа #57428
Тип: Торговое помещение
Площадь: 757.00 м2
Мощность:80 кВт
1 387 833 в месяц
22 000 в год за м2
Позвонить Подробнее
Краснопресненская (5 мин. 🚶)
Москва, улица Красная Пресня, 12
Жилой дом " Красная Пресня 12"
Тип: Торговое помещение
Площадь: 754.50 м2
2 950 000 в месяц
46 918 в год за м2
Позвонить Подробнее
Медведково (3 мин. 🚶)
Москва, улица Грекова, вл7
Административное здание "улица Грекова, вл7"
Тип: Торговое помещение
Площадь: 891.90 м2
2 675 700 в месяц
36 000 в год за м2
Позвонить Подробнее
Новослободская (13 мин. 🚶)
Москва, Краснопролетарская улица, 2/4с13
Бизнес-центр «Эрмитаж Плаза»
Тип: Торговое помещение
Площадь: 272.30 м2
Мощность:105 кВт
750 000 в месяц
33 052 в год за м2
Позвонить Подробнее
Коломенская (11 мин. 🚶)
Москва, Проспект Андропова, 48
Административное здание «проспект Андропова 48»
Тип: Торговое помещение
Площадь: 220.00 м2
Мощность:60 кВт
700 000 в месяц
38 182 в год за м2
Позвонить Подробнее
Царицыно (10 мин. 🚗)
Москва, 6-я Радиальная улица, 7/1к2
Жилое здание "6-я Радиальная 7/1к2"
Тип: Торговое помещение
Площадь: 72.00 м2
Мощность:30 кВт
220 000 в месяц
36 667 в год за м2
Позвонить Подробнее
Авиамоторная (13 мин. 🚶)
Москва, Проезд Завода Серп и Молот, 10
Бизнес-центр «Интеграл»
Тип: Торговое помещение
Площадь: 407.90 м2
1 244 095 в месяц
36 600 в год за м2
Позвонить Подробнее
Молодёжная (11 мин. 🚶)
Москва, Молодогвардейская улица, 25к1
Жилое здание "Молодогвардейская улица, 25к1"
Тип: Торговое помещение
Площадь: 256.00 м2
Мощность:105 кВт
700 000 в месяц
32 813 в год за м2
Позвонить Подробнее
Китай-город (7 мин. 🚶)
Москва, Подкопаевский переулок, 4с3
Бизнес-центр "Ивановская горка" с3
Тип: Торговое помещение
Площадь: 110.50 м2
Мощность:15 кВт
363 729 в месяц
39 500 в год за м2
Позвонить Подробнее
Войковская (10 мин. 🚗)
Москва, улица Зои и Александра Космодемьянских, 35/1
Жилое здание "ул. Зои и Александра Космодемьянских, 35/1"
Тип: Торговое помещение
Площадь: 122.00 м2
Мощность:25 кВт
370 006 в месяц
36 394 в год за м2
Позвонить Подробнее
Тушинская (4 мин. 🚶)
Москва, Тушинская улица, 16с4
ОСЗ "Тушинская улица, 16с4"
Тип: Торговое помещение
Площадь: 232.00 м2
Мощность:100 кВт
750 000 в месяц
38 793 в год за м2
Позвонить Подробнее
Рассказовка (40 мин. 🚗)
Московская область, Одинцово, Берёзовая улица, 6к2
ЖК "Одинцово 1"
Тип: Торговое помещение
Площадь: 119.70 м2
359 100 в месяц
36 000 в год за м2
Позвонить Подробнее
Алексеевская (12 мин. 🚶)
Москва, проспект Мира, 102с12
БЦ "Парк Мира"
Тип: Торговое помещение
Площадь: 170.00 м2
Мощность:150 кВт
550 000 в месяц
38 824 в год за м2
Позвонить Подробнее
ВДНХ (14 мин. 🚗)
Москва, проспект Мира, 135А
Жилое здание "проспект Мира, 135А"
Тип: Торговое помещение
Площадь: 167.10 м2
Мощность:33 кВт
490 000 в месяц
35 189 в год за м2
Позвонить Подробнее
Марьина Роща (13 мин. 🚶)
Москва, Улица Сущёвский Вал, 16с1
Бизнес-парк «Минаевский»
Тип: Торговое помещение
Площадь: 284.00 м2
Мощность:50 кВт
635 237 в месяц
26 841 в год за м2
Позвонить Подробнее
Марьина Роща (5 мин. 🚶)
Москва, Шереметьевская улица, 5к1
Жилое здание "Шереметьевская 5к1"
Тип: Торговое помещение
Площадь: 144.80 м2
650 000 в месяц
53 867 в год за м2
Позвонить Подробнее
Марьина Роща (9 мин. 🚶)
Москва, Трифоновская улица, 12
ХЦ "Трифоновская 12"
Тип: Торговое помещение
Площадь: 776.40 м2
Мощность:35 кВт
1 500 000 в месяц
23 184 в год за м2
Позвонить Подробнее