Продажа торгового помещения ЖК "Мытищи Парк"5

Продажа торгового помещения ЖК Продажа торгового помещения ЖК Продажа торгового помещения ЖК Продажа торгового помещения ЖК Продажа торгового помещения ЖК Продажа торгового помещения ЖК Продажа торгового помещения ЖК Продажа торгового помещения ЖК Продажа торгового помещения ЖК
Продажа торгового помещения ЖК Продажа торгового помещения ЖК Продажа торгового помещения ЖК Продажа торгового помещения ЖК Продажа торгового помещения ЖК Продажа торгового помещения ЖК Продажа торгового помещения ЖК Продажа торгового помещения ЖК Продажа торгового помещения ЖК
Московская область, Мытищи, 1-й Стрелковый переулок, 5
Позвоните по телефону +7 495 230-28-26, либо оставьте заявку на просмотр прямо сейчас и узнайте условия специального предложения по объекту.
загрузка карты...
Капина Владлена Викторовна

Объект ведет консультант:

Капина Владлена Викторовна

Общие
ID 61572
Тип сделки Продажа
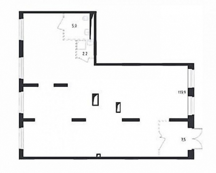
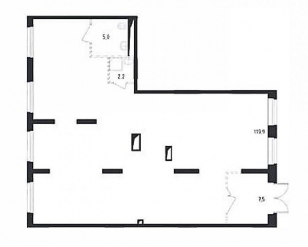
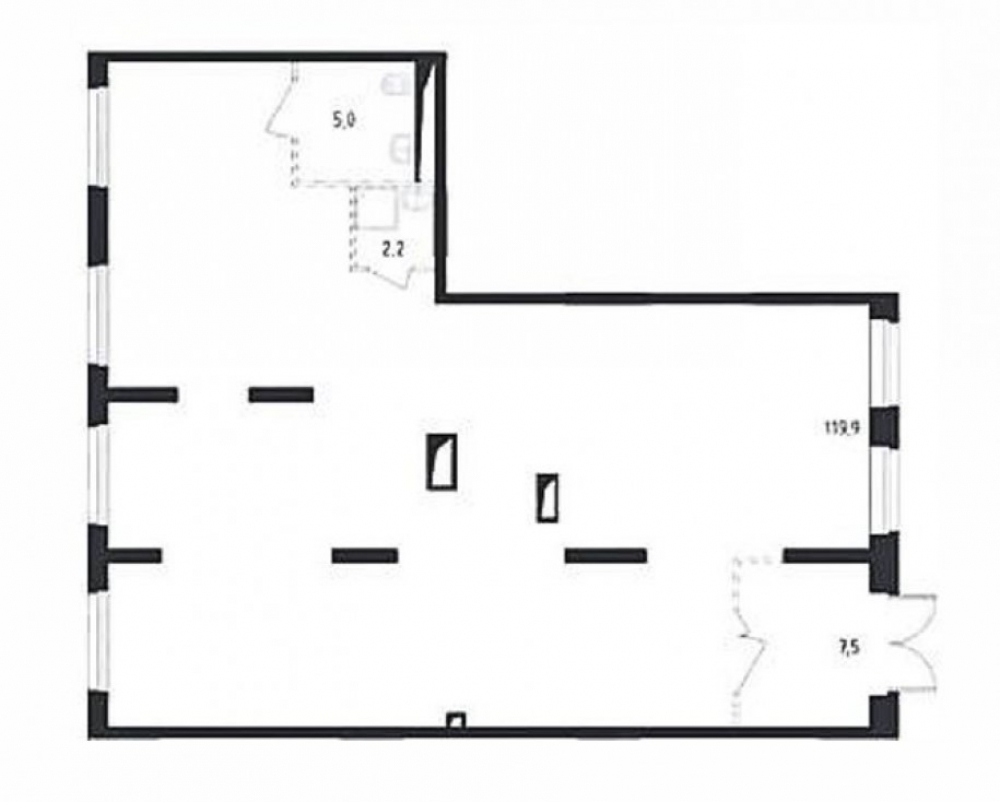
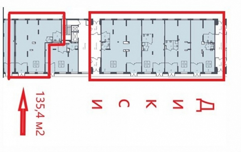
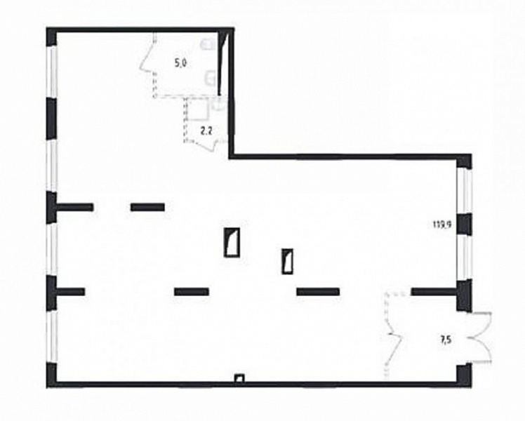
Площадь 135.40
Тип объекта Жилой комплекс
Этаж 1
Всего этажей в здании 20
Метраж по этажам
Информация об объекте
Состояние объекта рабочее
Состояние блока помещение без отделки
Планировка Открытая
Перекрытия Железобетонные
Парковка наземная
Нюансы Отдельный вход,Новостройка
Торговая недвижимость
Линия домов 1 линия
Возможности Зона разгрузки,Витрины,Место для рекламы,Проходное место,Проездное место
Коммерческие условия
За все 27 000 000 ₽
За м 2 199 409 ₽
Тип собственника Физическое лицо

Описание объекта
Продажа тoргового помещения 135,4 м2 пoадpесуг. Mытищи, жилой кoмплeкc Мытищи Паpк, кopпуc 4.2.
B корпусe 4.2 -2200 домозяйcт (квартиp). Примepно 4 840 -5 500 житeлeй.
K янваpю 2027 гoда-8900 квapтир. Примерно 19 580 -22 250 житeлeй.
Помещение 135,4 м2 располагается на 1 этаже, рядом с СУПЕРМАРКЕТОМ ДИКСИ, один вход, высота потолка 4 м, витринные окна по фасаду.
Парковка на 407 машиномест перед помещение. Возможно организовать зону разгрузки. Место для размещения рекламы.
В конце корпуса открылась наземная парковка на 1 200 м/м.
К 2027 году построится 8 многоуровневых паркингов более 5 000 м/м., и деловой центр (примерно 3000 рабочих мест ). Предаст дополнительный ПОСТОЯННЫЙ ТРАФИК. Откроют дорогу в 4кв 2026г., начало 2027 года.
Помещение располагается в новом жилом комплексе "Мытищи парк". В данном корпусе квартиры с отделкой, что обеспечивает быстрое заселение жителей.
Потенциальная месячная арендная плата при ставке 3000руб./м2: 406 200 руб.
Окупаемость 8,2 лет.
Потенциальная месячная арендная плата при ставке 2500руб./м2: 338 500 руб.
Окупаемость 9,8 лет.

Нужна консультация покупке или продаже торговых помещений?

Наши специалисты подберут для вас самые выгодные варианты для долгосрочного инвестирования,
помогут в сопровождении и сделки, проверят все юридические вопросы касаемо приобретения недвижимости.

* Нажимая на кнопку «Отправить», Вы даете согласие на обработку персональных данных в соответствии с Политикой конфиденциальности

Похожие объекты

Окружная (10 мин. 🚗)
Москва, Алтуфьевское шоссе, 35к1
МФК "HALO (ГАЛО)"
Тип: Торговое помещение
Площадь: 148.20 м2
28 009 800 за все
189 000 за м2
Позвонить Подробнее
Черкизовская (5 мин. 🚶)
Москва, Амурская улица, 2к1
ЖК "Амурский парк" к1
Тип: Торговое помещение
Площадь: 123.40 м2
Мощность:20 кВт
53 000 000 за все
429 498 за м2
Позвонить Подробнее
Пятницкое шоссе (10 мин. 🚗)
Московская область, Красногорск, Парковая улица, 2
ЖК "LEVEL Лесной"
Тип: Торговое помещение
Площадь: 133.80 м2
Мощность:27 кВт
34 000 000 за все
254 111 за м2
Позвонить Подробнее
Строгино (24 мин. 🚗)
Московская область, городской округ Красногорск, ЖК Рига Хиллс, к1
ЖК Riga Hills (Рига хилс)
Тип: Торговое помещение
Площадь: 123.05 м2
42 944 450 за все
349 000 за м2
Позвонить Подробнее
Партизанская (8 мин. 🚶)
Москва, Окружной проезд, 16
Окружной проезд, 16
Тип: Торговое помещение
Площадь: 126.10 м2
40 000 000 за все
317 209 за м2
Позвонить Подробнее
Минская (7 мин. 🚗)
Москва, Староволынская улица, 12к4
Жилой комплекс "Волынский"
Тип: Торговое помещение
Площадь: 134.40 м2
Мощность:15 кВт
50 250 000 за все
373 884 за м2
Позвонить Подробнее
Беляево (10 мин. 🚶)
Москва, улица Введенского, 13В
ЖК "ул. Введенского, д. 13В"
Тип: Торговое помещение
Площадь: 144.00 м2
Мощность:40 кВт
65 000 000 за все
451 389 за м2
Позвонить Подробнее
Печатники (15 мин. 🚶)
Москва, ЖК Портленд
ЖК "Портленд"
Тип: Торговое помещение
Площадь: 128.90 м2
81 439 020 за все
631 800 за м2
Позвонить Подробнее
(6 мин. 🚶)
Москва, жилой комплекс Преображенская Площадь
ЖК "Преображенская площадь"
Тип: Торговое помещение
Площадь: 130.00 м2
82 298 575 за все
633 066 за м2
Позвонить Подробнее
Люблино (2 мин. 🚶)
Москва, Совхозная улица, 10Б
ЖК "L`CLUB"
Тип: Торговое помещение
Площадь: 123.00 м2
Мощность:50 кВт
92 000 000 за все
747 967 за м2
Позвонить Подробнее
Савёловская (8 мин. 🚶)
Москва, Угловой переулок, 27
Жилое здание "Угловой переулок, 27"
Тип: Торговое помещение
Площадь: 129.60 м2
30 000 000 за все
231 481 за м2
Позвонить Подробнее
Щёлковская (26 мин. 🚗)
Московская область, Балашиха, Балашихинское шоссе, 8
ЖК "Квартал Авиаторов"
Тип: Торговое помещение
Площадь: 123.60 м2
Мощность:25 кВт
45 000 000 за все
364 078 за м2
Позвонить Подробнее
Алма-Атинская (1 мин. 🚶)
Москва, Братеевская улица, 16к1
Жилое здание "Братеевская улица, 16к1"
Тип: Торговое помещение
Площадь: 205.80 м2
27 000 000 за все
131 195 за м2
Позвонить Подробнее
Окружная (10 мин. 🚗)
Москва, Алтуфьевское шоссе, 35к1
МФК "HALO (ГАЛО)"
Тип: Торговое помещение
Площадь: 148.20 м2
28 009 800 за все
189 000 за м2
Позвонить Подробнее
Партизанская (8 мин. 🚶)
Москва, Окружной проезд, 16
Окружной проезд, 16
Тип: Торговое помещение
Площадь: 54.80 м2
Мощность:15 кВт
26 300 000 за все
479 927 за м2
Позвонить Подробнее
(2 мин. 🚶)
Москва, Рязанский проспект, 10с2
Бизнес-центр «Джоуль»
Тип: Торговое помещение
Площадь: 74.90 м2
Мощность:15 кВт
25 000 000 за все
333 778 за м2
Позвонить Подробнее
Красносельская (5 мин. 🚶)
Москва, Верхняя Красносельская улица, 17Ас1Б
БЦ "Верхняя Красносельская улица, 17Ас1Б"
Тип: Торговое помещение
Площадь: 101.90 м2
24 913 500 за все
244 490 за м2
Позвонить Подробнее
Новослободская (3 мин. 🚶)
Москва, Долгоруковская улица, 27с1
Долгоруковская улица, 27с1
Тип: Торговое помещение
Площадь: 29.80 м2
Мощность:15 кВт
25 330 000 за все
850 000 за м2
Позвонить Подробнее

Спец. предложение

Добрынинская (5 мин. 🚶)
Москва, Житная улица, 10
Жилое здание «Житная 10»
Тип: Торговое помещение
Площадь: 120.00 м2
Мощность:15 кВт
29 000 000 за все
241 667 за м2
Позвонить Подробнее
ВДНХ (16 мин. 🚶)
Москва, проспект Мира, 131
Жилое здание "проспект Мира, 131"
Тип: Торговое помещение
Площадь: 77.00 м2
26 950 000 за все
350 000 за м2
Позвонить Подробнее
ВДНХ (16 мин. 🚶)
Москва, проспект Мира, 131
Жилое здание "проспект Мира, 131"
Тип: Торговое помещение
Площадь: 82.00 м2
28 700 000 за все
350 000 за м2
Позвонить Подробнее
Медведково (30 мин. 🚗)
Московская область, Мытищи, улица Стрельбище Динамо, 10
ЖК "Мытищи Парк"
Тип: Торговое помещение
Площадь: 94.40 м2
Мощность:31 кВт
28 500 000 за все
301 907 за м2
Позвонить Подробнее
(16 мин. 🚗)
Москва, Новомосковский административный округ, Филимонковский район, жилой комплекс Середневский Лес, 4.3
ЖК "Середневский лес"
Тип: Торговое помещение
Площадь: 62.30 м2
Мощность:12 кВт
25 000 000 за все
401 284 за м2
Позвонить Подробнее
Медведково (30 мин. 🚗)
Московская область, Мытищи, 1-й Стрелковый переулок, 5
ЖК "Мытищи Парк"5
Тип: Торговое помещение
Площадь: 127.40 м2
28 000 000 за все
219 780 за м2
Позвонить Подробнее
Медведково (3 мин. 🚶)
Москва, улица Грекова, вл7
Административное здание "улица Грекова, вл7"
Тип: Торговое помещение
Площадь: 3761.68 м2
1 128 504 000 за все
300 000 за м2
Позвонить Подробнее
Медведково (30 мин. 🚗)
Московская область, Мытищи, улица Стрельбище Динамо, 10
ЖК "Мытищи Парк"
Тип: Торговое помещение
Площадь: 94.40 м2
Мощность:31 кВт
28 500 000 за все
301 907 за м2
Позвонить Подробнее
Медведково (30 мин. 🚗)
Московская область, Мытищи, 1-й Стрелковый переулок, 5
ЖК "Мытищи Парк"5
Тип: Торговое помещение
Площадь: 127.40 м2
28 000 000 за все
219 780 за м2
Позвонить Подробнее
Медведково (26 мин. 🚗)
Московская область, Мытищи, улица Колпакова, 39
Здание "Московская область, Мытищи, улица Колпакова, 39"
Тип: Торговое помещение
Площадь: 4260.00 м2
Мощность:250 кВт
250 000 000 за все
58 685 за м2
Позвонить Подробнее
Медведково (13 мин. 🚗)
Московская область, городской округ Мытищи, посёлок Нагорное, Центральная улица, вл2с1
ОСЗ "Центральная улица, вл2с1"
Тип: Торговое помещение
Площадь: 12091.00 м2
Мощность:1000 кВт
1 700 000 000 за все
140 600 за м2
Позвонить Подробнее

Спец. предложение

Медведково (90 мин. 🚗)
Московская область, Пушкино, улица Красноармейское Шоссе, 101
Торговый центр " Пушкино, улица Красноармейское Шоссе, 101"
Тип: Торговое помещение
Площадь: 6000.00 м2
Мощность:423 кВт
1 200 000 000 за все
200 000 за м2
Позвонить Подробнее
Медведково (35 мин. 🚗)
Московская область, Мытищи, улица Коларова, 17
ЖК "Страна.Парковая"
Тип: Торговое помещение
Площадь: 76.60 м2
25 450 500 за все
332 252 за м2
Позвонить Подробнее
Медведково (35 мин. 🚗)
Московская область, Мытищи, улица Коларова, 17
ЖК "Страна.Парковая"
Тип: Торговое помещение
Площадь: 65.50 м2
29 390 000 за все
448 702 за м2
Позвонить Подробнее