Аренда торгового помещения Жилое здание "Ленинградский проспект, 44"

Аренда торгового помещения Жилое здание
Москва, Ленинградский проспект, 44
Позвоните по телефону +7 495 230-28-26, либо оставьте заявку на просмотр прямо сейчас и узнайте условия специального предложения по объекту.
загрузка карты...
Аренда в год за м2 42 520 ₽
Аренда в месяц 900 000 ₽
Схема сделки прямая аренда
Кириченко Константин Юрьевич

Объект ведет консультант:

Кириченко Константин Юрьевич

Общие
ID 61724
Тип сделки Аренда
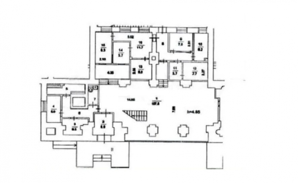
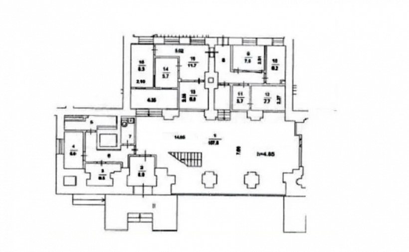
Площадь 254.00
Площадь всего 13142.00
Тип объекта Жилое здание
Класс здания B
Этаж 1
Всего этажей в здании 6
Метраж по этажам
Информация об объекте
Состояние объекта рабочее
Состояние блока отделка арендатора
Планировка Смешанная
Перекрытия Железобетонные
Отопление Центральное
Вентиляция и кондиционирование Система приточно-вытяжной вентиляции
Электрическая мощность,выделенная 60.00 кВт
Нюансы Отдельный вход
Торговая недвижимость
Линия домов 1 линия
Возможности Витрины,Место для рекламы,Проходное место,Проездное место
Электр. мощность (кВт) 50
Коммерческие условия
Аренда в год за м2 42 520 ₽
Аренда в месяц 900 000 ₽
Схема сделки прямая аренда
Тип собственника Юридическое лицо

Описание объекта
Ст.М. Динамо, ЦСКА, 10 м.п., Ленинградский проспект,44, сдаем в аренду готовое  банковское помещение 254 кв.м. Первая линия домов, отдельный вход с улицы, витрины.  В помещении оборудованы: блок охраны с внешней и внутренней сигнализацией, операционный зал, кассовые узлы, пункт обмена валюты, депозитарий. Высота потолка в операционном зале -   5,5 м. Все центральные коммуникации, разрешенная электрическая мощность 50 кВт. Вход со двора.
Мебель, сейфы, кондиционеры . Хороший ремонт. Цена аренды 4000 руб/кв.м в  мес. Назначение можно изменить. Предоставляются каникулы

Нужна консультация по подбору торговых площадей для аренды?

Наши специалисты подберут для вас самые выгодные варианты для долгосрочного инвестирования,
помогут в сопровождении и сделки, проверят все юридические вопросы касаемо приобретения недвижимости.

* Нажимая на кнопку «Отправить», Вы даете согласие на обработку персональных данных в соответствии с Политикой конфиденциальности

Похожие объекты

Чистые пруды (11 мин. 🚶)
Москва, улица Покровка, 20/1с1
Жилой дом "Покровка, 20/1с1"
Тип: Торговое помещение
Площадь: 257.00 м2
Мощность:70 кВт
1 100 000 в месяц
51 362 в год за м2
Позвонить Подробнее
Юго-Западная (3 мин. 🚶)
Москва, проспект Вернадского, 80
ЖК Full House
Тип: Торговое помещение
Площадь: 260.30 м2
Мощность:50 кВт
1 822 100 в месяц
84 000 в год за м2
Позвонить Подробнее
Тверская (5 мин. 🚶)
Москва, Тверская улица, 15
Жилое здание "Тверская улица д. 15"
Тип: Торговое помещение
Площадь: 232.00 м2
Мощность:100 кВт
2 000 000 в месяц
103 448 в год за м2
Позвонить Подробнее
Спартак (9 мин. 🚶)
Москва, Лётная улица, 95Бк2
ЖК "Алия"
Тип: Торговое помещение
Площадь: 239.70 м2
Мощность:24 кВт
1 030 710 в месяц
51 600 в год за м2
Позвонить Подробнее
Сокол Сокольники Соколиная Гора (3 мин. 🚶)
Москва, Ленинградский проспект, 69с1
Жилое здание "Ленинградский пр-т 69"
Тип: Торговое помещение
Площадь: 250.00 м2
Мощность:100 кВт
550 000 в месяц
26 400 в год за м2
Позвонить Подробнее
Марксистская (9 мин. 🚶)
Москва, Таганская улица, 36к2
Жилое здание "Таганская улица, 36к2"
Тип: Торговое помещение
Площадь: 230.00 м2
570 000 в месяц
29 739 в год за м2
Позвонить Подробнее
Маяковская (12 мин. 🚶)
Москва, Большая Грузинская улица, 37с2
Жилое здание "Большая Грузинская улица, 37с2"
Тип: Торговое помещение
Площадь: 235.00 м2
Мощность:100 кВт
1 500 000 в месяц
76 596 в год за м2
Позвонить Подробнее
Новослободская (13 мин. 🚶)
Москва, Краснопролетарская улица, 2/4с13
Бизнес-центр «Эрмитаж Плаза»
Тип: Торговое помещение
Площадь: 272.30 м2
Мощность:105 кВт
900 000 в месяц
39 662 в год за м2
Позвонить Подробнее
Ховрино (31 мин. 🚶)
Московская область, городской округ Красногорск, посёлок городского типа Отрадное, Лесная улица, 19к4
ЖК "Отрадное"
Тип: Торговое помещение
Площадь: 244.00 м2
Мощность:65 кВт
580 000 в месяц
28 525 в год за м2
Позвонить Подробнее
Ясенево (15 мин. 🚶)
Москва, Вильнюсская улица, 15
Жилой дом "Вильнюсская 15"
Тип: Торговое помещение
Площадь: 258.60 м2
465 000 в месяц
21 578 в год за м2
Позвонить Подробнее
Каширская (7 мин. 🚗)
Москва, Каширский проезд, 25к2
ЖК: LIFE-Варшавская (Лайф-Варшавская)
Тип: Торговое помещение
Площадь: 232.50 м2
Мощность:190 кВт
720 000 в месяц
37 161 в год за м2
Позвонить Подробнее
Рязанский проспект (5 мин. 🚶)
Москва, Зеленодольская улица, 10/14
Жилое здание "Зеленодольская улица, 10/14"
Тип: Торговое помещение
Площадь: 250.00 м2
Мощность:15 кВт
300 000 в месяц
14 400 в год за м2
Позвонить Подробнее
Профсоюзная (17 мин. 🚶)
Москва, Новочерёмушкинская улица, 27
Жилой дом "Новочерёмушкинская 27"
Тип: Торговое помещение
Площадь: 145.80 м2
Мощность:29 кВт
490 000 в месяц
40 329 в год за м2
Позвонить Подробнее
Юго-Западная (3 мин. 🚶)
Москва, проспект Вернадского, 80
ЖК Full House
Тип: Торговое помещение
Площадь: 600.00 м2
2 160 000 в месяц
43 200 в год за м2
Позвонить Подробнее
Алексеевская (12 мин. 🚶)
Москва, проспект Мира, 102с12
БЦ "Парк Мира"
Тип: Торговое помещение
Площадь: 170.00 м2
549 993 в месяц
38 823 в год за м2
Позвонить Подробнее
(2 мин. 🚶)
Москва, Рязанский проспект, 10с2
Бизнес-центр «Джоуль»
Тип: Торговое помещение
Площадь: 109.00 м2
Мощность:15 кВт
350 000 в месяц
38 532 в год за м2
Позвонить Подробнее
(2 мин. 🚶)
Москва, Рязанский проспект, 10с2
Бизнес-центр «Джоуль»
Тип: Торговое помещение
Площадь: 74.00 м2
Мощность:15 кВт
250 000 в месяц
40 541 в год за м2
Позвонить Подробнее
Медведково (30 мин. 🚗)
Московская область, Мытищи, 1-й Стрелковый переулок, 5
ЖК "Мытищи Парк"5
Тип: Торговое помещение
Площадь: 127.40 м2
407 680 в месяц
38 400 в год за м2
Позвонить Подробнее
Смоленская (Филевская) Смоленская (Арбатско-Покровская) (6 мин. 🚶)
Москва, Новинский бульвар, 8
Бизнес-центр «Лотте Плаза»
Тип: Торговое помещение
Площадь: 166.20 м2
625 189 в месяц
45 140 в год за м2
Позвонить Подробнее
Смоленская (Филевская) Смоленская (Арбатско-Покровская) (6 мин. 🚶)
Москва, Новинский бульвар, 8
Бизнес-центр «Лотте Плаза»
Тип: Торговое помещение
Площадь: 145.70 м2
548 075 в месяц
45 140 в год за м2
Позвонить Подробнее
Университет (19 мин. 🚶)
Москва, Ленинский проспект, 82/2
Жилое здание "Ленинский проспект, 82/2"
Тип: Торговое помещение
Площадь: 550.30 м2
Мощность:60 кВт
2 100 000 в месяц
45 793 в год за м2
Позвонить Подробнее
Крестьянская Застава (1 мин. 🚶)
Москва, Динамовская улица, 1А
Деловой центр у метро
Тип: Торговое помещение
Площадь: 136.10 м2
Мощность:15 кВт
500 000 в месяц
44 085 в год за м2
Позвонить Подробнее
Новослободская (13 мин. 🚶)
Москва, Краснопролетарская улица, 2/4с13
Бизнес-центр «Эрмитаж Плаза»
Тип: Торговое помещение
Площадь: 272.30 м2
Мощность:105 кВт
900 000 в месяц
39 662 в год за м2
Позвонить Подробнее
Фонвизинская (9 мин. 🚶)
Москва, улица Яблочкова, 28
Жилое здание "улица Яблочкова, 28"
Тип: Торговое помещение
Площадь: 167.90 м2
Мощность:33 кВт
587 650 в месяц
42 000 в год за м2
Позвонить Подробнее
Динамо (7 мин. 🚶)
Москва, Ленинградский проспект, 29
Жилой комплекс: Царская площадь
Тип: Торговое помещение
Площадь: 140.90 м2
1 000 000 в месяц
85 167 в год за м2
Позвонить Подробнее
Динамо (5 мин. 🚶)
Москва, Ленинградский проспект, 33к3
Жилое здание "Ленинградский проспект, 33к3"
Тип: Торговое помещение
Площадь: 53.70 м2
740 000 в месяц
165 363 в год за м2
Позвонить Подробнее