Продажа торгового помещения Производственно-складской комплекс

Продажа торгового помещения Производственно-складской комплекс Продажа торгового помещения Производственно-складской комплекс Продажа торгового помещения Производственно-складской комплекс Продажа торгового помещения Производственно-складской комплекс
Продажа торгового помещения Производственно-складской комплекс - превью Продажа торгового помещения Производственно-складской комплекс - превью Продажа торгового помещения Производственно-складской комплекс - превью Продажа торгового помещения Производственно-складской комплекс - превью
Москва, Гостиничная улица, 11с1
Позвоните по телефону +7 495 230-28-26, либо оставьте заявку на просмотр прямо сейчас и узнайте условия специального предложения по объекту.
загрузка карты...
Общие
ID 61846
Тип сделки Продажа
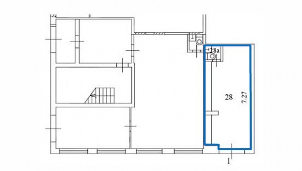
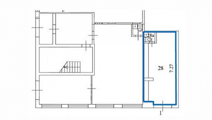
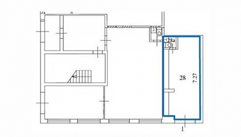
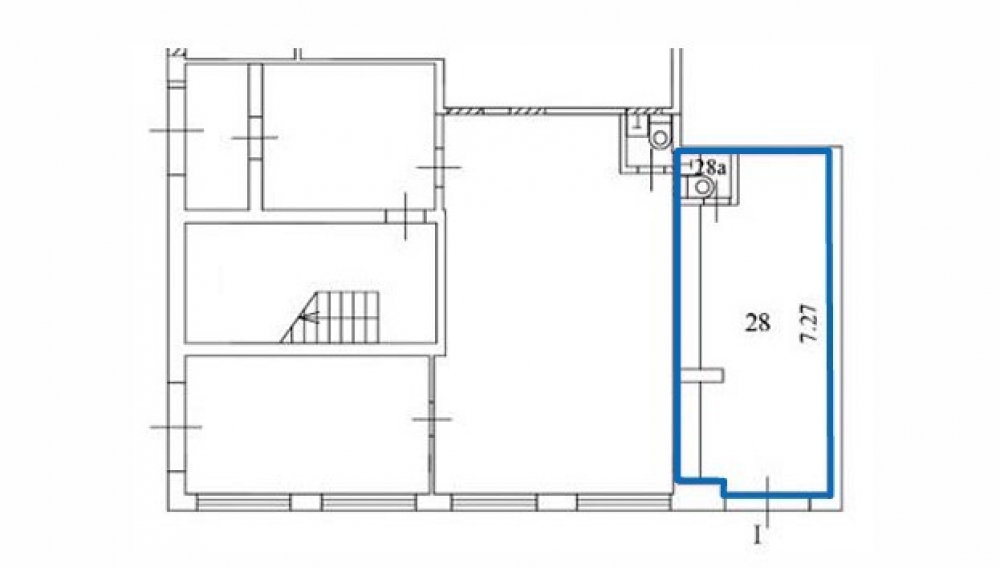
Площадь 22.20
Площадь всего 4000.00
Тип объекта Складской комплекс
Этаж 1
Всего этажей в здании 2
Метраж по этажам
Информация об объекте
Состояние объекта рабочее
Состояние блока отделка арендатора
Планировка Открытая
Перекрытия Неизвестно
Парковка городская только
Нюансы Отдельный вход
Эксплуатация оплачиваются отдельно
Торговая недвижимость
Линия домов 1 линия
Возможности Место для рекламы,Проходное место,Проездное место
Электр. мощность (кВт) 7
Коммерческие условия
За все 9 990 000 ₽
За м 2 450 000 ₽
Тип собственника Физическое лицо

Описание объекта
Продажа помещения 22.2 м2, 1 этаж. м. Окружная, крупный транспортный пересадочный узел!  Помещение располагается на первом этаже, с отдельным входом! Данное расположение объекта, залог постоянного стабильного дохода.

Собственная УК
Соседи: ПВЗ «СДЭК», супермаркет «Чижик», автосалон «Автохаус»
Объект находится в 200 м от ТПУ «Окружная»

Собственный с/у

Нужна консультация покупке или продаже торговых помещений?

Наши специалисты подберут для вас самые выгодные варианты для долгосрочного инвестирования,
помогут в сопровождении и сделки, проверят все юридические вопросы касаемо приобретения недвижимости.

* Нажимая на кнопку «Отправить», Вы даете согласие на обработку персональных данных в соответствии с Политикой конфиденциальности

Похожие объекты

Краснопресненская (5 мин. 🚶)
Москва, улица Красная Пресня, 12
Жилой дом " Красная Пресня 12"
Тип: Торговое помещение
Площадь: 23.00 м2
45 000 000 за все
1 956 522 за м2
Позвонить Подробнее
Академическая (7 мин. 🚶)
Москва, улица Дмитрия Ульянова, 10/1к1
Жилое здание "улица Дмитрия Ульянова, 10/1к1"
Тип: Торговое помещение
Площадь: 19.90 м2
19 530 000 за все
981 407 за м2
Позвонить Подробнее
Академическая (7 мин. 🚶)
Москва, улица Дмитрия Ульянова, 10/1к1
Жилое здание "улица Дмитрия Ульянова, 10/1к1"
Тип: Торговое помещение
Площадь: 20.50 м2
20 160 000 за все
983 415 за м2
Позвонить Подробнее
Окружная (10 мин. 🚗)
Москва, Алтуфьевское шоссе, 35к1
МФК "HALO (ГАЛО)"
Тип: Торговое помещение
Площадь: 148.20 м2
28 009 800 за все
189 000 за м2
Позвонить Подробнее
Окружная (10 мин. 🚶)
Москва, Гостиничная улица, 11с1
Производственно-складской комплекс
Тип: Торговое помещение
Площадь: 60.40 м2
Мощность:10 кВт
19 930 000 за все
329 967 за м2
Позвонить Подробнее