Продажа офиса БЦ "Обсидиан"

Продажа офиса БЦ Продажа офиса БЦ Продажа офиса БЦ
Продажа офиса БЦ Продажа офиса БЦ Продажа офиса БЦ
Москва, улица Авиаконструктора Микояна, 1
Позвоните по телефону +7 495 230-28-26, либо оставьте заявку на просмотр прямо сейчас и узнайте условия специального предложения по объекту.
загрузка карты...
Первушина Марина Алексеевна

Объект ведет консультант:

Первушина Марина Алексеевна

Общие
ID 61921
Тип сделки Продажа
Площадь 9836.00
Площадь всего 9839.80
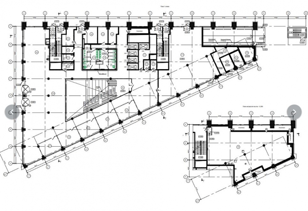
Тип объекта Бизнес-центр
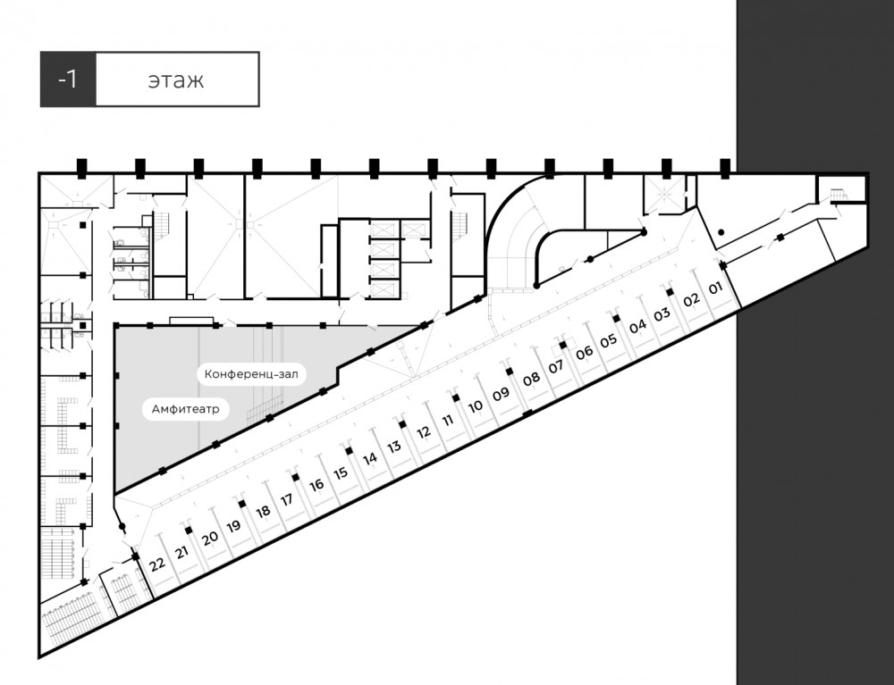
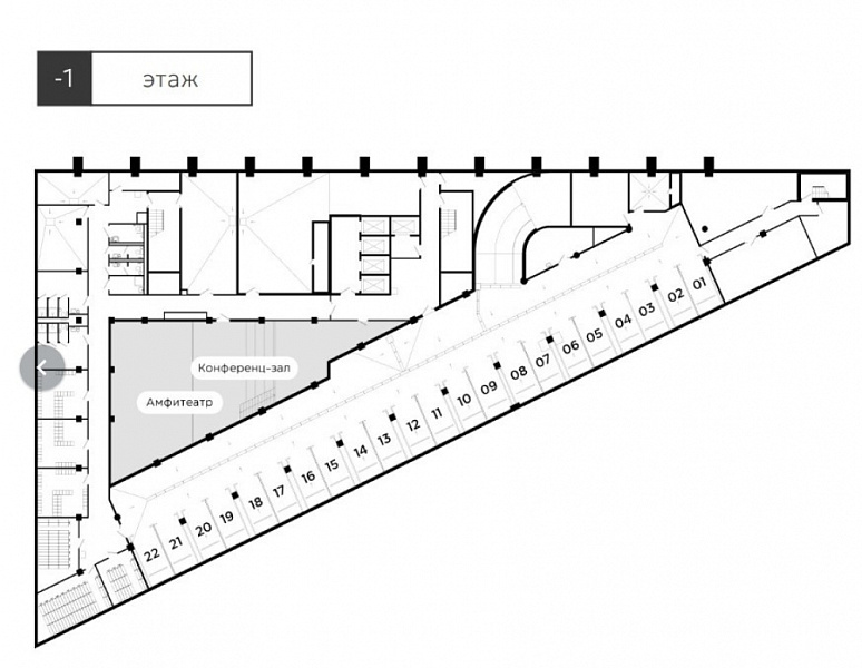
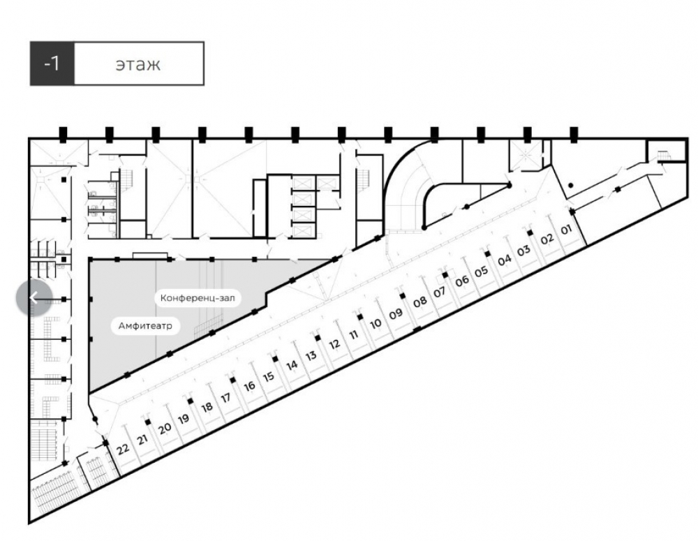
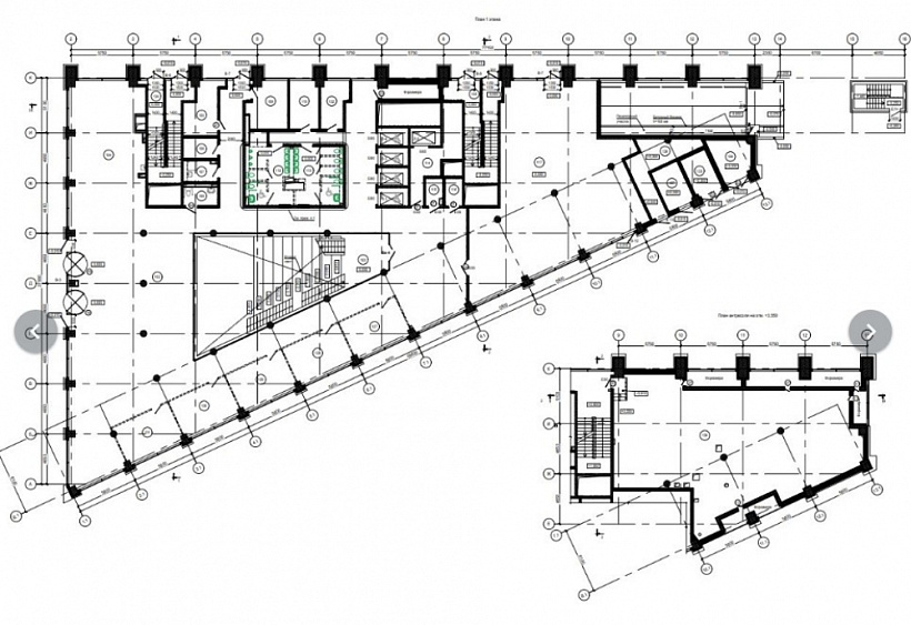
Этаж -1 - 5
Всего этажей в здании 5
Метраж по этажам
Этаж: -1 - 1923м2 м2
Этаж: 1 - 1379м2 м2
Этаж: 2 - 1686м2 м2
Этаж: 3 - 1686м2 м2
Этаж: 4 - 1686м2 м2
Этаж: 5 - 1476м2 м2
Информация об объекте
Состояние объекта рабочее
Состояние блока Shell and Core
Планировка Открытая
Перекрытия Железобетонные
Парковка подземная на 22м/м в здании по 22000р/мес+НДС, подземная на 100м/м а прилегающей территории по 13000р/мес
Нюансы Отдельный вход
Коммерческие условия
За м 2 592 920 ₽
Тип собственника Юридическое лицо

Описание объекта
Предлагаем к продаже офисное здание в Хорошевском районе. До м.ЦСКА 5-7 минут пешком. Ленинградский деловой коридор – один из самых развитых бизнес-районов Москвы. Здесь расположены штаб-квартиры крупнейших компаний.
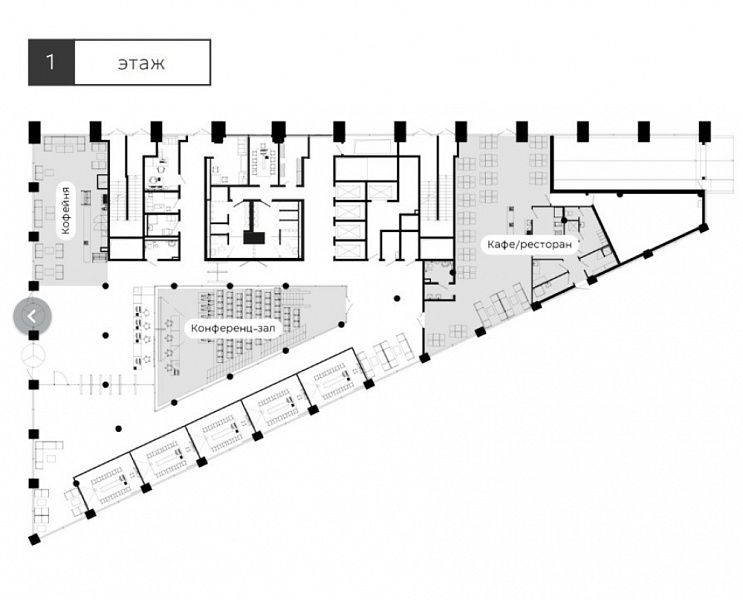
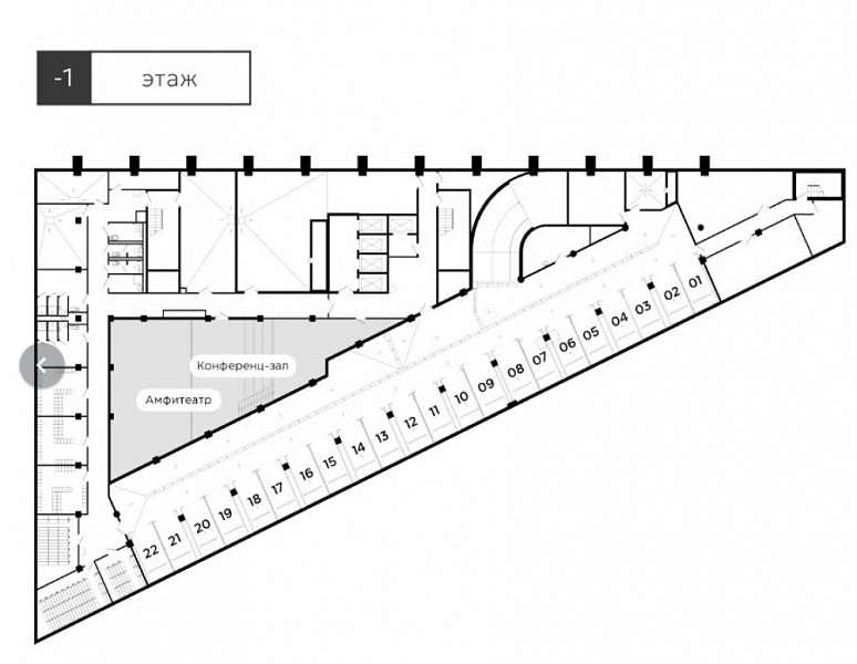
Общая площадь здания 9836м2: пять наземных этажей и подземный этаж с парковкой и амфитеатром на 100 человек.
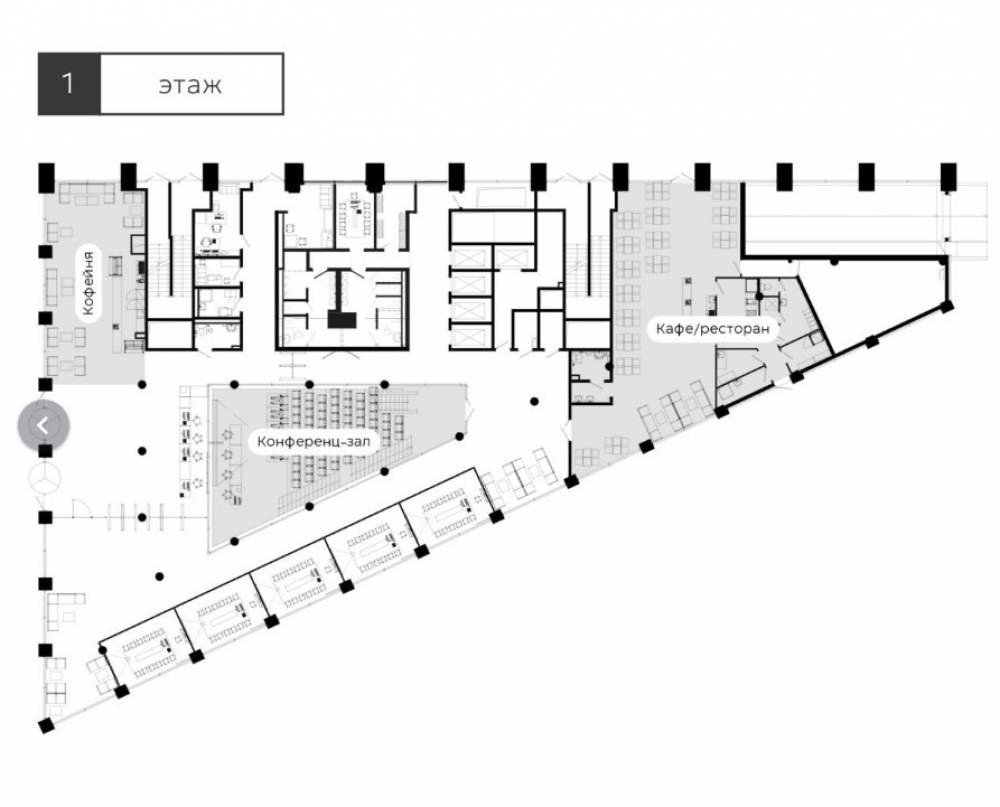
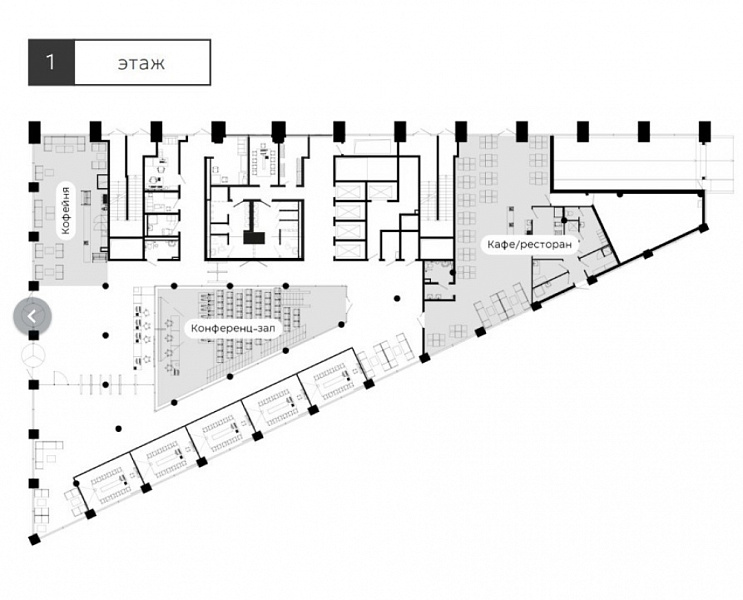
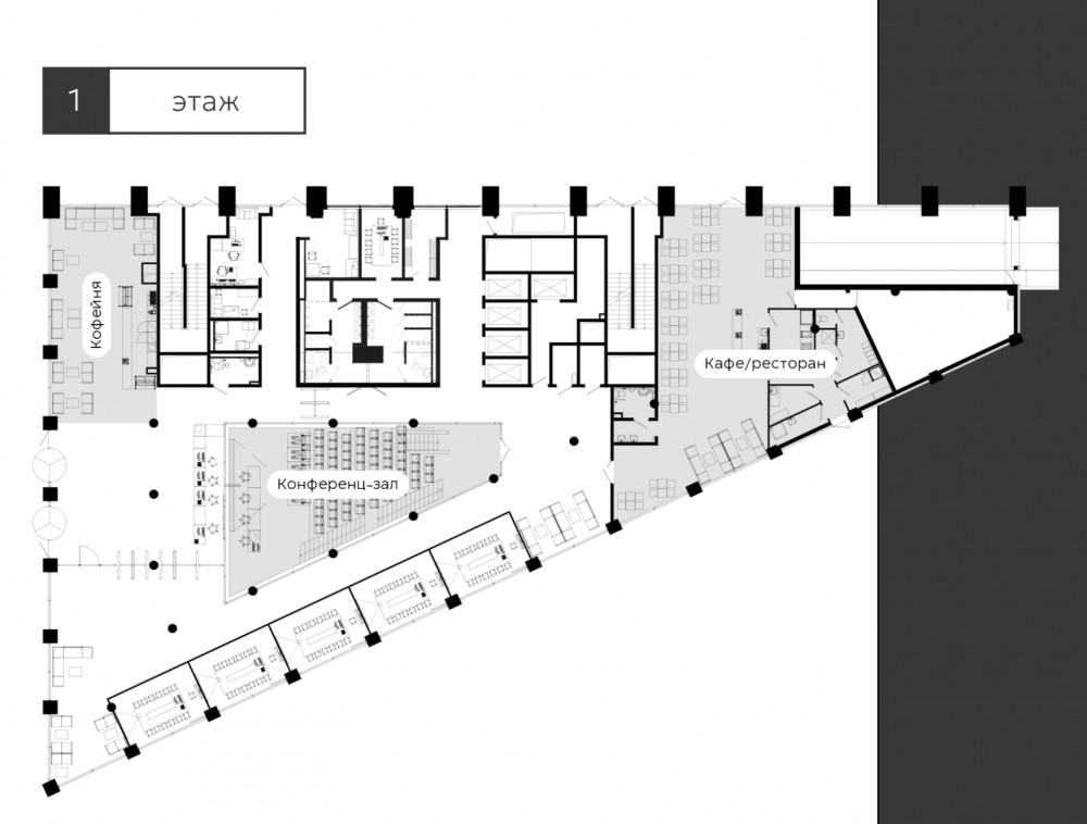
На первом этаже предполагается лобби 469м2 с потолками до 7,6м, ресторан 213м2, кофейня, концеренц-залл на 50 мест, а также до пяти переговорных комнат.
Со второго по пятый этаж располагаются офисные пространства с возможностью размещение до 1450 сотрудников. Также на пятом этаже предусмотрена терраса.
Здание с панорманым остеклением, VRF-системой кондиционирования, 5-ю лифтами Meteor (ex-Otis) грузоподъемностью 1000 кг каждый. Выделенная электрическая мощность –
1,9 МВт.
Здание введено в эксплуатацию.
Стоимость в бетоне с отделкой МОП, возможна отделка.

Нужна консультация по покупке или продаже офиса?

Наши специалисты подберут для вас самые выгодные варианты для долгосрочного инвестирования,
помогут в сопровождении и сделки, проверят все юридические вопросы касаемо приобретения недвижимости.

* Нажимая на кнопку «Отправить», Вы даете согласие на обработку персональных данных в соответствии с Политикой конфиденциальности

Похожие объекты

Тульская (7 мин. 🚶)
Москва, Городская улица, 8
Офисное здание "Городская ул., 8"
Тип: Офисы
Площадь: 9500.00 м2
1 800 000 000 за все
189 474 за м2
Позвонить Подробнее
Авиамоторная (10 мин. 🚶)
Москва, шоссе Энтузиастов, 21с1
Бизнес-центр «Соколиная гора»
Тип: Офисы
Площадь: 10661.00 м2
Отделка:выполнена стандартная офисная отделка
2 000 000 000 за все
187 600 за м2
Позвонить Подробнее
Щёлковская (7 мин. 🚶)
Москва, Черницынский проезд, 3с1
Офисно-складской комплекс "Черницынский"
Тип: Офисы
Площадь: 8978.00 м2
451 250 000 за все
50 262 за м2
Позвонить Подробнее
ВДНХ (8 мин. 🚶)
Москва, Проспект Мира, 105с1
Офисное здание «Московская типография №2»
Тип: Офисы
Площадь: 20476.00 м2
Отделка:качественная отделка
5 500 000 000 за все
268 607 за м2
Позвонить Подробнее
ЦСКА (6 мин. 🚶)
Москва, Ходынский бульвар, 4/1
БЦ "AIR"
Тип: Офисы
Площадь: 1518.90 м2
Отделка:Shell and Core
905 525 890 за все
596 172 за м2
Позвонить Подробнее
ЦСКА (6 мин. 🚶)
Москва, Ходынский бульвар, 4/1
БЦ "AIR"
Тип: Офисы
Площадь: 758.20 м2
Отделка:Shell and Core
423 985 440 за все
559 200 за м2
Позвонить Подробнее
ЦСКА (6 мин. 🚶)
Москва, Ходынский бульвар, 4/1
БЦ "AIR"
Тип: Офисы
Площадь: 139.20 м2
Отделка:Shell and Core
84 062 880 за все
603 900 за м2
Позвонить Подробнее
ЦСКА (6 мин. 🚶)
Москва, Ходынский бульвар, 4/1
БЦ "AIR"
Тип: Офисы
Площадь: 155.80 м2
Отделка:Shell and Core
94 679 660 за все
607 700 за м2
Позвонить Подробнее
ЦСКА (6 мин. 🚶)
Москва, Ходынский бульвар, 4/1
БЦ "AIR"
Тип: Офисы
Площадь: 78.80 м2
Отделка:Shell and Core
52 323 200 за все
664 000 за м2
Позвонить Подробнее
ЦСКА (6 мин. 🚶)
Москва, Ходынский бульвар, 4/1
БЦ "AIR"
Тип: Офисы
Площадь: 174.30 м2
Отделка:Shell and Core
105 643 230 за все
606 100 за м2
Позвонить Подробнее
ЦСКА (6 мин. 🚶)
Москва, Ходынский бульвар, 4/1
БЦ "AIR"
Тип: Офисы
Площадь: 269.90 м2
Отделка:Shell and Core
152 790 390 за все
566 100 за м2
Позвонить Подробнее
ЦСКА (5 мин. 🚶)
Москва, Ходынский бульвар, 20А
БЦ "STONE Ходынка 2"
Тип: Офисы
Площадь: 725.60 м2
Отделка:Shell and Core
391 824 000 за все
540 000 за м2
Позвонить Подробнее
ЦСКА (5 мин. 🚶)
Москва, Ходынский бульвар, 20А
БЦ "STONE Ходынка 2"
Тип: Офисы
Площадь: 341.00 м2
Отделка:Shell and Core
184 140 000 за все
540 000 за м2
Позвонить Подробнее
ЦСКА (14 мин. 🚶)
Москва, Хорошёвское шоссе, 38к1
Бизнес-центр на Хорошёвском шоссе, 38к1
Тип: Офисы
Площадь: 790.00 м2
Отделка:выполнена стандартная офисная отделка
150 000 000 за все
189 873 за м2
Позвонить Подробнее
ЦСКА (14 мин. 🚶)
Москва, Хорошёвское шоссе, 38к1
Бизнес-центр на Хорошёвском шоссе, 38к1
Тип: Офисы
Площадь: 571.60 м2
Отделка:выполнена стандартная офисная отделка
105 000 000 за все
183 695 за м2
Позвонить Подробнее