Аренда офиса Бизнес - центр "Geolog"

Аренда офиса Бизнес - центр Аренда офиса Бизнес - центр Аренда офиса Бизнес - центр Аренда офиса Бизнес - центр Аренда офиса Бизнес - центр Аренда офиса Бизнес - центр Аренда офиса Бизнес - центр Аренда офиса Бизнес - центр Аренда офиса Бизнес - центр Аренда офиса Бизнес - центр Аренда офиса Бизнес - центр Аренда офиса Бизнес - центр Аренда офиса Бизнес - центр Аренда офиса Бизнес - центр Аренда офиса Бизнес - центр
Аренда офиса Бизнес - центр Аренда офиса Бизнес - центр Аренда офиса Бизнес - центр Аренда офиса Бизнес - центр Аренда офиса Бизнес - центр Аренда офиса Бизнес - центр Аренда офиса Бизнес - центр Аренда офиса Бизнес - центр Аренда офиса Бизнес - центр Аренда офиса Бизнес - центр Аренда офиса Бизнес - центр Аренда офиса Бизнес - центр Аренда офиса Бизнес - центр Аренда офиса Бизнес - центр Аренда офиса Бизнес - центр
Москва, улица Обручева, 23к2с3
Позвоните по телефону +7 495 230-28-26, либо оставьте заявку на просмотр прямо сейчас и узнайте условия специального предложения по объекту.
загрузка карты...
Аренда в год за м2 50 000 ₽
Аренда в месяц 890 000 ₽
Схема сделки прямая аренда
Арсеньев Сергей Михайлович

Объект ведет консультант:

Арсеньев Сергей Михайлович

Общие
ID 61957
Тип сделки Аренда
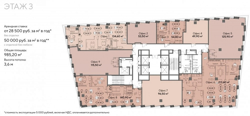
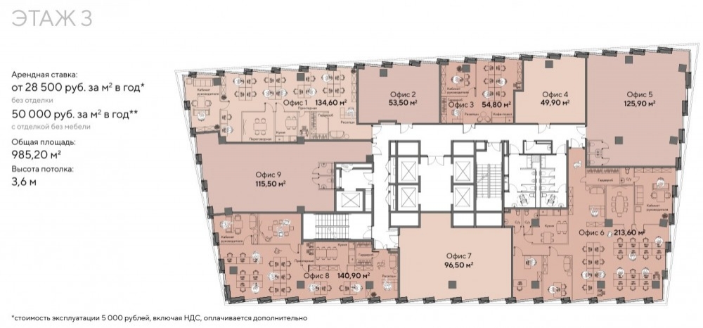
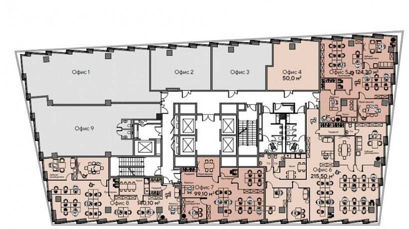
Площадь 213.60
Тип объекта Бизнес-центр
Класс здания A
Этаж 3
Всего этажей в здании 15
Метраж по этажам
Информация об объекте
Состояние объекта рабочее
Состояние блока выполнена высококачественная отделка
Планировка Открытая
Перекрытия Железобетонные
Торговая недвижимость
Линия домов 1 линия
Возможности Витрины,Место для рекламы,Проходное место,Проездное место
Электр. мощность (кВт) 132
Коммерческие условия
Аренда в год за м2 50 000 ₽
Аренда в месяц 890 000 ₽
Схема сделки прямая аренда
Тип собственника Юридическое лицо

Описание объекта
Новый концептуальный офисный центр класса «А» на Юго-Западе города, в пешей
доступности от метро «Калужская», ул. Обручева, д. 23, стр.1

Оригинальный проект здания был создан именитым архитектурным бюро Blank Archi
tects, за плечами которых десятки проектов и сотни тысяч спроектированных квадратных
метров в России и Европе.

Бизнес-центр расположен в активно развивающейся деловой части города —
Юго-Западном административном округе.

Локация характеризуется хорошей транспортной и пешеходной доступностью:
на личном автомобиле удобно доехать до проекта сразу с шести крупных магистралей,
а путь от метро пешком займет всего 7 минут.

Арендная ставка:
от 28 500 руб. за м2 в год без отделки
50 000 руб. за м2 в год с отделкой без мебели

ШАГ КОЛОНН 7,5–9,0 м
НАГРУЗКА НА ПЕРЕКРЫТИЯ 450 кг/м2
Возможность установки электрозарядки для электромобилей на  подземном паркинге
Налоговая, ИФНС России № 28
Круглосуточный доступ в бизнес-центр
Офисы с возможностью устройства антресоли
Открывающиеся окна в каждом офисе

стоимость эксплуатации 5 000 рублей, включая НДС, оплачивается дополнительно

Нужна консультация по подбору помещения под офис?

Наши специалисты подберут для вас самые выгодные варианты для долгосрочного инвестирования,
помогут в сопровождении и сделки, проверят все юридические вопросы касаемо приобретения недвижимости.

* Нажимая на кнопку «Отправить», Вы даете согласие на обработку персональных данных в соответствии с Политикой конфиденциальности

Похожие объекты

Ленинский проспект (10 мин. 🚶)
Москва, Улица Орджоникидзе, 11с10
Бизнес-парк «Оржоникидзе 11»
Тип: Офисы
Площадь: 228.20 м2
Отделка:выполнена стандартная офисная отделка
855 750 в месяц
45 000 в год за м2
Позвонить Подробнее
Красные Ворота (2 мин. 🚶)
Москва, Мясницкий проезд, 1с2
Особняк «Мясницкий 1 с2»
Тип: Офисы
Площадь: 204.90 м2
Отделка:качественная отделка
683 000 в месяц
40 000 в год за м2
Позвонить Подробнее
Деловой центр Деловой центр (МЦК) (7 мин. 🚶)
Москва, Пресненская набережная, 12
Москва-Сити «Башня Федерация»
Тип: Офисы
Площадь: 220.00 м2
Отделка:качественная отделка
1 448 333 в месяц
79 000 в год за м2
Позвонить Подробнее
Белорусская (11 мин. 🚶)
Москва, Лесная улица, 43
Бизнес-центр «Лесная 43»
Тип: Офисы
Площадь: 225.00 м2
Отделка:выполнена стандартная офисная отделка
890 000 в месяц
47 467 в год за м2
Позвонить Подробнее
Строгино (15 мин. 🚶)
Москва, Улица Маршала Прошлякова, 30
Бизнес-центр «Зенит Плаза»
Тип: Офисы
Площадь: 224.00 м2
Отделка:выполнена стандартная офисная отделка
476 000 в месяц
25 500 в год за м2
Позвонить Подробнее
Текстильщики (10 мин. 🚶)
Москва, Волгоградский проспект, 43к3
Бизнес-центр "Авилон Плаза"
Тип: Офисы
Площадь: 201.20 м2
Отделка:выполнена стандартная офисная отделка
537 925 в месяц
32 083 в год за м2
Позвонить Подробнее
Павелецкая (8 мин. 🚶)
Москва, Летниковская улица, 4с5
Особняк Бахрушина
Тип: Офисы
Площадь: 225.00 м2
Отделка:качественная отделка
937 500 в месяц
50 000 в год за м2
Позвонить Подробнее
Павелецкая (9 мин. 🚶)
Москва, Космодамианская набережная, 52с11
Бизнес-центр «Риверсайд Тауэрс»
Тип: Офисы
Площадь: 211.00 м2
Отделка:выполнена стандартная офисная отделка
1 139 400 в месяц
64 800 в год за м2
Позвонить Подробнее
Международная (5 мин. 🚶)
Москва, Пресненская набережная, 10А
Бизнес-центр «Башня на набережной»
Тип: Офисы
Площадь: 233.00 м2
Отделка:выполнена стандартная офисная отделка
1 864 000 в месяц
96 000 в год за м2
Позвонить Подробнее
Красносельская (10 мин. 🚶)
Москва, Спартаковский переулок, 2с1
Лофт-квартал «Платформа»
Тип: Офисы
Площадь: 230.00 м2
Отделка:выполнена стандартная офисная отделка
675 000 в месяц
35 217 в год за м2
Позвонить Подробнее
Белорусская (7 мин. 🚶)
Москва, 3-я улица Ямского Поля, 2к26
Бизнес центр "Ямское Поле"
Тип: Офисы
Площадь: 231.20 м2
Отделка:выполнена стандартная офисная отделка
693 600 в месяц
36 000 в год за м2
Позвонить Подробнее
Чкаловская (7 мин. 🚶)
Москва, Подсосенский переулок, 21с2
Особняк «Подсосенский 21 с2»
Тип: Офисы
Площадь: 212.20 м2
Отделка:выполнена стандартная офисная отделка
450 000 в месяц
25 448 в год за м2
Позвонить Подробнее
Профсоюзная (10 мин. 🚶)
Москва, Нахимовский проспект, 58
Бизнес-центр «iCube»
Тип: Офисы
Площадь: 1016.00 м2
Отделка:качественная отделка
4 236 720 в месяц
50 040 в год за м2
Позвонить Подробнее
Савёловская (5 мин. 🚶)
Москва, Улица Правды, 26
Бизнес-центр «Северное сияние»
Тип: Офисы
Площадь: 2279.00 м2
Отделка:выполнена стандартная офисная отделка
10 255 500 в месяц
54 000 в год за м2
Позвонить Подробнее
Ленинский проспект (10 мин. 🚶)
Москва, Улица Орджоникидзе, 11с10
Бизнес-парк «Оржоникидзе 11»
Тип: Офисы
Площадь: 228.20 м2
Отделка:выполнена стандартная офисная отделка
855 750 в месяц
45 000 в год за м2
Позвонить Подробнее
Ленинский проспект (10 мин. 🚶)
Москва, Улица Орджоникидзе, 11с10
Бизнес-парк «Оржоникидзе 11»
Тип: Офисы
Площадь: 285.20 м2
Отделка:выполнена стандартная офисная отделка
1 069 500 в месяц
45 000 в год за м2
Позвонить Подробнее
Ленинский проспект (10 мин. 🚶)
Москва, Улица Орджоникидзе, 11с10
Бизнес-парк «Оржоникидзе 11»
Тип: Офисы
Площадь: 513.50 м2
Отделка:выполнена стандартная офисная отделка
1 925 625 в месяц
45 000 в год за м2
Позвонить Подробнее
Полянка (6 мин. 🚶)
Москва, улица Большая Якиманка, 18
Бизнес - центр "Большая Якиманка 18"
Тип: Офисы
Площадь: 1099.00 м2
Отделка:качественная отделка
4 212 833 в месяц
46 000 в год за м2
Позвонить Подробнее
Комсомольская (11 мин. 🚶)
Москва, Докучаев переулок, 8
Особняк «Докучаев 8»
Тип: Офисы
Площадь: 1240.00 м2
5 373 333 в месяц
52 000 в год за м2
Позвонить Подробнее
Тульская (15 мин. 🚶)
Москва, Новоданиловская набережная, 10
Бизнес-центр «Даниловский Форт»
Тип: Офисы
Площадь: 11167.00 м2
Отделка:выполнена стандартная офисная отделка
51 182 083 в месяц
55 000 в год за м2
Позвонить Подробнее
Савёловская (5 мин. 🚶)
Москва, Бумажный проезд, 19с4
БЦ STONE TOWERS
Тип: Офисы
Площадь: 1109.00 м2
Отделка:Shell & Core
4 158 750 в месяц
45 000 в год за м2
Позвонить Подробнее
Марьина Роща (14 мин. 🚶)
Москва, Улица Сущёвский Вал, 18
Бизнес-центр «NOVO» (ново)
Тип: Офисы
Площадь: 1497.00 м2
Отделка:выполнена стандартная офисная отделка
5 613 750 в месяц
45 000 в год за м2
Позвонить Подробнее
Белорусская (11 мин. 🚶)
Москва, Лесная улица, 43
Бизнес-центр «Лесная 43»
Тип: Офисы
Площадь: 225.00 м2
Отделка:выполнена стандартная офисная отделка
890 000 в месяц
47 467 в год за м2
Позвонить Подробнее
Цветной бульвар (5 мин. 🚶)
Москва, Цветной бульвар, 30с1
Офисное здание «Цветной 30»
Тип: Офисы
Площадь: 237.00 м2
Отделка:выполнена стандартная офисная отделка
888 750 в месяц
45 000 в год за м2
Позвонить Подробнее
Калужская (9 мин. 🚶)
Москва, Улица Обручева, 23к3
Бизнес-центр «Газфилд»
Тип: Офисы
Площадь: 289.27 м2
Отделка:выполнена стандартная офисная отделка
795 493 в месяц
33 000 в год за м2
Позвонить Подробнее
Калужская (15 мин. 🚶)
Москва, Новочерёмушкинская улица, 71/32
ЖК Дом Газпрома
Тип: Офисы
Площадь: 1209.30 м2
Отделка:выполнена стандартная офисная отделка
2 418 600 в месяц
24 000 в год за м2
Позвонить Подробнее
Калужская (15 мин. 🚶)
Москва, Новочерёмушкинская улица, 71/32
ЖК Дом Газпрома
Тип: Офисы
Площадь: 799.10 м2
Отделка:выполнена стандартная офисная отделка
1 598 200 в месяц
24 000 в год за м2
Позвонить Подробнее
Калужская (15 мин. 🚶)
Москва, Новочерёмушкинская улица, 71/32
ЖК Дом Газпрома
Тип: Офисы
Площадь: 410.20 м2
Отделка:выполнена стандартная офисная отделка
820 400 в месяц
24 000 в год за м2
Позвонить Подробнее
Калужская (10 мин. 🚶)
Москва, Улица Бутлерова, 17
Бизнес-центр «NEO GEO»
Тип: Офисы
Площадь: 173.00 м2
Отделка:отделка арендатора
375 000 в месяц
26 012 в год за м2
Позвонить Подробнее
Калужская (9 мин. 🚶)
Москва, Улица Обручева, 23к3
Бизнес-центр «Газфилд»
Тип: Офисы
Площадь: 830.00 м2
Отделка:выполнена стандартная офисная отделка
2 282 500 в месяц
33 000 в год за м2
Позвонить Подробнее
Калужская (10 мин. 🚶)
Москва, Улица Бутлерова, 17
Бизнес-центр «NEO GEO»
Тип: Офисы
Площадь: 1231.20 м2
Отделка:выполнена стандартная офисная отделка
4 370 000 в месяц
42 593 в год за м2
Позвонить Подробнее
Калужская (14 мин. 🚗)
Москва, Улица Новаторов, 15
Офисное здание «Новаторов 15»
Тип: Офисы
Площадь: 916.30 м2
Отделка:требуется косметический ремонт
1 450 809 в месяц
19 000 в год за м2
Позвонить Подробнее
Калужская (12 мин. 🚶)
Москва, Научный проезд, 19
Бизнес-центр «9 Акров»
Тип: Офисы
Площадь: 114.00 м2
Отделка:качественная отделка
275 500 в месяц
29 000 в год за м2
Позвонить Подробнее
Калужская (12 мин. 🚶)
Москва, Научный проезд, 19
Бизнес-центр «9 Акров»
Тип: Офисы
Площадь: 129.90 м2
Отделка:качественная отделка
313 950 в месяц
29 002 в год за м2
Позвонить Подробнее
Калужская (12 мин. 🚶)
Москва, Научный проезд, 19
Бизнес-центр «9 Акров»
Тип: Офисы
Площадь: 520.00 м2
Отделка:выполнена стандартная офисная отделка
866 667 в месяц
20 000 в год за м2
Позвонить Подробнее
Калужская (3 мин. 🚶)
Москва, Профсоюзная улица, 65к1
Бизнес-центр «Лотте»
Тип: Офисы
Площадь: 628.60 м2
Отделка:выполнена стандартная офисная отделка
2 074 380 в месяц
39 600 в год за м2
Позвонить Подробнее