Аренда торгового помещения Бизнес-центр «Lunar (Лунар)»

Аренда торгового помещения Бизнес-центр «Lunar (Лунар)»
Москва, Ленинский проспект, 38
Позвоните по телефону +7 495 230-28-26, либо оставьте заявку на просмотр прямо сейчас и узнайте условия специального предложения по объекту.
загрузка карты...
Аренда в год за м2 70 000 ₽
Аренда в месяц 3 102 167 ₽
Схема сделки прямая аренда
Общие
ID 62104
Тип сделки Аренда
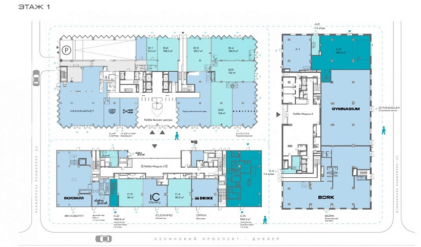
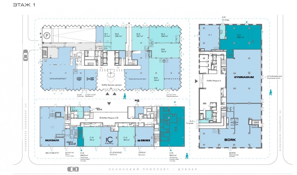
Площадь 531.80
Площадь всего 13400.00
Тип объекта Бизнес-центр
Класс здания A
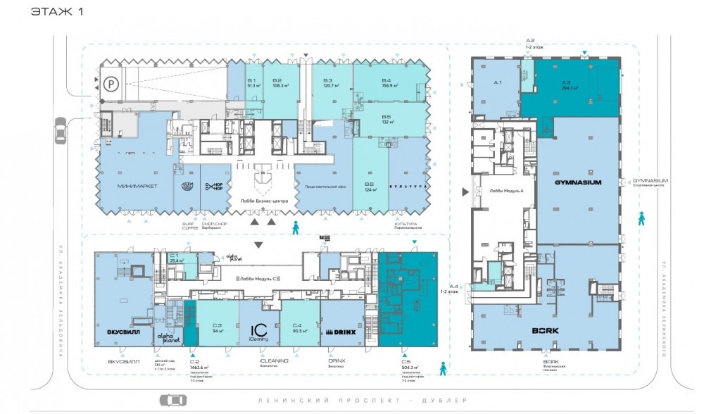
Этаж 1 - 2
Всего этажей в здании 6
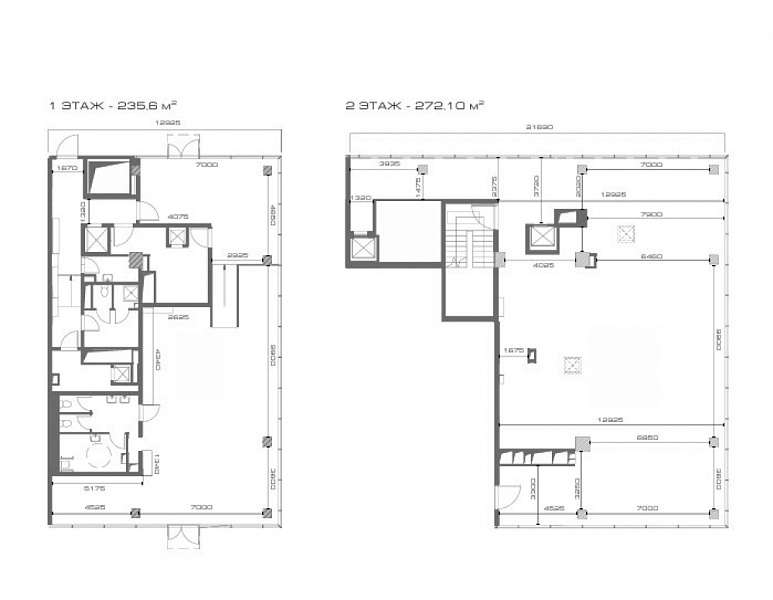
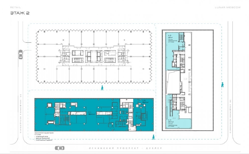
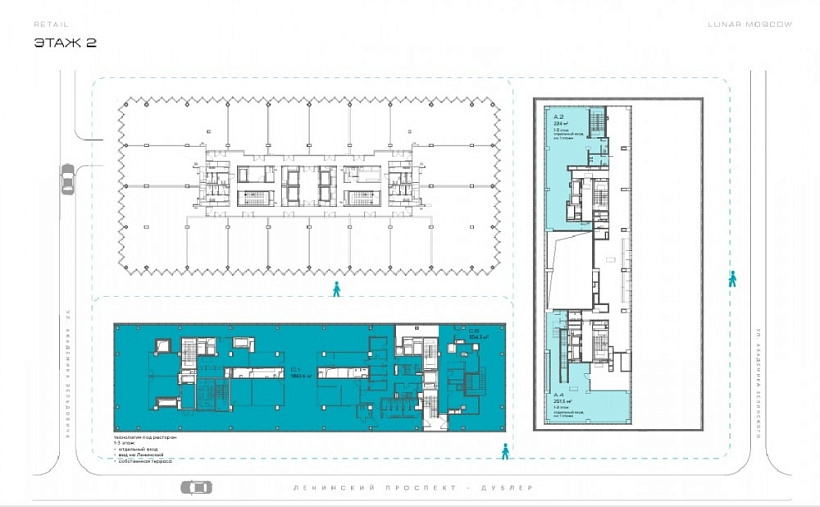
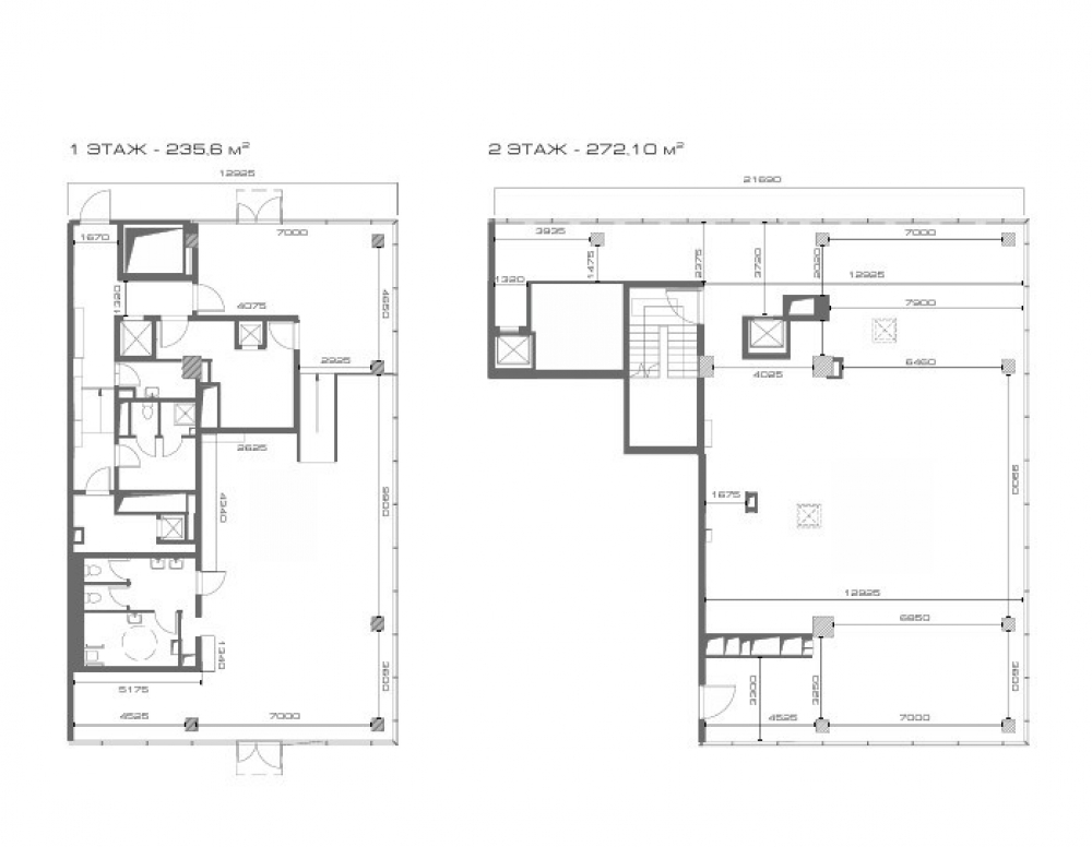
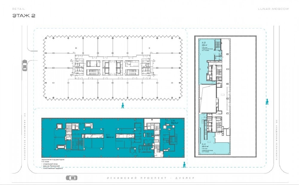
Метраж по этажам
Этаж: 1 - 235.6 м2
Этаж: 2 - 272.1 м2
Информация об объекте
Состояние блока качественная отделка
Планировка Открытая
Парковка арендную ставку входит 1 м/м. Подземная
Нюансы Отдельный вход
Торговая недвижимость
Линия домов 1 линия
Возможности Зона разгрузки,Ресторанная вытяжка,Витрины,Место для рекламы,Проходное место,Проездное место
Электр. мощность (кВт) 350
Коммерческие условия
Аренда в год за м2 70 000 ₽
Аренда в месяц 3 102 167 ₽
Схема сделки прямая аренда
Тип собственника Юридическое лицо

Описание объекта
Сдается в аренду торговое помещение с мокрой точкой на Ленинском проспекте !

1 этаж состояние - качественная отделка, 2 этаж - Shell&Core

Вентиляция/кондиционирование: центральная система
Преимущества:
2 отдельных входа
оснащено технологией для ресторана
кухонный лифт для удобной подачи блюд между этажами

Ставка аренды: 70.000 руб./м2 в год, включая НДС
эксплуатация оплачивается отдельно
арендные каникулы: по согласованию

Мокрая точка
Престижное расположение на первой линии Ленинского проспекта.
Класс «А» — комфорт для сотрудников и солидный имидж для клиентов
Современный архитектурный комплекс с развитой инфраструктурой.
Идеально для офиса компании, шоу-рума, представительского центра.

Всего 10 минут пешком до станции метро Ленинский проспект и МЦК (Площадь Гагарина, Воробьевы горы). Рядом выезды на ТТК (800 метров), Садовое кольцо и МКАД, что обеспечивает быструю связь с любой частью города.

В пешей доступности знаменитый Нескучный сад, Воробьевы горы с панорамным видом на город, Сад МГУ и Новодевичьи пруды.
Также, рядом находится Штаб-Квартира Яндекс, что будет являться несомненным преимуществом для Вашего бизнеса.
Транспортная доступность: 10 минут пешком до метро «Ленинский проспект» и МЦК «Площадь Гагарина». Удобные выезды на ТТК и крупные магистрали.
О бизнес-центре:
Отдельное шестиэтажное здание площадью 13 400 м²
Архитектурный проект — бюро «Цимайло Ляшенко и Партнеры»
Девелопер — Hutton Development
Современные инженерные системы: приточно-вытяжная вентиляция, центральное кондиционирование (чиллер-фанкойл), лифты ThyssenKrupp
Панорамное остекление с высоким уровнем естественного света и приватности
Парковка:
В арендную ставку включено 1 машиноместо на подземной парковке.

Нужна консультация по подбору торговых площадей для аренды?

Наши специалисты подберут для вас самые выгодные варианты для долгосрочного инвестирования,
помогут в сопровождении и сделки, проверят все юридические вопросы касаемо приобретения недвижимости.

* Нажимая на кнопку «Отправить», Вы даете согласие на обработку персональных данных в соответствии с Политикой конфиденциальности

Похожие объекты

Калужская (12 мин. 🚗)
Москва, улица Обручева, 11
ТЦ "улица Обручева, 11"
Тип: Торговое помещение
Площадь: 510.10 м2
1 275 000 в месяц
29 994 в год за м2
Позвонить Подробнее
Коломенская (8 мин. 🚶)
Москва, Нагатинская улица, 16к1с5
ОСЗ "Нагатинская ул, 16к1с5"
Тип: Торговое помещение
Площадь: 522.90 м2
Мощность:400 кВт
653 625 в месяц
15 000 в год за м2
Позвонить Подробнее
Полежаевская (5 мин. 🚶)
Закрытая продажа #62319
Тип: Торговое помещение
Площадь: 523.00 м2
Мощность:100 кВт
1 000 000 в месяц
22 945 в год за м2
Позвонить Подробнее
Новослободская (2 мин. 🚶)
Москва, Долгоруковская улица, 40
Жилое здание "Долгоруковская ул.,40"
Тип: Торговое помещение
Площадь: 489.80 м2
400 000 в месяц
9 800 в год за м2
Позвонить Подробнее
Строгино (10 мин. 🚶)
Москва, Улица Маршала Катукова, 23
ОСЗ «Маршала Катукова 23»
Тип: Торговое помещение
Площадь: 514.70 м2
Мощность:50 кВт
400 000 в месяц
9 326 в год за м2
Позвонить Подробнее
Университет (19 мин. 🚶)
Москва, Ленинский проспект, 82/2
Жилое здание "Ленинский проспект, 82/2"
Тип: Торговое помещение
Площадь: 550.30 м2
Мощность:60 кВт
2 950 000 в месяц
64 329 в год за м2
Позвонить Подробнее
Пражская (1 мин. 🚶)
Москва, Кировоградская улица, 24А
ТРК Пражский град
Тип: Торговое помещение
Площадь: 571.00 м2
1 384 675 в месяц
29 100 в год за м2
Позвонить Подробнее
Проспект Вернадского (9 мин. 🚶)
Москва, улица Удальцова, 79
Жилое здание "улица Удальцова, 79"
Тип: Торговое помещение
Площадь: 500.00 м2
Мощность:65 кВт
1 500 000 в месяц
36 000 в год за м2
Позвонить Подробнее
Университет (5 мин. 🚶)
Москва, Ломоносовский проспект, 18
Жилое здание "Ломоносовский просп., 18"
Тип: Торговое помещение
Площадь: 480.00 м2
Мощность:75 кВт
1 250 000 в месяц
31 250 в год за м2
Позвонить Подробнее
Братиславская (9 мин. 🚶)
Москва, Люблинская улица, 153
ТЦ "Люблю Молл"
Тип: Торговое помещение
Площадь: 530.00 м2
2 051 000 в месяц
46 438 в год за м2
Позвонить Подробнее
Братиславская (9 мин. 🚶)
Москва, Люблинская улица, 153
ТЦ "Люблю Молл"
Тип: Торговое помещение
Площадь: 530.00 м2
1 855 000 в месяц
42 000 в год за м2
Позвонить Подробнее
Тульская (7 мин. 🚶)
Москва, улица Серпуховский Вал, 5
Жилое здание "Серпуховский Вал, 5"
Тип: Торговое помещение
Площадь: 483.30 м2
1 500 000 в месяц
37 244 в год за м2
Позвонить Подробнее
Бульвар Рокоссовского (18 мин. 🚗)
Москва, Тагильская улица, 6/1
ЖК "Квартал Метроном"
Тип: Торговое помещение
Площадь: 69.70 м2
Мощность:15 кВт
400 000 в месяц
68 867 в год за м2
Позвонить Подробнее
Шаболовская (11 мин. 🚶)
Москва, Ленинский проспект, 15А
Бизнес-центр «Central Park Tower»
Тип: Торговое помещение
Площадь: 464.00 м2
Мощность:100 кВт
2 594 533 в месяц
67 100 в год за м2
Позвонить Подробнее
Красные Ворота (5 мин. 🚶)
Москва, Машкова улица, 13с1
ЖК «Современник»
Тип: Торговое помещение
Площадь: 109.80 м2
Мощность:27 кВт
700 000 в месяц
76 503 в год за м2
Позвонить Подробнее
Сокол Сокольники Соколиная Гора (1 мин. 🚶)
Москва, Ленинградский проспект, 71кГ
Жилой дом "Ленинградский пр-т 71кГ"
Тип: Торговое помещение
Площадь: 105.40 м2
650 000 в месяц
74 004 в год за м2
Позвонить Подробнее
Тургеневская (4 мин. 🚶)
Москва, Мясницкая улица, 13с20
Административное здание "Мясницкая улица, 13с20"
Тип: Торговое помещение
Площадь: 162.00 м2
Мощность:100 кВт
900 000 в месяц
66 667 в год за м2
Позвонить Подробнее
Парк Победы (9 мин. 🚶)
Закрытая продажа #63487
Тип: Торговое помещение
Площадь: 1014.40 м2
Мощность:100 кВт
6 086 400 в месяц
72 000 в год за м2
Позвонить Подробнее
Парк Победы (9 мин. 🚶)
Закрытая продажа #63485
Тип: Торговое помещение
Площадь: 604.40 м2
Мощность:65 кВт
3 626 400 в месяц
72 000 в год за м2
Позвонить Подробнее
Университет (20 мин. 🚶)
Москва, Ленинский проспект, 87
Жилое здание "Ленинский проспект, 87"
Тип: Торговое помещение
Площадь: 100.00 м2
Мощность:50 кВт
600 000 в месяц
72 000 в год за м2
Позвонить Подробнее
Новослободская (3 мин. 🚶)
Москва, Долгоруковская улица, 27с1
Долгоруковская улица, 27с1
Тип: Торговое помещение
Площадь: 94.10 м2
Мощность:15 кВт
509 708 в месяц
65 000 в год за м2
Позвонить Подробнее
Улица 1905 года (7 мин. 🚶)
Москва, улица Климашкина, 21
Жилой Дом на Климашкина
Тип: Торговое помещение
Площадь: 56.70 м2
Мощность:20 кВт
325 000 в месяц
68 783 в год за м2
Позвонить Подробнее
Международная (5 мин. 🚶)
Москва, Пресненская набережная, 10А
Бизнес-центр «Башня на набережной»
Тип: Торговое помещение
Площадь: 108.00 м2
Мощность:50 кВт
671 000 в месяц
74 556 в год за м2
Позвонить Подробнее
Кунцевская (10 мин. 🚶)
Москва, Рублёвское шоссе, 21
Бизнес-центр "Upside Кунцево"
Тип: Торговое помещение
Площадь: 303.07 м2
Мощность:150 кВт
1 635 480 в месяц
64 757 в год за м2
Позвонить Подробнее
Ленинский проспект (4 мин. 🚶)
Москва, улица Вавилова, вл11
БЦ STONE Ленинский
Тип: Торговое помещение
Площадь: 931.70 м2
Мощность:20 кВт
4 619 680 в месяц
59 500 в год за м2
Позвонить Подробнее
Ленинский проспект (10 мин. 🚶)
Москва, Ленинский проспект, 38
Бизнес-центр «Lunar (Лунар)»
Тип: Торговое помещение
Площадь: 251.50 м2
Мощность:23 кВт
1 047 917 в месяц
50 000 в год за м2
Позвонить Подробнее
Ленинский проспект (10 мин. 🚶)
Москва, Ленинский проспект, 38
Бизнес-центр «Lunar (Лунар)»
Тип: Торговое помещение
Площадь: 224.00 м2
Мощность:23 кВт
933 333 в месяц
50 000 в год за м2
Позвонить Подробнее
Ленинский проспект (10 мин. 🚶)
Москва, Ленинский проспект, 38
Бизнес-центр «Lunar (Лунар)»
Тип: Торговое помещение
Площадь: 90.40 м2
Мощность:15 кВт
753 333 в месяц
100 000 в год за м2
Позвонить Подробнее
Ленинский проспект (10 мин. 🚶)
Москва, Ленинский проспект, 38
Бизнес-центр «Lunar (Лунар)»
Тип: Торговое помещение
Площадь: 1463.60 м2
Мощность:450 кВт
7 318 000 в месяц
60 000 в год за м2
Позвонить Подробнее
Ленинский проспект (10 мин. 🚶)
Москва, Ленинский проспект, 38
Бизнес-центр «Lunar (Лунар)»
Тип: Торговое помещение
Площадь: 156.90 м2
Мощность:56 кВт
799 994 в месяц
61 185 в год за м2
Позвонить Подробнее
Ленинский проспект (10 мин. 🚶)
Москва, Ленинский проспект, 38
Бизнес-центр «Lunar (Лунар)»
Тип: Торговое помещение
Площадь: 94.00 м2
700 000 в месяц
89 362 в год за м2
Позвонить Подробнее