Продажа индустриальной недвижимости Здание "Лихоборская набережная, 11с16"

Продажа индустриальной недвижимости Здание
Москва, Лихоборская набережная, 11с16
Позвоните по телефону +7 495 230-28-26, либо оставьте заявку на просмотр прямо сейчас и узнайте условия специального предложения по объекту.
загрузка карты...
Общие
ID 62251
Тип сделки Продажа
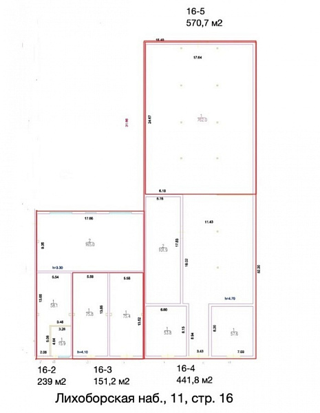
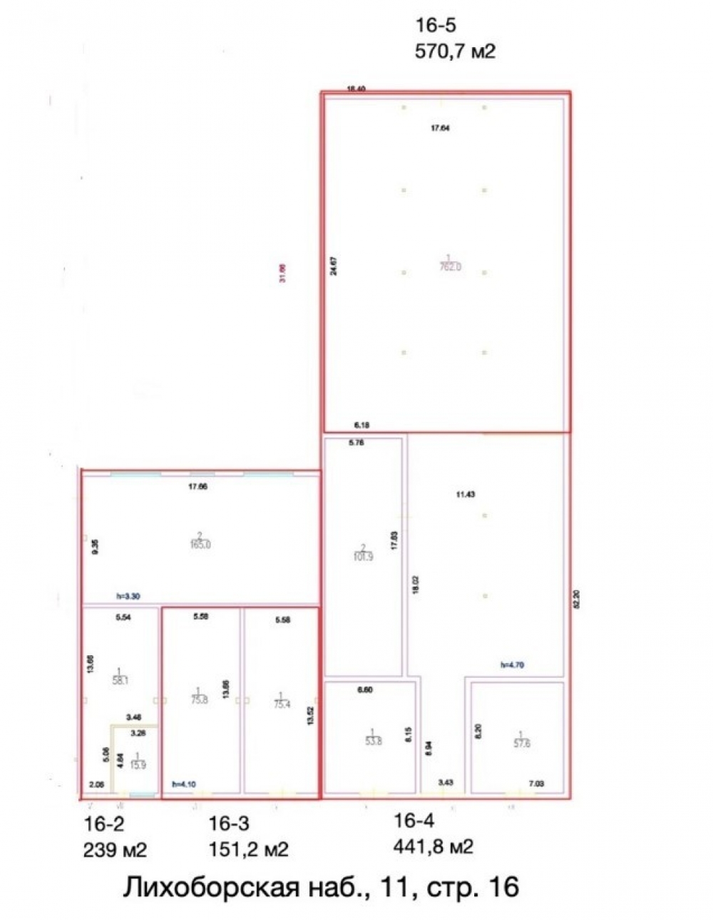
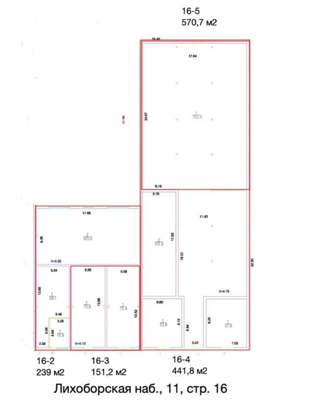
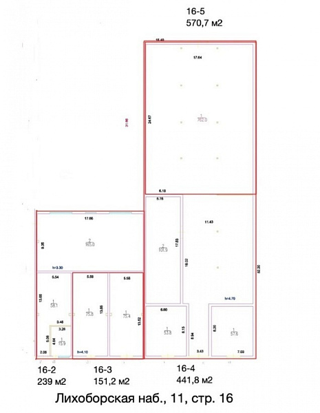
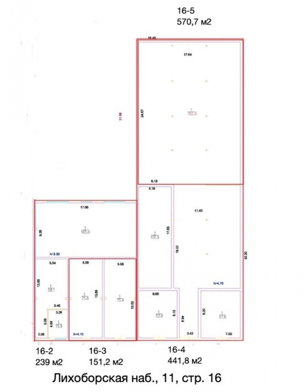
Площадь 239.00
Площадь всего 809.70
Тип объекта Производственное здание
Всего этажей в здании 1
Информация об объекте
Состояние объекта рабочее
Состояние блока требуется косметический ремонт
Перекрытия Железобетонные
Коммерческие условия
За все 35 850 000 ₽
За м 2 150 000 ₽
Тип собственника Юридическое лицо
Имущественный комплекс
Электрическая мощность 40
Вода Да
Канализация Да
Наличие газа или возможность подключения Нет
Коммуникации комплекса
Тип комплекса Офисно-складской
Температурный режим склада Тёплый склад
Огороженная территория Да
Наличие ж\д путей Нет
Пропускная система Да

Описание объекта
Предлагается в продажу помещение с отдельным входом в нежилом кирпичном здании на Лихоборской набережной СЗАО г. Москвы площадью 239 кв.м.по адресу: Лихоборская набережная, 11с16-2, парковка по периметру на 2 машин, мощность 40 кВт с возможностью увеличения, отопление, ХВС, ГВС, канализация. Прямая продажа, возможность приобретения в рассрочку.

Отличная транспортная доступность: 15-18 мин пешком от м.Коптево, м.Лихоборская, м.Моссельмаш, на авто не далеко (МСД, СВХ, СЗХ, Ленинградское ш, Дмитровское ш).
Управляющая компания обеспечивает охрану, уборку территории и вывоз мусора.

Идеально подойдет для производства, хранения и другого бизнеса!

Эксплутационные платежи 210р за кв.м.

Нужна консультация ?

Наши специалисты подберут для вас самые выгодные варианты для долгосрочного инвестирования,
помогут в сопровождении и сделки, проверят все юридические вопросы касаемо приобретения недвижимости.

* Нажимая на кнопку «Отправить», Вы даете согласие на обработку персональных данных в соответствии с Политикой конфиденциальности

Похожие объекты

Щёлковская (90 мин. 🚗)
Московская область, Щёлково, Фабричная улица, 1с4
Административное здание "Фабричная 1с4"
Тип: Индустриальная недвижимость
Площадь: 669.20 м2
35 400 000 за все
52 899 за м2
Позвонить Подробнее
Верхние Лихоборы Лихоборы (20 мин. 🚗)
Москва, Лихоборская набережная, 11с23
Здание "Лихоборская набережная, 11с23"
Тип: Индустриальная недвижимость
Площадь: 2046.60 м2
245 600 000 за все
120 004 за м2
Позвонить Подробнее
Верхние Лихоборы Лихоборы (20 мин. 🚗)
Москва, Лихоборская набережная, 11с17
Здание "Лихоборская набережная, 11с17"
Тип: Индустриальная недвижимость
Площадь: 1282.50 м2
191 000 000 за все
148 928 за м2
Позвонить Подробнее
Верхние Лихоборы Лихоборы (20 мин. 🚗)
Москва, Лихоборская набережная, 11с18
Здание "Лихоборская набережная, 11с18"
Тип: Индустриальная недвижимость
Площадь: 493.70 м2
64 200 000 за все
130 038 за м2
Позвонить Подробнее
Верхние Лихоборы Лихоборы (20 мин. 🚗)
Москва, Лихоборская набережная, 11с22
Здание "Лихоборская набережная, 11с22"
Тип: Индустриальная недвижимость
Площадь: 4699.00 м2
563 600 000 за все
119 940 за м2
Позвонить Подробнее
Верхние Лихоборы Лихоборы (20 мин. 🚗)
Москва, Лихоборская набережная, 11с16
Здание "Лихоборская набережная, 11с16"
Тип: Индустриальная недвижимость
Площадь: 570.70 м2
85 605 000 за все
150 000 за м2
Позвонить Подробнее
Верхние Лихоборы Лихоборы (20 мин. 🚗)
Москва, Лихоборская набережная, 11с16
Здание "Лихоборская набережная, 11с16"
Тип: Индустриальная недвижимость
Площадь: 441.80 м2
66 270 000 за все
150 000 за м2
Позвонить Подробнее
Верхние Лихоборы Лихоборы (20 мин. 🚗)
Москва, Лихоборская набережная, 11с16
Здание "Лихоборская набережная, 11с16"
Тип: Индустриальная недвижимость
Площадь: 151.20 м2
22 680 000 за все
150 000 за м2
Позвонить Подробнее
Верхние Лихоборы Лихоборы (20 мин. 🚗)
Москва, Лихоборская набережная, 11с25
Здание " Лихоборская набережная, 11с25"
Тип: Индустриальная недвижимость
Площадь: 1339.00 м2
160 700 000 за все
120 015 за м2
Позвонить Подробнее