Аренда торгового помещения Жилое здание "Столешников переулок, 9с3"

Аренда торгового помещения Жилое здание Аренда торгового помещения Жилое здание Аренда торгового помещения Жилое здание
Аренда торгового помещения Жилое здание Аренда торгового помещения Жилое здание Аренда торгового помещения Жилое здание
Москва, Столешников переулок, 9с3
Позвоните по телефону +7 495 230-28-26, либо оставьте заявку на просмотр прямо сейчас и узнайте условия специального предложения по объекту.
загрузка карты...
Аренда в год за м2 80 184 ₽
Аренда в месяц 1 450 000 ₽
Схема сделки прямая аренда
Первушина Марина Алексеевна

Объект ведет консультант:

Первушина Марина Алексеевна

Общие
ID 62283
Тип сделки Аренда
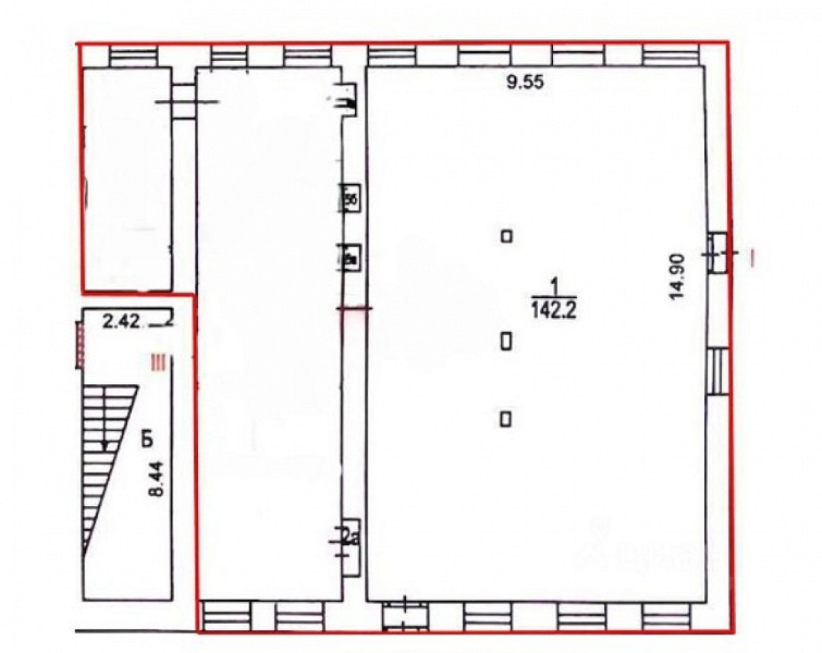
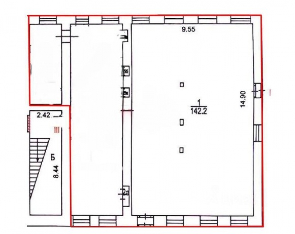
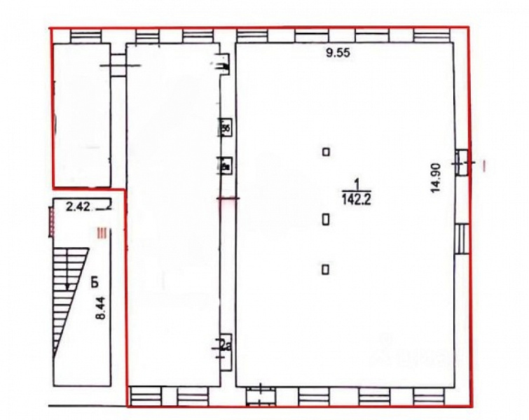
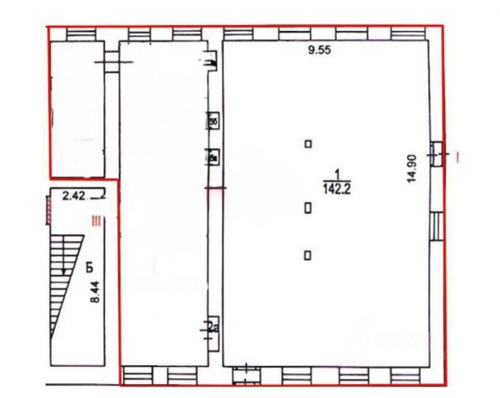
Площадь 217.00
Площадь всего 2605.00
Тип объекта Жилое здание
Этаж 1
Всего этажей в здании 3
Метраж по этажам
Информация об объекте
Состояние объекта рабочее
Состояние блока качественная отделка
Планировка Залы и кабинеты
Перекрытия Железобетонные
Нюансы Отдельный вход
Торговая недвижимость
Линия домов 1 линия
Возможности Витрины,Место для рекламы,Проходное место,Проездное место
Коммерческие условия
Аренда в год за м2 80 184 ₽
Аренда в месяц 1 450 000 ₽
Схема сделки прямая аренда
Тип собственника Юридическое лицо

Описание объекта
Предлагаем к аренде помещение свободного назначения на Столешников переулке. До метро Театральная/Кузнецкий мост 8-10 минут пешком.
Первый этаж, вход со двора в арку. Зальная планировка.  Здание - памятник. Сверху апартаменты.
Помещение освобождается по согласованию.
Подойдет под доп.образование, офис, шоурум, йогу.

Нужна консультация по подбору торговых площадей для аренды?

Наши специалисты подберут для вас самые выгодные варианты для долгосрочного инвестирования,
помогут в сопровождении и сделки, проверят все юридические вопросы касаемо приобретения недвижимости.

* Нажимая на кнопку «Отправить», Вы даете согласие на обработку персональных данных в соответствии с Политикой конфиденциальности

Похожие объекты

Алма-Атинская (1 мин. 🚶)
Москва, Братеевская улица, 16к1
Жилое здание "Братеевская улица, 16к1"
Тип: Торговое помещение
Площадь: 205.80 м2
270 000 в месяц
15 743 в год за м2
Позвонить Подробнее
Тверская (5 мин. 🚶)
Москва, Тверская улица, 15
Жилое здание "Тверская улица д. 15"
Тип: Торговое помещение
Площадь: 232.00 м2
Мощность:100 кВт
2 000 000 в месяц
103 448 в год за м2
Позвонить Подробнее
Автозаводская (3 мин. 🚶)
Москва, Улица Мастеркова, 4
Торгово-офисный центр "Панорама"
Тип: Торговое помещение
Площадь: 200.00 м2
Мощность:110 кВт
1 000 000 в месяц
60 000 в год за м2
Позвонить Подробнее
Смоленская (Филевская) Смоленская (Арбатско-Покровская) (5 мин. 🚶)
Москва, улица Арбат, 32
Жилое здание "Арбат, 32"
Тип: Торговое помещение
Площадь: 236.50 м2
Мощность:120 кВт
2 626 000 в месяц
133 243 в год за м2
Позвонить Подробнее
Фонвизинская (6 мин. 🚶)
Москва, улица Академика Комарова, 9
ОСЗ "ул. Академика Комарова, д.9"
Тип: Торговое помещение
Площадь: 207.00 м2
Мощность:95 кВт
372 600 в месяц
21 600 в год за м2
Позвонить Подробнее
Зорге (9 мин. 🚶)
Москва, Северный административный округ, Хорошёвский район, жилой комплекс Зорге 9
ЖК "Зорге 9"
Тип: Торговое помещение
Площадь: 217.70 м2
Мощность:35 кВт
900 475 в месяц
49 636 в год за м2
Позвонить Подробнее
Водный стадион (3 мин. 🚶)
Москва, Головинское шоссе, 3
БЦ "Флагман"
Тип: Торговое помещение
Площадь: 218.70 м2
Мощность:60 кВт
1 100 000 в месяц
60 357 в год за м2
Позвонить Подробнее
Маяковская (2 мин. 🚶)
Москва, 1-я Тверская-Ямская улица, 2с1
Ритейл на Маяковской
Тип: Торговое помещение
Площадь: 218.90 м2
Мощность:70 кВт
2 500 000 в месяц
137 049 в год за м2
Позвонить Подробнее
Белорусская (7 мин. 🚶)
Москва, 2-я Брестская улица, 39с2
2-я Брестская улица, 39с2
Тип: Торговое помещение
Площадь: 218.90 м2
Мощность:150 кВт
1 590 000 в месяц
87 163 в год за м2
Позвонить Подробнее
Полежаевская (5 мин. 🚶)
Закрытая продажа #62339
Тип: Торговое помещение
Площадь: 200.00 м2
Мощность:40 кВт
800 000 в месяц
48 000 в год за м2
Позвонить Подробнее
Ховрино (25 мин. 🚗)
Москва, Ленинградское шоссе, 228к6
ЖК «1-й Ленинградский», к. 1
Тип: Торговое помещение
Площадь: 228.00 м2
Мощность:45 кВт
570 000 в месяц
30 000 в год за м2
Позвонить Подробнее
Смоленская (Филевская) Смоленская (Арбатско-Покровская) (5 мин. 🚶)
Москва, улица Арбат, 30/3с2
Жилое здание "улица Арбат, 30/3с2"
Тип: Торговое помещение
Площадь: 212.90 м2
568 000 в месяц
32 015 в год за м2
Позвонить Подробнее
Менделеевская (3 мин. 🚶)
Москва, Сущёвская улица, 27с1
Бизнес-центр «Салют»
Тип: Торговое помещение
Площадь: 248.80 м2
Мощность:10 кВт
1 555 000 в месяц
75 000 в год за м2
Позвонить Подробнее
Новослободская (8 мин. 🚶)
Москва, улица Чаянова, 10с1
Жилое здание "Чаянова, 10с1"
Тип: Торговое помещение
Площадь: 33.70 м2
Мощность:15 кВт
220 000 в месяц
78 338 в год за м2
Позвонить Подробнее
Динамо (10 мин. 🚶)
Москва, Ленинградский проспект, 34А
ЖК "Alcon Tower (Алкон Тауэр)"
Тип: Торговое помещение
Площадь: 157.00 м2
Мощность:120 кВт
1 083 300 в месяц
82 800 в год за м2
Позвонить Подробнее
Ростокино (5 мин. 🚶)
Москва, Проспект Мира, 222
МФК "Мираполис"
Тип: Торговое помещение
Площадь: 107.40 м2
751 800 в месяц
84 000 в год за м2
Позвонить Подробнее
Зорге (9 мин. 🚶)
Москва, Северный административный округ, Хорошёвский район, жилой комплекс Зорге 9
ЖК "Зорге 9"
Тип: Торговое помещение
Площадь: 76.20 м2
Мощность:15 кВт
463 563 в месяц
73 002 в год за м2
Позвонить Подробнее
Зорге (9 мин. 🚶)
Москва, Северный административный округ, Хорошёвский район, жилой комплекс Зорге 9
ЖК "Зорге 9"
Тип: Торговое помещение
Площадь: 82.80 м2
Мощность:15 кВт
538 250 в месяц
78 007 в год за м2
Позвонить Подробнее
Полежаевская (12 мин. 🚶)
Москва, улица Зорге, 9Ак1
ОСЗ в ЖК "Зорге 9"
Тип: Торговое помещение
Площадь: 106.90 м2
Мощность:40 кВт
757 208 в месяц
85 000 в год за м2
Позвонить Подробнее
Зорге (9 мин. 🚶)
Москва, Северный административный округ, Хорошёвский район, жилой комплекс Зорге 9
ЖК "Зорге 9"
Тип: Торговое помещение
Площадь: 174.10 м2
Мощность:65 кВт
1 160 951 в месяц
80 020 в год за м2
Позвонить Подробнее
Селигерская (6 мин. 🚶)
Москва, Селигерская улица, 18к4
Жилое здание "Селигерская улица, 18к4"
Тип: Торговое помещение
Площадь: 34.00 м2
Мощность:35 кВт
230 000 в месяц
81 176 в год за м2
Позвонить Подробнее
Волгоградский проспект (8 мин. 🚶)
Москва, Автомобильный проезд, 4
Апарт - комплекс NICE LОFT
Тип: Торговое помещение
Площадь: 30.50 м2
Мощность:8 кВт
200 000 в месяц
78 689 в год за м2
Позвонить Подробнее
Белорусская (7 мин. 🚶)
Москва, 2-я Брестская улица, 39с2
2-я Брестская улица, 39с2
Тип: Торговое помещение
Площадь: 218.90 м2
Мощность:150 кВт
1 590 000 в месяц
87 163 в год за м2
Позвонить Подробнее
Фрунзенская (10 мин. 🚶)
Москва, улица Ефремова, 10с1
ЖК "САДОВЫЕ КВАРТАЛЫ"
Тип: Торговое помещение
Площадь: 750.00 м2
Мощность:200 кВт
4 687 500 в месяц
75 000 в год за м2
Позвонить Подробнее