Продажа офиса Жилое здание "улица Вересаева, 6"

Продажа офиса Жилое здание
Москва, улица Вересаева, 6
Позвоните по телефону +7 495 230-28-26, либо оставьте заявку на просмотр прямо сейчас и узнайте условия специального предложения по объекту.
загрузка карты...
Первушина Марина Алексеевна

Объект ведет консультант:

Первушина Марина Алексеевна

Общие
ID 62698
Тип сделки Продажа
Площадь 1600.00
Площадь всего 32611.00
Тип объекта Жилое здание
Этаж -1 - 2
Всего этажей в здании 15
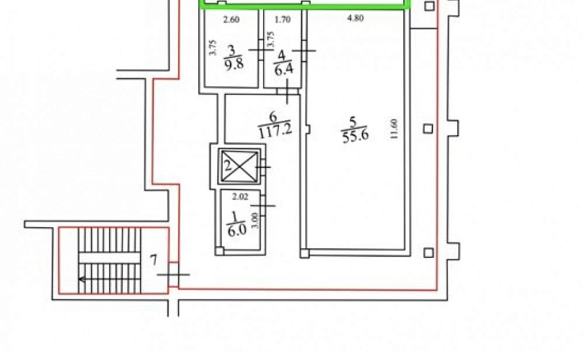
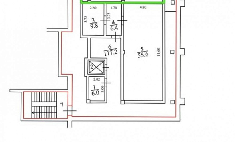
Метраж по этажам
Этаж: -1 - 200м2 м2
Этаж: 1 - 460м2 м2
Этаж: 2 - 940м2 м2
Информация об объекте
Состояние блока требуется косметический ремонт
Планировка Смешанная
Нюансы Отдельный вход,ПСН
Торговая недвижимость
Линия домов 1 линия
Возможности Витрины,Место для рекламы,Проходное место,Проездное место
Электр. мощность (кВт) 150
Коммерческие условия
За все 256 000 000 ₽
За м 2 160 000 ₽
Тип собственника Юридическое лицо

Описание объекта
Предлагаем в продажу помещение общей площадью 1 600 м2 в Можайском районе. До м. Кунцевская/Давыдково. Административные нежилые помещения находятся на -1,1 и 2 этажах 15 этажного многоквартирного элитного жилого дома, построенного в 1994 году. Объект находится на огороженной охраняемой территории.
Первый этаж - помещения кабинетного типа с потолком 3,7м. Возможно создать места для хранения на антресольных полках. Помещения можно объединить в блоки, при необходимости снести ненесущие перегородки. Есть вход с улицы.
Второй этаж - 20 помещений кабинетного типа с потолком 2,7 м с балконами и выходами на эксплуатируемую кровлю. Помещения можно объединить в блоки, при необходимости снести ненесущие перегородки.
В подвале пристройки имеются несколько обособленных зон, в том числе 2 защищенных (банковское хранилище, депозитарий) с доступом по лестнице и на лифте.

Нужна консультация по покупке или продаже офиса?

Наши специалисты подберут для вас самые выгодные варианты для долгосрочного инвестирования,
помогут в сопровождении и сделки, проверят все юридические вопросы касаемо приобретения недвижимости.

* Нажимая на кнопку «Отправить», Вы даете согласие на обработку персональных данных в соответствии с Политикой конфиденциальности

Похожие объекты

Нижегородская (10 мин. 🚶)
Москва, шоссе Фрезер, 19с2
Level work (Левел Ворк) Нижегородская
Тип: Офисы
Площадь: 1573.80 м2
Отделка:Shell and Core
588 539 216 за все
373 961 за м2
Позвонить Подробнее
ЦСКА (6 мин. 🚶)
Москва, Ходынский бульвар, 4/1
БЦ "AIR"
Тип: Офисы
Площадь: 1518.90 м2
Отделка:Shell and Core
905 525 890 за все
596 172 за м2
Позвонить Подробнее
Строгино (14 мин. 🚗)
Москва, МКАД, 64-й километр, 1
Бизнес парк "«Rublevo Business Park (Рублево Бизнес Парк)»"
Тип: Офисы
Площадь: 1494.82 м2
Отделка:Shell and Core
513 483 893 за все
343 509 за м2
Позвонить Подробнее
Сухаревская (9 мин. 🚶)
Москва, Мещанская улица, 7с4
Офисное здание «Мещанская 7 с4»
Тип: Офисы
Площадь: 1636.00 м2
461 000 000 за все
281 785 за м2
Позвонить Подробнее
Тульская (3 мин. 🚶)
Москва, Холодильный переулок, 3к1
БЦ "Башня Рябов"
Тип: Офисы
Площадь: 1491.70 м2
Отделка:помещение без отделки
753 308 500 за все
505 000 за м2
Позвонить Подробнее
Владыкино (4 мин. 🚗)
Москва, Берёзовая аллея, 7Б
ОСЗ "Берёзовая аллея 7Б"
Тип: Офисы
Площадь: 1750.00 м2
305 000 000 за все
174 286 за м2
Позвонить Подробнее
(7 мин. 🚶)
Москва, улица Нижние Мнёвники, 50с1
Бизнес-центр "Stone Мнёвники"
Тип: Офисы
Площадь: 1626.00 м2
Отделка:Shell and Core
801 618 000 за все
493 000 за м2
Позвонить Подробнее
Дмитровская (3 мин. 🚶)
Москва, Дмитровский проезд, вл1Г
БЦ "STONE Дмитровская"
Тип: Офисы
Площадь: 1611.10 м2
Отделка:Shell and Core
745 939 300 за все
463 000 за м2
Позвонить Подробнее
Авиамоторная (15 мин. 🚶)
Москва, улица Золоторожский Вал, 11
Бизнес-центр "STONE Римский"
Тип: Офисы
Площадь: 1631.00 м2
Отделка:Shell and Core
717 640 000 за все
440 000 за м2
Позвонить Подробнее
Савёловская (19 мин. 🚶)
Москва, улица Двинцев, 3
БЦ "STONE Савёловская"
Тип: Офисы
Площадь: 1530.70 м2
Отделка:Shell and Core
826 578 000 за все
540 000 за м2
Позвонить Подробнее
Хорошёво (7 мин. 🚶)
Москва, 3-й Силикатный проезд, вл10Ас1
БЦ "Jois"
Тип: Офисы
Площадь: 1735.30 м2
Отделка:Shell and Core
760 061 400 за все
438 000 за м2
Позвонить Подробнее
Окружная (10 мин. 🚗)
Москва, Алтуфьевское шоссе, 35к1
МФК "HALO (ГАЛО)"
Тип: Офисы
Площадь: 1537.30 м2
Отделка:Shell and Core
235 206 906 за все
153 000 за м2
Позвонить Подробнее
Марьина Роща (9 мин. 🚶)
Москва, 2-я Ямская улица, 9
UPSIDE (Апсайд) Ямская
Тип: Офисы
Площадь: 447.80 м2
Отделка:помещение без отделки
251 657 260 за все
561 986 за м2
Позвонить Подробнее
Красносельская (5 мин. 🚶)
Москва, Верхняя Красносельская улица, 17Ас1Б
БЦ "Верхняя Красносельская улица, 17Ас1Б"
Тип: Офисы
Площадь: 712.80 м2
Отделка:выполнена стандартная офисная отделка
256 000 000 за все
359 147 за м2
Позвонить Подробнее
Автозаводская (8 мин. 🚶)
Москва, улица Ленинская Слобода, 19с6
Бизнес-центр «Омега Плаза 6»
Тип: Офисы
Площадь: 1038.60 м2
Отделка:качественная отделка
238 981 860 за все
230 100 за м2
Позвонить Подробнее
Технопарк (3 мин. 🚶)
Москва, Проектируемый проезд № 4062, 6с2
Бизнес-центр «Порт Плаза»
Тип: Офисы
Площадь: 903.70 м2
Отделка:отделка арендатора
260 175 230 за все
287 900 за м2
Позвонить Подробнее
Волгоградский проспект (8 мин. 🚶)
Москва, Сосинская улица, 43
ЖК "CHAMPINE"
Тип: Офисы
Площадь: 574.50 м2
Отделка:Shell and Core
231 000 000 за все
402 089 за м2
Позвонить Подробнее
Люблино (12 мин. 🚶)
Москва, Армавирская улица, 12
Офисное здание "Армавирская 12"
Тип: Офисы
Площадь: 1331.00 м2
265 000 000 за все
199 098 за м2
Позвонить Подробнее
Дмитровская (7 мин. 🚗)
Москва, 4-я улица 8 Марта, 6А
Бизнес-центр «Аэропорт»
Тип: Офисы
Площадь: 890.00 м2
Отделка:выполнена стандартная офисная отделка
231 400 000 за все
260 000 за м2
Позвонить Подробнее
Ленинский проспект (4 мин. 🚶)
Москва, улица Вавилова, вл11
БЦ STONE Ленинский
Тип: Офисы
Площадь: 389.10 м2
Отделка:Shell and Core
239 296 500 за все
615 000 за м2
Позвонить Подробнее
(11 мин. 🚶)
Москва, Гжатская улица, 2
Жилое здание "Гжатская, 2"
Тип: Офисы
Площадь: 576.00 м2
Отделка:качественная отделка
242 000 000 за все
420 139 за м2
Позвонить Подробнее
Калужская (12 мин. 🚶)
Москва, Научный проезд, 19
Бизнес-центр «9 Акров»
Тип: Офисы
Площадь: 1080.00 м2
Отделка:выполнена стандартная офисная отделка
275 000 000 за все
254 630 за м2
Позвонить Подробнее
Павелецкая (12 мин. 🚶)
Москва, Летниковская улица, 10с2
Бизнес-центр «Святогор-2»
Тип: Офисы
Площадь: 827.60 м2
Отделка:выполнена стандартная офисная отделка
268 970 000 за все
325 000 за м2
Позвонить Подробнее
Павелецкая (12 мин. 🚶)
Москва, Летниковская улица, 10с2
Бизнес-центр «Святогор-2»
Тип: Офисы
Площадь: 808.80 м2
Отделка:выполнена стандартная офисная отделка
258 816 000 за все
320 000 за м2
Позвонить Подробнее
Кунцевская (18 мин. 🚗)
Москва, улица Петра Алексеева, 12с1
КутузовGRAD II (КутузовГрад II) МАНУФАКТУРА XIX
Тип: Офисы
Площадь: 56.30 м2
Отделка:Shell and Core
25 640 000 за все
455 417 за м2
Позвонить Подробнее
Кунцевская (18 мин. 🚗)
Москва, улица Петра Алексеева, 12с1
КутузовGRAD II (КутузовГрад II) МАНУФАКТУРА XIX
Тип: Офисы
Площадь: 73.40 м2
Отделка:Shell and Core
31 280 000 за все
426 158 за м2
Позвонить Подробнее
Кунцевская (18 мин. 🚗)
Москва, улица Петра Алексеева, 12с1
КутузовGRAD II (КутузовГрад II) МАНУФАКТУРА XIX
Тип: Офисы
Площадь: 81.20 м2
Отделка:Shell and Core
35 960 000 за все
442 857 за м2
Позвонить Подробнее
Кунцевская (18 мин. 🚗)
Москва, улица Петра Алексеева, 12с1
КутузовGRAD II (КутузовГрад II) МАНУФАКТУРА XIX
Тип: Офисы
Площадь: 86.70 м2
Отделка:Shell and Core
37 360 000 за все
430 911 за м2
Позвонить Подробнее
Кунцевская (18 мин. 🚗)
Москва, улица Петра Алексеева, 12с1
КутузовGRAD II (КутузовГрад II) МАНУФАКТУРА XIX
Тип: Офисы
Площадь: 123.40 м2
Отделка:Shell and Core
52 080 000 за все
422 042 за м2
Позвонить Подробнее
Кунцевская (18 мин. 🚗)
Москва, улица Петра Алексеева, 12с1
КутузовGRAD II (КутузовГрад II) МАНУФАКТУРА XIX
Тип: Офисы
Площадь: 142.70 м2
Отделка:Shell and Core
59 710 000 за все
418 430 за м2
Позвонить Подробнее
Кунцевская (18 мин. 🚗)
Москва, улица Петра Алексеева, 12с1
КутузовGRAD II (КутузовГрад II) МАНУФАКТУРА XIX
Тип: Офисы
Площадь: 158.30 м2
Отделка:Shell and Core
64 580 000 за все
407 960 за м2
Позвонить Подробнее
Кунцевская (10 мин. 🚶)
Москва, Рублёвское шоссе, 21
Бизнес-центр "Upside Кунцево"
Тип: Офисы
Площадь: 226.70 м2
Отделка:Shell and Core
174 697 460 за все
770 611 за м2
Позвонить Подробнее
Кунцевская (10 мин. 🚶)
Москва, Рублёвское шоссе, 21
Бизнес-центр "Upside Кунцево"
Тип: Офисы
Площадь: 216.10 м2
Отделка:Shell and Core
139 708 650 за все
646 500 за м2
Позвонить Подробнее
Кунцевская (10 мин. 🚶)
Москва, Рублёвское шоссе, 21
Бизнес-центр "Upside Кунцево"
Тип: Офисы
Площадь: 927.10 м2
Отделка:Shell and Core
607 528 630 за все
655 300 за м2
Позвонить Подробнее
Кунцевская (10 мин. 🚶)
Москва, Рублёвское шоссе, 21
Бизнес-центр "Upside Кунцево"
Тип: Офисы
Площадь: 85.60 м2
Отделка:Shell and Core
54 963 760 за все
642 100 за м2
Позвонить Подробнее
Кунцевская (10 мин. 🚶)
Москва, улица Вересаева, 6
Жилое здание "улица Вересаева, 6"
Тип: Офисы
Площадь: 3180.00 м2
Отделка:требуется косметический ремонт
508 800 000 за все
160 000 за м2
Позвонить Подробнее