Аренда офиса Офисный центр "Замоскворечье"

Аренда офиса Офисный центр Аренда офиса Офисный центр Аренда офиса Офисный центр
Аренда офиса Офисный центр Аренда офиса Офисный центр Аренда офиса Офисный центр
Москва, Большая Татарская улица, 35с3
Позвоните по телефону +7 495 230-28-26, либо оставьте заявку на просмотр прямо сейчас и узнайте условия специального предложения по объекту.
загрузка карты...
Аренда в год за м2 45 000 ₽
Аренда в месяц 675 000 ₽
Схема сделки прямая аренда
Первушина Марина Алексеевна

Объект ведет консультант:

Первушина Марина Алексеевна

Общие
ID 62757
Тип сделки Аренда
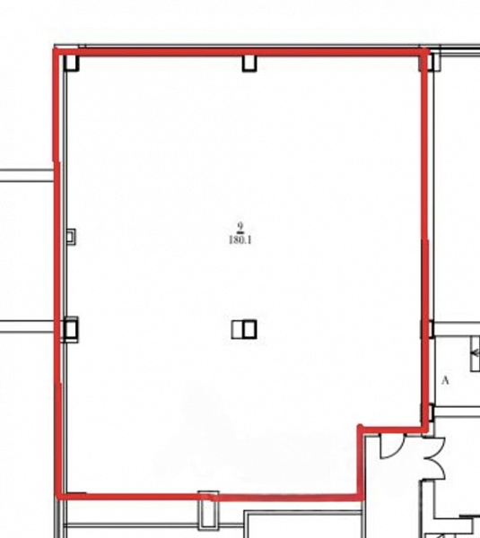
Площадь 180.00
Площадь всего 21592.00
Тип объекта Офисное здание
Класс здания B
Этаж 7
Всего этажей в здании 12
Метраж по этажам
Информация об объекте
Состояние объекта рабочее
Состояние блока выполнена стандартная офисная отделка
Планировка Открытая
Коммуникации Система пожаротушения,Система видеонаблюдения,Интернет,Телефония
Перекрытия Железобетонные
Отопление Центральное
Вентиляция и кондиционирование Современная система вентиляции и кондиционирования
КПП Гостевой пропуск
Коммерческие условия
Аренда в год за м2 45 000 ₽
Аренда в месяц 675 000 ₽
Схема сделки прямая аренда
Тип собственника Юридическое лицо

Описание объекта
Предлагаем в аренду офис в бизнес-центре класса В в Замоскворечье. До м.Новокузнецкая 10 минут пешком.
Офисный блок расположен на 7-м этаже, ссвободная планировка, стандартная офисная отделка. Установлена приточная вентиляция и кондиционирование. Потолки 3,2м.
Офис сдается без мебели.
В ставку включена эксплуатация, к/у оплачивается отдельно.
За дополнительную плату предоставляются места на парковке.
Офис свободен к заезду.

Нужна консультация по подбору помещения под офис?

Наши специалисты подберут для вас самые выгодные варианты для долгосрочного инвестирования,
помогут в сопровождении и сделки, проверят все юридические вопросы касаемо приобретения недвижимости.

* Нажимая на кнопку «Отправить», Вы даете согласие на обработку персональных данных в соответствии с Политикой конфиденциальности

Похожие объекты

Китай-город (7 мин. 🚶)
Москва, Подкопаевский переулок, 4
Бизнес-центр «Ивановская горка»
Тип: Офисы
Площадь: 170.00 м2
Отделка:качественная отделка
1 119 167 в месяц
79 000 в год за м2
Позвонить Подробнее
Полянка (5 мин. 🚶)
Москва, улица Большая Якиманка, 17/2с1
Бизнес центр "улица Большая Якиманка, 17/2с1"
Тип: Офисы
Площадь: 184.10 м2
Отделка:качественная отделка
767 083 в месяц
50 000 в год за м2
Позвонить Подробнее
Кузнецкий Мост (5 мин. 🚶)
Москва, Улица Кузнецкий Мост, 7
Особняк «Кузнецкий Мост 7»
Тип: Офисы
Площадь: 175.70 м2
Отделка:выполнена стандартная офисная отделка
550 000 в месяц
37 564 в год за м2
Позвонить Подробнее
Чеховская (10 мин. 🚶)
Москва, Столешников переулок, 14
Бизнес-центр «Столешников 14»
Тип: Офисы
Площадь: 191.00 м2
Отделка:качественная отделка
800 000 в месяц
50 262 в год за м2
Позвонить Подробнее
Деловой центр Деловой центр (МЦК) (2 мин. 🚶)
Москва, Пресненская набережная, 6с2
Москва-Сити "Башня Империя"
Тип: Офисы
Площадь: 196.00 м2
Отделка:Shell and Core
1 100 000 в месяц
67 347 в год за м2
Позвонить Подробнее
Белорусская (11 мин. 🚶)
Москва, Лесная улица, 43
Бизнес-центр «Лесная 43»
Тип: Офисы
Площадь: 185.00 м2
Отделка:выполнена стандартная офисная отделка
1 002 084 в месяц
65 000 в год за м2
Позвонить Подробнее
Спортивная (10 мин. 🚶)
Москва, Малая Пироговская улица, 18с1
Малая Пироговская улица, 18с1
Тип: Офисы
Площадь: 186.00 м2
Отделка:выполнена стандартная офисная отделка
542 500 в месяц
35 000 в год за м2
Позвонить Подробнее
Краснопресненская (5 мин. 🚶)
Москва, переулок Капранова, 3с2
Бизнес-центр «Премьер Плаза» с2
Тип: Офисы
Площадь: 173.00 м2
Отделка:выполнена стандартная офисная отделка
793 839 в месяц
55 064 в год за м2
Позвонить Подробнее
Краснопресненская (7 мин. 🚶)
Москва, Малый Предтеченский переулок, 1/2
Административное здание "Малый Предтеченский пер. 1/2с1"
Тип: Офисы
Площадь: 188.10 м2
Отделка:выполнена стандартная офисная отделка
580 000 в месяц
37 002 в год за м2
Позвонить Подробнее
Фили
Москва, Береговой проезд, 5Ак1
Бизнес-центр "Фили Град"
Тип: Офисы
Площадь: 196.20 м2
Отделка:выполнена стандартная офисная отделка
784 800 в месяц
48 000 в год за м2
Позвонить Подробнее
Фили (23 мин. 🚗)
Москва, улица Ермакова Роща, 1с1
Деловой центр ICITY
Тип: Офисы
Площадь: 178.00 м2
Отделка:качественная отделка
1 500 000 в месяц
101 124 в год за м2
Позвонить Подробнее
Шаболовская (7 мин. 🚶)
Москва, Улица Шухова, 14
Бизнес-центр «Шухова Плаза»
Тип: Офисы
Площадь: 178.15 м2
Отделка:выполнена стандартная офисная отделка
519 000 в месяц
34 959 в год за м2
Позвонить Подробнее
Кунцевская (20 мин. 🚗)
Москва, Верейская улица, 11
Бизнес-центр «Квадрат»
Тип: Офисы
Площадь: 698.00 м2
Отделка:выполнена стандартная офисная отделка
2 617 500 в месяц
45 000 в год за м2
Позвонить Подробнее
Кунцевская (20 мин. 🚗)
Москва, Верейская улица, 11
Бизнес-центр «Квадрат»
Тип: Офисы
Площадь: 2234.00 м2
Отделка:выполнена стандартная офисная отделка
8 377 500 в месяц
45 000 в год за м2
Позвонить Подробнее
Кунцевская (20 мин. 🚗)
Москва, Верейская улица, 11
Бизнес-центр «Квадрат»
Тип: Офисы
Площадь: 1632.00 м2
Отделка:выполнена стандартная офисная отделка
6 120 000 в месяц
45 000 в год за м2
Позвонить Подробнее
Курская (7 мин. 🚶)
Москва, Большой Казённый переулок, 8с1
Офисное здание «Большой Казённый 8 с1»
Тип: Офисы
Площадь: 832.00 м2
3 150 000 в месяц
45 433 в год за м2
Позвонить Подробнее
Таганская (5 мин. 🚶)
Москва, Улица Земляной Вал, 68/18с3
Офисное здание «Земляной 68/18 с3»
Тип: Офисы
Площадь: 692.10 м2
2 750 000 в месяц
47 681 в год за м2
Позвонить Подробнее
Аэропорт (21 мин. 🚗)
Москва, Ленинградский проспект, 37А
Бизнес-парк «Аркус 2»
Тип: Офисы
Площадь: 908.00 м2
Отделка:выполнена стандартная офисная отделка
3 405 000 в месяц
45 000 в год за м2
Позвонить Подробнее
Полянка (5 мин. 🚶)
Москва, улица Большая Якиманка, 17/2с1
Бизнес центр "улица Большая Якиманка, 17/2с1"
Тип: Офисы
Площадь: 272.10 м2
Отделка:выполнена стандартная офисная отделка
1 043 050 в месяц
46 000 в год за м2
Позвонить Подробнее
Тёплый стан (9 мин. 🚶)
Москва, Профсоюзная улица, 125к1
Офисный особняк «Профсоюзная 125к1»
Тип: Офисы
Площадь: 4618.20 м2
Отделка:выполнена стандартная офисная отделка
17 606 888 в месяц
45 750 в год за м2
Позвонить Подробнее
Тёплый стан (9 мин. 🚶)
Москва, Профсоюзная улица, 125к1
Офисный особняк «Профсоюзная 125к1»
Тип: Офисы
Площадь: 7452.00 м2
28 410 750 в месяц
45 750 в год за м2
Позвонить Подробнее
Краснопресненская (5 мин. 🚶)
Закрытая продажа #58932
Тип: Офисы
Площадь: 485.00 м2
Отделка:выполнена стандартная офисная отделка
1 972 333 в месяц
48 800 в год за м2
Позвонить Подробнее
Маяковская (10 мин. 🚶)
Закрытая продажа #36702
Тип: Офисы
Площадь: 270.10 м2
Отделка:отделка в стиле Loft
1 043 486 в месяц
46 360 в год за м2
Позвонить Подробнее
Отрадное (10 мин. 🚶)
Москва, Отрадная улица, 2Бс6
Технопарк «Отрадное»
Тип: Офисы
Площадь: 423.00 м2
Отделка:выполнена стандартная офисная отделка
1 515 750 в месяц
43 000 в год за м2
Позвонить Подробнее
Новокузнецкая (7 мин. 🚶)
Москва, Озерковская набережная, 12
Озерковская набережная, 12
Тип: Офисы
Площадь: 603.20 м2
Отделка:выполнена стандартная офисная отделка
1 658 800 в месяц
33 000 в год за м2
Позвонить Подробнее
Новокузнецкая (7 мин. 🚶)
Москва, Озерковская набережная, 12
Озерковская набережная, 12
Тип: Офисы
Площадь: 407.70 м2
Отделка:выполнена стандартная офисная отделка
1 121 175 в месяц
33 000 в год за м2
Позвонить Подробнее
Новокузнецкая (7 мин. 🚶)
Москва, Озерковская набережная, 12
Озерковская набережная, 12
Тип: Офисы
Площадь: 210.50 м2
Отделка:выполнена стандартная офисная отделка
578 875 в месяц
33 000 в год за м2
Позвонить Подробнее
Новокузнецкая (7 мин. 🚶)
Москва, Озерковская набережная, 12
Озерковская набережная, 12
Тип: Офисы
Площадь: 959.50 м2
Отделка:выполнена стандартная офисная отделка
2 638 625 в месяц
33 000 в год за м2
Позвонить Подробнее
Новокузнецкая (10 мин. 🚶)
Москва, Садовническая улица, 27с9
Офисное здание «Садовническая 27 с9»
Тип: Офисы
Площадь: 581.00 м2
1 597 750 в месяц
33 000 в год за м2
Позвонить Подробнее
Новокузнецкая (10 мин. 🚶)
Москва, Большая Татарская улица, 35с3
Офисный центр "Замоскворечье"
Тип: Офисы
Площадь: 295.10 м2
Отделка:выполнена стандартная офисная отделка
983 667 в месяц
40 000 в год за м2
Позвонить Подробнее
Новокузнецкая (8 мин. 🚶)
Москва, Садовническая улица, 46с4
Офисное здание "Садовническая 46с4"
Тип: Офисы
Площадь: 155.00 м2
550 000 в месяц
42 581 в год за м2
Позвонить Подробнее
Новокузнецкая (6 мин. 🚶)
Москва, Овчинниковская набережная, 6с3
Бизнес-центр "Овчинниковская наб. 6с3"
Тип: Офисы
Площадь: 209.00 м2
Отделка:качественная отделка
700 000 в месяц
40 191 в год за м2
Позвонить Подробнее
Новокузнецкая (5 мин. 🚶)
Москва, Большой Овчинниковский переулок, 16
Бизнес-центр «Аркадия»
Тип: Офисы
Площадь: 246.30 м2
Отделка:выполнена стандартная офисная отделка
960 750 в месяц
46 809 в год за м2
Позвонить Подробнее
Новокузнецкая (5 мин. 🚶)
Москва, Средний Овчинниковский переулок, 8с2
Особняк «Средний Овчинниковский 8 с2»
Тип: Офисы
Площадь: 246.00 м2
959 400 в месяц
46 800 в год за м2
Позвонить Подробнее