Продажа торгового помещения ЖК "Середневский лес"

Продажа торгового помещения ЖК Продажа торгового помещения ЖК
Продажа торгового помещения ЖК Продажа торгового помещения ЖК
Москва, Новомосковский административный округ, Филимонковский район, жилой комплекс Середневский Лес, 4.3
Позвоните по телефону +7 495 230-28-26, либо оставьте заявку на просмотр прямо сейчас и узнайте условия специального предложения по объекту.
загрузка карты...
Общие
ID 62767
Тип сделки Продажа
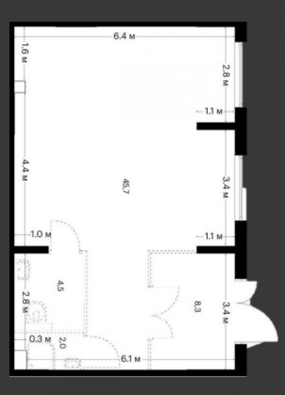
Площадь 62.30
Площадь всего 16886.00
Тип объекта Жилое здание
Этаж 1
Всего этажей в здании 9
Метраж по этажам
Информация об объекте
Состояние блока помещение без отделки
Планировка Открытая
Перекрытия Железобетонные
Нюансы Отдельный вход,Новостройка
Торговая недвижимость
Линия домов 1 линия
Возможности Зона разгрузки,Витрины,Место для рекламы,Проходное место,Проездное место
Электр. мощность (кВт) 12
Коммерческие условия
За все 25 000 000 ₽
За м 2 401 284 ₽
Тип собственника Юридическое лицо

Описание объекта
Помещение расположено на первой линии. Напротив дома находится остановка общественного транспорта. Соседнее помещение - аптека. Рядом супермаркет. Общая мощность - 12 кВт. Большая часть ЖК заселена. Рядом школа и детский сад.

Ввод в эксплуатацию - 2 кв. 2026 г.

ХАРАКТЕРИСТИКИ
- Первая линия
-  Отдельный вход
-  Витринные окна
-  Общая мощность – 12 кВт
-  Соседние помещения – аптека, супермаркет
-  Помещение за действующей остановкой общественного транспорта
-  Рядом школа и детский сад

ПОД АРЕНДАТОРА
-  Потенциальный МАП: 200 000 ₽

Нужна консультация покупке или продаже торговых помещений?

Наши специалисты подберут для вас самые выгодные варианты для долгосрочного инвестирования,
помогут в сопровождении и сделки, проверят все юридические вопросы касаемо приобретения недвижимости.

* Нажимая на кнопку «Отправить», Вы даете согласие на обработку персональных данных в соответствии с Политикой конфиденциальности

Похожие объекты

Красногвардейская (40 мин. 🚗)
Московская область, Ленинский городской округ, посёлок Развилка, Римский проезд, 13
ЖК "Римский"
Тип: Торговое помещение
Площадь: 56.30 м2
Мощность:12 кВт
20 000 000 за все
355 240 за м2
Позвонить Подробнее
Новослободская (3 мин. 🚶)
Москва, Долгоруковская улица, 27с1
Долгоруковская улица, 27с1
Тип: Торговое помещение
Площадь: 67.00 м2
Мощность:15 кВт
48 910 000 за все
730 000 за м2
Позвонить Подробнее
Смоленская (Филевская) Смоленская (Арбатско-Покровская) (10 мин. 🚶)
Москва, Улица Новый Арбат, 30/9
Жилое здание «Новый Арбат 30/9»
Тип: Торговое помещение
Площадь: 61.70 м2
33 000 000 за все
534 846 за м2
Позвонить Подробнее
Бунинская аллея (15 мин. 🚗)
Закрытая продажа #63768
Тип: Торговое помещение
Площадь: 57.40 м2
12 697 454 за все
221 210 за м2
Позвонить Подробнее
Бунинская аллея (15 мин. 🚗)
Закрытая продажа #63766
Тип: Торговое помещение
Площадь: 56.50 м2
12 523 225 за все
221 650 за м2
Позвонить Подробнее
Бунинская аллея (15 мин. 🚗)
Закрытая продажа #63763
Тип: Торговое помещение
Площадь: 57.00 м2
12 621 510 за все
221 430 за м2
Позвонить Подробнее
Бунинская аллея (15 мин. 🚗)
Закрытая продажа #63761
Тип: Торговое помещение
Площадь: 57.80 м2
12 779 580 за все
221 100 за м2
Позвонить Подробнее
Бунинская аллея (15 мин. 🚗)
Закрытая продажа #63754
Тип: Торговое помещение
Площадь: 56.40 м2
12 501 060 за все
221 650 за м2
Позвонить Подробнее
Бунинская аллея (15 мин. 🚗)
Закрытая продажа #63752
Тип: Торговое помещение
Площадь: 57.00 м2
12 621 510 за все
221 430 за м2
Позвонить Подробнее
Бунинская аллея (15 мин. 🚗)
Закрытая продажа #63750
Тип: Торговое помещение
Площадь: 56.40 м2
12 501 060 за все
221 650 за м2
Позвонить Подробнее
Бунинская аллея (15 мин. 🚗)
Закрытая продажа #63748
Тип: Торговое помещение
Площадь: 66.80 м2
13 975 896 за все
209 220 за м2
Позвонить Подробнее
Бунинская аллея (15 мин. 🚗)
Закрытая продажа #63746
Тип: Торговое помещение
Площадь: 56.90 м2
12 599 367 за все
221 430 за м2
Позвонить Подробнее
Красносельская (5 мин. 🚶)
Москва, Верхняя Красносельская улица, 17Ас1Б
БЦ "Верхняя Красносельская улица, 17Ас1Б"
Тип: Торговое помещение
Площадь: 101.90 м2
24 913 500 за все
244 490 за м2
Позвонить Подробнее
Новослободская (3 мин. 🚶)
Москва, Долгоруковская улица, 27с1
Долгоруковская улица, 27с1
Тип: Торговое помещение
Площадь: 29.80 м2
Мощность:15 кВт
25 330 000 за все
850 000 за м2
Позвонить Подробнее
Озёрная (3 мин. 🚶)
Москва, Озёрная улица, 42с1
ЖК "Страна Озёрная"
Тип: Торговое помещение
Площадь: 48.30 м2
25 010 000 за все
517 805 за м2
Позвонить Подробнее

Спец. предложение

Первомайская (1 мин. 🚶)
Москва, 9-я Парковая улица, 25
Жилое здание "9-я Парковая улица, 25"
Тип: Торговое помещение
Площадь: 30.40 м2
Мощность:15 кВт
22 500 000 за все
740 132 за м2
Позвонить Подробнее
ВДНХ (16 мин. 🚶)
Москва, проспект Мира, 131
Жилое здание "проспект Мира, 131"
Тип: Торговое помещение
Площадь: 77.00 м2
26 950 000 за все
350 000 за м2
Позвонить Подробнее
ВДНХ (16 мин. 🚶)
Москва, проспект Мира, 131
Жилое здание "проспект Мира, 131"
Тип: Торговое помещение
Площадь: 75.00 м2
22 620 000 за все
301 600 за м2
Позвонить Подробнее
Медведково (30 мин. 🚗)
Московская область, Мытищи, 1-й Стрелковый переулок, 5
ЖК "Мытищи Парк"5
Тип: Торговое помещение
Площадь: 135.40 м2
27 000 000 за все
199 409 за м2
Позвонить Подробнее
Университет (10 мин. 🚶)
Москва, улица Строителей, 13к1
Жилое здание "Строителей, 13к1"
Тип: Торговое помещение
Площадь: 167.50 м2
23 000 000 за все
137 313 за м2
Позвонить Подробнее
Калужская (7 мин. 🚶)
Москва, Старокалужское шоссе, 62
Бизнес-центр «Vallex»
Тип: Торговое помещение
Площадь: 73.30 м2
24 189 000 за все
330 000 за м2
Позвонить Подробнее
(2 мин. 🚶)
Москва, Рязанский проспект, 10с2
Бизнес-центр «Джоуль»
Тип: Торговое помещение
Площадь: 74.90 м2
Мощность:15 кВт
25 600 000 за все
341 789 за м2
Позвонить Подробнее
Аэропорт (1 мин. 🚶)
Москва, Ленинградский проспект, 62с26
ОСЗ "Ленинградский пр-т., д. 62 стр.26"
Тип: Торговое помещение
Площадь: 14.40 м2
26 400 000 за все
1 833 333 за м2
Позвонить Подробнее
Бауманская (9 мин. 🚶)
Москва, Доброслободская улица, 7/1
Особняк «Доброслободская 7/1»
Тип: Торговое помещение
Площадь: 81.80 м2
Мощность:50 кВт
26 000 000 за все
317 848 за м2
Позвонить Подробнее