Аренда офиса Технопарк «Отрадное»

Объект успешно реализован!
Аренда офиса Технопарк «Отрадное» Аренда офиса Технопарк «Отрадное» Аренда офиса Технопарк «Отрадное»
Аренда офиса Технопарк «Отрадное» - превью Аренда офиса Технопарк «Отрадное» - превью Аренда офиса Технопарк «Отрадное» - превью
Москва, Отрадная улица, 2Бс6
Объект успешно реализован, но у нас есть много других интересных предложений. Позвоните по телефону +7 495 230-28-26, либо оставьте заявку на подбор прямо сейчас и получите список подходящих для вас объектов.
загрузка карты...
Аренда в год за м2 32 600 ₽
Аренда в месяц 1 284 983 ₽
Схема сделки прямая аренда
Общие
ID 63082
Тип сделки Аренда
Площадь 473.00
Площадь всего 35900.00
Тип объекта Бизнес-центр
Класс здания B
Этаж 6
Всего этажей в здании 11
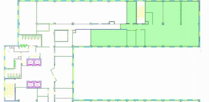
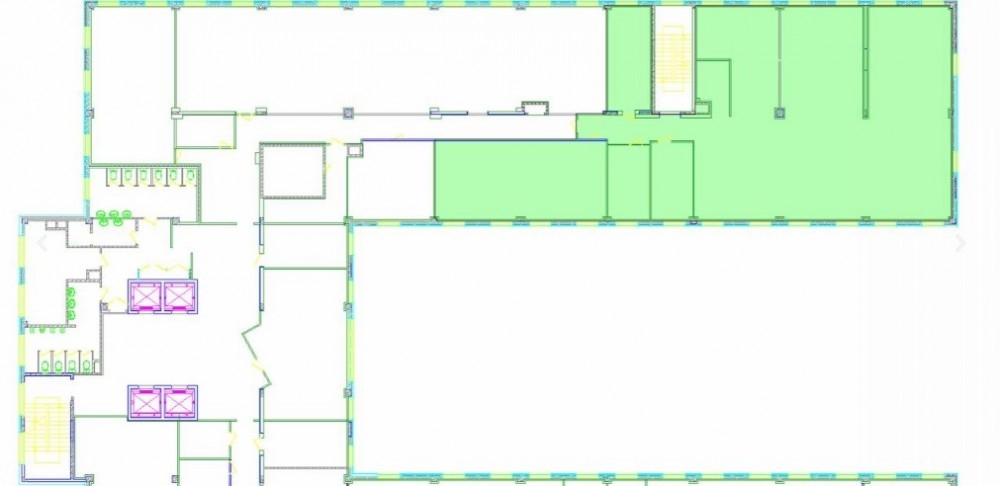
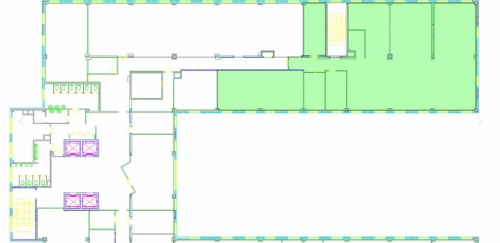
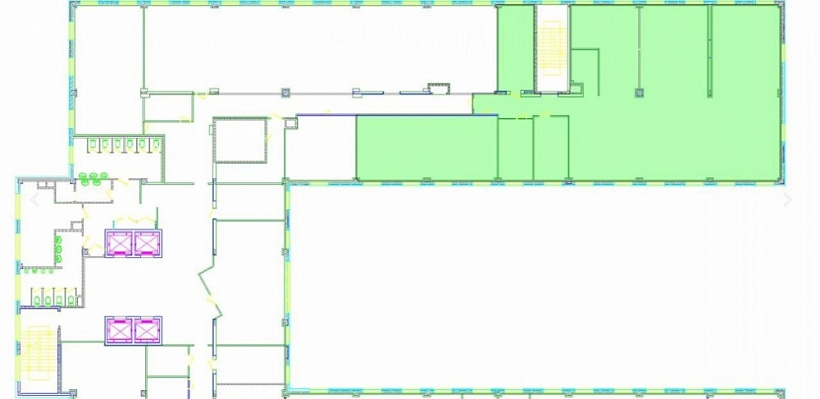
Метраж по этажам
Информация об объекте
Состояние объекта рабочее
Состояние блока выполнена стандартная офисная отделка
Планировка Смешанная
Коммуникации Система пожаротушения,Система видеонаблюдения,Интернет,Телефония
Парковка наземная 8500р/мес, подземная 10500р/мес
КПП Гостевой пропуск
Коммерческие условия
Аренда в год за м2 32 600 ₽
Аренда в месяц 1 284 983 ₽
Схема сделки прямая аренда
Тип собственника Юридическое лицо

Описание объекта
Предлагаем в аренду блок офисов в бизнес-парке класса В в пешей доступности от м.Отрадное.
Строение 6. Смешанная планировка (4 кабинета, 55 рабочих мест, серверная, кухня, ресепшн), офисная отделка. В здании пропускной режим, приточная вентиляция, центральное кондиционирование.
В ставку включена эксплуатация, к/у оплачиваются отдельно.
За дополнительную плату предоставляются места на парковке.
Офис свободен к заезду.

Нужна консультация по подбору помещения под офис?

Наши специалисты подберут для вас самые выгодные варианты для долгосрочного инвестирования,
помогут в сопровождении и сделки, проверят все юридические вопросы касаемо приобретения недвижимости.

* Нажимая на кнопку «Отправить», Вы даете согласие на обработку персональных данных в соответствии с Политикой конфиденциальности

Похожие объекты

Краснопресненская (5 мин. 🚶)
Закрытая продажа #58932
Тип: Офисы
Площадь: 485.00 м2
Отделка:выполнена стандартная офисная отделка
1 972 333 в месяц
48 800 в год за м2
Позвонить Подробнее
Китай-город (7 мин. 🚶)
Москва, Подкопаевский переулок, 4
Бизнес-центр «Ивановская горка»
Тип: Офисы
Площадь: 463.84 м2
Отделка:выполнена стандартная офисная отделка
2 956 980 в месяц
76 500 в год за м2
Позвонить Подробнее
Кропоткинская (8 мин. 🚶)
Москва, Барыковский переулок, 2
Бизнес-центр «Ост Хаус»
Тип: Офисы
Площадь: 486.70 м2
Отделка:качественная отделка
3 000 000 в месяц
73 968 в год за м2
Позвонить Подробнее
Павелецкая (16 мин. 🚗)
Москва, 1-й Дербеневский переулок, 5
Бизнес-центр «Дербеневская Плаза»
Тип: Офисы
Площадь: 442.50 м2
Отделка:выполнена стандартная офисная отделка
1 235 313 в месяц
33 500 в год за м2
Позвонить Подробнее
Цветной бульвар (4 мин. 🚶)
Москва, Цветной бульвар, 22с1
Бизнес-центр «Цветной 22 с1»
Тип: Офисы
Площадь: 474.00 м2
Отделка:выполнена стандартная офисная отделка
1 975 000 в месяц
50 000 в год за м2
Позвонить Подробнее
Марксистская (7 мин. 🚶)
Москва, Таганская улица, 17-23
Бизнес-центр «Мосэнка Парк Тауэрс 4»
Тип: Офисы
Площадь: 459.00 м2
Отделка:выполнена стандартная офисная отделка
1 913 265 в месяц
50 020 в год за м2
Позвонить Подробнее
Пушкинская (1 мин. 🚶)
Закрытая продажа #63680
Тип: Офисы
Площадь: 455.00 м2
Отделка:выполнена высококачественная отделка
2 800 000 в месяц
73 846 в год за м2
Позвонить Подробнее
Румянцево (3 мин. 🚶)
Москва, Поселение Московский, деревня Румянцево, Киевское шоссе, 1
Бизнес-парк «Румянцево»
Тип: Офисы
Площадь: 471.00 м2
Отделка:выполнена стандартная офисная отделка
667 250 в месяц
17 000 в год за м2
Позвонить Подробнее
Серпуховская (6 мин. 🚶)
Москва, Большой Строченовский переулок, 7
Бизнес-центр «Велка»
Тип: Офисы
Площадь: 454.00 м2
Отделка:качественная отделка
1 600 000 в месяц
42 291 в год за м2
Позвонить Подробнее
Планерная (23 мин. 🚗)
Московская область, Химки, Куркинское шоссе, с2
Бизнес-центр «Aero City (Аэро Сити)»
Тип: Офисы
Площадь: 431.60 м2
Отделка:Shell and Core
410 020 в месяц
11 400 в год за м2
Позвонить Подробнее
Полянка (5 мин. 🚶)
Москва, улица Большая Якиманка, 17/2с1
Бизнес центр "улица Большая Якиманка, 17/2с1"
Тип: Офисы
Площадь: 467.00 м2
Отделка:выполнена стандартная офисная отделка
2 101 500 в месяц
54 000 в год за м2
Позвонить Подробнее
Кожуховская (17 мин. 🚶)
Москва, 2-й Южнопортовый проезд, 20Ас4
Офисно-складской комплекс "Южнопортовый"
Тип: Офисы
Площадь: 440.00 м2
Отделка:выполнена стандартная офисная отделка
990 000 в месяц
27 000 в год за м2
Позвонить Подробнее
Краснопресненская (5 мин. 🚶)
Москва, Большая Грузинская улица, 12с2
Бизнес-центр «Николаевский»
Тип: Офисы
Площадь: 969.30 м2
Отделка:выполнена стандартная офисная отделка
2 600 000 в месяц
32 188 в год за м2
Позвонить Подробнее
Полежаевская (9 мин. 🚗)
Москва, 4-я Магистральная улица, 11с2
Бизнес-центр «Магистраль»
Тип: Офисы
Площадь: 320.00 м2
Отделка:выполнена стандартная офисная отделка
880 000 в месяц
33 000 в год за м2
Позвонить Подробнее
Ленинский проспект (5 мин. 🚶)
Москва, улица Орджоникидзе, 11с40
Бизнес-парк Орджоникидзе 11
Тип: Офисы
Площадь: 222.40 м2
Отделка:выполнена стандартная офисная отделка
648 667 в месяц
35 000 в год за м2
Позвонить Подробнее
Таганская (5 мин. 🚶)
Москва, улица Земляной Вал, 68/18с5
Офисное здание «Земляной 68/18 с5"
Тип: Офисы
Площадь: 145.00 м2
Отделка:выполнена стандартная офисная отделка
422 917 в месяц
35 000 в год за м2
Позвонить Подробнее
Марьина Роща (11 мин. 🚶)
Москва, Октябрьская улица, 80
Административное здание «Октябрьская 80»
Тип: Офисы
Площадь: 313.50 м2
Отделка:отделка арендатора
782 500 в месяц
29 952 в год за м2
Позвонить Подробнее
Марьина Роща (11 мин. 🚶)
Москва, Октябрьская улица, 80с1
Административное здание "Октябрьская улица, 80с1"
Тип: Офисы
Площадь: 566.00 м2
Отделка:отделка арендатора
1 415 000 в месяц
30 000 в год за м2
Позвонить Подробнее
Марьина Роща (11 мин. 🚶)
Москва, Октябрьская улица, 80с3
Административное здание "Октябрьская улица, 80с3"
Тип: Офисы
Площадь: 761.00 м2
Отделка:отделка арендатора
1 902 500 в месяц
30 000 в год за м2
Позвонить Подробнее
Павелецкая (16 мин. 🚗)
Москва, 1-й Дербеневский переулок, 5
Бизнес-центр «Дербеневская Плаза»
Тип: Офисы
Площадь: 442.50 м2
Отделка:выполнена стандартная офисная отделка
1 235 313 в месяц
33 500 в год за м2
Позвонить Подробнее
Белорусская (11 мин. 🚶)
Москва, Лесная улица, 43
Бизнес-центр «Лесная 43»
Тип: Офисы
Площадь: 128.10 м2
Отделка:качественная отделка
320 000 в месяц
29 977 в год за м2
Позвонить Подробнее
Спортивная (10 мин. 🚶)
Москва, Малая Пироговская улица, 18с1
Малая Пироговская улица, 18с1
Тип: Офисы
Площадь: 186.00 м2
Отделка:выполнена стандартная офисная отделка
542 500 в месяц
35 000 в год за м2
Позвонить Подробнее
Речной вокзал (14 мин. 🚶)
Москва, Смольная улица, 24Д
Бизнес-центр «Меридиан»
Тип: Офисы
Площадь: 1100.00 м2
Отделка:выполнена стандартная офисная отделка
3 116 667 в месяц
34 000 в год за м2
Позвонить Подробнее
Таганская (19 мин. 🚶)
Москва, Космодамианская набережная, 32-34
Жилое здание "Космодамианская набережная, 32-34"
Тип: Офисы
Площадь: 574.00 м2
Отделка:выполнена стандартная офисная отделка
1 578 500 в месяц
33 000 в год за м2
Позвонить Подробнее
Отрадное (10 мин. 🚶)
Москва, Отрадная улица, 2Бс6
Технопарк «Отрадное»
Тип: Офисы
Площадь: 423.00 м2
Отделка:выполнена стандартная офисная отделка
1 515 750 в месяц
43 000 в год за м2
Позвонить Подробнее
Отрадное (10 мин. 🚶)
Москва, Отрадная улица, 2Бс6
Технопарк «Отрадное»
Тип: Офисы
Площадь: 1449.00 м2
Отделка:выполнена стандартная офисная отделка
5 192 250 в месяц
43 000 в год за м2
Позвонить Подробнее
Отрадное (10 мин. 🚶)
Москва, Отрадная улица, 2Бс6
Технопарк «Отрадное»
Тип: Офисы
Площадь: 2378.31 м2
Отделка:выполнена стандартная офисная отделка
6 659 268 в месяц
33 600 в год за м2
Позвонить Подробнее
Отрадное (10 мин. 🚶)
Москва, Отрадная улица, 2Бс6
Технопарк «Отрадное»
Тип: Офисы
Площадь: 294.90 м2
Отделка:выполнена стандартная офисная отделка
801 145 в месяц
32 600 в год за м2
Позвонить Подробнее
Отрадное (12 мин. 🚶)
Москва, Отрадная улица, 4А
МФК "Дом Malevich"
Тип: Офисы
Площадь: 273.70 м2
Отделка:помещение без отделки
798 292 в месяц
35 000 в год за м2
Позвонить Подробнее