Продажа торгового помещения Жилое здание "Пятницкая улица, 16с1"

Продажа торгового помещения Жилое здание Продажа торгового помещения Жилое здание Продажа торгового помещения Жилое здание Продажа торгового помещения Жилое здание Продажа торгового помещения Жилое здание
Продажа торгового помещения Жилое здание Продажа торгового помещения Жилое здание Продажа торгового помещения Жилое здание Продажа торгового помещения Жилое здание Продажа торгового помещения Жилое здание
Москва, Пятницкая улица, 16с1
Позвоните по телефону +7 495 230-28-26, либо оставьте заявку на просмотр прямо сейчас и узнайте условия специального предложения по объекту.
загрузка карты...
Общие
ID 63143
Тип сделки Продажа
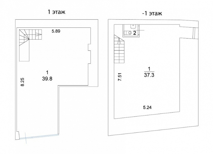
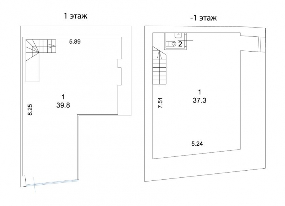
Площадь 78.20
Площадь всего 3824.00
Тип объекта Жилое здание
Этаж -1 - 1
Всего этажей в здании 3
Метраж по этажам
Этаж: 1 - 39.8 м2
Этаж: -1 - 37.3 м2
Информация об объекте
Состояние объекта рабочее
Состояние блока помещение без отделки
Планировка Открытая
Перекрытия Железобетонные
Нюансы Отдельный вход
Торговая недвижимость
Линия домов 1 линия
Возможности Ресторанная вытяжка,Витрины,Место для рекламы,Проходное место,Проездное место
Коммерческие условия
За все 180 000 000 ₽
За м 2 2 301 790 ₽
Тип собственника Юридическое лицо

Описание объекта
Торговое помещение на Пятницкой улице, в 150 метрах от метро «Новокузнецкая». Объект расположен на первой фасадной линии в престижном районе Замоскворечья ЦАО.

Свободная планировка, технологическая вытяжка и достаточная мощность позволяют использовать помещение под любой вид деятельности — от ритейла до общепита. Большая витрина-гармошка и возможность разместить вывеску на фасаде обеспечивают отличные рекламные возможности.

Интенсивный пешеходный и автомобильный трафик (до 3000-3800 человек в час), развитая инфраструктура и сложившееся торговое окружение делают локацию особенно привлекательной. В непосредственной близости ведётся строительство элитного жилого комплекса «Русские Сезоны». Благодаря сочетанию активного туристического и делового трафика стрит-ритейл на Пятницкой обеспечен стабильной загрузкой как в будни, так и в выходные дни.

Коммуникации центральные. 24/7.

Нужна консультация покупке или продаже торговых помещений?

Наши специалисты подберут для вас самые выгодные варианты для долгосрочного инвестирования,
помогут в сопровождении и сделки, проверят все юридические вопросы касаемо приобретения недвижимости.

* Нажимая на кнопку «Отправить», Вы даете согласие на обработку персональных данных в соответствии с Политикой конфиденциальности

Похожие объекты

Красносельская (5 мин. 🚶)
Москва, Верхняя Красносельская улица, 17Ас1Б
БЦ "Верхняя Красносельская улица, 17Ас1Б"
Тип: Торговое помещение
Площадь: 84.20 м2
20 680 000 за все
245 606 за м2
Позвонить Подробнее
Парк Победы (9 мин. 🚶)
Закрытая продажа #63947
Тип: Торговое помещение
Площадь: 75.30 м2
Мощность:20 кВт
82 830 000 за все
1 100 000 за м2
Позвонить Подробнее
Бунинская аллея (15 мин. 🚗)
Закрытая продажа #63770
Тип: Торговое помещение
Площадь: 72.30 м2
14 379 024 за все
198 880 за м2
Позвонить Подробнее
Бунинская аллея (15 мин. 🚗)
Закрытая продажа #63755
Тип: Торговое помещение
Площадь: 71.70 м2
14 275 470 за все
199 100 за м2
Позвонить Подробнее
Бунинская аллея (15 мин. 🚗)
Закрытая продажа #63753
Тип: Торговое помещение
Площадь: 70.60 м2
14 079 758 за все
199 430 за м2
Позвонить Подробнее
Бунинская аллея (15 мин. 🚗)
Закрытая продажа #63747
Тип: Торговое помещение
Площадь: 72.30 м2
14 379 024 за все
198 880 за м2
Позвонить Подробнее
ВДНХ (16 мин. 🚶)
Москва, проспект Мира, 131
Жилое здание "проспект Мира, 131"
Тип: Торговое помещение
Площадь: 77.00 м2
26 950 000 за все
350 000 за м2
Позвонить Подробнее
ВДНХ (16 мин. 🚶)
Москва, проспект Мира, 131
Жилое здание "проспект Мира, 131"
Тип: Торговое помещение
Площадь: 75.00 м2
22 620 000 за все
301 600 за м2
Позвонить Подробнее
ВДНХ (16 мин. 🚶)
Москва, проспект Мира, 131
Жилое здание "проспект Мира, 131"
Тип: Торговое помещение
Площадь: 82.00 м2
28 700 000 за все
350 000 за м2
Позвонить Подробнее
Бульвар Рокоссовского (5 мин. 🚶)
Москва, Открытое шоссе, 18Ак1
ЖК «Лосиноостровский парк»
Тип: Торговое помещение
Площадь: 82.80 м2
Мощность:15 кВт
40 572 000 за все
490 000 за м2
Позвонить Подробнее
Киевская (7 мин. 🚶)
Москва, Брянская улица, 12
Жилой дом "Брянская 12"
Тип: Торговое помещение
Площадь: 83.70 м2
110 400 000 за все
1 318 996 за м2
Позвонить Подробнее
Киевская (7 мин. 🚶)
Москва, Брянская улица, 12
Жилой дом "Брянская 12"
Тип: Торговое помещение
Площадь: 76.50 м2
96 600 000 за все
1 262 745 за м2
Позвонить Подробнее
Митино (15 мин. 🚶)
Москва, 1-й Митинский переулок, 12к1
ДИЛЕРСКИЙ ЦЕНТР МИТИНО
Тип: Торговое помещение
Площадь: 755.40 м2
Мощность:365 кВт
175 000 000 за все
231 665 за м2
Позвонить Подробнее
Кунцевская (18 мин. 🚗)
Москва, улица Петра Алексеева, 12с1
КутузовGRAD II (КутузовГрад II) МАНУФАКТУРА XIX
Тип: Торговое помещение
Площадь: 288.40 м2
Мощность:73 кВт
182 800 000 за все
633 842 за м2
Позвонить Подробнее
Боровское шоссе (17 мин. 🚗)
Москва, Инновационный центр Сколково, район Южный
Upside Tech в Сколково
Тип: Торговое помещение
Площадь: 344.74 м2
162 301 240 за все
470 793 за м2
Позвонить Подробнее
(6 мин. 🚗)
Москва, Новомосковский административный округ, район Внуково, квартал № 19, 1с1
Бизнес-парк "Переделкино"
Тип: Торговое помещение
Площадь: 555.00 м2
Мощность:90 кВт
187 900 000 за все
338 559 за м2
Позвонить Подробнее
(6 мин. 🚗)
Москва, Новомосковский административный округ, район Внуково, квартал № 19, 1с1
Бизнес-парк "Переделкино"
Тип: Торговое помещение
Площадь: 612.00 м2
Мощность:104 кВт
194 800 000 за все
318 301 за м2
Позвонить Подробнее
Котельники (15 мин. 🚗)
Московская область, Котельники, Новорязанское шоссе, 6с4
ЖК "Дюна"
Тип: Торговое помещение
Площадь: 386.16 м2
180 000 000 за все
466 128 за м2
Позвонить Подробнее
Новослободская (2 мин. 🚶)
Москва, Долгоруковская улица, 40
Жилое здание "Долгоруковская ул.,40"
Тип: Торговое помещение
Площадь: 161.90 м2
171 600 000 за все
1 059 914 за м2
Позвонить Подробнее
Дубровка (30 мин. 🚶)
Москва, улица Эдуарда Стрельцова, 2к1
ЖК «FORIVER (Форивер)»
Тип: Торговое помещение
Площадь: 544.60 м2
Мощность:95 кВт
192 820 000 за все
354 058 за м2
Позвонить Подробнее
Улица 1905 года (14 мин. 🚶)
Москва, улица Сергея Макеева, вл11/9с1-10
ЖК "LIFE TIME"
Тип: Торговое помещение
Площадь: 172.10 м2
194 090 000 за все
1 127 775 за м2
Позвонить Подробнее
(3 мин. 🚶)
Москва, Херсонская улица, 20к3
ОСЗ "Херсонская улица, 20к3"
Тип: Торговое помещение
Площадь: 800.00 м2
Мощность:80 кВт
180 000 000 за все
225 000 за м2
Позвонить Подробнее
Закрытая продажа #62955
Тип: Торговое помещение
Площадь: 594.70 м2
176 483 172 за все
296 760 за м2
Позвонить Подробнее
Домодедовская (26 мин. 🚗)
Московская область, Ленинский городской округ, посёлок Развилка, Римский проезд, 5с1
Здание в ЖК "Римский"
Тип: Торговое помещение
Площадь: 510.00 м2
Мощность:85 кВт
163 472 000 за все
320 533 за м2
Позвонить Подробнее
Новокузнецкая (2 мин. 🚶)
Москва, Пятницкая улица, 22с2
Особняк «Пятницкая 22 с2»
Тип: Торговое помещение
Площадь: 323.40 м2
Мощность:80 кВт
210 000 000 за все
649 351 за м2
Позвонить Подробнее
Новокузнецкая (3 мин. 🚶)
Москва, Пятницкая улица, 16
Административное здание "Пятницкая улица д. 16"
Тип: Торговое помещение
Площадь: 78.20 м2
Мощность:50 кВт
180 000 000 за все
2 301 790 за м2
Позвонить Подробнее
Новокузнецкая (7 мин. 🚶)
Москва, Космодамианская набережная, 4/22А
Космодамианская набережная, 4/22кБ
Тип: Торговое помещение
Площадь: 450.00 м2
220 000 000 за все
488 889 за м2
Позвонить Подробнее