Аренда офиса Особняк «Кривоарбатский 13 с2»

Аренда офиса Особняк «Кривоарбатский 13 с2» Аренда офиса Особняк «Кривоарбатский 13 с2» Аренда офиса Особняк «Кривоарбатский 13 с2»
Аренда офиса Особняк «Кривоарбатский 13 с2» - превью Аренда офиса Особняк «Кривоарбатский 13 с2» - превью Аренда офиса Особняк «Кривоарбатский 13 с2» - превью
Москва, Кривоарбатский переулок, 13с2
Позвоните по телефону +7 495 230-28-26, либо оставьте заявку на просмотр прямо сейчас и узнайте условия специального предложения по объекту.
загрузка карты...
Аренда в год за м2 42 800 ₽
Аренда в месяц 909 857 ₽
Схема сделки прямая аренда
Первушина Марина Алексеевна

Объект ведет консультант:

Первушина Марина Алексеевна

Общие
ID 63237
Тип сделки Аренда
Площадь 255.10
Площадь всего 518.00
Тип объекта Особняк
Класс здания B
Этаж 1 - 2
Всего этажей в здании 4
Метраж по этажам
Этаж: 1 - 127,8 м2
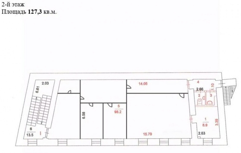
Этаж: 2 - 127,3 м2
Информация об объекте
Состояние блока выполнена стандартная офисная отделка
Планировка Смешанная
Коммуникации Система видеонаблюдения,Интернет,Телефония
Парковка Городская вдоль фасада Возможно выделение 1 м/м на наземной парковке у УК жилого дома напротив.
КПП Гостевой пропуск
Коммерческие условия
Аренда в год за м2 42 800 ₽
Аренда в месяц 909 857 ₽
Схема сделки прямая аренда
Тип собственника Юридическое лицо

Описание объекта
Предлагаем в аренду офис в особняке класса В с в пешей доступности от м.Смоленская.
Занимает 2 этажа. Первый этаж - 2 зоны open-space+переговорка+с/у, второй этаж - зона open-space+2 кабинета+переговорка+кухня+с/у. Качественный ремонт.Установлена приточная вентиляция, центральное кондиционирование.
Возможно выделение 1 м/м на наземной парковке.
В ставку включена эксплуатация и НДС 7%, отдельно оплачиваются к/у 30тр.
Офис свободен к заезду.

Нужна консультация по подбору помещения под офис?

Наши специалисты подберут для вас самые выгодные варианты для долгосрочного инвестирования,
помогут в сопровождении и сделки, проверят все юридические вопросы касаемо приобретения недвижимости.

* Нажимая на кнопку «Отправить», Вы даете согласие на обработку персональных данных в соответствии с Политикой конфиденциальности

Похожие объекты

Пушкинская (3 мин. 🚶)
Москва, Сытинский переулок, 5/10с3
Жилое здание "Сытинский переулок, 5/10с3"
Тип: Офисы
Площадь: 276.20 м2
Отделка:отделка арендатора
900 000 в месяц
39 102 в год за м2
Позвонить Подробнее
Курская (5 мин. 🚶)
Москва, Улица Земляной Вал, 9
Бизнес-центр «СитиДел»
Тип: Офисы
Площадь: 280.00 м2
Отделка:выполнена стандартная офисная отделка
1 793 400 в месяц
76 860 в год за м2
Позвонить Подробнее
Динамо (5 мин. 🚶)
Москва, Ленинградский проспект, 31Ас1
МФК "МонАрх"
Тип: Офисы
Площадь: 246.40 м2
Отделка:отделка арендатора
1 002 027 в месяц
48 800 в год за м2
Позвонить Подробнее
Международная (5 мин. 🚶)
Москва, Пресненская набережная, 10А
Бизнес-центр «Башня на набережной»
Тип: Офисы
Площадь: 270.00 м2
Отделка:качественная отделка
2 470 500 в месяц
109 800 в год за м2
Позвонить Подробнее
Парк культуры (6 мин. 🚶)
Москва, Улица Остоженка, 25
Жилое здание «Остоженка 25»
Тип: Офисы
Площадь: 265.00 м2
Отделка:выполнена высококачественная отделка
1 856 000 в месяц
84 045 в год за м2
Позвонить Подробнее
Красносельская (10 мин. 🚶)
Москва, Спартаковский переулок, 2с1
Лофт-квартал «Платформа»
Тип: Офисы
Площадь: 253.00 м2
Отделка:отделка в стиле Loft
760 000 в месяц
36 047 в год за м2
Позвонить Подробнее
Рижская (6 мин. 🚶)
Москва, улица Гиляровского, 65с1
БЦ "улица Гиляровского, 65с1"
Тип: Офисы
Площадь: 247.00 м2
Отделка:выполнена стандартная офисная отделка
617 500 в месяц
30 000 в год за м2
Позвонить Подробнее
Полянка (5 мин. 🚶)
Москва, улица Большая Якиманка, 17/2с1
Бизнес центр "улица Большая Якиманка, 17/2с1"
Тип: Офисы
Площадь: 253.00 м2
Отделка:выполнена стандартная офисная отделка
1 138 500 в месяц
54 000 в год за м2
Позвонить Подробнее
Полянка (5 мин. 🚶)
Москва, улица Большая Якиманка, 17/2с1
Бизнес центр "улица Большая Якиманка, 17/2с1"
Тип: Офисы
Площадь: 272.10 м2
Отделка:выполнена стандартная офисная отделка
1 043 050 в месяц
46 000 в год за м2
Позвонить Подробнее
Маяковская (10 мин. 🚶)
Закрытая продажа #36702
Тип: Офисы
Площадь: 270.10 м2
Отделка:отделка в стиле Loft
1 043 486 в месяц
46 360 в год за м2
Позвонить Подробнее
Сухаревская (1 мин. 🚶)
Москва, Малая Сухаревская площадь, 12
ТОЦ «Садовая Галерея»
Тип: Офисы
Площадь: 240.51 м2
Отделка:выполнена высококачественная отделка
1 833 889 в месяц
91 500 в год за м2
Позвонить Подробнее
Алексеевская (10 мин. 🚶)
Москва, улица Годовикова, 9с31
Бизнес-центр «Калибр» с31
Тип: Офисы
Площадь: 280.20 м2
Отделка:выполнена стандартная офисная отделка
521 312 в месяц
22 326 в год за м2
Позвонить Подробнее
Пушкинская (3 мин. 🚶)
Москва, Сытинский переулок, 5/10с3
Жилое здание "Сытинский переулок, 5/10с3"
Тип: Офисы
Площадь: 276.20 м2
Отделка:отделка арендатора
900 000 в месяц
39 102 в год за м2
Позвонить Подробнее
Калужская (3 мин. 🚶)
Москва, Профсоюзная улица, 65к1
Бизнес-центр «Лотте»
Тип: Офисы
Площадь: 547.20 м2
Отделка:выполнена стандартная офисная отделка
2 002 752 в месяц
43 920 в год за м2
Позвонить Подробнее
Калужская (3 мин. 🚶)
Москва, Профсоюзная улица, 65к1
Бизнес-центр «Лотте»
Тип: Офисы
Площадь: 606.04 м2
Отделка:выполнена стандартная офисная отделка
2 218 106 в месяц
43 920 в год за м2
Позвонить Подробнее
Калужская (3 мин. 🚶)
Москва, Профсоюзная улица, 65к1
Бизнес-центр «Лотте»
Тип: Офисы
Площадь: 1486.00 м2
Отделка:выполнена стандартная офисная отделка
5 287 683 в месяц
42 700 в год за м2
Позвонить Подробнее
Калужская (3 мин. 🚶)
Москва, Профсоюзная улица, 65к1
Бизнес-центр «Лотте»
Тип: Офисы
Площадь: 5235.31 м2
Отделка:качественная отделка
18 628 978 в месяц
42 700 в год за м2
Позвонить Подробнее
Калужская (3 мин. 🚶)
Москва, Профсоюзная улица, 65к1
Бизнес-центр «Лотте»
Тип: Офисы
Площадь: 3488.71 м2
Отделка:качественная отделка
12 413 993 в месяц
42 700 в год за м2
Позвонить Подробнее
Калужская (3 мин. 🚶)
Москва, Профсоюзная улица, 65к1
Бизнес-центр «Лотте»
Тип: Офисы
Площадь: 1746.60 м2
Отделка:качественная отделка
6 214 985 в месяц
42 700 в год за м2
Позвонить Подробнее
Калужская (3 мин. 🚶)
Москва, Профсоюзная улица, 65к1
Бизнес-центр «Лотте»
Тип: Офисы
Площадь: 346.90 м2
Отделка:качественная отделка
1 234 386 в месяц
42 700 в год за м2
Позвонить Подробнее
Калужская (3 мин. 🚶)
Москва, Профсоюзная улица, 65к1
Бизнес-центр «Лотте»
Тип: Офисы
Площадь: 281.70 м2
Отделка:выполнена стандартная офисная отделка
1 002 383 в месяц
42 700 в год за м2
Позвонить Подробнее
ЦСКА (5 мин. 🚶)
Москва, Улица Авиаконструктора Микояна, 12
Бизнес-центр «Линкор»
Тип: Офисы
Площадь: 373.40 м2
Отделка:выполнена стандартная офисная отделка
1 252 757 в месяц
40 260 в год за м2
Позвонить Подробнее
ЦСКА (5 мин. 🚶)
Москва, Улица Авиаконструктора Микояна, 12
Бизнес-центр «Линкор»
Тип: Офисы
Площадь: 1377.37 м2
Отделка:выполнена стандартная офисная отделка
4 621 076 в месяц
40 260 в год за м2
Позвонить Подробнее
ЦСКА (5 мин. 🚶)
Москва, Улица Авиаконструктора Микояна, 12
Бизнес-центр «Линкор»
Тип: Офисы
Площадь: 2047.58 м2
Отделка:выполнена стандартная офисная отделка
6 869 631 в месяц
40 260 в год за м2
Позвонить Подробнее