Аренда торгового помещения Жилое здание "Ленинский проспект, 87"

Аренда торгового помещения Жилое здание
Москва, Ленинский проспект, 87
Позвоните по телефону +7 495 230-28-26, либо оставьте заявку на просмотр прямо сейчас и узнайте условия специального предложения по объекту.
загрузка карты...
Аренда в год за м2 60 000 ₽
Аренда в месяц 500 000 ₽
Схема сделки прямая аренда
Первушина Марина Алексеевна

Объект ведет консультант:

Первушина Марина Алексеевна

Общие
ID 63475
Тип сделки Аренда
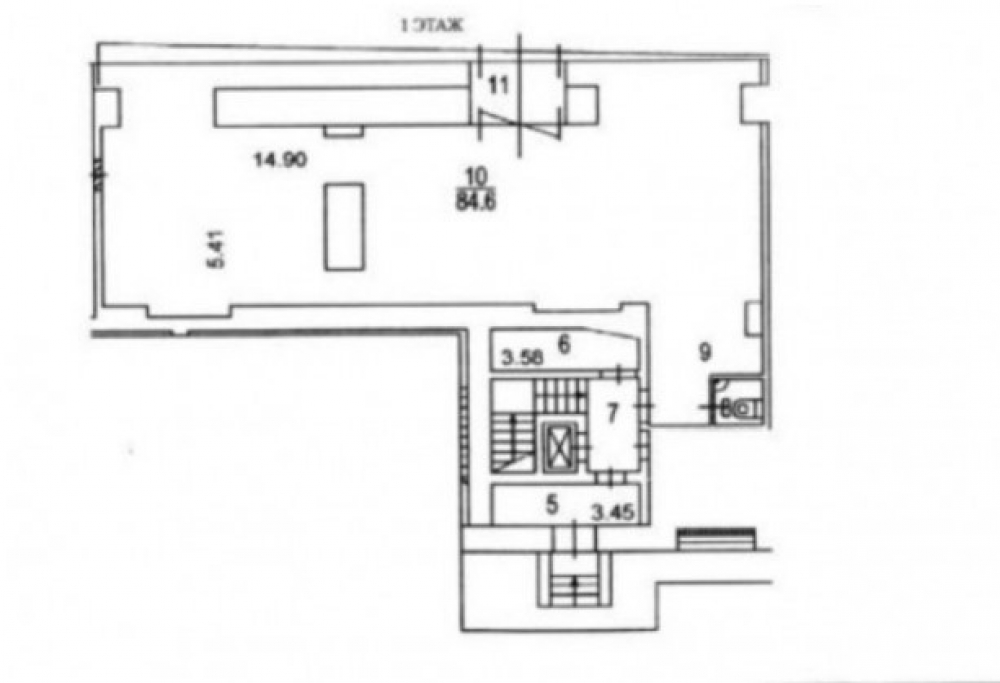
Площадь 100.00
Площадь всего 30386.00
Тип объекта Жилое здание
Этаж 1
Всего этажей в здании 8
Метраж по этажам
Информация об объекте
Состояние объекта рабочее
Состояние блока качественная отделка
Планировка Смешанная
Нюансы Отдельный вход
Торговая недвижимость
Линия домов 1 линия
Возможности Витрины,Место для рекламы,Проходное место,Проездное место
Электр. мощность (кВт) 50
Коммерческие условия
Аренда в год за м2 60 000 ₽
Аренда в месяц 500 000 ₽
Схема сделки прямая аренда
Тип собственника Юридическое лицо

Описание объекта
Предлагается в аренду торговое помещение с отдельным входом в жилом доме в Ломоносовском районе. Высокий пешеходный и автомобильный трафик.
Площадь 100 м2 на 1 этаже, высокие потолки, витринные окна, есть мокрая точка, э/э 50квт.
сть дополнительный вход со двора и зона погрузки/разгрузки с дебаркадером.

Нужна консультация по подбору торговых площадей для аренды?

Наши специалисты подберут для вас самые выгодные варианты для долгосрочного инвестирования,
помогут в сопровождении и сделки, проверят все юридические вопросы касаемо приобретения недвижимости.

* Нажимая на кнопку «Отправить», Вы даете согласие на обработку персональных данных в соответствии с Политикой конфиденциальности

Похожие объекты

Ботанический сад (12 мин. 🚶)
Москва, Сельскохозяйственная улица, 24Ак1
ЖК "Союз"
Тип: Торговое помещение
Площадь: 91.10 м2
Мощность:112 кВт
318 850 в месяц
42 000 в год за м2
Позвонить Подробнее
Курская (13 мин. 🚶)
Москва, улица Покровка, 16
Торгово-офисный комплекс "Покровка 16"
Тип: Торговое помещение
Площадь: 90.00 м2
Мощность:35 кВт
504 000 в месяц
67 200 в год за м2
Позвонить Подробнее
Автозаводская (8 мин. 🚶)
Москва, Велозаводская улица, 6А
Жилое здание Велозаводская, 6
Тип: Торговое помещение
Площадь: 99.80 м2
Мощность:75 кВт
410 000 в месяц
49 299 в год за м2
Позвонить Подробнее
Смоленская (Филевская) Смоленская (Арбатско-Покровская) (5 мин. 🚶)
Москва, улица Арбат, 32
Жилое здание "Арбат, 32"
Тип: Торговое помещение
Площадь: 90.80 м2
Мощность:50 кВт
1 135 000 в месяц
150 000 в год за м2
Позвонить Подробнее
Улица 1905 года (13 мин. 🚶)
Москва, Мантулинская улица, 2
Жилое здание "Мантулинская 2"
Тип: Торговое помещение
Площадь: 92.00 м2
400 000 в месяц
52 174 в год за м2
Позвонить Подробнее
Октябрьское Поле (20 мин. 🚶)
Москва, улица Берзарина, 30Б
ЖК "Октябрьское поле"
Тип: Торговое помещение
Площадь: 99.40 м2
Мощность:20 кВт
596 400 в месяц
72 000 в год за м2
Позвонить Подробнее
Ростокино (5 мин. 🚶)
Москва, Проспект Мира, 222
МФК "Мираполис"
Тип: Торговое помещение
Площадь: 107.40 м2
751 800 в месяц
84 000 в год за м2
Позвонить Подробнее
Полежаевская (12 мин. 🚶)
Москва, улица Зорге, 9Ак1
ОСЗ в ЖК "Зорге 9"
Тип: Торговое помещение
Площадь: 106.90 м2
Мощность:40 кВт
757 208 в месяц
85 000 в год за м2
Позвонить Подробнее
Ростокино (16 мин. 🚗)
Москва, улица Красная Сосна, 3
ЖК "Настроение"
Тип: Торговое помещение
Площадь: 103.70 м2
Мощность:26 кВт
980 000 в месяц
113 404 в год за м2
Позвонить Подробнее
Каширская (7 мин. 🚗)
Москва, Каширский проезд, 25к2
ЖК: LIFE-Варшавская (Лайф-Варшавская)
Тип: Торговое помещение
Площадь: 93.50 м2
480 000 в месяц
61 604 в год за м2
Позвонить Подробнее
Краснопресненская (5 мин. 🚶)
Москва, улица Красная Пресня, 12
Жилой дом " Красная Пресня 12"
Тип: Торговое помещение
Площадь: 109.00 м2
820 000 в месяц
90 275 в год за м2
Позвонить Подробнее
Белорусская (7 мин. 🚶)
Москва, улица Грузинский Вал, 9Б
Здание "Грузинский Вал, 9Б"
Тип: Торговое помещение
Площадь: 96.90 м2
Мощность:50 кВт
750 000 в месяц
92 879 в год за м2
Позвонить Подробнее
Волгоградский проспект (6 мин. 🚶)
Москва, Новоостаповская улица, 20
ЖК "HighWay (ХайВей)"
Тип: Торговое помещение
Площадь: 62.60 м2
Мощность:12 кВт
300 480 в месяц
57 600 в год за м2
Позвонить Подробнее
Волгоградский проспект (6 мин. 🚶)
Москва, Новоостаповская улица, 20
ЖК "HighWay (ХайВей)"
Тип: Торговое помещение
Площадь: 52.00 м2
Мощность:12 кВт
249 600 в месяц
57 600 в год за м2
Позвонить Подробнее
Менделеевская (3 мин. 🚶)
Москва, Сущёвская улица, 27с1
Бизнес-центр «Салют»
Тип: Торговое помещение
Площадь: 289.00 м2
Мощность:100 кВт
1 500 000 в месяц
62 284 в год за м2
Позвонить Подробнее
Ленинский проспект (4 мин. 🚶)
Москва, улица Вавилова, вл11
БЦ STONE Ленинский
Тип: Торговое помещение
Площадь: 931.70 м2
Мощность:20 кВт
4 619 680 в месяц
59 500 в год за м2
Позвонить Подробнее
Автозаводская (3 мин. 🚶)
Москва, Улица Мастеркова, 4
Торгово-офисный центр "Панорама"
Тип: Торговое помещение
Площадь: 200.00 м2
Мощность:110 кВт
1 000 000 в месяц
60 000 в год за м2
Позвонить Подробнее
Арбатская (Филевская) Арбатская (Арбатско-Покровская) (4 мин. 🚶)
Москва, Улица Новый Арбат, 5
Особняк «Новый Арбат 5»
Тип: Торговое помещение
Площадь: 718.30 м2
Мощность:260 кВт
3 500 000 в месяц
58 471 в год за м2
Позвонить Подробнее
Кутузовская (10 мин. 🚶)
Москва, Поклонная улица, 3
Деловой комплекс «Poklonka Place»
Тип: Торговое помещение
Площадь: 179.00 м2
857 708 в месяц
57 500 в год за м2
Позвонить Подробнее
Серпуховская (12 мин. 🚶)
Москва, Дубининская улица, 39-41с15
Бизнес-центр "Dubinin’Sky"
Тип: Торговое помещение
Площадь: 52.61 м2
Мощность:20 кВт
241 113 в месяц
54 996 в год за м2
Позвонить Подробнее
Серпуховская (12 мин. 🚶)
Москва, Дубининская улица, 39-41с15
Бизнес-центр "Dubinin’Sky"
Тип: Торговое помещение
Площадь: 67.86 м2
Мощность:20 кВт
311 029 в месяц
55 001 в год за м2
Позвонить Подробнее
Водный стадион (3 мин. 🚶)
Москва, Головинское шоссе, 3
БЦ "Флагман"
Тип: Торговое помещение
Площадь: 218.70 м2
Мощность:60 кВт
1 100 000 в месяц
60 357 в год за м2
Позвонить Подробнее
Калужская (15 мин. 🚶)
Москва, улица Академика Волгина, 2
ЖК "Архитектор"
Тип: Торговое помещение
Площадь: 120.90 м2
Мощность:30 кВт
590 000 в месяц
58 561 в год за м2
Позвонить Подробнее
Технопарк (5 мин. 🚶)
Москва, проспект Лихачёва, 8
Бизнес-Центр "Тесла"
Тип: Торговое помещение
Площадь: 2451.00 м2
Мощность:100 кВт
13 455 990 в месяц
65 880 в год за м2
Позвонить Подробнее
Университет (10 мин. 🚶)
Москва, улица Строителей, 13к1
Жилое здание "Строителей, 13к1"
Тип: Торговое помещение
Площадь: 167.50 м2
225 000 в месяц
16 119 в год за м2
Позвонить Подробнее
Университет (17 мин. 🚗)
Москва, улица Крупской, 8к2
Жилое здание "Крупской, 8к2"
Тип: Торговое помещение
Площадь: 25.00 м2
Мощность:15 кВт
45 000 в месяц
21 600 в год за м2
Позвонить Подробнее
Университет (17 мин. 🚗)
Москва, улица Крупской, 8к2
Жилое здание "Крупской, 8к2"
Тип: Торговое помещение
Площадь: 15.00 м2
Мощность:15 кВт
30 000 в месяц
24 000 в год за м2
Позвонить Подробнее

Спец. предложение

Университет (15 мин. 🚶)
Москва, Ленинский проспект, 75/9
Жилое здание на Ленинском проспекте
Тип: Торговое помещение
Площадь: 127.00 м2
Мощность:40 кВт
850 000 в месяц
80 315 в год за м2
Позвонить Подробнее
Университет (20 мин. 🚶)
Москва, Ленинский проспект, 87
Жилое здание "Ленинский проспект, 87"
Тип: Торговое помещение
Площадь: 301.70 м2
Мощность:50 кВт
600 000 в месяц
23 865 в год за м2
Позвонить Подробнее
Университет (12 мин. 🚶)
Москва, Ленинский проспект, 77к1
Жилое здание "Ленинский проспект, 77к1"
Тип: Торговое помещение
Площадь: 272.30 м2
Мощность:49 кВт
816 900 в месяц
36 000 в год за м2
Позвонить Подробнее