Аренда офиса Бизнес-центр «Двинцев»

Объект успешно реализован!
Аренда офиса Бизнес-центр «Двинцев» Аренда офиса Бизнес-центр «Двинцев» Аренда офиса Бизнес-центр «Двинцев»
Аренда офиса Бизнес-центр «Двинцев» - превью Аренда офиса Бизнес-центр «Двинцев» - превью Аренда офиса Бизнес-центр «Двинцев» - превью
Москва, Улица Двинцев, 12к1
Объект успешно реализован, но у нас есть много других интересных предложений. Позвоните по телефону +7 495 230-28-26, либо оставьте заявку на подбор прямо сейчас и получите список подходящих для вас объектов.
загрузка карты...
Аренда в год за м2 66 409 ₽
Аренда в месяц 3 779 779 ₽
Схема сделки прямая аренда
Общие
ID 63727
Тип сделки Аренда
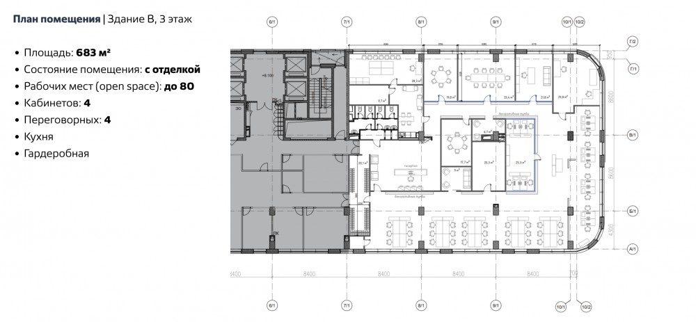
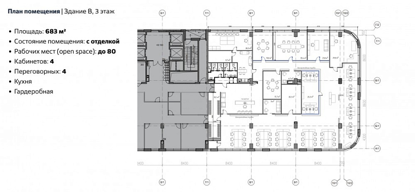
Площадь 683.00
Площадь всего 49000.00
Тип объекта Бизнес-центр
Класс здания A
Этаж 3
Всего этажей в здании 15
Метраж по этажам
Информация об объекте
Состояние объекта рабочее
Состояние блока качественная отделка
Планировка Смешанная
Коммуникации Система пожаротушения,Система видеонаблюдения,Интернет,Телефония
Отопление Центральное
Вентиляция и кондиционирование Современная система вентиляции и кондиционирования
КПП Гостевой пропуск
Коммерческие условия
Аренда в год за м2 66 409 ₽
Аренда в месяц 3 779 779 ₽
Схема сделки прямая аренда
Тип собственника Юридическое лицо

Описание объекта
Предлагаем в аренду офис в бизнес-центре класса А в Марьиной роще. До метро Савеловская и Марьина Роща 10 минут пешком.
Общая площадь 683м2, смешанная планировка (4 кабинета, open-space, 4 переговорных, гардеробная, кухня, санузел), ремонт за выездом арендатора. В здании приточно-вытяжная вентиляция, центральное кондиционирование.
Офис сдается без мебели.
В ставку включена эксплуатация, к/у оплачиваются отдельно.
За дополнительную плату предоставляют места на подземной парковке.
Офис будет свободен к заезду с 31 мая 2026.

Нужна консультация по подбору помещения под офис?

Наши специалисты подберут для вас самые выгодные варианты для долгосрочного инвестирования,
помогут в сопровождении и сделки, проверят все юридические вопросы касаемо приобретения недвижимости.

* Нажимая на кнопку «Отправить», Вы даете согласие на обработку персональных данных в соответствии с Политикой конфиденциальности

Похожие объекты

Смоленская (Филевская) Смоленская (Арбатско-Покровская) (3 мин. 🚶)
Москва, Смоленская площадь, 3
Бизнес-центр «Смоленский пассаж»
Тип: Офисы
Площадь: 719.70 м2
Отделка:выполнена стандартная офисная отделка
3 585 306 в месяц
59 780 в год за м2
Позвонить Подробнее
Достоевская (5 мин. 🚶)
Москва, Институтский переулок, 2
Бизнес центр "Достоевский"
Тип: Офисы
Площадь: 639.90 м2
Отделка:выполнена стандартная офисная отделка
6 588 000 в месяц
123 544 в год за м2
Позвонить Подробнее
Дмитровская (8 мин. 🚶)
Москва, Новодмитровская улица, 2Б
Деловой центр "Дмитровский"
Тип: Офисы
Площадь: 708.00 м2
Отделка:выполнена стандартная офисная отделка
2 242 000 в месяц
38 000 в год за м2
Позвонить Подробнее
Чкаловская (10 мин. 🚶)
Москва, Улица Земляной Вал, 50А/8с2
Бизнес-центр «СадКо»
Тип: Офисы
Площадь: 686.00 м2
Отделка:выполнена стандартная офисная отделка
2 964 092 в месяц
51 850 в год за м2
Позвонить Подробнее
Павелецкая (10 мин. 🚶)
Москва, Дубининская улица, 33Б
Офисное здание «Дубининская 33б»
Тип: Офисы
Площадь: 628.00 м2
Отделка:выполнена стандартная офисная отделка
1 177 500 в месяц
22 500 в год за м2
Позвонить Подробнее
Новослободская (5 мин. 🚶)
Москва, Краснопролетарская улица, 36
Бизнес-центр «Амбер Плаза»
Тип: Офисы
Площадь: 728.00 м2
Отделка:качественная отделка
3 700 667 в месяц
61 000 в год за м2
Позвонить Подробнее
ЦСКА (5 мин. 🚶)
Москва, Улица Авиаконструктора Микояна, 12
Бизнес-центр «Линкор»
Тип: Офисы
Площадь: 671.32 м2
Отделка:выполнена стандартная офисная отделка
2 252 279 в месяц
40 260 в год за м2
Позвонить Подробнее
Водный стадион (12 мин. 🚶)
Москва, Выборгская улица, 16с3
БЦ "Выборгский" с3
Тип: Офисы
Площадь: 662.00 м2
Отделка:выполнена стандартная офисная отделка
1 514 325 в месяц
27 450 в год за м2
Позвонить Подробнее
Тульская (17 мин. 🚗)
Москва, Новоданиловская набережная, 6к1
Бизнес-центр «Данилов Плаза»
Тип: Офисы
Площадь: 750.00 м2
Отделка:качественная отделка
2 250 000 в месяц
36 000 в год за м2
Позвонить Подробнее
Кунцевская (20 мин. 🚗)
Москва, Верейская улица, 11
Бизнес-центр «Квадрат»
Тип: Офисы
Площадь: 698.00 м2
Отделка:выполнена стандартная офисная отделка
2 617 500 в месяц
45 000 в год за м2
Позвонить Подробнее
Кунцевская (17 мин. 🚗)
Москва, Инновационный центр Сколково, улица Сикорского, 11
БЦ "Ренова Лаб Сколково"
Тип: Офисы
Площадь: 697.00 м2
Отделка:качественная отделка
2 125 850 в месяц
36 600 в год за м2
Позвонить Подробнее
Беговая (5 мин. 🚗)
Москва, 1-й Магистральный тупик, 5А
Бизнес-центр "Магистраль Плаза"
Тип: Офисы
Площадь: 627.00 м2
Отделка:качественная отделка
2 612 500 в месяц
50 000 в год за м2
Позвонить Подробнее
Кутузовская (10 мин. 🚶)
Москва, Поклонная улица, 3
Деловой комплекс «Poklonka Place»
Тип: Офисы
Площадь: 1325.85 м2
Отделка:выполнена стандартная офисная отделка
7 500 000 в месяц
67 881 в год за м2
Позвонить Подробнее
Марьина Роща (14 мин. 🚶)
Москва, Улица Сущёвский Вал, 18
Бизнес-центр «NOVO» (ново)
Тип: Офисы
Площадь: 1495.00 м2
Отделка:качественная отделка
7 724 167 в месяц
62 000 в год за м2
Позвонить Подробнее
Смоленская (Филевская) Смоленская (Арбатско-Покровская) (3 мин. 🚶)
Москва, Смоленская площадь, 3
Бизнес-центр «Смоленский пассаж»
Тип: Офисы
Площадь: 719.70 м2
Отделка:выполнена стандартная офисная отделка
3 585 306 в месяц
59 780 в год за м2
Позвонить Подробнее
Марьина Роща (14 мин. 🚶)
Москва, Улица Сущёвский Вал, 18
Бизнес-центр «NOVO» (ново)
Тип: Офисы
Площадь: 540.00 м2
Отделка:качественная отделка
2 700 000 в месяц
60 000 в год за м2
Позвонить Подробнее
Улица 1905 года (11 мин. 🚶)
Москва, Ходынская улица, 2с9
Административно-деловой комплекс "Ходынская 2/9"
Тип: Офисы
Площадь: 16277.00 м2
89 523 500 в месяц
66 000 в год за м2
Позвонить Подробнее
Киевская (5 мин. 🚶)
Москва, Киевская улица, 7
Бизнес-центр «Легион lll»
Тип: Офисы
Площадь: 1583.50 м2
Отделка:выполнена стандартная офисная отделка
8 181 417 в месяц
62 000 в год за м2
Позвонить Подробнее
Шаболовская (5 мин. 🚶)
Москва, улица Шухова, 14с9
Деловой центр «Шухова 14»
Тип: Офисы
Площадь: 343.04 м2
Отделка:выполнена стандартная офисная отделка
1 715 000 в месяц
59 993 в год за м2
Позвонить Подробнее
Шаболовская (11 мин. 🚶)
Москва, Ленинский проспект, 15А
Бизнес-центр «Central Park Tower»
Тип: Офисы
Площадь: 827.20 м2
Отделка:выполнена высококачественная отделка
4 793 624 в месяц
69 540 в год за м2
Позвонить Подробнее
Деловой центр Деловой центр (МЦК) (2 мин. 🚶)
Москва, Пресненская набережная, 6с2
Москва-Сити "Башня Империя"
Тип: Офисы
Площадь: 221.00 м2
Отделка:качественная отделка
1 200 000 в месяц
65 158 в год за м2
Позвонить Подробнее
Деловой центр Деловой центр (МЦК) (2 мин. 🚶)
Москва, Пресненская набережная, 6с2
Москва-Сити "Башня Империя"
Тип: Офисы
Площадь: 196.00 м2
Отделка:Shell and Core
1 100 000 в месяц
67 347 в год за м2
Позвонить Подробнее
ЦСКА (3 мин. 🚶)
Москва, Ходынский бульвар, 6с2
БЦ "STONE Ходынка 1"
Тип: Офисы
Площадь: 1693.80 м2
Отделка:Shell and Core
9 993 138 в месяц
70 798 в год за м2
Позвонить Подробнее
Чистые пруды (6 мин. 🚶)
Москва, Чистопрудный бульвар, 17с1
Бизнес-центр «Бульварное Кольцо»
Тип: Офисы
Площадь: 485.40 м2
Отделка:выполнена стандартная офисная отделка
2 911 591 в месяц
71 980 в год за м2
Позвонить Подробнее
Савёловская (7 мин. 🚶)
Москва, Вятская улица, 27с22
Бизнес-парк «Фактория»
Тип: Офисы
Площадь: 4344.90 м2
Отделка:выполнена стандартная офисная отделка
14 483 000 в месяц
40 000 в год за м2
Позвонить Подробнее
Савёловская (7 мин. 🚶)
Москва, Вятская улица, 27с20
Бизнес-парк «Фактория»
Тип: Офисы
Площадь: 5062.00 м2
Отделка:выполнена стандартная офисная отделка
14 764 167 в месяц
35 000 в год за м2
Позвонить Подробнее
Савёловская (7 мин. 🚶)
Москва, Вятская улица, 27с20
Бизнес-парк «Фактория»
Тип: Офисы
Площадь: 2468.00 м2
Отделка:выполнена стандартная офисная отделка
7 198 333 в месяц
35 000 в год за м2
Позвонить Подробнее
Савёловская (7 мин. 🚶)
Москва, Вятская улица, 27с19
Бизнес-парк «Фактория»
Тип: Офисы
Площадь: 2594.00 м2
Отделка:выполнена стандартная офисная отделка
7 565 833 в месяц
35 000 в год за м2
Позвонить Подробнее
Савёловская (5 мин. 🚶)
Москва, Улица Правды, 26
Бизнес-центр «Северное сияние»
Тип: Офисы
Площадь: 2279.00 м2
Отделка:выполнена стандартная офисная отделка
13 438 503 в месяц
70 760 в год за м2
Позвонить Подробнее
Савёловская (10 мин. 🚶)
Москва, Улица Двинцев, 12к1
Бизнес-центр «Двинцев»
Тип: Офисы
Площадь: 362.00 м2
Отделка:качественная отделка
2 003 338 в месяц
66 409 в год за м2
Позвонить Подробнее
Савёловская (5 мин. 🚶)
Москва, Бумажный проезд, 19с4
БЦ STONE TOWERS
Тип: Офисы
Площадь: 70.00 м2
Отделка:выполнена высококачественная отделка
370 000 в месяц
63 429 в год за м2
Позвонить Подробнее
Савёловская (5 мин. 🚶)
Москва, Бумажный проезд, 19с4
БЦ STONE TOWERS
Тип: Офисы
Площадь: 280.00 м2
Отделка:качественная отделка
1 633 334 в месяц
70 000 в год за м2
Позвонить Подробнее
Савёловская (5 мин. 🚶)
Москва, Улица Правды, 26
Бизнес-центр «Северное сияние»
Тип: Офисы
Площадь: 1287.00 м2
Отделка:отделка арендатора
6 803 940 в месяц
63 440 в год за м2
Позвонить Подробнее
Савёловская (5 мин. 🚶)
Москва, Улица Правды, 26
Бизнес-центр «Северное сияние»
Тип: Офисы
Площадь: 2290.00 м2
Отделка:выполнена высококачественная отделка
10 476 750 в месяц
54 900 в год за м2
Позвонить Подробнее
Савёловская (10 мин. 🚶)
Москва, Улица Двинцев, 12к1
Бизнес-центр «Двинцев»
Тип: Офисы
Площадь: 903.00 м2
Отделка:качественная отделка
4 997 277 в месяц
66 409 в год за м2
Позвонить Подробнее
Савёловская (5 мин. 🚶)
Москва, Бумажный проезд, 19с4
БЦ STONE TOWERS
Тип: Офисы
Площадь: 143.00 м2
Отделка:Shell and Core
540 000 в месяц
45 315 в год за м2
Позвонить Подробнее