Продажа торгового помещения Жилое здание "Ленинский проспект, 88к2"

Продажа торгового помещения Жилое здание Продажа торгового помещения Жилое здание
Продажа торгового помещения Жилое здание Продажа торгового помещения Жилое здание
Москва, Ленинский проспект, 88к2
Позвоните по телефону +7 495 230-28-26, либо оставьте заявку на просмотр прямо сейчас и узнайте условия специального предложения по объекту.
загрузка карты...
Общие
ID 63743
Тип сделки Продажа
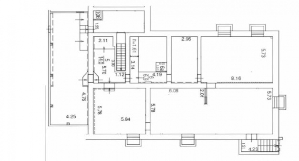
Площадь 265.20
Площадь всего 12382.00
Тип объекта Жилое здание
Этаж -1
Всего этажей в здании 8
Метраж по этажам
Информация об объекте
Состояние объекта рабочее
Состояние блока отделка арендатора
Планировка Залы и кабинеты
Перекрытия Железобетонные
Парковка Бесплатная парковка
Нюансы Отдельный вход,ПСН
Торговая недвижимость
Линия домов 2 линия
Возможности Зона разгрузки,Место для рекламы,Проходное место
Электр. мощность (кВт) 15
Коммерческие условия
За все 33 900 000 ₽
За м 2 127 828 ₽
Тип собственника Юридическое лицо

Описание объекта
Продается помещение на цокольном этаже по адресу: Москва, Ленинский проспект, д. 88, корп. 2, площадью 265,2 м2. В шаговой доступности: 2 минуты пешком до остановки общественного транспорта и 10 минут до станции метро Новаторская. Рядом 1 школы и 2 детских сада. Проживает в 10 минутах ходьбы 35 266 чел.

Технические характеристики:
Водоснабжение, теплоснабжение, канализация
Бесплатная парковка, мокрые точки: есть

Нужна консультация покупке или продаже торговых помещений?

Наши специалисты подберут для вас самые выгодные варианты для долгосрочного инвестирования,
помогут в сопровождении и сделки, проверят все юридические вопросы касаемо приобретения недвижимости.

* Нажимая на кнопку «Отправить», Вы даете согласие на обработку персональных данных в соответствии с Политикой конфиденциальности

Похожие объекты

Сокол Сокольники Соколиная Гора (3 мин. 🚶)
Москва, Ленинградский проспект, 69с1
Жилое здание "Ленинградский пр-т 69"
Тип: Торговое помещение
Площадь: 250.00 м2
Мощность:100 кВт
57 000 000 за все
228 000 за м2
Позвонить Подробнее
Комсомольская (2 мин. 🚶)
Москва, Комсомольская площадь, 6
Универмаг Московсий
Тип: Торговое помещение
Площадь: 250.00 м2
Мощность:50 кВт
45 000 000 за все
180 000 за м2
Позвонить Подробнее
Парк культуры (10 мин. 🚶)
Москва, Зубовская улица, 7
Авторский дом "Roza Rossa"
Тип: Торговое помещение
Площадь: 285.70 м2
Мощность:58 кВт
250 000 000 за все
875 044 за м2
Позвонить Подробнее
Первомайская (12 мин. 🚶)
Москва, 5-я Парковая улица, 42
Жилое здание "5-я Парковая улица, 42"
Тип: Торговое помещение
Площадь: 286.50 м2
Мощность:15 кВт
76 000 000 за все
265 271 за м2
Позвонить Подробнее
(10 мин. 🚗)
Москва, Долгопрудная аллея, 15к5
ЖК "Мой Адрес в Северном"
Тип: Торговое помещение
Площадь: 248.00 м2
Мощность:50 кВт
56 999 000 за все
229 835 за м2
Позвонить Подробнее
Кунцевская (18 мин. 🚗)
Москва, улица Петра Алексеева, 12с1
КутузовGRAD II (КутузовГрад II) МАНУФАКТУРА XIX
Тип: Торговое помещение
Площадь: 288.40 м2
Мощность:73 кВт
184 880 000 за все
641 054 за м2
Позвонить Подробнее
Улица 1905 года (14 мин. 🚶)
Москва, улица Сергея Макеева, вл11/9с1-10
ЖК "LIFE TIME"
Тип: Торговое помещение
Площадь: 244.40 м2
Мощность:46 кВт
283 660 000 за все
1 160 638 за м2
Позвонить Подробнее
Бутырская (5 мин. 🚶)
Москва, Огородный проезд, 4с1
ЖК "Upside Towers (Апсайд Тауэрс)"
Тип: Торговое помещение
Площадь: 266.28 м2
Мощность:36 кВт
109 184 500 за все
410 036 за м2
Позвонить Подробнее
Боровское шоссе (17 мин. 🚗)
Москва, Инновационный центр Сколково, район Южный
Upside Tech в Сколково
Тип: Торговое помещение
Площадь: 256.59 м2
120 646 604 за все
470 192 за м2
Позвонить Подробнее
Ховрино (15 мин. 🚗)
Москва, Лобненская улица, 14
ТЦ "Зодиак"
Тип: Торговое помещение
Площадь: 270.50 м2
Мощность:70 кВт
70 113 600 за все
259 200 за м2
Позвонить Подробнее
Арбатская (Филевская) Арбатская (Арбатско-Покровская) (7 мин. 🚶)
Москва, Большая Никитская улица, 12с1
Офисное здание «Большая Никитская 12»
Тип: Торговое помещение
Площадь: 248.90 м2
485 000 000 за все
1 948 574 за м2
Позвонить Подробнее
Калужская (7 мин. 🚶)
Москва, Старокалужское шоссе, 62
Бизнес-центр «Vallex»
Тип: Торговое помещение
Площадь: 268.40 м2
Мощность:35 кВт
103 344 000 за все
385 037 за м2
Позвонить Подробнее
Речной вокзал (14 мин. 🚶)
Москва, ЖК Мангазея на Речном
ЖК "Мангазея на Речном"
Тип: Торговое помещение
Площадь: 25.40 м2
Мощность:20 кВт
33 020 000 за все
1 300 000 за м2
Позвонить Подробнее
Электрозаводская (1 мин. 🚶)
Москва, Большая Семёновская улица, 23А
Административное Здание
Тип: Торговое помещение
Площадь: 50.00 м2
Мощность:15 кВт
32 000 000 за все
640 000 за м2
Позвонить Подробнее
(16 мин. 🚗)
Москва, Базовская улица, 24Б
Жилое здание "Базовская улица, 24Б"
Тип: Торговое помещение
Площадь: 118.10 м2
Мощность:25 кВт
35 000 000 за все
296 359 за м2
Позвонить Подробнее
Пятницкое шоссе (10 мин. 🚗)
Московская область, Красногорск, Парковая улица, 2
ЖК "LEVEL Лесной"
Тип: Торговое помещение
Площадь: 133.80 м2
Мощность:27 кВт
34 000 000 за все
254 111 за м2
Позвонить Подробнее
Ростокино (5 мин. 🚶)
Москва, Проспект Мира, 222
МФК "Мираполис"
Тип: Торговое помещение
Площадь: 33.30 м2
33 000 000 за все
990 991 за м2
Позвонить Подробнее
Кузьминки (20 мин. 🚶)
Москва, Волгоградский проспект, 138к4
Жилой дом "Волгоградский пр-т 138к4"
Тип: Торговое помещение
Площадь: 86.00 м2
Мощность:17 кВт
37 000 000 за все
430 233 за м2
Позвонить Подробнее
Кунцевская (18 мин. 🚗)
Москва, улица Петра Алексеева, 12с1
КутузовGRAD II (КутузовГрад II) МАНУФАКТУРА XIX
Тип: Торговое помещение
Площадь: 57.70 м2
Мощность:8 кВт
35 910 000 за все
622 357 за м2
Позвонить Подробнее
(5 мин. 🚶)
Москва, Новомосковский административный округ, посёлок Коммунарка, улица Александры Монаховой
ЖК Скандинавия 7.4
Тип: Торговое помещение
Площадь: 201.60 м2
34 389 593 за все
170 583 за м2
Позвонить Подробнее
Алексеевская
Москва, проспект Мира, 97
Жилое здание "проспект Мира, 97"
Тип: Торговое помещение
Площадь: 7.90 м2
34 500 000 за все
4 367 089 за м2
Позвонить Подробнее
Новослободская (3 мин. 🚶)
Москва, Долгоруковская улица, 27с1
Долгоруковская улица, 27с1
Тип: Торговое помещение
Площадь: 42.60 м2
Мощность:15 кВт
34 080 000 за все
800 000 за м2
Позвонить Подробнее
Смоленская (Филевская) Смоленская (Арбатско-Покровская) (10 мин. 🚶)
Москва, Улица Новый Арбат, 30/9
Жилое здание «Новый Арбат 30/9»
Тип: Торговое помещение
Площадь: 61.70 м2
33 000 000 за все
534 846 за м2
Позвонить Подробнее
Тульская (11 мин. 🚗)
Москва, ЖК Пейв
ЖК "ПЕЙВ"
Тип: Торговое помещение
Площадь: 37.80 м2
31 113 180 за все
823 100 за м2
Позвонить Подробнее