Продажа торгового помещения КутузовGRAD II (КутузовГрад II) МАНУФАКТУРА XIX

Продажа торгового помещения КутузовGRAD II (КутузовГрад II)  МАНУФАКТУРА XIX Продажа торгового помещения КутузовGRAD II (КутузовГрад II)  МАНУФАКТУРА XIX Продажа торгового помещения КутузовGRAD II (КутузовГрад II)  МАНУФАКТУРА XIX Продажа торгового помещения КутузовGRAD II (КутузовГрад II)  МАНУФАКТУРА XIX
Продажа торгового помещения КутузовGRAD II (КутузовГрад II)  МАНУФАКТУРА XIX - превью Продажа торгового помещения КутузовGRAD II (КутузовГрад II)  МАНУФАКТУРА XIX - превью Продажа торгового помещения КутузовGRAD II (КутузовГрад II)  МАНУФАКТУРА XIX - превью Продажа торгового помещения КутузовGRAD II (КутузовГрад II)  МАНУФАКТУРА XIX - превью
Москва, улица Петра Алексеева, 12с1
Позвоните по телефону +7 495 230-28-26, либо оставьте заявку на просмотр прямо сейчас и узнайте условия специального предложения по объекту.
загрузка карты...
Общие
ID 63899
Тип сделки Продажа
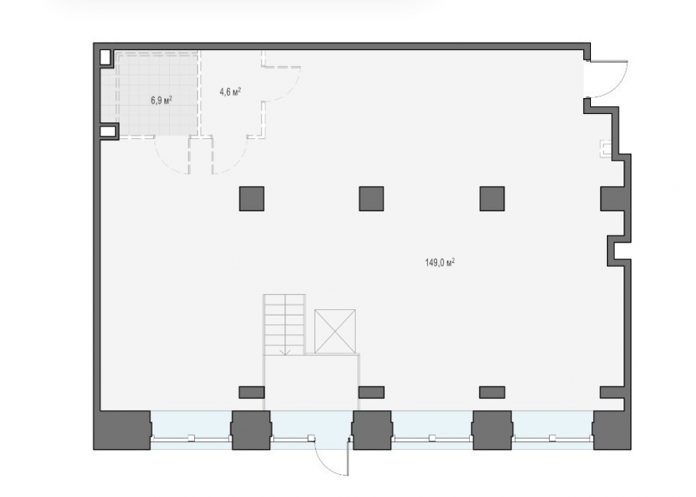
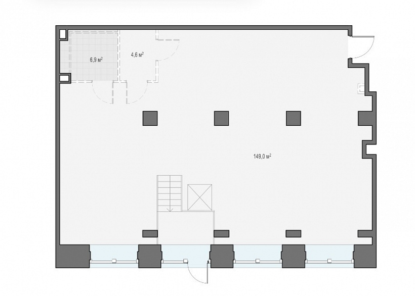
Площадь 160.50
Тип объекта Бизнес-центр
Этаж 1
Всего этажей в здании 4
Метраж по этажам
Информация об объекте
Состояние объекта рабочее
Состояние блока Shell and Core
Планировка Открытая
Перекрытия Железобетонные
Нюансы Отдельный вход
Торговая недвижимость
Линия домов 1 линия
Возможности Зона разгрузки,Витрины,Место для рекламы,Проходное место,Проездное место
Электр. мощность (кВт) 16
Коммерческие условия
За все 111 870 000 ₽
За м 2 697 009 ₽
Тип собственника Юридическое лицо

Описание объекта
Торговое помещение на 1 этаже площадью 160,5 кв. м. В помещении предусмотрены
панорамные витрины, мокрая точка, место под рекламную вывеску. Высота потолка 3,86
метра. Правильная форма и отсутствие несущих конструкций позволяют максимально
эффективно зонировать пространство. Предусмотрена электрическая мощность 16,1 кВт.
Преимущества
• Возможность вывески
• Мокрая точка в офисе
• Отдельная вентиляция
Готовность 4 кв. 2027 г.

Нужна консультация покупке или продаже торговых помещений?

Наши специалисты подберут для вас самые выгодные варианты для долгосрочного инвестирования,
помогут в сопровождении и сделки, проверят все юридические вопросы касаемо приобретения недвижимости.

* Нажимая на кнопку «Отправить», Вы даете согласие на обработку персональных данных в соответствии с Политикой конфиденциальности

Похожие объекты

Окружная (10 мин. 🚗)
Москва, Алтуфьевское шоссе, 35к1
МФК "HALO (ГАЛО)"
Тип: Торговое помещение
Площадь: 148.20 м2
28 009 800 за все
189 000 за м2
Позвонить Подробнее
(10 мин. 🚗)
Москва, Долгопрудная аллея, 15к5
ЖК "Мой Адрес в Северном"
Тип: Торговое помещение
Площадь: 160.00 м2
Мощность:32 кВт
38 500 000 за все
240 625 за м2
Позвонить Подробнее
Селигерская (15 мин. 🚶)
Москва, Бескудниковский бульвар, 56к1
Жилое здание "Бескудниковский бульвар, 56к1"
Тип: Торговое помещение
Площадь: 155.00 м2
46 500 000 за все
300 000 за м2
Позвонить Подробнее
Озёрная (3 мин. 🚶)
Москва, Озёрная улица, 42с1
ЖК "Страна Озёрная"
Тип: Торговое помещение
Площадь: 169.70 м2
93 600 000 за все
551 562 за м2
Позвонить Подробнее
Беляево (10 мин. 🚶)
Москва, улица Миклухо-Маклая, вл23
ЖК "Very (ВЕРИ)"
Тип: Торговое помещение
Площадь: 153.70 м2
93 757 000 за все
610 000 за м2
Позвонить Подробнее
Улица 1905 года (14 мин. 🚶)
Москва, улица Сергея Макеева, вл11/9с1-10
ЖК "LIFE TIME"
Тип: Торговое помещение
Площадь: 168.60 м2
222 360 000 за все
1 318 861 за м2
Позвонить Подробнее
Улица 1905 года (14 мин. 🚶)
Москва, улица Сергея Макеева, вл11/9с1-10
ЖК "LIFE TIME"
Тип: Торговое помещение
Площадь: 172.10 м2
209 070 000 за все
1 214 817 за м2
Позвонить Подробнее
Тульская (2 мин. 🚶)
Москва, Гамсоновский переулок, 2с11
Бизнес-центр "Рябовская мануфактура" Ryabov LOFT
Тип: Торговое помещение
Площадь: 153.30 м2
Мощность:40 кВт
70 518 000 за все
460 000 за м2
Позвонить Подробнее
Беляево (10 мин. 🚶)
Москва, улица Введенского, 13В
ЖК "ул. Введенского, д. 13В"
Тип: Торговое помещение
Площадь: 144.00 м2
Мощность:40 кВт
65 000 000 за все
451 389 за м2
Позвонить Подробнее
Печатники (15 мин. 🚶)
Москва, ЖК Портленд
ЖК "Портленд"
Тип: Торговое помещение
Площадь: 149.70 м2
87 110 430 за все
581 900 за м2
Позвонить Подробнее
Аэропорт (5 мин. 🚶)
Москва, Ленинградский проспект, 47
Административное здание AIR Space
Тип: Торговое помещение
Площадь: 171.10 м2
Мощность:35 кВт
35 000 000 за все
204 559 за м2
Позвонить Подробнее
Новослободская (2 мин. 🚶)
Москва, Долгоруковская улица, 40
Жилое здание "Долгоруковская ул.,40"
Тип: Торговое помещение
Площадь: 161.90 м2
171 600 000 за все
1 059 914 за м2
Позвонить Подробнее
Тульская (9 мин. 🚶)
Москва, ЖК Аура
ЖК "АУРА"
Тип: Торговое помещение
Площадь: 98.40 м2
Мощность:30 кВт
113 317 440 за все
1 151 600 за м2
Позвонить Подробнее
Тульская (9 мин. 🚶)
Москва, ЖК Аура
ЖК "АУРА"
Тип: Торговое помещение
Площадь: 107.90 м2
Мощность:32 кВт
121 560 140 за все
1 126 600 за м2
Позвонить Подробнее
Тульская (9 мин. 🚶)
Москва, ЖК Аура
ЖК "АУРА"
Тип: Торговое помещение
Площадь: 105.70 м2
Мощность:32 кВт
119 419 860 за все
1 129 800 за м2
Позвонить Подробнее
Тульская (9 мин. 🚶)
Москва, ЖК Аура
ЖК "АУРА"
Тип: Торговое помещение
Площадь: 87.50 м2
Мощность:26 кВт
102 138 750 за все
1 167 300 за м2
Позвонить Подробнее
Селигерская (1 мин. 🚶)
Москва, Коровинское шоссе, 1А
ОСЗ "Коровинское ш., д.1А стр.1"
Тип: Торговое помещение
Площадь: 208.40 м2
114 000 000 за все
547 025 за м2
Позвонить Подробнее
Краснопресненская (5 мин. 🚶)
Москва, улица Красная Пресня, 12
Жилой дом " Красная Пресня 12"
Тип: Торговое помещение
Площадь: 109.00 м2
113 000 000 за все
1 036 697 за м2
Позвонить Подробнее
Бутырская (5 мин. 🚶)
Москва, Огородный проезд, 4с1
ЖК "Upside Towers (Апсайд Тауэрс)"
Тип: Торговое помещение
Площадь: 266.28 м2
Мощность:36 кВт
109 184 500 за все
410 036 за м2
Позвонить Подробнее
Боровское шоссе (17 мин. 🚗)
Москва, Инновационный центр Сколково, район Южный
Upside Tech в Сколково
Тип: Торговое помещение
Площадь: 256.59 м2
120 646 604 за все
470 192 за м2
Позвонить Подробнее
Киевская (7 мин. 🚶)
Москва, Брянская улица, 12
Жилой дом "Брянская 12"
Тип: Торговое помещение
Площадь: 83.70 м2
110 400 000 за все
1 318 996 за м2
Позвонить Подробнее
Цветной бульвар (5 мин. 🚶)
Москва, Садовая-Каретная улица, 24/7
Жилое здание "Садовая-Каретная улица, 24/7"
Тип: Торговое помещение
Площадь: 377.00 м2
115 000 000 за все
305 040 за м2
Позвонить Подробнее
Калужская (7 мин. 🚶)
Москва, Старокалужское шоссе, 62
Бизнес-центр «Vallex»
Тип: Торговое помещение
Площадь: 268.40 м2
Мощность:35 кВт
103 344 000 за все
385 037 за м2
Позвонить Подробнее
Курская (2 мин. 🚶)
Москва, улица Земляной Вал, 23с1
Жилое здание " Земляной Вал, 23с1"
Тип: Торговое помещение
Площадь: 138.90 м2
105 600 000 за все
760 259 за м2
Позвонить Подробнее
Кунцевская (18 мин. 🚗)
Москва, улица Петра Алексеева, 12с1
КутузовGRAD II (КутузовГрад II) МАНУФАКТУРА XIX
Тип: Торговое помещение
Площадь: 288.40 м2
Мощность:73 кВт
184 880 000 за все
641 054 за м2
Позвонить Подробнее
Кунцевская (18 мин. 🚗)
Москва, улица Петра Алексеева, 12с1
КутузовGRAD II (КутузовГрад II) МАНУФАКТУРА XIX
Тип: Торговое помещение
Площадь: 57.70 м2
Мощность:8 кВт
35 910 000 за все
622 357 за м2
Позвонить Подробнее
Кунцевская (25 мин. 🚗)
Московская область, Одинцовский городской округ, Звенигород, район Восточный, 3-й микрорайон, 17
ЖК "Восточный"
Тип: Торговое помещение
Площадь: 69.20 м2
Мощность:15 кВт
17 950 000 за все
259 393 за м2
Позвонить Подробнее