Продажа офиса Особняк "Часовая улица, 16с9"

Продажа офиса Особняк Продажа офиса Особняк Продажа офиса Особняк Продажа офиса Особняк Продажа офиса Особняк Продажа офиса Особняк
Продажа офиса Особняк Продажа офиса Особняк Продажа офиса Особняк Продажа офиса Особняк Продажа офиса Особняк Продажа офиса Особняк
Москва, Часовая улица, 16с9
Позвоните по телефону +7 495 230-28-26, либо оставьте заявку на просмотр прямо сейчас и узнайте условия специального предложения по объекту.
загрузка карты...
Капина Владлена Викторовна

Объект ведет консультант:

Капина Владлена Викторовна

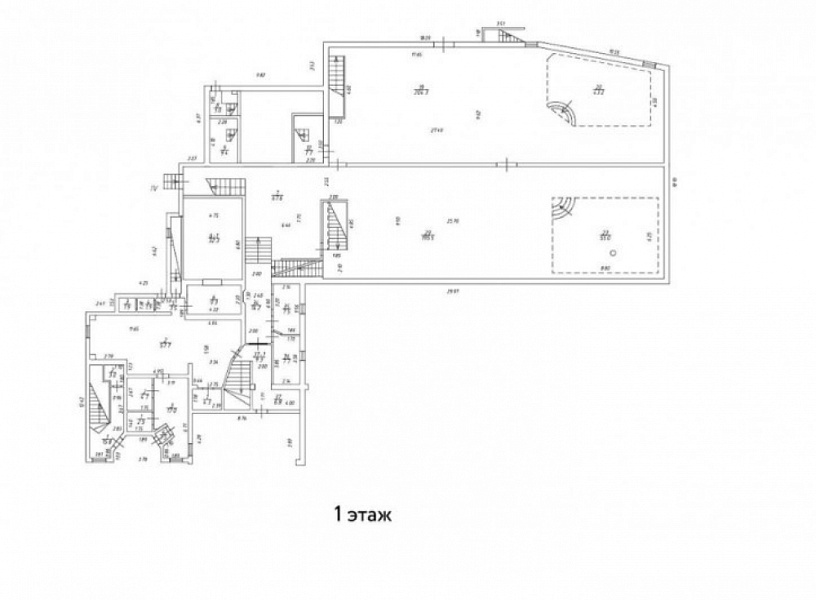
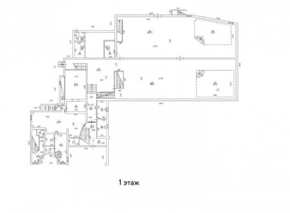
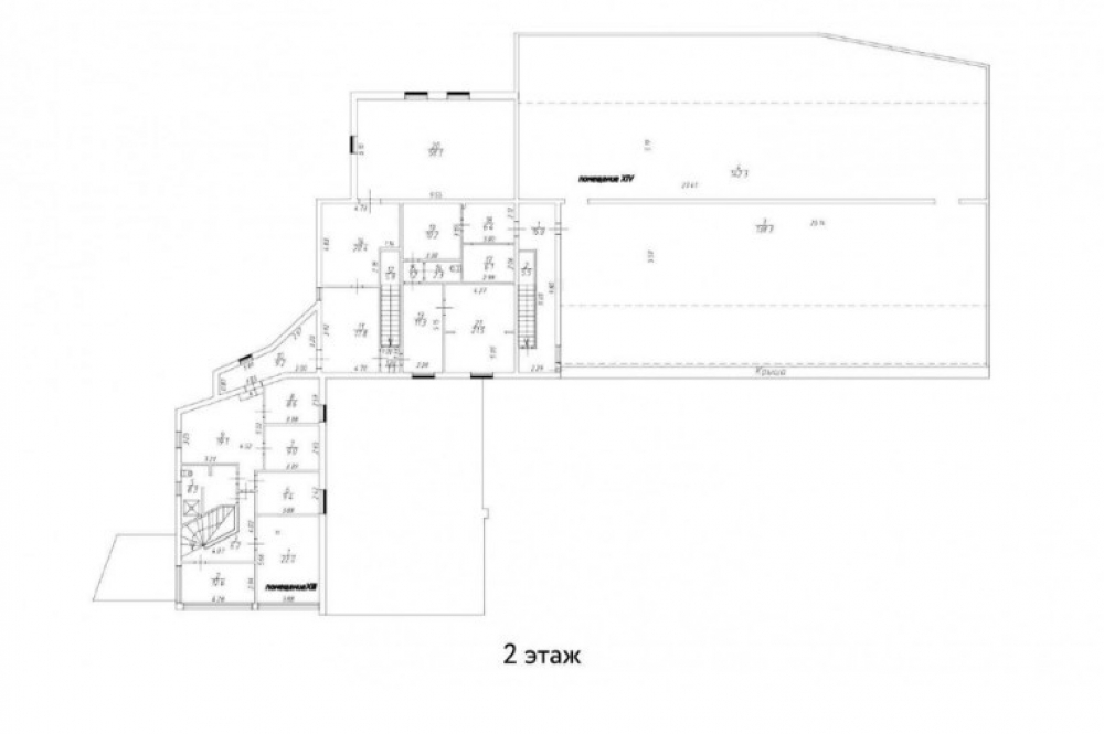
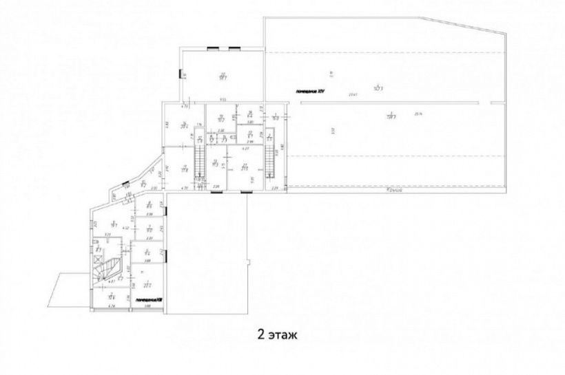
Общие
ID 64097
Тип сделки Продажа
Площадь 2195.00
Площадь всего 2195.00
Тип объекта Особняк
Этаж 1 - 2
Всего этажей в здании 2
Метраж по этажам
Информация об объекте
Состояние объекта рабочее
Состояние блока помещение без отделки
Планировка Смешанная
Перекрытия Железобетонные
Парковка парковка на 10 машин
Нюансы Отдельный вход
Торговая недвижимость
Линия домов 1 линия
Возможности Зона разгрузки,Витрины,Место для рекламы,Проходное место,Проездное место
Электр. мощность (кВт) 160
Коммерческие условия
За все 320 000 000 ₽
За м 2 145 786 ₽
Тип собственника Юридическое лицо

Описание объекта
Двухэтажный особняк с подвалом на улице Часовая в районе Аэропорт. Здание А класса 2001 года постройки с пройденной технической экспертизой под реконструкцию. Внутри
смешанная планировка включающая в себя большие залы и кабинеты различной площади, высота потолков от 2,55 до 5,5 метров. Благодаря панорамному остеклению в помещениях
много естественного освещения. Электрическая мощность составляет 160 кВт. На собственной огороженной территории площадью 1 820 м² предусмотрена наземная парковка.

После реконструкции особняк подойдет для размещения офиса, медицинской клиники или развлекательного центра.

Особняк расположен рядом с Амбулаторным прудом и надёжно укрыто от шума улиц в тихом дворе. В окружении находятся государственные и образовательные учреждения, медицинские центры и отделения крупных банков. В пешей доступности торговый центр «Ленинградский» и музей «Экспериментаниум». Удобные выезды на Ленинградский
проспект и Волоколамское шоссе. До ТТК и МКАД на машине можно доехать за 15 минут. За 14 минут пешком можно дойти до метро «Аэропорт» и станции МЦД-2 «Красный Балтиец».

Площадь земли 1 820 м², аренда.

Нужна консультация по покупке или продаже офиса?

Наши специалисты подберут для вас самые выгодные варианты для долгосрочного инвестирования,
помогут в сопровождении и сделки, проверят все юридические вопросы касаемо приобретения недвижимости.

* Нажимая на кнопку «Отправить», Вы даете согласие на обработку персональных данных в соответствии с Политикой конфиденциальности

Похожие объекты

Электрозаводская (10 мин. 🚶)
Москва, Большая Почтовая улица, 36с1
Особняк «Большая Почтовая 36с1»
Тип: Офисы
Площадь: 2035.00 м2
Отделка:качественная отделка
650 000 000 за все
319 410 за м2
Позвонить Подробнее
Тверская (9 мин. 🚶)
Москва, Столешников переулок, 6с3
Особняк «Столешников 6 с3»
Тип: Офисы
Площадь: 2216.90 м2
Отделка:отделка арендатора
1 573 821 240 за все
709 920 за м2
Позвонить Подробнее
Октябрьское Поле (2 мин. 🚶)
Москва, улица Маршала Мерецкова, 3
Особняк "Маршала Мерецкова, 3"
Тип: Офисы
Площадь: 2400.00 м2
Отделка:отделка арендатора
564 000 000 за все
235 000 за м2
Позвонить Подробнее
Павелецкая (12 мин. 🚶)
Москва, Летниковская улица, 10с2
Бизнес-центр «Святогор-2»
Тип: Офисы
Площадь: 2365.40 м2
Отделка:выполнена стандартная офисная отделка
600 000 000 за все
253 657 за м2
Позвонить Подробнее
Белорусская (17 мин. 🚶)
Москва, улица Пресненский Вал, 27с8
ЖК REPUBLIC (Репаблик)
Тип: Офисы
Площадь: 2189.00 м2
Отделка:требуется косметический ремонт
1 550 000 000 за все
708 086 за м2
Позвонить Подробнее
(6 мин. 🚗)
Москва, Новомосковский административный округ, район Внуково, Боровское шоссе, 29-й километр, 4с2
Бизнес-парк "Переделкино"
Тип: Офисы
Площадь: 2027.70 м2
Отделка:помещение без отделки
450 757 710 за все
222 300 за м2
Позвонить Подробнее
Павелецкая (15 мин. 🚶)
Москва, Жуков проезд, вл8
Бизнес-центр TALLER
Тип: Офисы
Площадь: 2158.00 м2
Отделка:Shell and Core
1 172 434 078 за все
543 297 за м2
Позвонить Подробнее
Цветной бульвар (6 мин. 🚶)
Москва, Трубная улица, 23к2
Офисный особняк "Трубная улица, 23к2"
Тип: Офисы
Площадь: 2000.00 м2
Отделка:выполнена стандартная офисная отделка
1 700 000 000 за все
850 000 за м2
Позвонить Подробнее
Авиамоторная (7 мин. 🚶)
Москва, 1-я улица Энтузиастов, 6
Офисное здание «1-я Энтузиастов 6»
Тип: Офисы
Площадь: 2135.10 м2
Отделка:выполнена стандартная офисная отделка
210 000 000 за все
98 356 за м2
Позвонить Подробнее
Первомайская (23 мин. 🚗)
Москва, 16-я Парковая улица, 21к1
Офисное здание «16-я Парковая 21 к1»
Тип: Офисы
Площадь: 2240.00 м2
273 280 000 за все
122 000 за м2
Позвонить Подробнее
Бауманская (8 мин. 🚶)
Москва, Доброслободская улица, 9/2
Особняк "Доброслободская улица, 9/2"
Тип: Офисы
Площадь: 601.00 м2
Отделка:отделка в стиле Loft
300 000 000 за все
499 168 за м2
Позвонить Подробнее
Бауманская (6 мин. 🚶)
Москва, Спартаковская площадь, 14с2
Особняк "Спартаковская площадь, 14с2"
Тип: Офисы
Площадь: 1775.00 м2
Отделка:качественная отделка
330 000 000 за все
185 915 за м2
Позвонить Подробнее
Достоевская (6 мин. 🚶)
Москва, 2-й Самотёчный переулок, 3
Особняк "2-й Самотёчный переулок, 3"
Тип: Офисы
Площадь: 473.00 м2
Отделка:выполнена высококачественная отделка
350 000 000 за все
739 958 за м2
Позвонить Подробнее
Спортивная (12 мин. 🚶)
Москва, Большой Саввинский переулок, 12с3
Особняк "Б. Саввинский пер. 12с3"
Тип: Офисы
Площадь: 379.00 м2
290 000 000 за все
765 172 за м2
Позвонить Подробнее
Воробьёвы горы (13 мин. 🚶)
Закрытая продажа #58582
Тип: Офисы
Площадь: 869.00 м2
305 000 000 за все
350 978 за м2
Позвонить Подробнее
Алексеевская (12 мин. 🚶)
Москва, Улица Бочкова, 11
ЖК "ILove" (Ай Лав)
Тип: Офисы
Площадь: 3557.50 м2
Отделка:Shell and Core
300 000 000 за все
84 329 за м2
Позвонить Подробнее
Площадь Ильича (13 мин. 🚶)
Москва, Николоямская улица, 51с2
Особняк «Николоямская 51 с2»
Тип: Офисы
Площадь: 452.00 м2
Отделка:требуется косметический ремонт
300 000 000 за все
663 717 за м2
Позвонить Подробнее
Фонвизинская (6 мин. 🚶)
Москва, Огородный проезд, 20
Бизнес-центр UPSIDE (Апсайд) ОСТАНКИНО
Тип: Офисы
Площадь: 735.62 м2
Отделка:Shell and Core
320 951 006 за все
436 300 за м2
Позвонить Подробнее
Пражская (15 мин. 🚗)
Москва, Дорожная улица, 3к19
Административное здание "Дорожная, 3к19"
Тип: Офисы
Площадь: 4939.80 м2
Отделка:выполнена стандартная офисная отделка
320 000 000 за все
64 780 за м2
Позвонить Подробнее
Маяковская (5 мин. 🚶)
Москва, 2-я Брестская улица, 6
Бизнес-центр «Резиденция Тверская»
Тип: Офисы
Площадь: 236.00 м2
Отделка:выполнена высококачественная отделка
322 750 000 за все
1 367 585 за м2
Позвонить Подробнее
Красные Ворота (4 мин. 🚶)
Москва, Центральный административный округ, Красносельский район, Каланчёвская улица, 13
Бизнес-центр "Каланчевская, 13"
Тип: Офисы
Площадь: 1431.80 м2
Отделка:качественная отделка
330 000 000 за все
230 479 за м2
Позвонить Подробнее
Китай-город (1 мин. 🚶)
Москва, Лубянский проезд, 21с1
ОСЗ "Лубянский пр., 21с1"
Тип: Офисы
Площадь: 720.40 м2
Отделка:выполнена стандартная офисная отделка
310 800 000 за все
431 427 за м2
Позвонить Подробнее