Аренда офиса Бизнес-центр «СитиДел»

Аренда офиса Бизнес-центр «СитиДел» Аренда офиса Бизнес-центр «СитиДел» Аренда офиса Бизнес-центр «СитиДел»
Аренда офиса Бизнес-центр «СитиДел» - превью Аренда офиса Бизнес-центр «СитиДел» - превью Аренда офиса Бизнес-центр «СитиДел» - превью
Москва, Улица Земляной Вал, 9
Позвоните по телефону +7 495 230-28-26, либо оставьте заявку на просмотр прямо сейчас и узнайте условия специального предложения по объекту.
загрузка карты...
Аренда в год за м2 50 000 ₽
Аренда в месяц 3 794 583 ₽
Схема сделки прямая аренда
Шеин Михаил Юрьевич

Объект ведет консультант:

Шеин Михаил Юрьевич

Общие
ID 33182
Тип сделки Аренда
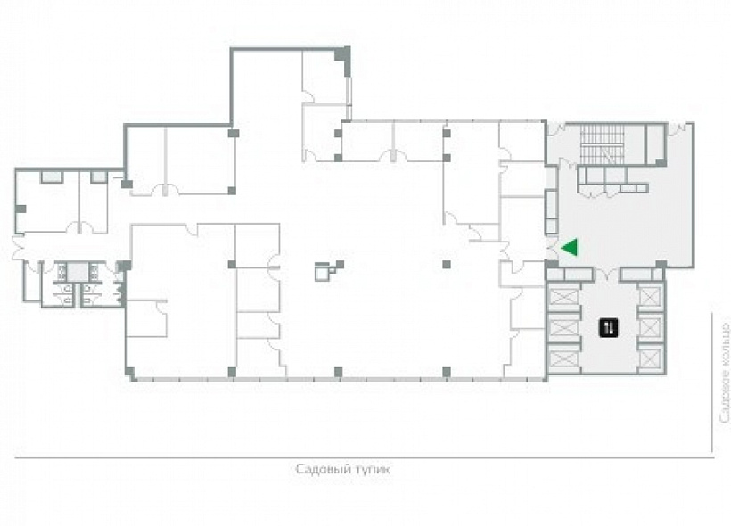
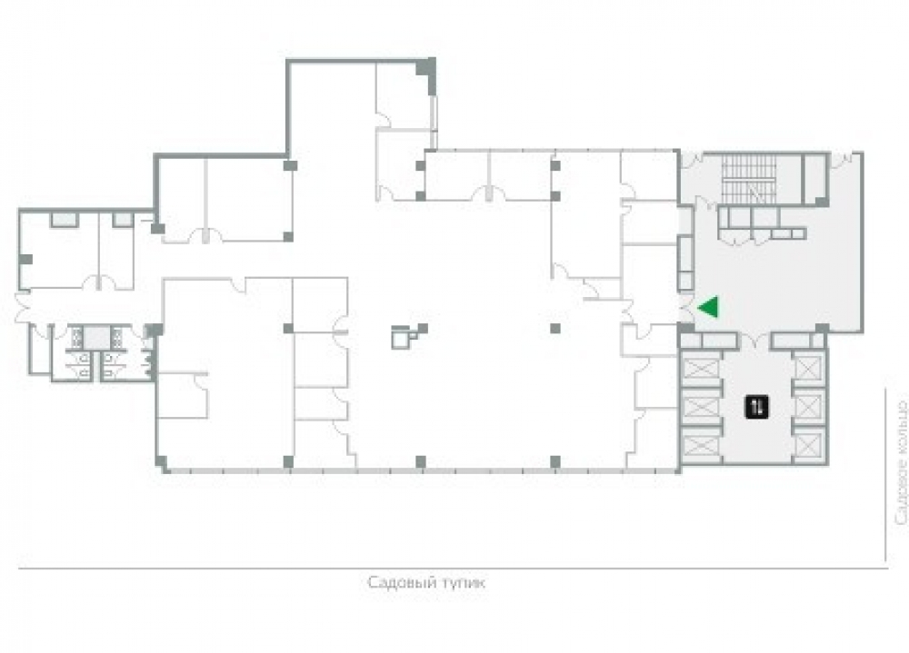
Площадь 910.70
Площадь всего 63500.00
Тип объекта Бизнес-центр
Класс здания A
Этаж 5
Всего этажей в здании 13
Информация об объекте
Состояние объекта после реконструкции
Состояние блока выполнена стандартная офисная отделка
Планировка Залы и кабинеты
Коммуникации Система пожаротушения,Система видеонаблюдения,Интернет,Телефония
Лифт пассажирский 17
Перекрытия Железобетонные
Отопление Центральное
Вентиляция и кондиционирование Современная система вентиляции и кондиционирования
КПП Гостевой пропуск
Коммерческие условия
Аренда в год за м2 50 000 ₽
Аренда в месяц 3 794 583 ₽
Схема сделки прямая аренда
Тип собственника Юридическое лицо

Описание объекта
Предлагается в аренду офисный блок на 5-м этаже площадью 910.7 кв.м. Бизнес-центр расположен на первой линии внешней части Садового кольца, между станциями метро Курская и Красные Ворота. Рядом расположены Николоямская улица, улица Академика Сахарова, а также Курский вокзал.

Базовая ставка аренды: 50 000 руб. за м2 в год (без НДС)
Эксплуатационные расходы: 13 000 руб. за м² в год (без НДС)
Освобождение через 2 – 4 недели с даты подписания договора аренды

1-я линия Садового кольца.
Ст. м. «Курская» и «Чкаловская» - 5 минут пешком.
Курский вокзал, МЦД-2 - 5 минут пешком.
Удобный доступ на автомобиле на внешнюю и внутреннюю стороны Садового кольца.
Быстрый и удобный доступ к Бульварному кольцу и  историческому центру Москвы.
Удобная связь на метро от м. «Курская»  до ст. м. «Павелецкая», «Белорусская» и «Киевская», обеспечивающая быстрый доступ (менее часа) ко всем аэропортам
Москвы на Аэроэкспрессе.

Нужна консультация по подбору помещения под офис?

Наши специалисты подберут для вас самые выгодные варианты для долгосрочного инвестирования,
помогут в сопровождении и сделки, проверят все юридические вопросы касаемо приобретения недвижимости.

* Нажимая на кнопку «Отправить», Вы даете согласие на обработку персональных данных в соответствии с Политикой конфиденциальности

Похожие объекты

Кунцевская (17 мин. 🚗)
Москва, Инновационный центр Сколково, улица Сикорского, 11
БЦ "Ренова Лаб Сколково"
Тип: Офисы
Площадь: 880.00 м2
Отделка:качественная отделка
2 684 000 в месяц
36 600 в год за м2
Позвонить Подробнее
Новокузнецкая (7 мин. 🚶)
Москва, Озерковская набережная, 12
Озерковская набережная, 12
Тип: Офисы
Площадь: 959.50 м2
Отделка:выполнена стандартная офисная отделка
2 638 625 в месяц
33 000 в год за м2
Позвонить Подробнее
Курская (7 мин. 🚶)
Москва, Большой Казённый переулок, 8с1
Офисное здание «Большой Казённый 8 с1»
Тип: Офисы
Площадь: 832.00 м2
3 150 000 в месяц
45 433 в год за м2
Позвонить Подробнее
Аэропорт (21 мин. 🚗)
Москва, Ленинградский проспект, 37А
Бизнес-парк «Аркус 2»
Тип: Офисы
Площадь: 908.00 м2
Отделка:выполнена стандартная офисная отделка
3 405 000 в месяц
45 000 в год за м2
Позвонить Подробнее
Парк Победы (5 мин. 🚶)
Москва, улица Василисы Кожиной, 1
Бизнес-центр "Парк Победы"
Тип: Офисы
Площадь: 961.90 м2
Отделка:выполнена стандартная офисная отделка
4 404 861 в месяц
54 952 в год за м2
Позвонить Подробнее
Полянка (5 мин. 🚶)
Москва, улица Большая Якиманка, 17/2с1
Бизнес центр "улица Большая Якиманка, 17/2с1"
Тип: Офисы
Площадь: 924.00 м2
Отделка:выполнена стандартная офисная отделка
3 843 633 в месяц
49 917 в год за м2
Позвонить Подробнее
Краснопресненская (5 мин. 🚶)
Москва, Большая Грузинская улица, 12с2
Бизнес-центр «Николаевский»
Тип: Офисы
Площадь: 969.30 м2
Отделка:выполнена стандартная офисная отделка
2 600 000 в месяц
32 188 в год за м2
Позвонить Подробнее
Китай-город (7 мин. 🚶)
Москва, Подкопаевский переулок, 4
Бизнес-центр «Ивановская горка»
Тип: Офисы
Площадь: 996.80 м2
Отделка:качественная отделка
5 399 333 в месяц
65 000 в год за м2
Позвонить Подробнее
Сокольники (8 мин. 🚗)
Москва, 3-я Рыбинская улица, 18с22
Бизнес-центр «Буревестник» с22
Тип: Офисы
Площадь: 861.00 м2
Отделка:качественная отделка
2 801 120 в месяц
39 040 в год за м2
Позвонить Подробнее
Марьина Роща (12 мин. 🚶)
Москва, Полковая улица, 3
Бизнес-центр «Офис-парк Шереметьевский»
Тип: Офисы
Площадь: 830.00 м2
Отделка:выполнена стандартная офисная отделка
1 798 333 в месяц
26 000 в год за м2
Позвонить Подробнее
Боровское шоссе (17 мин. 🚗)
Москва, Инновационный центр Сколково, улица Нобеля, 1
Бизнес-Центр ТЕХНОПАРК. "Квартал Менделеева"
Тип: Офисы
Площадь: 873.77 м2
Отделка:выполнена стандартная офисная отделка
2 002 390 в месяц
27 500 в год за м2
Позвонить Подробнее
Молодёжная (16 мин. 🚗)
Москва, улица Толбухина, 5к4
Административное здание "улица Толбухина, 5к4"
Тип: Офисы
Площадь: 832.20 м2
Отделка:отделка арендатора
1 900 121 в месяц
27 399 в год за м2
Позвонить Подробнее
Курская (7 мин. 🚶)
Москва, Большой Казённый переулок, 8с1
Офисное здание «Большой Казённый 8 с1»
Тип: Офисы
Площадь: 832.00 м2
3 150 000 в месяц
45 433 в год за м2
Позвонить Подробнее
Беговая (5 мин. 🚗)
Москва, 1-й Магистральный тупик, 5А
Бизнес-центр "Магистраль Плаза"
Тип: Офисы
Площадь: 627.00 м2
Отделка:качественная отделка
2 612 500 в месяц
50 000 в год за м2
Позвонить Подробнее
Кропоткинская (9 мин. 🚶)
Москва, Пречистенская набережная, 17-19
Бизнес-центр «Баркли Плаза»
Тип: Офисы
Площадь: 1200.00 м2
Отделка:выполнена стандартная офисная отделка
5 500 000 в месяц
55 000 в год за м2
Позвонить Подробнее
Таганская (5 мин. 🚶)
Москва, Улица Земляной Вал, 68/18с3
Офисное здание «Земляной 68/18 с3»
Тип: Офисы
Площадь: 692.10 м2
2 750 000 в месяц
47 681 в год за м2
Позвонить Подробнее
Аэропорт (21 мин. 🚗)
Москва, Ленинградский проспект, 37А
Бизнес-парк «Аркус 2»
Тип: Офисы
Площадь: 908.00 м2
Отделка:выполнена стандартная офисная отделка
3 405 000 в месяц
45 000 в год за м2
Позвонить Подробнее
Парк Победы (5 мин. 🚶)
Москва, улица Василисы Кожиной, 1
Бизнес-центр "Парк Победы"
Тип: Офисы
Площадь: 961.90 м2
Отделка:выполнена стандартная офисная отделка
4 404 861 в месяц
54 952 в год за м2
Позвонить Подробнее
Парк Победы (5 мин. 🚶)
Москва, улица Василисы Кожиной, 1
Бизнес-центр "Парк Победы"
Тип: Офисы
Площадь: 683.00 м2
Отделка:выполнена стандартная офисная отделка
3 127 059 в месяц
54 941 в год за м2
Позвонить Подробнее
Полянка (5 мин. 🚶)
Москва, улица Большая Якиманка, 17/2с1
Бизнес центр "улица Большая Якиманка, 17/2с1"
Тип: Офисы
Площадь: 184.10 м2
Отделка:качественная отделка
767 083 в месяц
50 000 в год за м2
Позвонить Подробнее
Полянка (5 мин. 🚶)
Москва, улица Большая Якиманка, 17/2с1
Бизнес центр "улица Большая Якиманка, 17/2с1"
Тип: Офисы
Площадь: 467.80 м2
Отделка:выполнена стандартная офисная отделка
2 033 500 в месяц
52 163 в год за м2
Позвонить Подробнее
Полянка (5 мин. 🚶)
Москва, улица Большая Якиманка, 17/2с1
Бизнес центр "улица Большая Якиманка, 17/2с1"
Тип: Офисы
Площадь: 253.00 м2
Отделка:выполнена стандартная офисная отделка
1 138 500 в месяц
54 000 в год за м2
Позвонить Подробнее
Полянка (5 мин. 🚶)
Москва, улица Большая Якиманка, 17/2с1
Бизнес центр "улица Большая Якиманка, 17/2с1"
Тип: Офисы
Площадь: 214.80 м2
Отделка:качественная отделка
895 000 в месяц
50 000 в год за м2
Позвонить Подробнее
Полянка (5 мин. 🚶)
Москва, улица Большая Якиманка, 17/2с1
Бизнес центр "улица Большая Якиманка, 17/2с1"
Тип: Офисы
Площадь: 272.10 м2
Отделка:выполнена стандартная офисная отделка
1 043 050 в месяц
46 000 в год за м2
Позвонить Подробнее
Курская (7 мин. 🚶)
Москва, Большой Казённый переулок, 8с1
Офисное здание «Большой Казённый 8 с1»
Тип: Офисы
Площадь: 832.00 м2
3 150 000 в месяц
45 433 в год за м2
Позвонить Подробнее
Курская (5 мин. 🚶)
Москва, Нижний Сусальный переулок, 5с4
Бизнес Квартал «Арма»
Тип: Офисы
Площадь: 33.00 м2
Отделка:отделка в стиле Loft
464 000 в месяц
168 727 в год за м2
Позвонить Подробнее
Курская (5 мин. 🚶)
Москва, Нижний Сусальный переулок, 5с4
Бизнес Квартал «Арма»
Тип: Офисы
Площадь: 51.00 м2
Отделка:отделка в стиле Loft
696 000 в месяц
163 765 в год за м2
Позвонить Подробнее
Курская (5 мин. 🚶)
Москва, Нижний Сусальный переулок, 5с4
Бизнес Квартал «Арма»
Тип: Офисы
Площадь: 500.00 м2
Отделка:отделка в стиле Loft
4 884 000 в месяц
117 216 в год за м2
Позвонить Подробнее
Курская (9 мин. 🚶)
Москва, 3-й Сыромятнический переулок, 3/9с1
БЦ "Сыромятники"
Тип: Офисы
Площадь: 400.00 м2
Отделка:выполнена стандартная офисная отделка
900 000 в месяц
27 000 в год за м2
Позвонить Подробнее
Курская (7 мин. 🚶)
Москва, Подсосенский переулок, 23с2
БЦ "Подсосенский 23"
Тип: Офисы
Площадь: 289.70 м2
Отделка:выполнена стандартная офисная отделка
1 200 000 в месяц
49 707 в год за м2
Позвонить Подробнее
Курская (5 мин. 🚶)
Москва, Улица Земляной Вал, 9
Бизнес-центр «СитиДел»
Тип: Офисы
Площадь: 844.10 м2
Отделка:выполнена стандартная офисная отделка
4 891 560 в месяц
69 540 в год за м2
Позвонить Подробнее
Курская (5 мин. 🚶)
Москва, 2-й Сыромятнический переулок, 1
Бизнес-центр "Дельта Плаза"
Тип: Офисы
Площадь: 205.00 м2
Отделка:выполнена стандартная офисная отделка
1 135 871 в месяц
66 490 в год за м2
Позвонить Подробнее
Курская (9 мин. 🚶)
Москва, Улица Земляной Вал, 4с1
Бизнес-центр «Земляной 4 с1»
Тип: Офисы
Площадь: 171.80 м2
Отделка:выполнена стандартная офисная отделка
415 183 в месяц
29 000 в год за м2
Позвонить Подробнее
Курская (5 мин. 🚶)
Москва, Улица Земляной Вал, 9
Бизнес-центр «СитиДел»
Тип: Офисы
Площадь: 210.00 м2
Отделка:выполнена стандартная офисная отделка
875 000 в месяц
50 000 в год за м2
Позвонить Подробнее
Курская (7 мин. 🚶)
Москва, Подсосенский переулок, 23с2
БЦ "Подсосенский 23"
Тип: Офисы
Площадь: 212.20 м2
Отделка:выполнена стандартная офисная отделка
390 000 в месяц
22 055 в год за м2
Позвонить Подробнее
Курская (5 мин. 🚶)
Москва, 2-й Сыромятнический переулок, 1
Бизнес-центр "Дельта Плаза"
Тип: Офисы
Площадь: 1621.90 м2
Отделка:качественная отделка
8 190 595 в месяц
60 600 в год за м2
Позвонить Подробнее