Аренда офиса ОСЗ "Потешная ул., 4"

Аренда офиса ОСЗ Аренда офиса ОСЗ Аренда офиса ОСЗ Аренда офиса ОСЗ Аренда офиса ОСЗ Аренда офиса ОСЗ
Аренда офиса ОСЗ Аренда офиса ОСЗ Аренда офиса ОСЗ Аренда офиса ОСЗ Аренда офиса ОСЗ Аренда офиса ОСЗ
Москва, Потешная улица, 4
Позвоните по телефону +7 495 230-28-26, либо оставьте заявку на просмотр прямо сейчас и узнайте условия специального предложения по объекту.
загрузка карты...
Аренда в год за м2 26 059 ₽
Аренда в месяц 2 000 000 ₽
Схема сделки прямая аренда
Общие
ID 34568
Тип сделки Аренда
Площадь 921.00
Площадь всего 921.00
Тип объекта Административное здание
Этаж -1 - 2
Всего этажей в здании 2
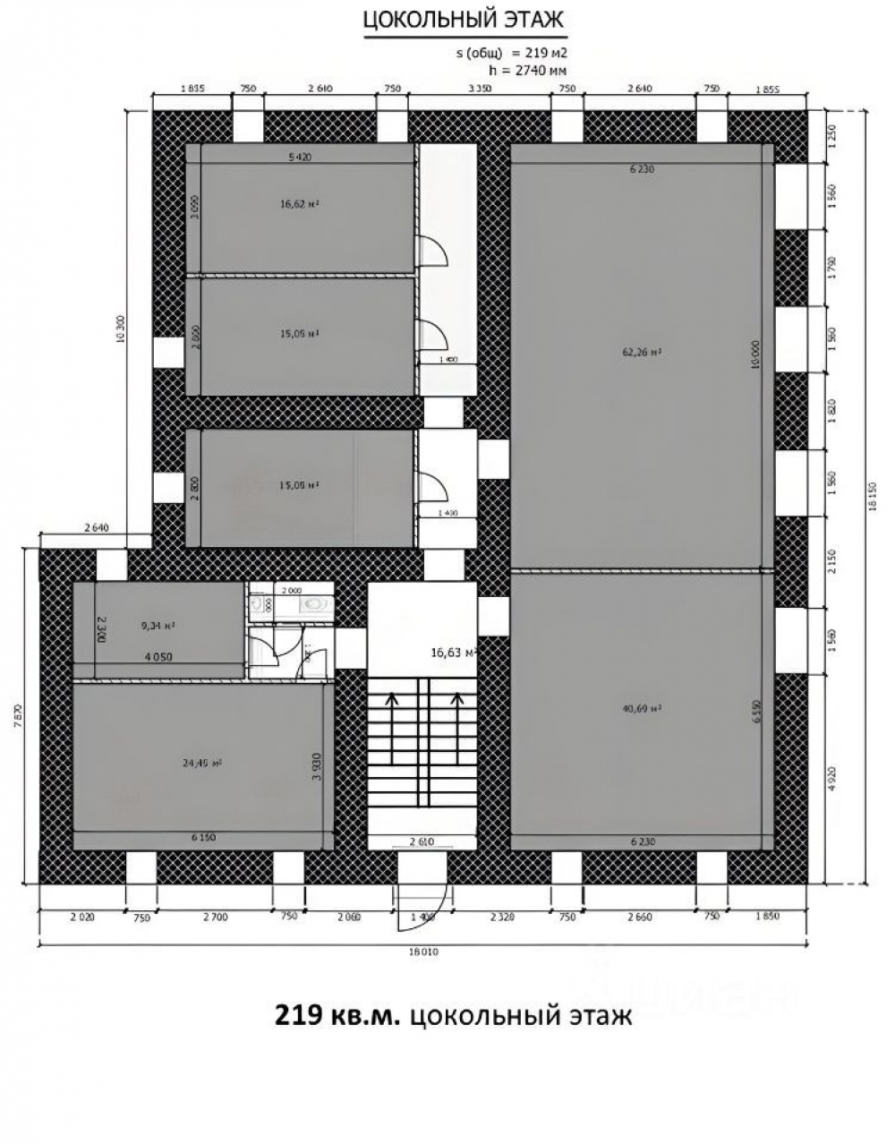
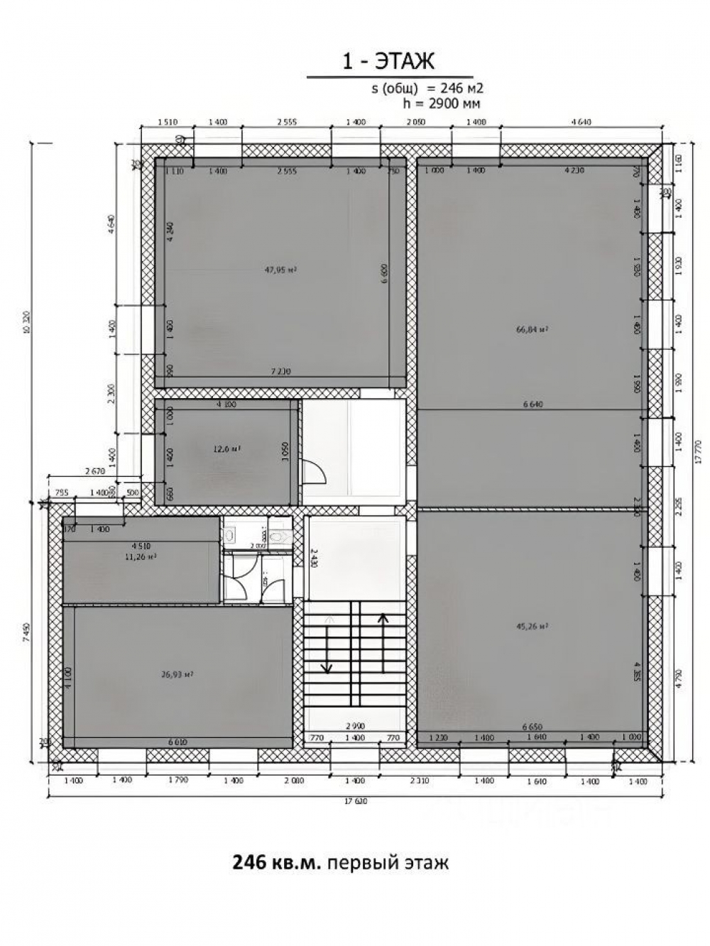
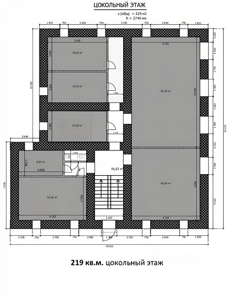
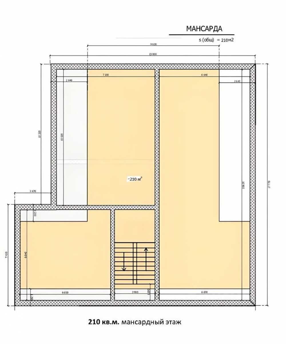
Метраж по этажам
Этаж: -1 - 219 м2
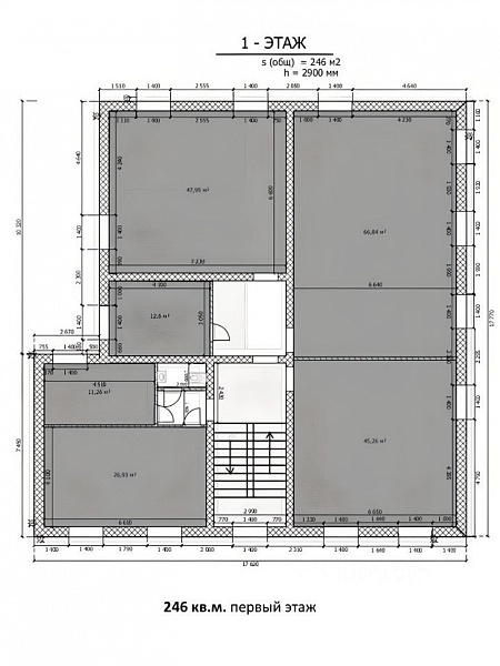
Этаж: 1 - 246 м2
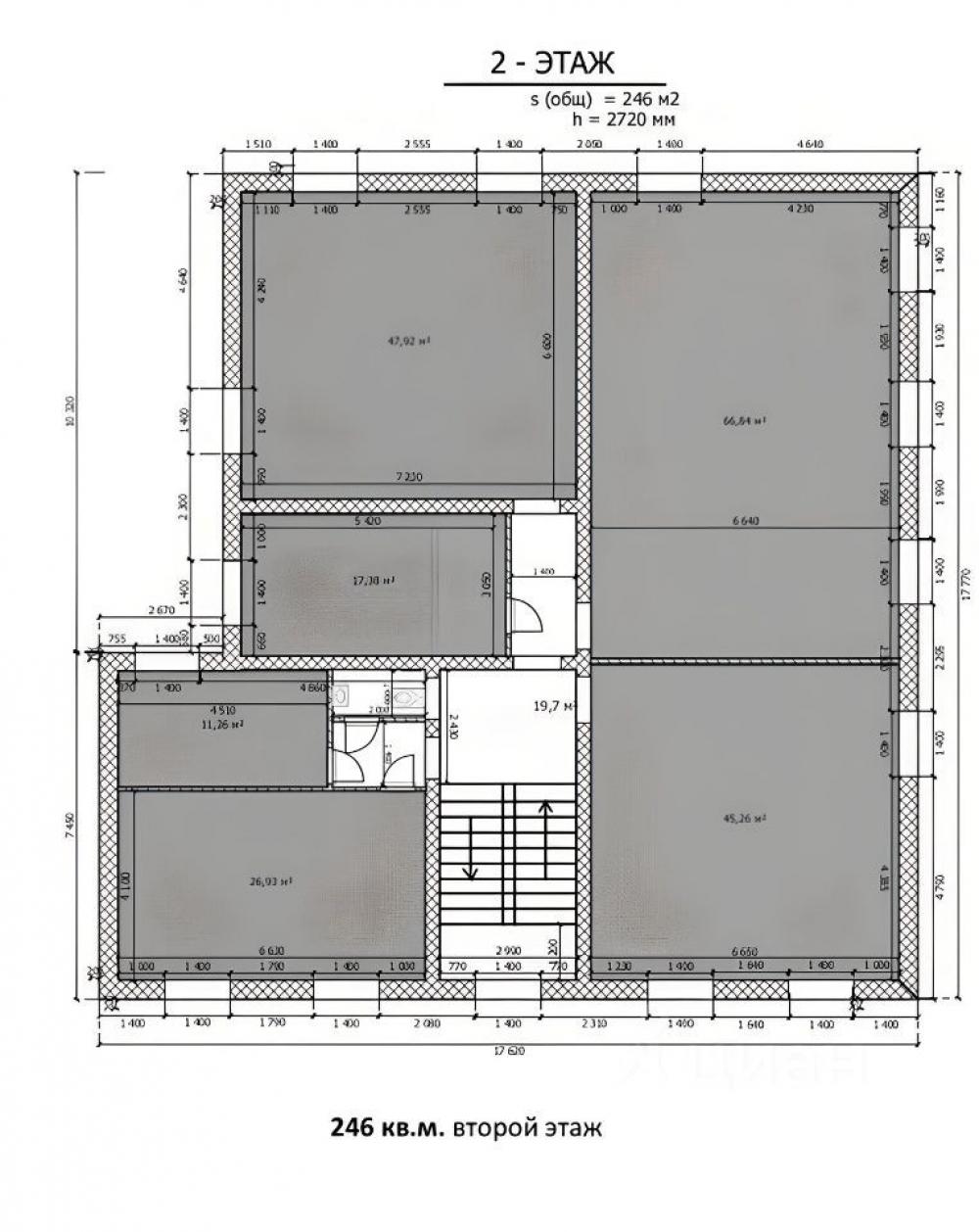
Этаж: 2 - 246 м2
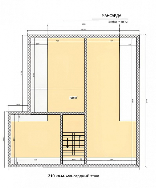
Этаж: мансарда - 210 м2
Информация об объекте
Планировка Залы и кабинеты
Нюансы Отдельный вход,ПСН
Коммерческие условия
Аренда в год за м2 26 059 ₽
Аренда в месяц 2 000 000 ₽
Схема сделки прямая аренда

Описание объекта
Сдается отдельно стоящее 4-х этажное здание с земельным участком на набережной реки Яузы, расположенное в пешей доступности (650м) от метро Преображенская площадь.

Уникальный дизайнерский проект. Оригинальный фасад из окрашенного кликфальца, новейший ремонт с использованием современных материалов и сохранением исторического наследия здания, современные коммуникации. Совмещённая планировка, сочетающая кабинетную нарезку и опен-спейс. Возможен ремонт под арендатора. Центральное отопление, водо/электроснабжение, современные инженерные коммуникации.
Площадь:
— 219 кв.м. цокольный этаж;
— 246 кв.м. первый этаж;
— 246 кв.м. второй этаж;
— 210 кв.м. мансардный этаж.

Нужна консультация по подбору помещения под офис?

Наши специалисты подберут для вас самые выгодные варианты для долгосрочного инвестирования,
помогут в сопровождении и сделки, проверят все юридические вопросы касаемо приобретения недвижимости.

* Нажимая на кнопку «Отправить», Вы даете согласие на обработку персональных данных в соответствии с Политикой конфиденциальности

Похожие объекты

Сокол Сокольники Соколиная Гора (15 мин. 🚶)
Москва, Чапаевский переулок, 14
Бизнес-центр «Сокол Плейс»
Тип: Офисы
Площадь: 880.00 м2
Отделка:выполнена стандартная офисная отделка
2 933 333 в месяц
40 000 в год за м2
Позвонить Подробнее
Кожуховская (6 мин. 🚶)
Москва, 2-й Южнопортовый проезд, 14/22
Офисно-складской комплекс «Южнопортовый»
Тип: Офисы
Площадь: 980.00 м2
Отделка:выполнена стандартная офисная отделка
1 633 333 в месяц
20 000 в год за м2
Позвонить Подробнее
Кожуховская (6 мин. 🚶)
Москва, 2-й Южнопортовый проезд, 14/22
Офисно-складской комплекс «Южнопортовый»
Тип: Офисы
Площадь: 850.00 м2
Отделка:выполнена стандартная офисная отделка
1 416 667 в месяц
20 000 в год за м2
Позвонить Подробнее
(9 мин. 🚶)
Москва, Алтуфьевское шоссе, 1/7
Бизнес-центр «Бета центр»
Тип: Офисы
Площадь: 887.80 м2
Отделка:выполнена стандартная офисная отделка
1 331 700 в месяц
18 000 в год за м2
Позвонить Подробнее
Краснопресненская (5 мин. 🚶)
Москва, Большая Грузинская улица, 12с2
Бизнес-центр «Николаевский»
Тип: Офисы
Площадь: 969.30 м2
Отделка:выполнена стандартная офисная отделка
2 800 000 в месяц
34 664 в год за м2
Позвонить Подробнее
Аэропорт (8 мин. 🚶)
Москва, Улица 8 Марта, 14
Бизнес-центр «Кулон»
Тип: Офисы
Площадь: 872.30 м2
Отделка:качественная отделка
2 394 464 в месяц
32 940 в год за м2
Позвонить Подробнее
Калужская (7 мин. 🚶)
Москва, улица Обручева, 23с1
Бизнес - центр "Geolog"
Тип: Офисы
Площадь: 985.20 м2
Отделка:Shell and Core
4 105 000 в месяц
50 000 в год за м2
Позвонить Подробнее
ЦСКА (15 мин. 🚶)
Москва, Ленинградский проспект, 37Ак4
БЦ "Аркус 3"
Тип: Офисы
Площадь: 837.00 м2
Отделка:выполнена стандартная офисная отделка
5 699 831 в месяц
81 718 в год за м2
Позвонить Подробнее
(10 мин. 🚶)
Москва, Электрозаводская улица, 27с7
Деловой-центр «ЛеФорт» с7
Тип: Офисы
Площадь: 839.00 м2
Отделка:выполнена стандартная офисная отделка
2 772 196 в месяц
39 650 в год за м2
Позвонить Подробнее
Таганская (10 мин. 🚶)
Москва, Улица Станиславского, 21с1
Бизнес-центр «Фабрика Станиславского»
Тип: Офисы
Площадь: 865.00 м2
Отделка:выполнена стандартная офисная отделка
4 045 317 в месяц
56 120 в год за м2
Позвонить Подробнее
Сходненская (5 мин. 🚶)
Москва, Сходненская улица, 56
Бизнес-центр «Калейдоскоп»
Тип: Офисы
Площадь: 977.20 м2
Отделка:выполнена стандартная офисная отделка
2 781 763 в месяц
34 160 в год за м2
Позвонить Подробнее
Курская (7 мин. 🚶)
Москва, Большой Казённый переулок, 8с1
Офисное здание «Большой Казённый 8 с1»
Тип: Офисы
Площадь: 832.00 м2
3 350 000 в месяц
48 317 в год за м2
Позвонить Подробнее
Речной вокзал (14 мин. 🚗)
Москва, Смольная улица, 14
Бизнес-центр «Смольный»
Тип: Офисы
Площадь: 221.47 м2
Отделка:выполнена стандартная офисная отделка
461 396 в месяц
25 000 в год за м2
Позвонить Подробнее
Бауманская (2 мин. 🚶)
Москва, Спартаковская улица, 21
Особняк «Спартаковская 21»
Тип: Офисы
Площадь: 208.50 м2
Отделка:выполнена стандартная офисная отделка
450 000 в месяц
25 899 в год за м2
Позвонить Подробнее
Динамо (7 мин. 🚶)
Москва, Ленинградский проспект, 37к3
Бизнес-центр "Авиатор"
Тип: Офисы
Площадь: 146.80 м2
Отделка:выполнена стандартная офисная отделка
312 806 в месяц
25 570 в год за м2
Позвонить Подробнее
Тульская (7 мин. 🚶)
Москва, Городская улица, 8
Офисное здание "Городская ул., 8"
Тип: Офисы
Площадь: 5250.00 м2
Отделка:выполнена стандартная офисная отделка
11 025 000 в месяц
25 200 в год за м2
Позвонить Подробнее
Красносельская (10 мин. 🚶)
Москва, Спартаковский переулок, 2с1
Лофт-квартал «Платформа»
Тип: Офисы
Площадь: 450.00 м2
Отделка:выполнена стандартная офисная отделка
900 000 в месяц
24 000 в год за м2
Позвонить Подробнее
Кунцевская (8 мин. 🚗)
Москва, Верейская улица, 29с134
Бизнес-центр «Верейская плаза III»
Тип: Офисы
Площадь: 277.30 м2
Отделка:выполнена стандартная офисная отделка
660 898 в месяц
28 600 в год за м2
Позвонить Подробнее
Белорусская (12 мин. 🚶)
Москва, 5-я улица Ямского Поля, 5с1
Бизнес-центр «Ямское Плаза»
Тип: Офисы
Площадь: 1032.70 м2
Отделка:выполнена стандартная офисная отделка
2 393 799 в месяц
27 816 в год за м2
Позвонить Подробнее
Белорусская (12 мин. 🚶)
Москва, 5-я улица Ямского Поля, 5с1
Бизнес-центр «Ямское Плаза»
Тип: Офисы
Площадь: 352.95 м2
Отделка:выполнена стандартная офисная отделка
818 138 в месяц
27 816 в год за м2
Позвонить Подробнее
Белорусская (12 мин. 🚶)
Москва, 5-я улица Ямского Поля, 5с1
Бизнес-центр «Ямское Плаза»
Тип: Офисы
Площадь: 664.00 м2
Отделка:выполнена стандартная офисная отделка
1 539 152 в месяц
27 816 в год за м2
Позвонить Подробнее
(10 мин. 🚗)
Москва, Рябиновая улица, 26с10
БЦ "Вест Плаза 3"
Тип: Офисы
Площадь: 3001.00 м2
Отделка:выполнена стандартная офисная отделка
6 252 083 в месяц
25 000 в год за м2
Позвонить Подробнее
(10 мин. 🚗)
Москва, Рябиновая улица, 26с10
БЦ "Вест Плаза 3"
Тип: Офисы
Площадь: 1501.00 м2
Отделка:выполнена стандартная офисная отделка
3 127 083 в месяц
25 000 в год за м2
Позвонить Подробнее
Технопарк (10 мин. 🚶)
Москва, проспект Андропова, 11к2
Деловой квартал "ЮПорт"
Тип: Офисы
Площадь: 2766.40 м2
Отделка:Shell and Core
5 763 333 в месяц
25 000 в год за м2
Позвонить Подробнее