Аренда офиса ЖК Дом Газпрома

Аренда офиса ЖК Дом Газпрома Аренда офиса ЖК Дом Газпрома Аренда офиса ЖК Дом Газпрома
Аренда офиса ЖК Дом Газпрома - превью Аренда офиса ЖК Дом Газпрома - превью Аренда офиса ЖК Дом Газпрома - превью
Москва, Новочерёмушкинская улица, 71/32
Позвоните по телефону +7 495 230-28-26, либо оставьте заявку на просмотр прямо сейчас и узнайте условия специального предложения по объекту.
загрузка карты...
Аренда в год за м2 24 000 ₽
Аренда в месяц 820 400 ₽
Схема сделки прямая аренда
Первушина Марина Алексеевна

Объект ведет консультант:

Первушина Марина Алексеевна

Общие
ID 59851
Тип сделки Аренда
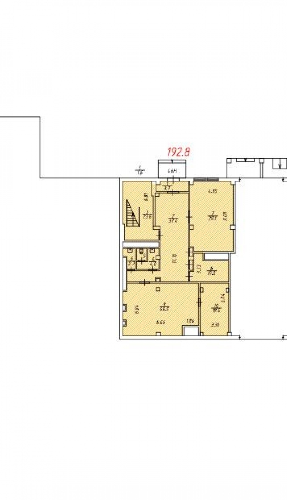
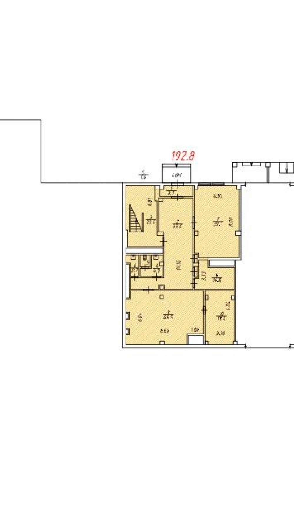
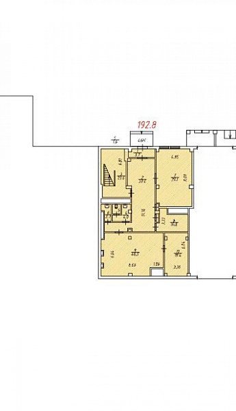
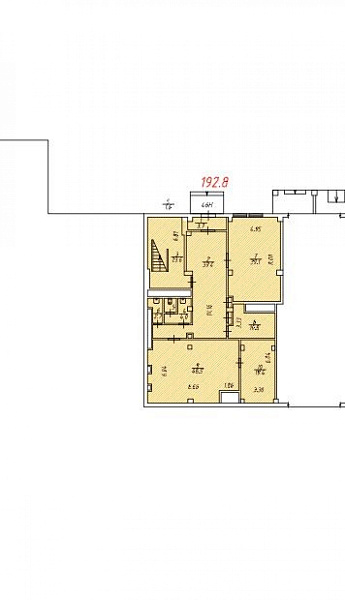
Площадь 410.20
Площадь всего 45992.00
Тип объекта Жилой комплекс
Этаж 1 - 2
Всего этажей в здании 21
Метраж по этажам
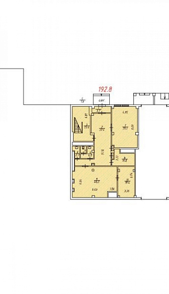
Этаж: 1 - 192.8 м2
Этаж: 2 - 217.4 м2
Информация об объекте
Состояние объекта рабочее
Состояние блока выполнена стандартная офисная отделка
Планировка Залы и кабинеты
Перекрытия Железобетонные
Нюансы Отдельный вход,ПСН
Коммерческие условия
Аренда в год за м2 24 000 ₽
Аренда в месяц 820 400 ₽
Схема сделки прямая аренда
Тип собственника Юридическое лицо

Описание объекта
Предлагаем к аренде помещение под офис/медицину в ЮЗАО. Стилобат ЖК Дом Газпрома. До м. Новые Черемушки 15 минут пешком.
Двухуровневый блок с отдельным входом со двора, кабинетная планировка, много окон, ремонт необходимо освежить, выделенная мощность 60квт.
Помещение свободно к заезду.

Нужна консультация по подбору помещения под офис?

Наши специалисты подберут для вас самые выгодные варианты для долгосрочного инвестирования,
помогут в сопровождении и сделки, проверят все юридические вопросы касаемо приобретения недвижимости.

* Нажимая на кнопку «Отправить», Вы даете согласие на обработку персональных данных в соответствии с Политикой конфиденциальности

Похожие объекты

Павелецкая (16 мин. 🚗)
Москва, 1-й Дербеневский переулок, 5
Бизнес-центр «Дербеневская Плаза»
Тип: Офисы
Площадь: 442.50 м2
Отделка:выполнена стандартная офисная отделка
1 235 313 в месяц
33 500 в год за м2
Позвонить Подробнее
Белорусская (11 мин. 🚶)
Москва, Лесная улица, 43
Бизнес-центр «Лесная 43»
Тип: Офисы
Площадь: 400.00 м2
Отделка:качественная отделка
2 166 667 в месяц
65 000 в год за м2
Позвонить Подробнее
Боровское шоссе (17 мин. 🚗)
Москва, Инновационный центр Сколково, улица Нобеля, 5
Бизнес-Центр ТЕХНОПАРК. "Квартал Менделеева"
Тип: Офисы
Площадь: 404.59 м2
Отделка:выполнена стандартная офисная отделка
927 185 в месяц
27 500 в год за м2
Позвонить Подробнее
Боровское шоссе (17 мин. 🚗)
Москва, Инновационный центр Сколково, улица Нобеля, 1
Бизнес-Центр ТЕХНОПАРК. "Квартал Менделеева"
Тип: Офисы
Площадь: 407.00 м2
Отделка:отделка арендатора
932 708 в месяц
27 500 в год за м2
Позвонить Подробнее
Медведково (16 мин. 🚗)
Московская область, Мытищи, улица Колпакова, 46А
Бизнес-центр "Мытищи, улица Колпакова, 46А"
Тип: Офисы
Площадь: 400.00 м2
Отделка:требуется косметический ремонт
540 000 в месяц
16 200 в год за м2
Позвонить Подробнее
Молодёжная (5 мин. 🚶)
Москва, Ярцевская улица, 19
Бизнес-центр «Кунцево Плаза»
Тип: Офисы
Площадь: 400.00 м2
Отделка:качественная отделка
2 724 667 в месяц
81 740 в год за м2
Позвонить Подробнее
Планерная (23 мин. 🚗)
Московская область, Химки, Куркинское шоссе, с2
Бизнес-центр «Aero City (Аэро Сити)»
Тип: Офисы
Площадь: 431.60 м2
Отделка:Shell and Core
410 020 в месяц
11 400 в год за м2
Позвонить Подробнее
ЦСКА (5 мин. 🚶)
Москва, Улица Авиаконструктора Микояна, 12
Бизнес-центр «Линкор»
Тип: Офисы
Площадь: 373.00 м2
Отделка:выполнена стандартная офисная отделка
1 175 572 в месяц
37 820 в год за м2
Позвонить Подробнее
Дмитровская (8 мин. 🚶)
Москва, Новодмитровская улица, 2Б
Деловой центр "Дмитровский"
Тип: Офисы
Площадь: 414.00 м2
Отделка:выполнена стандартная офисная отделка
1 897 500 в месяц
55 000 в год за м2
Позвонить Подробнее
Кожуховская (17 мин. 🚶)
Москва, 2-й Южнопортовый проезд, 20Ас4
Офисно-складской комплекс "Южнопортовый"
Тип: Офисы
Площадь: 440.00 м2
Отделка:выполнена стандартная офисная отделка
990 000 в месяц
27 000 в год за м2
Позвонить Подробнее
Фрунзенская (5 мин. 🚶)
Москва, Улица Россолимо, 17с1
Технопарк "Россолимо"
Тип: Офисы
Площадь: 377.40 м2
Отделка:требуется косметический ремонт
1 258 000 в месяц
40 000 в год за м2
Позвонить Подробнее
Шелепиха (20 мин. 🚶)
Москва, 1-й Магистральный проезд, 11с1
Бизнес-центр «Интерьер»
Тип: Офисы
Площадь: 447.20 м2
Отделка:выполнена стандартная офисная отделка
894 400 в месяц
24 000 в год за м2
Позвонить Подробнее
Алексеевская (10 мин. 🚶)
Москва, улица Годовикова, 9с31
Бизнес-центр «Калибр» с31
Тип: Офисы
Площадь: 280.20 м2
Отделка:выполнена стандартная офисная отделка
521 312 в месяц
22 326 в год за м2
Позвонить Подробнее
Марьина Роща (12 мин. 🚶)
Москва, Полковая улица, 3
Бизнес-центр «Офис-парк Шереметьевский»
Тип: Офисы
Площадь: 830.00 м2
Отделка:выполнена стандартная офисная отделка
1 798 333 в месяц
26 000 в год за м2
Позвонить Подробнее
Авиамоторная (12 мин. 🚶)
Москва, Улица Золоторожский Вал, 11с22
Бизнес-центр «Золоторожский»
Тип: Офисы
Площадь: 1700.00 м2
Отделка:выполнена стандартная офисная отделка
3 740 000 в месяц
26 400 в год за м2
Позвонить Подробнее
Шелепиха (20 мин. 🚶)
Москва, 1-й Магистральный проезд, 11с1
Бизнес-центр «Интерьер»
Тип: Офисы
Площадь: 447.20 м2
Отделка:выполнена стандартная офисная отделка
894 400 в месяц
24 000 в год за м2
Позвонить Подробнее
Шелепиха (20 мин. 🚶)
Москва, 1-й Магистральный проезд, 11с1
Бизнес-центр «Интерьер»
Тип: Офисы
Площадь: 290.00 м2
Отделка:отделка в стиле Loft
580 000 в месяц
24 000 в год за м2
Позвонить Подробнее
Электрозаводская (14 мин. 🚶)
Москва, Бакунинская улица, 73с3
БЦ Бакунинский
Тип: Офисы
Площадь: 896.00 м2
Отделка:выполнена стандартная офисная отделка
1 642 667 в месяц
22 000 в год за м2
Позвонить Подробнее
Пролетарская (2 мин. 🚶)
Москва, Волгоградский проспект, 2
Офисное здание «Волгоградский 2»
Тип: Офисы
Площадь: 304.80 м2
Отделка:выполнена стандартная офисная отделка
565 150 в месяц
22 250 в год за м2
Позвонить Подробнее
Рижская (6 мин. 🚶)
Москва, улица Гиляровского, 65с1
БЦ "улица Гиляровского, 65с1"
Тип: Офисы
Площадь: 213.00 м2
Отделка:выполнена стандартная офисная отделка
443 750 в месяц
25 000 в год за м2
Позвонить Подробнее
Марьина Роща (12 мин. 🚶)
Москва, Полковая улица, 3
Бизнес-центр «Офис-парк Шереметьевский»
Тип: Офисы
Площадь: 600.00 м2
Отделка:выполнена стандартная офисная отделка
1 300 000 в месяц
26 000 в год за м2
Позвонить Подробнее
Площадь Ильича (3 мин. 🚶)
Москва, улица Золоторожский Вал, 34с2
Офисное здание «Золоторожский д. 34с1»
Тип: Офисы
Площадь: 381.90 м2
Отделка:выполнена стандартная офисная отделка
703 333 в месяц
22 100 в год за м2
Позвонить Подробнее
Дмитровская (15 мин. 🚶)
Москва, 2-я Хуторская улица, 38Ас17
Офисное здание "2-я Хуторская улица, 38Ас17"
Тип: Офисы
Площадь: 10261.40 м2
Отделка:выполнена стандартная офисная отделка
21 805 475 в месяц
25 500 в год за м2
Позвонить Подробнее
Серпуховская (3 мин. 🚶)
Москва, Люсиновская улица, 27с1Б
Административное здание «Люсиновская 27 с1Б»
Тип: Офисы
Площадь: 809.20 м2
1 600 000 в месяц
23 727 в год за м2
Позвонить Подробнее
Калужская (10 мин. 🚶)
Москва, Улица Бутлерова, 17
Бизнес-центр «NEO GEO»
Тип: Офисы
Площадь: 1315.60 м2
Отделка:выполнена высококачественная отделка
5 430 000 в месяц
49 529 в год за м2
Позвонить Подробнее
Калужская (10 мин. 🚶)
Москва, Улица Бутлерова, 17
Бизнес-центр «NEO GEO»
Тип: Офисы
Площадь: 1231.20 м2
Отделка:выполнена высококачественная отделка
4 370 000 в месяц
42 593 в год за м2
Позвонить Подробнее
Калужская (10 мин. 🚶)
Москва, Улица Бутлерова, 17
Бизнес-центр «NEO GEO»
Тип: Офисы
Площадь: 2546.80 м2
Отделка:выполнена высококачественная отделка
9 800 000 в месяц
46 176 в год за м2
Позвонить Подробнее
Калужская (7 мин. 🚶)
Москва, улица Обручева, 30/1с1
Бизнес-центр "Кругозор"
Тип: Офисы
Площадь: 4780.00 м2
Отделка:выполнена стандартная офисная отделка
17 349 010 в месяц
43 554 в год за м2
Позвонить Подробнее
Калужская (3 мин. 🚶)
Москва, Профсоюзная улица, 65к1
Бизнес-центр «Лотте»
Тип: Офисы
Площадь: 346.90 м2
Отделка:качественная отделка
1 234 386 в месяц
42 700 в год за м2
Позвонить Подробнее
Калужская (1 мин. 🚶)
Москва, Профсоюзная улица, 76
Торгово-офисный комплекс "Галерея 76"
Тип: Офисы
Площадь: 1411.00 м2
Отделка:качественная отделка
3 527 500 в месяц
30 000 в год за м2
Позвонить Подробнее
Калужская (7 мин. 🚶)
Москва, улица Обручева, 30/1с1
Бизнес-центр "Кругозор"
Тип: Офисы
Площадь: 562.00 м2
Отделка:выполнена стандартная офисная отделка
2 154 052 в месяц
45 994 в год за м2
Позвонить Подробнее
Калужская (7 мин. 🚶)
Москва, улица Обручева, 30/1с1
Бизнес-центр "Кругозор"
Тип: Офисы
Площадь: 1690.00 м2
Отделка:выполнена стандартная офисная отделка
6 133 855 в месяц
43 554 в год за м2
Позвонить Подробнее
Калужская (3 мин. 🚶)
Москва, Профсоюзная улица, 65к1
Бизнес-центр «Лотте»
Тип: Офисы
Площадь: 281.70 м2
Отделка:выполнена стандартная офисная отделка
1 002 383 в месяц
42 700 в год за м2
Позвонить Подробнее
Калужская (15 мин. 🚶)
Москва, улица Намёткина, 12А
Бизнес-центр «Газойл Плаза»
Тип: Офисы
Площадь: 657.89 м2
Отделка:отделка арендатора
1 918 846 в месяц
35 000 в год за м2
Позвонить Подробнее
Калужская (15 мин. 🚶)
Москва, улица Намёткина, 12А
Бизнес-центр «Газойл Плаза»
Тип: Офисы
Площадь: 1337.70 м2
Отделка:отделка арендатора
3 901 625 в месяц
35 000 в год за м2
Позвонить Подробнее
Калужская (15 мин. 🚶)
Москва, улица Намёткина, 12А
Бизнес-центр «Газойл Плаза»
Тип: Офисы
Площадь: 2675.40 м2
Отделка:отделка арендатора
7 803 250 в месяц
35 000 в год за м2
Позвонить Подробнее