Продажа торгового помещения ЖК "Резиденция Замоскворечье"

Продажа торгового помещения ЖК
Москва, Большой Строченовский переулок, 9
Позвоните по телефону +7 495 230-28-26, либо оставьте заявку на просмотр прямо сейчас и узнайте условия специального предложения по объекту.
загрузка карты...
Баринов Игорь Юрьевич

Объект ведет консультант:

Баринов Игорь Юрьевич

Общие
ID 41608
Тип сделки Продажа
Площадь 225.60
Тип объекта Жилой комплекс
Этаж -1
Всего этажей в здании 4
Метраж по этажам
Информация об объекте
Состояние объекта рабочее
Состояние блока Shell & Core
Планировка Смешанная
Перекрытия Смешаные
Нюансы Отдельный вход,ПСН,Новостройка
Торговая недвижимость
Линия домов 2 линия
Возможности Зона разгрузки,Витрины,Место для рекламы,Проходное место,Проездное место
Электр. мощность (кВт) 25
Коммерческие условия
За все 97 100 000 ₽
За м 2 430 408 ₽
Тип собственника Юридическое лицо

Описание объекта
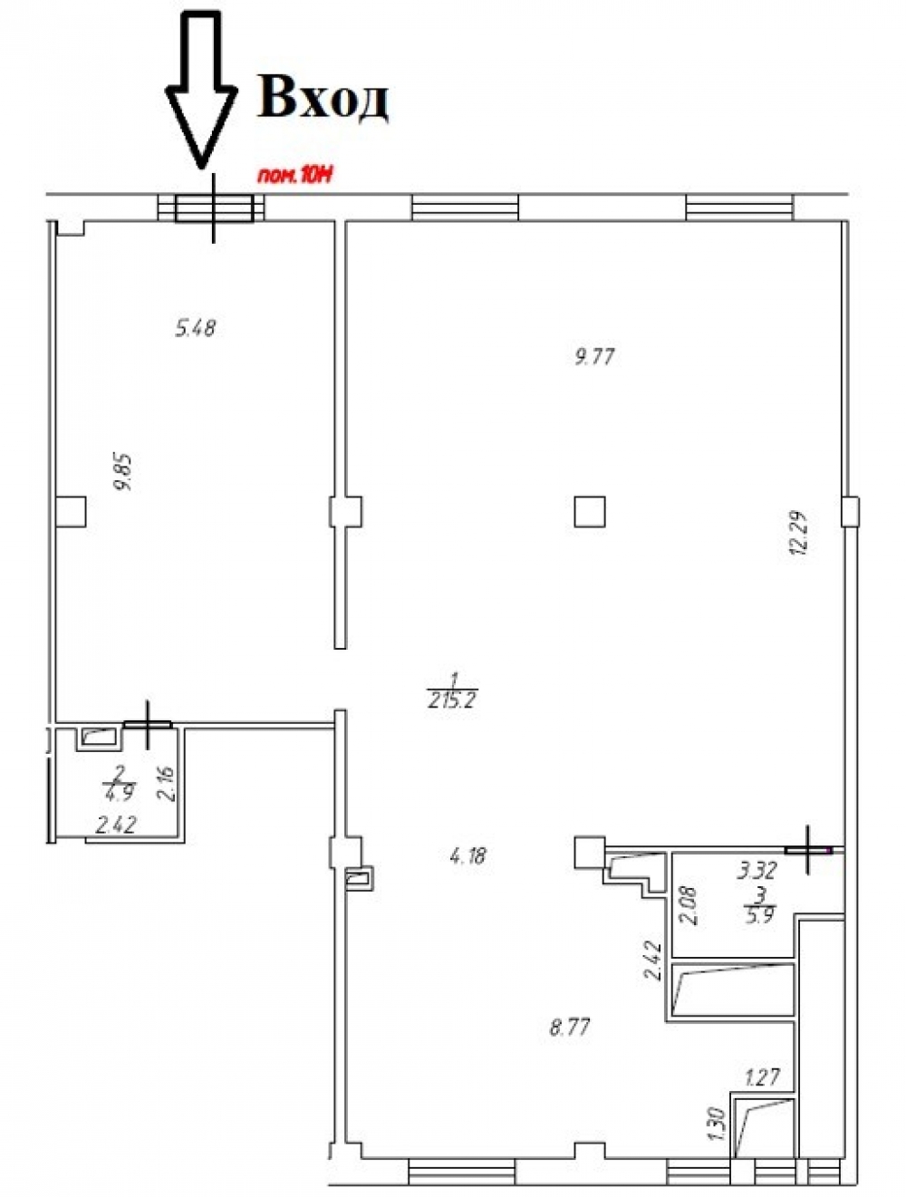
Помещение в цокольном этаже с отдельным входом с ул. Зацепа и окнами в Жилом комплексе бизнесс класса. ЖК включает в себя 206 апартамента бизнес-класса, спорткомплекс и подземный паркинг на 180 м/м. Цокольный этаж  вход с уровня земли, окна размером 1,03х1,4-2,05 м. Высота потолков: 3,05 м. Эл-во 90 Вт на м2. Помещение на плане здания №10Н. Пешая доступность (5-7 минут) от трех станций метро Павелецкая, Серпуховская и Добрынинская. 2я линяя домов. Общая площадь 225,60 кв.м, 4 окна,

Наша оценка
Локация
Цена
Техническое оснащение
Состояние
Метраж
Общая оценка 5

Нужна консультация покупке или продаже торговых помещений?

Наши специалисты подберут для вас самые выгодные варианты для долгосрочного инвестирования,
помогут в сопровождении и сделки, проверят все юридические вопросы касаемо приобретения недвижимости.

* Нажимая на кнопку «Отправить», Вы даете согласие на обработку персональных данных в соответствии с Политикой конфиденциальности

Похожие объекты

Цветной бульвар (6 мин. 🚶)
Закрытая продажа #37382
Тип: Торговое помещение
Площадь: 240.90 м2
100 000 000 за все
415 110 за м2
Позвонить Подробнее
Марьина Роща (10 мин. 🚶)
Москва, Складочная улица, 6
БЦ "GUSTAV" (Густав)
Тип: Торговое помещение
Площадь: 204.66 м2
Мощность:15 кВт
63 894 852 за все
312 200 за м2
Позвонить Подробнее
ВДНХ (9 мин. 🚶)
Москва, улица Академика Королёва, 3
Жилое здание "Академика Королёва, 3"
Тип: Торговое помещение
Площадь: 241.40 м2
Мощность:30 кВт
80 000 000 за все
331 400 за м2
Позвонить Подробнее
Маяковская (16 мин. 🚶)
Москва, Большая Грузинская улица, 36с3
Жилой дом "Большая Грузинская 36с3"
Тип: Торговое помещение
Площадь: 228.60 м2
61 500 000 за все
269 029 за м2
Позвонить Подробнее
Улица 1905 года (14 мин. 🚶)
Москва, улица Сергея Макеева, вл11/9с1-10
ЖК "LIFE TIME"
Тип: Торговое помещение
Площадь: 244.40 м2
Мощность:46 кВт
69 927 728 000 за все
286 120 000 за м2
Позвонить Подробнее

Московская область, Люберцы, улица 8 Марта, 32
ЖК Влюберцы
Тип: Торговое помещение
Площадь: 207.00 м2
Мощность:120 кВт
86 320 000 за все
417 005 за м2
Позвонить Подробнее
Бунинская аллея (28 мин. 🚗)
Москва, поселение Рязановское, улица Уточкина, 5к2
ЖК "Алхимово"
Тип: Торговое помещение
Площадь: 205.00 м2
Мощность:37 кВт
85 280 000 за все
416 000 за м2
Позвонить Подробнее
Бауманская (11 мин. 🚶)
Москва, Денисовский переулок, 9
Жилое здание "Денисовский переулок, 9"
Тип: Торговое помещение
Площадь: 231.80 м2
Мощность:15 кВт
30 500 000 за все
131 579 за м2
Позвонить Подробнее
Дубровка (30 мин. 🚶)
Москва, улица Эдуарда Стрельцова, 2к1
ЖК «FORIVER (Форивер)»
Тип: Торговое помещение
Площадь: 207.20 м2
Мощность:91 кВт
143 770 000 за все
693 871 за м2
Позвонить Подробнее
Полянка (5 мин. 🚶)
Москва, улица Большая Полянка, 43с3
Офисно-жилой комплекс "Большая Полянка, 43с3"
Тип: Торговое помещение
Площадь: 208.20 м2
125 000 000 за все
600 384 за м2
Позвонить Подробнее
Смоленская (Филевская) Смоленская (Арбатско-Покровская) (5 мин. 🚶)
Москва, улица Арбат, 30/3с2
Жилое здание "улица Арбат, 30/3с2"
Тип: Торговое помещение
Площадь: 212.90 м2
52 000 000 за все
244 246 за м2
Позвонить Подробнее
Фонвизинская (10 мин. 🚶)
Москва, улица Академика Королёва, 24
Здание "Академика Королёва, 24"
Тип: Торговое помещение
Площадь: 226.00 м2
81 000 000 за все
358 407 за м2
Позвонить Подробнее
Цветной бульвар (6 мин. 🚶)
Закрытая продажа #37382
Тип: Торговое помещение
Площадь: 240.90 м2
100 000 000 за все
415 110 за м2
Позвонить Подробнее
Октябрьское Поле (1 мин. 🚶)
Москва, улица Маршала Бирюзова, 16
Жилое здание
Тип: Торговое помещение
Площадь: 43.60 м2
98 000 000 за все
2 247 706 за м2
Позвонить Подробнее
Коммунарка (12 мин. 🚗)
Москва, Новомосковский административный округ, район Коммунарка, ЖК Дзен-кварталы, 3.4
ЖК "Дзен Кварталы к3.4"
Тип: Торговое помещение
Площадь: 251.60 м2
Мощность:50 кВт
88 000 000 за все
349 762 за м2
Позвонить Подробнее
Некрасовка (10 мин. 🚶)
Москва, Рождественская улица, 27к1
Жилой дом "Рождественская 27"
Тип: Торговое помещение
Площадь: 363.40 м2
Мощность:25 кВт
88 500 000 за все
243 533 за м2
Позвонить Подробнее
Курская (2 мин. 🚶)
Москва, улица Земляной Вал, 23с1
Жилое здание " Земляной Вал, 23с1"
Тип: Торговое помещение
Площадь: 55.50 м2
93 600 000 за все
1 686 486 за м2
Позвонить Подробнее
Марьина Роща (10 мин. 🚶)
Москва, Складочная улица, 6
БЦ "GUSTAV" (Густав)
Тип: Торговое помещение
Площадь: 158.00 м2
Мощность:15 кВт
97 497 679 за все
617 074 за м2
Позвонить Подробнее
Марьина Роща (10 мин. 🚶)
Москва, Складочная улица, 6
БЦ "GUSTAV" (Густав)
Тип: Торговое помещение
Площадь: 139.72 м2
Мощность:15 кВт
89 632 899 за все
641 518 за м2
Позвонить Подробнее
Бутырская (5 мин. 🚶)
Москва, Огородный проезд, 19
Жилой дом
Тип: Торговое помещение
Площадь: 178.00 м2
Мощность:42 кВт
105 000 000 за все
589 888 за м2
Позвонить Подробнее
Бауманская (10 мин. 🚶)
Москва, 2-я Бауманская улица, 9/23с3
МФК СуперМетал
Тип: Торговое помещение
Площадь: 446.00 м2
100 000 000 за все
224 215 за м2
Позвонить Подробнее
Дубровка (30 мин. 🚶)
Москва, улица Эдуарда Стрельцова, 2к1
ЖК «FORIVER (Форивер)»
Тип: Торговое помещение
Площадь: 139.70 м2
Мощность:42 кВт
89 130 000 за все
638 010 за м2
Позвонить Подробнее
Борисово (6 мин. 🚗)
Москва, улица Борисовские Пруды, 7к2
Жилой дом "Борисовские пруды 7к2"
Тип: Торговое помещение
Площадь: 275.50 м2
Мощность:75 кВт
94 000 000 за все
341 198 за м2
Позвонить Подробнее
Калужская (7 мин. 🚶)
Москва, Старокалужское шоссе, 62
Бизнес-центр «Vallex»
Тип: Торговое помещение
Площадь: 268.40 м2
Мощность:35 кВт
100 650 000 за все
375 000 за м2
Позвонить Подробнее
Добрынинская (9 мин. 🚶)
Москва, Большой Строченовский переулок, 9
ЖК "Резиденция Замоскворечье"
Тип: Торговое помещение
Площадь: 148.90 м2
Мощность:15 кВт
70 000 000 за все
470 114 за м2
Позвонить Подробнее

Спец. предложение

Добрынинская (5 мин. 🚶)
Москва, Житная улица, 10
Жилое здание «Житная 10»
Тип: Торговое помещение
Площадь: 120.00 м2
Мощность:15 кВт
35 000 000 за все
291 667 за м2
Позвонить Подробнее
Добрынинская (9 мин. 🚶)
Москва, Пятницкая улица, 60
Особняк «Пятницкая 60»
Тип: Торговое помещение
Площадь: 458.00 м2
Мощность:100 кВт
450 000 000 за все
982 533 за м2
Позвонить Подробнее
Добрынинская (5 мин. 🚶)
Москва, улица Большая Ордынка, 61с1
Особняк «Большая Ордынка 61 с1»
Тип: Торговое помещение
Площадь: 880.00 м2
1 400 000 000 за все
1 590 909 за м2
Позвонить Подробнее
Добрынинская (9 мин. 🚶)
Москва, Большой Строченовский переулок, 9
ЖК "Резиденция Замоскворечье"
Тип: Торговое помещение
Площадь: 93.90 м2
Мощность:15 кВт
46 950 000 за все
500 000 за м2
Позвонить Подробнее
Добрынинская (10 мин. 🚶)
Москва, Мытная улица, 7с1
ЖК «Английский Квартал»
Тип: Торговое помещение
Площадь: 667.80 м2
Мощность:131 кВт
270 000 000 за все
404 313 за м2
Позвонить Подробнее
Добрынинская (9 мин. 🚶)
Москва, Большой Строченовский переулок, 9
ЖК "Резиденция Замоскворечье"
Тип: Торговое помещение
Площадь: 88.20 м2
Мощность:25 кВт
37 926 000 за все
430 000 за м2
Позвонить Подробнее
Добрынинская (9 мин. 🚶)
Москва, Большой Строченовский переулок, 9
ЖК "Резиденция Замоскворечье"
Тип: Торговое помещение
Площадь: 121.10 м2
Мощность:11 кВт
52 100 000 за все
430 223 за м2
Позвонить Подробнее
Добрынинская (9 мин. 🚶)
Москва, Большой Строченовский переулок, 9
ЖК "Резиденция Замоскворечье"
Тип: Торговое помещение
Площадь: 158.70 м2
Мощность:15 кВт
69 000 000 за все
434 783 за м2
Позвонить Подробнее