Арендный бизнес ЖК "Открытый Парк"

Арендный бизнес ЖК Арендный бизнес ЖК Арендный бизнес ЖК Арендный бизнес ЖК Арендный бизнес ЖК
Арендный бизнес ЖК Арендный бизнес ЖК Арендный бизнес ЖК Арендный бизнес ЖК Арендный бизнес ЖК
Москва, ЖК Открытый Парк
Позвоните по телефону +7 495 230-28-26, либо оставьте заявку на просмотр прямо сейчас и узнайте условия специального предложения по объекту.
загрузка карты...
Общие
ID 61811
Тип сделки Продажа
Площадь 229.00
Площадь всего 69874.00
Тип объекта Жилой комплекс
Этаж 1
Всего этажей в здании 17
Метраж по этажам
Информация об объекте
Состояние объекта рабочее
Состояние блока отделка арендатора
Планировка Открытая
Перекрытия Железобетонные
Нюансы Отдельный вход,Новостройка
Торговая недвижимость
Линия домов 1 линия
Возможности Витрины,Место для рекламы,Проходное место,Проездное место
Коммерческие условия
За все 99 000 000 ₽
За м 2 432 314 ₽
Тип собственника Юридическое лицо
Арендный бизнес
Окупаемость 10 Лет 10 мес.
По первому месяцу 10 Лет 10 мес.
Доходность 9.23 %
По первому месяцу 9.23 %
Ставка аренды 765 000 ₽ в мес
Арендная ставка за кв\м в год 40 087 ₽
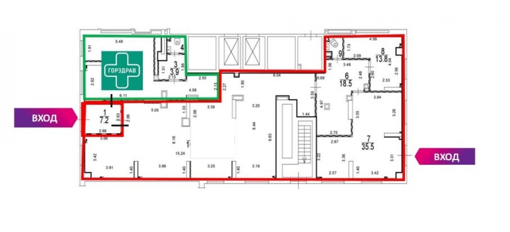
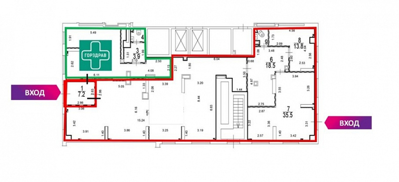
Арендатор аптека "Горздрав"

Описание объекта
Помещение расположено в сданном готовом новом ЖК "Открытый парк", что обеспечивает высокую проходимость и отличную видимость для потенциальных клиентов.
Арендаторами данного помещения является сеть аптек "Горздрав". Это гарантирует стабильный ежемесячный доход.
Благоустроенная территория с детскими площадками, спортивными и зонами отдыха. Прекрасная инфраструктура и транспортная доступность.

Помещение расположено на 1-м этаже и имеет отдельный вход с улицы, что обеспечивает отличную видимость и высокую проходимость.

Благоустроенная территория ЖК включает детские и спортивные площадки, зоны отдыха и прогулочные пространства. Всё это формирует плотный поток покупателей и высокий спрос на коммерческие площади.

Дом построен ГК «ПИК», что гарантирует качественные инженерные решения, надёжную управляющую компанию и платёжеспособную аудиторию жильцов.

Нужна консультация по подбору арендного бизнеса?

Наши специалисты подберут для вас самые выгодные варианты для долгосрочного инвестирования,
помогут в сопровождении и сделки, проверят все юридические вопросы касаемо приобретения недвижимости.

* Нажимая на кнопку «Отправить», Вы даете согласие на обработку персональных данных в соответствии с Политикой конфиденциальности

Похожие объекты

Доходность 14.12 %

Братиславская (15 мин. 🚗)
Москва, Перервинский бульвар, 17к1
Жилое здание "Перервинский бульвар, 17к1"
Тип: Арендный бизнес, Торговое помещение
Площадь: 210.90 м2
Мощность:33 кВт
Арендатор: Самокат
Месячный платеж: 600 000
61 200 000 за все
290 185 за м2
Позвонить Подробнее

Доходность 11.65 %

Деловой центр Деловой центр (МЦК) (7 мин. 🚶)
Москва, улица Антонова-Овсеенко, 4
Жилое здание "Антонова-Овсеенко, 4"
Тип: Арендный бизнес, Торговое помещение
Площадь: 210.10 м2
Мощность:35 кВт
Арендатор: Самокат
Месячный платеж: 840 000
85 720 800 за все
408 000 за м2
Позвонить Подробнее

Доходность 13.48 %

Марьина Роща (3 мин. 🚶)
Москва, улица Сущёвский Вал, 53
Административный Центр на 1й линии ТТК
Тип: Арендный бизнес, Торговое помещение
Площадь: 216.00 м2
Мощность:150 кВт
Арендатор: Бетбум
Месячный платеж: 1 238 000
110 000 000 за все
509 259 за м2
Позвонить Подробнее

Доходность 14.46 %

Аэропорт (5 мин. 🚶)
Москва, Ленинградский проспект, 47
Административное здание AIR Space
Тип: Арендный бизнес, Торговое помещение
Площадь: 209.10 м2
Мощность:42 кВт
Арендатор: Компьютерный клуб
Месячный платеж: 443 911
49 000 000 за все
234 338 за м2
Позвонить Подробнее

Доходность 11.65 %

Китай-город (10 мин. 🚶)
Москва, Хохловский переулок, 13с1
БЦ "Нега"
Тип: Арендный бизнес, Офисы
Площадь: 239.40 м2
Отделка:выполнена высококачественная отделка
Арендатор: Офис
Месячный платеж: 1 174 063
163 390 500 за все
682 500 за м2
Позвонить Подробнее

Доходность 11.43 %

Новогиреево (3 мин. 🚶)
Москва, Зелёный проспект, 48к3
Жилое здание "Зелёный проспект, 48к3"
Тип: Арендный бизнес, Торговое помещение
Площадь: 238.00 м2
Мощность:75 кВт
Арендатор: Стоматология STOMALUX
Месячный платеж: 570 000
85 000 000 за все
357 143 за м2
Позвонить Подробнее

Доходность 12.12 %

Братиславская (5 мин. 🚶)
Москва, улица Перерва, 52
Жилое здание "Перерва, 52"
Тип: Арендный бизнес, Торговое помещение
Площадь: 230.00 м2
Мощность:55 кВт
Арендатор: Винный магазин "Винлаб", ПВЗ Озон, Табак, Шаурма, Дом быта
Месячный платеж: 700 000
83 000 000 за все
360 870 за м2
Позвонить Подробнее

Доходность 9.68 %

Тульская (10 мин. 🚶)
Москва, Варшавское шоссе, 1с1-2
Бизнес-центр W Plaza (В Плаза)
Тип: Арендный бизнес, Торговое помещение
Площадь: 230.00 м2
Мощность:70 кВт
Арендатор: Столовая
Месячный платеж: 365 000
44 900 000 за все
195 217 за м2
Позвонить Подробнее

Доходность 15.38 %

Тульская (10 мин. 🚶)
Москва, Варшавское шоссе, 1с1-2
Бизнес-центр W Plaza (В Плаза)
Тип: Арендный бизнес, Торговое помещение
Площадь: 230.00 м2
Мощность:60 кВт
Арендатор: Кафе
Месячный платеж: 323 000
25 000 000 за все
108 696 за м2
Позвонить Подробнее

Доходность 10.26 %

Кожуховская (11 мин. 🚶)
Москва, 5-я Кожуховская улица, 18к1
Жилое Здание "5-я Кожуховская 18к1"
Тип: Арендный бизнес, Торговое помещение
Площадь: 208.20 м2
Мощность:60 кВт
Арендатор: магазин "Ремит", аптека Столички, Хозтовары
Месячный платеж: 443 000
64 800 000 за все
311 239 за м2
Позвонить Подробнее

Доходность 8.70 %

Смоленская (Филевская) Смоленская (Арбатско-Покровская) (8 мин. 🚶)
Москва, Смоленская-Сенная площадь, 27с1
Жилое здание «Смоленская-Сенная 27 с1»
Тип: Арендный бизнес, Торговое помещение
Площадь: 237.50 м2
Арендатор: Альфа-Банк
Месячный платеж: 1 837 500
330 000 000 за все
1 389 474 за м2
Позвонить Подробнее

Доходность 9.45 %

Каширская (11 мин. 🚶)
Москва, Пролетарский проспект, 6к2с2
Здание "Пролетарский проспект, 6к2с2"
Тип: Арендный бизнес, Торговое помещение
Площадь: 225.00 м2
Мощность:100 кВт
Арендатор: Автосервис
Месячный платеж: 742 500
94 000 000 за все
417 778 за м2
Позвонить Подробнее

Доходность 16.44 %

Партизанская (5 мин. 🚶)
Москва, Окружной проезд, 16с2
ОСЗ "Окружной пр-д 16с2"
Тип: Арендный бизнес, Торговое помещение
Площадь: 1463.40 м2
Арендатор: Чижик, фирменный кондитерский магазин Славяночка, салон электротранспорта
Месячный платеж: 1 450 000
105 000 000 за все
71 751 за м2
Позвонить Подробнее

Доходность 8.89 %

Ховрино (26 мин. 🚗)
Московская область, Химки, микрорайон Подрезково, Центральная улица, 10
ТЦ "Арком"
Тип: Арендный бизнес, Торговое помещение
Площадь: 621.00 м2
Мощность:90 кВт
Арендатор: Дикси
Месячный платеж: 542 000
94 600 000 за все
152 335 за м2
Позвонить Подробнее

Доходность 13.64 %

Молодёжная (13 мин. 🚶)
Москва, Молодогвардейская улица, 21к1
Жилой дом "Молодогвардейская 21к1"
Тип: Арендный бизнес, Торговое помещение
Площадь: 486.00 м2
Мощность:65 кВт
Арендатор: Даркстор Озон
Месячный платеж: 900 000
91 900 000 за все
189 095 за м2
Позвонить Подробнее

Доходность 9.45 %

Каширская (11 мин. 🚶)
Москва, Пролетарский проспект, 6к2с2
Здание "Пролетарский проспект, 6к2с2"
Тип: Арендный бизнес, Торговое помещение
Площадь: 225.00 м2
Мощность:100 кВт
Арендатор: Автосервис
Месячный платеж: 742 500
94 000 000 за все
417 778 за м2
Позвонить Подробнее

Доходность 10.53 %

(2 мин. 🚶)
Москва, Ташкентская улица, 12/20
Жилое здание "Ташкентская улица, 12/20"
Тип: Арендный бизнес, Торговое помещение
Площадь: 170.90 м2
Мощность:50 кВт
Арендатор: аптека Столички, ВинЛаб
Месячный платеж: 700 000
99 000 000 за все
579 286 за м2
Позвонить Подробнее

Доходность 10.26 %

Краснопресненская (10 мин. 🚶)
Москва, Зоологическая улица, 4
Жилое здание «Зоологическая 4»
Тип: Арендный бизнес, Торговое помещение
Площадь: 101.30 м2
Мощность:60 кВт
Арендатор: Аптека РИГЛА, Буфетов
Месячный платеж: 656 332
96 000 000 за все
947 680 за м2
Позвонить Подробнее

Доходность 10.62 %

Петровско-Разумовская (25 мин. 🚗)
Москва, Малая Ботаническая улица, 3
Малая Ботаническая, 3
Тип: Арендный бизнес, Торговое помещение
Площадь: 349.60 м2
Мощность:100 кВт
Арендатор: Магнолия
Месячный платеж: 830 000
93 000 000 за все
266 018 за м2
Позвонить Подробнее

Доходность 14.63 %

Жулебино (40 мин. 🚗)
Московская область, Жуковский, улица Гагарина, 62
ЖК "Гагаринский"
Тип: Арендный бизнес, Торговое помещение
Площадь: 580.20 м2
Мощность:116 кВт
Арендатор: Пятёрочка
Месячный платеж: 1 050 000
99 000 000 за все
170 631 за м2
Позвонить Подробнее

Доходность 14.29 %

Римская (9 мин. 🚶)
Москва, Международная улица, 38
ТЦ "Международная улица, 38"
Тип: Арендный бизнес, Торговое помещение
Площадь: 410.00 м2
Мощность:65 кВт
Арендатор: Даркстор Озон Fresh
Месячный платеж: 1 025 000
99 900 000 за все
243 659 за м2
Позвонить Подробнее

Доходность 11.76 %

Проспект Мира (10 мин. 🚶)
Москва, Банный переулок, 2с2
Банный переулок, 2с2
Тип: Арендный бизнес, Торговое помещение
Площадь: 238.80 м2
Мощность:38 кВт
Арендатор: Самокат
Месячный платеж: 740 000
94 700 000 за все
396 566 за м2
Позвонить Подробнее

Доходность 14.46 %

Ховрино (15 мин. 🚗)
Москва, Лобненская улица, 14
ТЦ "Зодиак"
Тип: Арендный бизнес, Торговое помещение
Площадь: 409.23 м2
Мощность:70 кВт
Арендатор: Яндекс.Лавка
Месячный платеж: 988 800
94 915 169 за все
231 936 за м2
Позвонить Подробнее

Доходность 10.08 %

Котельники (40 мин. 🚗)
Московская область, Ленинский городской округ, деревня Богданиха, улица Ленина, 119
ЖК "Богдановский Лес"
Тип: Арендный бизнес, Торговое помещение
Площадь: 436.09 м2
Арендатор: Магнит
Месячный платеж: 751 755
106 259 630 за все
243 664 за м2
Позвонить Подробнее

Доходность 15.79 %

Бульвар Рокоссовского (10 мин. 🚗)
Москва, Открытое шоссе, 24к36
Жилое здание "Открытое шоссе, 24к36"
Тип: Арендный бизнес, Торговое помещение
Площадь: 120.30 м2
Мощность:15 кВт
Арендатор: ПВЗ
Месячный платеж: 360 900
33 000 000 за все
274 314 за м2
Позвонить Подробнее

Доходность 12.63 %

Бульвар Рокоссовского (10 мин. 🚗)
Москва, Открытое шоссе, 24к36
Жилое здание "Открытое шоссе, 24к36"
Тип: Арендный бизнес, Торговое помещение
Площадь: 117.30 м2
Мощность:15 кВт
Арендатор: Улыбка радуги
Месячный платеж: 350 000
42 000 000 за все
358 056 за м2
Позвонить Подробнее

Доходность 15.38 %

Бульвар Рокоссовского (16 мин. 🚗)
Москва, Открытое шоссе, 19к1
Жилое здание "Открытое шоссе, 19к1"
Тип: Арендный бизнес, Торговое помещение
Площадь: 95.00 м2
Арендатор: Вайлдберриз
Месячный платеж: 270 000
27 500 000 за все
289 474 за м2
Позвонить Подробнее

Доходность 15.19 %

Бульвар Рокоссовского (10 мин. 🚗)
Москва, Открытое шоссе, 24к36
Жилое здание "Открытое шоссе, 24к36"
Тип: Арендный бизнес, Торговое помещение
Площадь: 278.80 м2
Мощность:15 кВт
Арендатор: ПВЗ, Улыбка радуги
Месячный платеж: 760 900
73 000 000 за все
261 836 за м2
Позвонить Подробнее

Доходность 9.23 %

Бульвар Рокоссовского (6 мин. 🚶)
Москва, Открытое шоссе, 18Ак7
ЖК "Лосиноостровский"
Тип: Арендный бизнес, Торговое помещение
Площадь: 306.00 м2
Мощность:61 кВт
Арендатор: Пятёрочка
Месячный платеж: 1 200 000
155 000 000 за все
506 536 за м2
Позвонить Подробнее

Доходность 9.52 %

Бульвар Рокоссовского (18 мин. 🚶)
Москва, Погонный проезд, 14
Жилой дом "Погонный пр-д 14"
Тип: Арендный бизнес, Торговое помещение
Площадь: 48.00 м2
Мощность:15 кВт
Арендатор: Аптека Вита
Месячный платеж: 150 000
24 000 000 за все
500 000 за м2
Позвонить Подробнее