Продажа торгового помещения ЖК "Сиреневый парк"

Объект успешно реализован!
Продажа торгового помещения ЖК Продажа торгового помещения ЖК
Продажа торгового помещения ЖК Продажа торгового помещения ЖК
Москва, Тагильская улица, вл4
Объект успешно реализован, но у нас есть много других интересных предложений. Позвоните по телефону +7 495 230-28-26, либо оставьте заявку на подбор прямо сейчас и получите список подходящих для вас объектов.
загрузка карты...
Общие
ID 60073
Тип сделки Продажа
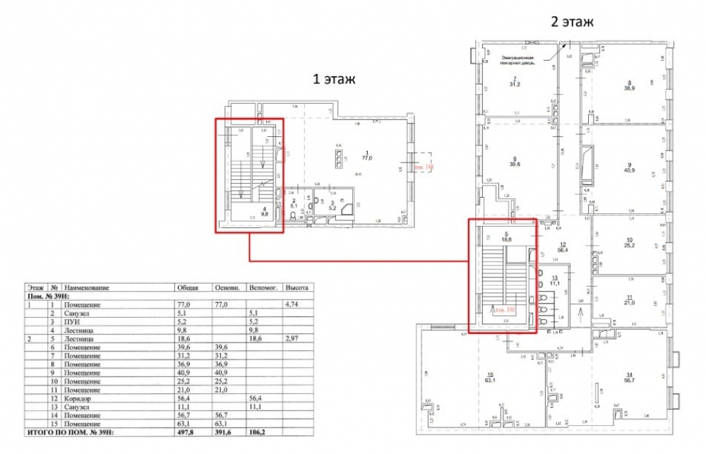
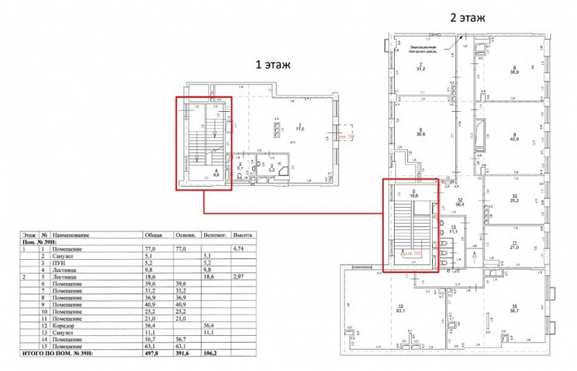
Площадь 497.80
Площадь всего 10567.00
Тип объекта Жилой комплекс
Этаж 1 - 2
Всего этажей в здании 24
Метраж по этажам
Этаж: 1 - 97.1 м2
Этаж: 2 - 400.7 м2
Информация об объекте
Состояние объекта рабочее
Состояние блока помещение без отделки
Планировка Смешанная
Перекрытия Железобетонные
Нюансы Отдельный вход,Новостройка
Торговая недвижимость
Линия домов 1 линия
Возможности Витрины,Место для рекламы,Проходное место,Проездное место
Электр. мощность (кВт) 100
Коммерческие условия
За все 129 679 389 ₽
За м 2 260 505 ₽
Тип собственника Юридическое лицо

Описание объекта
Предлагается в продажу помещение свободного назначения в корпусе 2. Площадь: 497,8 кв.м. (97,1 кв.м. – 1 этаж, 400,7 кв.м. – 2 этаж). Состояние: без отделки. Технические характеристики: системы ГВС и ХВС; отопление; вентиляция; пожарные системы; Электрическая мощность: 100 кВт; Высота потолка: 3 – 4,7 м.; Входы: отдельный с фасада.

Возможное использование: торговля; услуги; офис; медицинский центр (отсутствует паркинг под помещением).

Схема сделки: Договор купли-продажи
НДС: 20% включен в стоимость
Стоимость: 129 679 389,00 руб. (260 505,00 руб./кв.м.)

Нужна консультация покупке или продаже торговых помещений?

Наши специалисты подберут для вас самые выгодные варианты для долгосрочного инвестирования,
помогут в сопровождении и сделки, проверят все юридические вопросы касаемо приобретения недвижимости.

* Нажимая на кнопку «Отправить», Вы даете согласие на обработку персональных данных в соответствии с Политикой конфиденциальности

Похожие объекты

Дубровка (30 мин. 🚶)
Москва, улица Эдуарда Стрельцова, 2к1
ЖК «FORIVER (Форивер)»
Тип: Торговое помещение
Площадь: 544.60 м2
Мощность:95 кВт
196 190 000 за все
360 246 за м2
Позвонить Подробнее
Бауманская (7 мин. 🚶)
Москва, Волховский переулок, 16/20с1
Особняк "Волховский пер., 16/20с1"
Тип: Торговое помещение
Площадь: 513.00 м2
Мощность:150 кВт
300 000 000 за все
584 795 за м2
Позвонить Подробнее
Прокшино (2 мин. 🚶)
Закрытая продажа #40043
Тип: Торговое помещение
Площадь: 524.90 м2
79 848 753 за все
152 122 за м2
Позвонить Подробнее
Смоленская (Филевская) Смоленская (Арбатско-Покровская) (5 мин. 🚶)
Москва, Переулок Сивцев Вражек, 36/18
Здание «Сивцев Вражек 36/18»
Тип: Торговое помещение
Площадь: 538.30 м2
Мощность:150 кВт
750 000 000 за все
1 393 275 за м2
Позвонить Подробнее
Ленинский проспект (10 мин. 🚶)
Москва, Ленинский проспект, 38
Бизнес-центр «Lunar (Лунар)»
Тип: Торговое помещение
Площадь: 538.90 м2
Мощность:305 кВт
414 953 000 за все
770 000 за м2
Позвонить Подробнее
Калужская (12 мин. 🚗)
Москва, улица Обручева, 11
ТЦ "улица Обручева, 11"
Тип: Торговое помещение
Площадь: 510.10 м2
150 000 000 за все
294 060 за м2
Позвонить Подробнее
Площадь Ильича (13 мин. 🚶)
Москва, Николоямская улица, 51с2
Особняк «Николоямская 51 с2»
Тип: Торговое помещение
Площадь: 452.00 м2
Мощность:150 кВт
300 000 000 за все
663 717 за м2
Позвонить Подробнее
Говорово (8 мин. 🚶)
Москва, Боровское шоссе, вл2
БЦ "MOUNT (МАУНТ)"
Тип: Торговое помещение
Площадь: 521.60 м2
208 640 000 за все
400 000 за м2
Позвонить Подробнее
Лубянка (4 мин. 🚶)
Закрытая продажа #62870
Тип: Торговое помещение
Площадь: 534.40 м2
540 000 000 за все
1 010 479 за м2
Позвонить Подробнее
Шелепиха (15 мин. 🚶)
Москва, Шелепихинская набережная, 34к1
ЖК «Сердце Столицы»
Тип: Торговое помещение
Площадь: 454.40 м2
Мощность:68 кВт
227 200 000 за все
500 000 за м2
Позвонить Подробнее
Закрытая продажа #44097
Тип: Торговое помещение
Площадь: 484.40 м2
146 609 148 за все
302 661 за м2
Позвонить Подробнее
Добрынинская (9 мин. 🚶)
Москва, Пятницкая улица, 60
Особняк «Пятницкая 60»
Тип: Торговое помещение
Площадь: 478.00 м2
Мощность:100 кВт
650 000 000 за все
1 359 833 за м2
Позвонить Подробнее
Закрытая продажа #64115
Тип: Торговое помещение
Площадь: 380.20 м2
117 314 512 за все
308 560 за м2
Позвонить Подробнее
Дубровка (30 мин. 🚶)
Москва, улица Эдуарда Стрельцова, 2к1
ЖК «FORIVER (Форивер)»
Тип: Торговое помещение
Площадь: 207.20 м2
Мощность:91 кВт
139 890 000 за все
675 145 за м2
Позвонить Подробнее
Прокшино (10 мин. 🚶)
Закрытая продажа #34299
Тип: Торговое помещение
Площадь: 818.60 м2
Мощность:134 кВт
117 606 625 за все
143 668 за м2
Позвонить Подробнее
Багратионовская (4 мин. 🚶)
Москва, улица Барклая, 6Ак1
ЖК "Барклая 6"
Тип: Торговое помещение
Площадь: 220.00 м2
Мощность:44 кВт
129 800 000 за все
590 000 за м2
Позвонить Подробнее
Боровское шоссе (17 мин. 🚗)
Москва, Инновационный центр Сколково, район Южный
Upside Tech в Сколково
Тип: Торговое помещение
Площадь: 256.59 м2
120 646 604 за все
470 192 за м2
Позвонить Подробнее
Проспект Мира (3 мин. 🚶)
Москва, Проспект Мира, 40
Бизнес-центр «Garden Mir»
Тип: Торговое помещение
Площадь: 45.80 м2
Мощность:25 кВт
125 721 000 за все
2 745 000 за м2
Позвонить Подробнее
Проспект Мира (3 мин. 🚶)
Москва, Проспект Мира, 40
Бизнес-центр «Garden Mir»
Тип: Торговое помещение
Площадь: 50.70 м2
Мощность:25 кВт
139 171 500 за все
2 745 000 за м2
Позвонить Подробнее
Отрадное (12 мин. 🚗)
Москва, Высоковольтный проезд, 7
Здание "Высоковольтный проезд, 7"
Тип: Торговое помещение
Площадь: 661.20 м2
Мощность:125 кВт
125 300 000 за все
189 504 за м2
Позвонить Подробнее
Смоленская (Филевская) Смоленская (Арбатско-Покровская) (13 мин. 🚶)
Москва, улица Плющиха, 42
Жилое здание "Плющиха 42"
Тип: Торговое помещение
Площадь: 181.40 м2
Мощность:36 кВт
139 000 000 за все
766 262 за м2
Позвонить Подробнее
Петровско-Разумовская (17 мин. 🚗)
Москва, Дмитровское шоссе, 89
Бизнес-парк «XL-1»
Тип: Торговое помещение
Площадь: 170.90 м2
128 175 000 за все
750 000 за м2
Позвонить Подробнее
Савёловская (1 мин. 🚶)
Москва, Бутырская улица, 4
Жилое здание "Бутырская ул., д. 4"
Тип: Торговое помещение
Площадь: 264.50 м2
132 300 000 за все
500 189 за м2
Позвонить Подробнее
Закрытая продажа #62958
Тип: Торговое помещение
Площадь: 396.50 м2
125 317 790 за все
316 060 за м2
Позвонить Подробнее
Бульвар Рокоссовского (5 мин. 🚶)
Москва, Тюменский проезд, 3к1
ЖК "Преображение"
Тип: Торговое помещение
Площадь: 1222.60 м2
Мощность:155 кВт
230 000 000 за все
188 124 за м2
Позвонить Подробнее
Бульвар Рокоссовского (5 мин. 🚶)
Москва, Открытое шоссе, 18Ак1
ЖК «Лосиноостровский парк»
Тип: Торговое помещение
Площадь: 82.80 м2
Мощность:15 кВт
40 572 000 за все
490 000 за м2
Позвонить Подробнее
Бульвар Рокоссовского (8 мин. 🚶)
Москва, Тагильская улица, вл4
ЖК "Сиреневый парк"
Тип: Торговое помещение
Площадь: 127.50 м2
Мощность:25 кВт
72 500 000 за все
568 627 за м2
Позвонить Подробнее
Бульвар Рокоссовского (8 мин. 🚶)
Москва, Тагильская улица, вл4
ЖК "Сиреневый парк"
Тип: Торговое помещение
Площадь: 325.50 м2
100 721 093 за все
309 435 за м2
Позвонить Подробнее
Бульвар Рокоссовского (8 мин. 🚶)
Москва, Тагильская улица, вл4
ЖК "Сиреневый парк"
Тип: Торговое помещение
Площадь: 296.90 м2
96 072 683 за все
323 586 за м2
Позвонить Подробнее
Бульвар Рокоссовского (8 мин. 🚶)
Москва, Тагильская улица, вл4
ЖК "Сиреневый парк"
Тип: Торговое помещение
Площадь: 2129.10 м2
Мощность:100 кВт
361 947 000 за все
170 000 за м2
Позвонить Подробнее