Арендный бизнес Жилое здание "Открытое шоссе, 24к36"

Арендный бизнес Жилое здание Арендный бизнес Жилое здание
Арендный бизнес Жилое здание Арендный бизнес Жилое здание
Москва, Открытое шоссе, 24к36
Позвоните по телефону +7 495 230-28-26, либо оставьте заявку на просмотр прямо сейчас и узнайте условия специального предложения по объекту.
загрузка карты...
Общие
ID 63740
Тип сделки Продажа
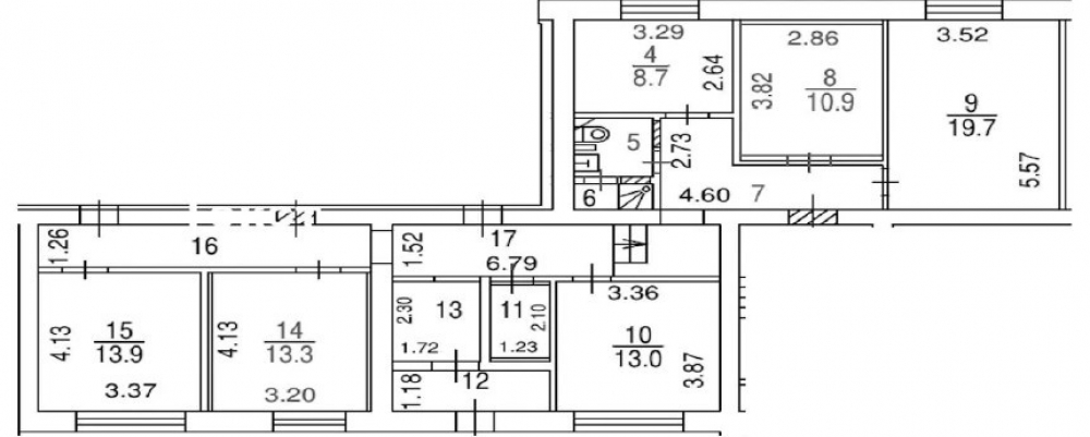
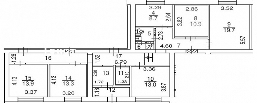
Площадь 120.30
Площадь всего 2562.20
Тип объекта Жилое здание
Этаж -1
Всего этажей в здании 5
Метраж по этажам
Информация об объекте
Состояние объекта рабочее
Состояние блока отделка арендатора
Планировка Смешанная
Перекрытия Железобетонные
Нюансы Отдельный вход
Торговая недвижимость
Линия домов 1 линия
Возможности Зона разгрузки,Витрины,Место для рекламы,Проходное место,Проездное место
Электр. мощность (кВт) 15
Коммерческие условия
За все 33 000 000 ₽
За м 2 274 314 ₽
Тип собственника Физическое лицо
Арендный бизнес
Окупаемость 6 Лет 4 мес.
По первому месяцу 7 Лет 8 мес.
Доходность 15.79 %
По первому месяцу 13.04 %
Ставка аренды 360 900 ₽ в мес
Арендная ставка за кв\м в год 36 000 ₽
Арендатор ПВЗ
Срок договора 10 Лет
Индексация 7 %

Описание объекта
Продается готовый арендный бизнес по адресу: Москва, Открытое шоссе, 24к36, площадью 117,3 м2. В центре жилого массива "Метрогородок", 2 минуты пешком до трамвайной остановки, 20 минут до м. Бульвар Рокоссовского, Рядом 2 школы и 2 детских сада. Проживает в 10 минутах ходьбы 27 473 чел.

Арендатор:
ПВЗ
МАП - 360 900 рублей.
Индексация арендной платы: 7% в год. Срок договора 10 лет.
Коммунальные платежи компенсируются арендатором в полном объеме.

Технические характеристики:
Водоснабжение, теплоснабжение, канализация
Бесплатная парковка, мокрые точки: есть

Нужна консультация по подбору арендного бизнеса?

Наши специалисты подберут для вас самые выгодные варианты для долгосрочного инвестирования,
помогут в сопровождении и сделки, проверят все юридические вопросы касаемо приобретения недвижимости.

* Нажимая на кнопку «Отправить», Вы даете согласие на обработку персональных данных в соответствии с Политикой конфиденциальности

Похожие объекты

Доходность 11.65 %

Мякинино (50 мин. 🚗)
Московская область, городской округ Красногорск, посёлок Ильинское-Усово, Заповедная улица, 20
ЖК "Ильинские Луга"
Тип: Арендный бизнес, Торговое помещение
Площадь: 127.60 м2
Мощность:25 кВт
Арендатор: РУАЙ ТАЙ, Twins Tailor
Месячный платеж: 344 520
46 500 000 за все
364 420 за м2
Позвонить Подробнее

Доходность 8.05 %

Хорошёво (10 мин. 🚶)
Москва, улица Мнёвники, 5
ЖК "Городской квартал BIG TIME"
Тип: Арендный бизнес, Торговое помещение
Площадь: 114.00 м2
Мощность:40 кВт
Арендатор: ВкусВилл, Салон красоты
Месячный платеж: 345 000
68 400 000 за все
600 000 за м2
Позвонить Подробнее

Доходность 12.24 %

Профсоюзная (12 мин. 🚶)
Москва, улица Кржижановского, 23к1
Жилое здание "улица Кржижановского, 23к1"
Тип: Арендный бизнес, Торговое помещение
Площадь: 119.00 м2
Арендатор: Складно
Месячный платеж: 200 000
25 000 000 за все
210 084 за м2
Позвонить Подробнее

Доходность 9.38 %

Новокузнецкая (3 мин. 🚶)
Москва, Климентовский переулок, 6
Жилое здание «Климентовский 6»
Тип: Арендный бизнес, Торговое помещение
Площадь: 113.60 м2
Мощность:55 кВт
Арендатор: ВинЛаб
Месячный платеж: 742 630
109 900 000 за все
967 430 за м2
Позвонить Подробнее

Доходность 9.23 %

Нижегородская (13 мин. 🚶)
Москва, Нижегородская улица, 76к1
Жилой дом "Нижегородская 76к1"
Тип: Арендный бизнес, Торговое помещение
Площадь: 127.70 м2
Мощность:50 кВт
Арендатор: Wildberries, Магазин одежды
Месячный платеж: 240 000
68 000 000 за все
532 498 за м2
Позвонить Подробнее

Доходность 7.69 %

Чистые пруды (8 мин. 🚶)
Москва, Улица Чаплыгина, 6
Офисное здание «Чаплыгина 6»
Тип: Арендный бизнес, Торговое помещение
Площадь: 130.00 м2
Мощность:15 кВт
Арендатор: ООО «ИнтермаркРелокация
Месячный платеж: 335 000
52 000 000 за все
400 000 за м2
Позвонить Подробнее

Доходность 9.60 %

Бунинская аллея (26 мин. 🚗)
Москва, Новомосковский административный округ, район Щербинка, квартал № 103, жилой комплекс Подольские Кварталы, к2
ЖК "Подольские Кварталы" к2
Тип: Арендный бизнес, Торговое помещение
Площадь: 130.70 м2
Мощность:24 кВт
Арендатор: ВинЛаб, Табак Less
Месячный платеж: 330 000
47 600 000 за все
364 193 за м2
Позвонить Подробнее

Доходность 10.34 %

Бабушкинская (17 мин. 🚗)
Московская область, Мытищи, жилой комплекс Ярославский Квартал, 1.2
ЖК "Ярославский квартал"
Тип: Арендный бизнес, Торговое помещение
Площадь: 125.80 м2
Мощность:25 кВт
Арендатор: Аптека РИГЛА, ПВЗ Озон
Месячный платеж: 354 000
51 100 000 за все
406 200 за м2
Позвонить Подробнее

Доходность 12.63 %

Бульвар Рокоссовского (10 мин. 🚗)
Москва, Открытое шоссе, 24к36
Жилое здание "Открытое шоссе, 24к36"
Тип: Арендный бизнес, Торговое помещение
Площадь: 117.30 м2
Мощность:15 кВт
Арендатор: Улыбка радуги
Месячный платеж: 350 000
42 000 000 за все
358 056 за м2
Позвонить Подробнее

Доходность 10.34 %

Ростокино (20 мин. 🚶)
Москва, Ярославское шоссе, 2к2
Жилой дом "Ярославское ш. 2к2"
Тип: Арендный бизнес, Торговое помещение
Площадь: 112.20 м2
Мощность:15 кВт
Арендатор: Улыбка радуги
Месячный платеж: 600 000
86 400 000 за все
770 053 за м2
Позвонить Подробнее

Доходность 12.50 %

Тёплый стан (14 мин. 🚶)
Закрытая продажа #63171
Тип: Арендный бизнес, Торговое помещение
Площадь: 120.00 м2
Арендатор: Автомойка шиномонтаж
Месячный платеж: 730 000
70 000 000 за все
583 333 за м2
Позвонить Подробнее

Доходность 11.54 %

(2 мин. 🚶)
Москва, Рязанский проспект, 10с2
Бизнес-центр «Джоуль»
Тип: Арендный бизнес, Торговое помещение
Площадь: 109.30 м2
Мощность:15 кВт
Арендатор: -
Месячный платеж: 275 000
34 500 000 за все
315 645 за м2
Позвонить Подробнее

Доходность 10.17 %

Чертановская (11 мин. 🚶)
Москва, Балаклавский проспект, 2к6
ОСЗ "Балаклавский проспект, 2к6"
Тип: Арендный бизнес, Торговое помещение
Площадь: 83.10 м2
Мощность:50 кВт
Арендатор: District Bar
Месячный платеж: 300 000
35 400 000 за все
425 993 за м2
Позвонить Подробнее

Доходность 11.54 %

Ул. Скобелевская (1 мин. 🚶)
Москва, бульвар Адмирала Ушакова, 2
Жилое здание "бульвар Адмирала Ушакова, 2"
Тип: Арендный бизнес, Торговое помещение
Площадь: 195.00 м2
Мощность:150 кВт
Арендатор: хостел сети Квартал
Месячный платеж: 300 000
31 000 000 за все
158 974 за м2
Позвонить Подробнее

Доходность 11.11 %

Марьина Роща (3 мин. 🚶)
Москва, улица Сущёвский Вал, 53
Административный Центр на 1й линии ТТК
Тип: Арендный бизнес, Торговое помещение
Площадь: 16.70 м2
Мощность:15 кВт
Арендатор: Скупка золота Клевер
Месячный платеж: 250 000
33 000 000 за все
1 976 048 за м2
Позвонить Подробнее

Доходность 20.00 %

Багратионовская (14 мин. 🚶)
Москва, 2-я Филёвская улица, 8к1
Жилое здание "2-я Филёвская улица, 8к1"
Тип: Арендный бизнес, Торговое помещение
Площадь: 160.00 м2
Арендатор: СПА с хаммамом и финской баней
Месячный платеж: 500 000
30 000 000 за все
187 500 за м2
Позвонить Подробнее

Доходность 7.06 %

Новослободская (3 мин. 🚶)
Москва, Долгоруковская улица, 27с1
Долгоруковская улица, 27с1
Тип: Арендный бизнес, Торговое помещение
Площадь: 42.40 м2
Мощность:15 кВт
Арендатор: Магазин Сфера звука
Месячный платеж: 212 762
36 040 000 за все
850 000 за м2
Позвонить Подробнее

Доходность 8.11 %

Новослободская (3 мин. 🚶)
Москва, Долгоруковская улица, 27с1
Долгоруковская улица, 27с1
Тип: Арендный бизнес, Торговое помещение
Площадь: 47.50 м2
Мощность:15 кВт
Арендатор: IT-компания
Месячный платеж: 240 720
35 625 000 за все
750 000 за м2
Позвонить Подробнее

Доходность 11.54 %

Новокосино (15 мин. 🚶)
Московская область, Реутов, Юбилейный проспект, 45
ЖК "Юбилейный"
Тип: Арендный бизнес, Торговое помещение
Площадь: 74.20 м2
Арендатор: Вайлдберриз
Месячный платеж: 220 000
30 000 000 за все
404 313 за м2
Позвонить Подробнее

Доходность 12.24 %

Саларьево (21 мин. 🚗)
Москва, Новомосковский административный округ, Филимонковский район, квартал № 176, жилой комплекс Квартал Марьино, к2
ЖК "Квартал Марьино к2"
Тип: Арендный бизнес, Торговое помещение
Площадь: 103.00 м2
Мощность:19 кВт
Арендатор: ВинЛаб
Месячный платеж: 280 000
30 500 000 за все
296 117 за м2
Позвонить Подробнее

Доходность 10.53 %

Царицыно (20 мин. 🚗)
Москва, Бирюлёвская улица, 49к4с2
Встроенно-пристроенное здание
Тип: Арендный бизнес, Торговое помещение
Площадь: 47.00 м2
Арендатор: Планета Здоровья
Месячный платеж: 220 000
31 000 000 за все
659 574 за м2
Позвонить Подробнее

Доходность 9.84 %

Новые Черёмушки (7 мин. 🚶)
Москва, улица Намёткина, 3
Административное здание "Намёткина, 3"
Тип: Арендный бизнес, Торговое помещение
Площадь: 169.20 м2
Арендатор: Офис компании Альмагест
Месячный платеж: 247 753
30 000 000 за все
177 305 за м2
Позвонить Подробнее

Доходность 12.00 %

Новые Черёмушки (7 мин. 🚶)
Москва, улица Намёткина, 3
Административное здание "Намёткина, 3"
Тип: Арендный бизнес, Торговое помещение
Площадь: 251.70 м2
Арендатор: Пищевое производство
Месячный платеж: 320 350
32 000 000 за все
127 135 за м2
Позвонить Подробнее

Доходность 10.81 %

Ростокино (60 мин. 🚗)
Московская область, Королёв, улица Академика Легостаева, 8
ЖК: Парад Планет
Тип: Арендный бизнес, Торговое помещение
Площадь: 309.80 м2
Мощность:94 кВт
Арендатор: фикс прайс
Месячный платеж: 220 400
29 900 000 за все
96 514 за м2
Позвонить Подробнее

Доходность 15.38 %

Бульвар Рокоссовского (16 мин. 🚗)
Москва, Открытое шоссе, 19к1
Жилое здание "Открытое шоссе, 19к1"
Тип: Арендный бизнес, Торговое помещение
Площадь: 95.00 м2
Арендатор: Вайлдберриз
Месячный платеж: 270 000
27 500 000 за все
289 474 за м2
Позвонить Подробнее

Доходность 12.63 %

Бульвар Рокоссовского (10 мин. 🚗)
Москва, Открытое шоссе, 24к36
Жилое здание "Открытое шоссе, 24к36"
Тип: Арендный бизнес, Торговое помещение
Площадь: 117.30 м2
Мощность:15 кВт
Арендатор: Улыбка радуги
Месячный платеж: 350 000
42 000 000 за все
358 056 за м2
Позвонить Подробнее

Доходность 15.19 %

Бульвар Рокоссовского (10 мин. 🚗)
Москва, Открытое шоссе, 24к36
Жилое здание "Открытое шоссе, 24к36"
Тип: Арендный бизнес, Торговое помещение
Площадь: 278.80 м2
Мощность:15 кВт
Арендатор: ПВЗ, Улыбка радуги
Месячный платеж: 760 900
73 000 000 за все
261 836 за м2
Позвонить Подробнее

Доходность 9.23 %

Бульвар Рокоссовского (15 мин. 🚶)
Москва, ЖК Открытый Парк
ЖК "Открытый Парк"
Тип: Арендный бизнес, Торговое помещение
Площадь: 229.00 м2
Арендатор: аптека "Горздрав"
Месячный платеж: 765 000
99 000 000 за все
432 314 за м2
Позвонить Подробнее

Доходность 9.23 %

Бульвар Рокоссовского (6 мин. 🚶)
Москва, Открытое шоссе, 18Ак7
ЖК "Лосиноостровский"
Тип: Арендный бизнес, Торговое помещение
Площадь: 306.00 м2
Мощность:61 кВт
Арендатор: Пятёрочка
Месячный платеж: 1 200 000
155 000 000 за все
506 536 за м2
Позвонить Подробнее

Доходность 9.52 %

Бульвар Рокоссовского (18 мин. 🚶)
Москва, Погонный проезд, 14
Жилой дом "Погонный пр-д 14"
Тип: Арендный бизнес, Торговое помещение
Площадь: 48.00 м2
Мощность:15 кВт
Арендатор: Аптека Вита
Месячный платеж: 150 000
24 000 000 за все
500 000 за м2
Позвонить Подробнее