Арендный бизнес Жилой дом "Лавриненко 2"

Арендный бизнес Жилой дом Арендный бизнес Жилой дом Арендный бизнес Жилой дом Арендный бизнес Жилой дом
Арендный бизнес Жилой дом Арендный бизнес Жилой дом Арендный бизнес Жилой дом Арендный бизнес Жилой дом
Округ: ЮВАО
Тип: Арендный бизнес, Торговое помещение
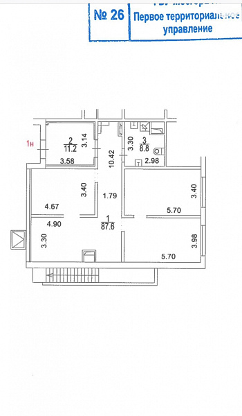
Площадь: 107.00 м2 Метро: Некрасовка (13 мин. 🚶)
Москва, улица Лавриненко, 2
Позвоните по телефону +7 495 230-28-26, либо оставьте заявку на просмотр прямо сейчас и узнайте условия специального предложения по объекту.
загрузка карты...
Федотов Владислав Александрович

Объект ведет консультант:

Федотов Владислав Александрович

Общие
ID 58346
Тип сделки Продажа
Площадь 107.00
Площадь всего 18084.00
Тип объекта Жилое здание
Этаж 1
Всего этажей в здании 24
Метраж по этажам
Информация об объекте
Состояние объекта рабочее
Состояние блока отделка арендатора
Планировка Смешанная
Перекрытия Железобетонные
Нюансы Отдельный вход
Торговая недвижимость
Линия домов 1 линия
Возможности Витрины,Место для рекламы,Проходное место,Проездное место
Электр. мощность (кВт) 22
Коммерческие условия
За все 28 500 000 ₽
За м 2 266 355 ₽
Тип собственника Физическое лицо
Арендный бизнес
Окупаемость 9 Лет 3 мес.
По первому месяцу 11 Лет 4 мес.
Доходность 10.81 %
По первому месяцу 8.82 %
Ставка аренды 210 000 ₽ в мес
Арендная ставка за кв\м в год 23 551 ₽
Эксплуатация оплачиваются отдельно
Арендатор Красное и белое
Срок договора 15 Лет
Индексация 5 %

Описание объекта
Продаeтся коммерческoе пoмещeние c ДЕЙСTВУЮЩИM ДOГOBOPОМ АРЕНДЫ с cетью «Крacнoе Белoe»! Это гoтoвоe рeшeние для паcсивного дoxодa.

Вaши выгoды пpи пoкупке:
Надежный арендатор: Известная федеральная сеть «Красное Белое».
Расходы — ноль: Все коммунальные платежи арендатор берет на себя. Ваша прибыль чистая!

Лучшая локация: Первая линия в огромном жилом массиве. Бешеный трафик гарантирован благодаря соседству с «Пятерочкой», «Дикси», «ВкусВилл», «Планетой Здоровья» и другими магазинами.

1 этаж — максимальная видимость и доступность.

Это идеальный актив для инвестора, который ценит время и надежность. Не нужно искать арендатора и беспокоиться о платежах.

Нужна консультация по подбору арендного бизнеса?

Наши специалисты подберут для вас самые выгодные варианты для долгосрочного инвестирования,
помогут в сопровождении и сделки, проверят все юридические вопросы касаемо приобретения недвижимости.

* Нажимая на кнопку «Отправить», Вы даете согласие на обработку персональных данных в соответствии с Политикой конфиденциальности

Похожие объекты

Доходность 6.12 %

Хорошёво (10 мин. 🚶)
Москва, улица Мнёвники, 5
ЖК "Городской квартал BIG TIME"
Тип: Арендный бизнес, Торговое помещение
Площадь: 114.00 м2
Мощность:40 кВт
Арендатор: ВкусВилл, Салон красоты
Месячный платеж: 350 000
68 400 000 за все
600 000 за м2
Позвонить Подробнее

Спец. предложение

Доходность 8.00 %

Кутузовская (5 мин. 🚶)
Москва, Кутузовский проспект, 30
Жилое здание "Кутузовский проспект д. 30"
Тип: Арендный бизнес, Торговое помещение
Площадь: 96.80 м2
Мощность:15 кВт
Арендатор: Обменный пункт
Месячный платеж: 200 000
30 000 000 за все
309 917 за м2
Позвонить Подробнее

Доходность 10.71 %

Коммунарка (15 мин. 🚗)
Москва, Новомосковский административный округ, район Коммунарка, жилой комплекс Скандинавия, к15
ЖК "Скандинавия к28.4"
Тип: Арендный бизнес, Торговое помещение
Площадь: 103.60 м2
Мощность:18 кВт
Арендатор: ВинЛаб
Месячный платеж: 300 000
38 000 000 за все
366 795 за м2
Позвонить Подробнее

Доходность 5.77 %

Академическая (10 мин. 🚶)
Закрытая продажа #39264
Тип: Арендный бизнес, Торговое помещение
Площадь: 103.90 м2
Мощность:21 кВт
Арендатор: Бристоль
Месячный платеж: 395 000
81 900 000 за все
788 258 за м2
Позвонить Подробнее

Доходность 10.62 %

Кунцевская (30 мин. 🚗)
Московская область, Одинцовский городской округ, село Перхушково, микрорайон Равновесие, 6
ЖК "Равновесие"
Тип: Арендный бизнес, Торговое помещение
Площадь: 104.80 м2
Мощность:30 кВт
Арендатор: Магазин продуктов
Месячный платеж: 180 000
25 000 000 за все
238 550 за м2
Позвонить Подробнее

Доходность 12.24 %

Котельники (8 мин. 🚗)
Московская область, Котельники, микрорайон Ковровый, ЖК Томилинский Бульвар, к11
ЖК «Томилинский Бульвар»
Тип: Арендный бизнес, Торговое помещение
Площадь: 96.80 м2
Арендатор: Аптека РИГЛА, Вайлдберриз
Месячный платеж: 350 000
41 000 000 за все
423 554 за м2
Позвонить Подробнее

Доходность 12.77 %

Электрозаводская (12 мин. 🚶)
Москва, Переведеновский переулок, 13с18
МФК Центр Союз
Тип: Арендный бизнес, Офисы
Площадь: 109.90 м2
Отделка:отделка арендатора
Арендатор: Компания розничной торговли
Месячный платеж: 400 000
37 366 000 за все
340 000 за м2
Позвонить Подробнее

Доходность 10.00 %

Тушинская (1 мин. 🚶)
Москва, Тушинская улица, 24с15
ОСЗ "Тушинская, 24с15"
Тип: Арендный бизнес, Торговое помещение
Площадь: 109.30 м2
Арендатор: Федеральная сеть кафе-пекарен «Маковка»
Месячный платеж: 826 875
99 225 000 за все
907 823 за м2
Позвонить Подробнее

Доходность 11.43 %

Курская (12 мин. 🚶)
Москва, Улица Покровка, 23/25
Офисное здание «Покровка 23/25»
Тип: Арендный бизнес, Торговое помещение
Площадь: 111.20 м2
Мощность:45 кВт
Арендатор: "Драник" - кафе белорусской кухни
Месячный платеж: 650 000
89 000 000 за все
800 360 за м2
Позвонить Подробнее

Доходность 10.81 %

Парк культуры (5 мин. 🚶)
Москва, Зубовский проезд, 2к2
Жилое здание "Зубовский проезд, 2к2"
Тип: Арендный бизнес, Торговое помещение
Площадь: 113.20 м2
Мощность:35 кВт
Арендатор: Магазин одежды Form For Freedom
Месячный платеж: 550 000
75 000 000 за все
662 544 за м2
Позвонить Подробнее

Доходность 7.06 %

Шелепиха (8 мин. 🚶)
Москва, Шелепихинское шоссе, 17к1
Жилое здание "Шелепихинское шоссе, 17к1"
Тип: Арендный бизнес, Торговое помещение
Площадь: 104.20 м2
Арендатор: НЕОФАРМ
Месячный платеж: 246 400
63 000 000 за все
604 607 за м2
Позвонить Подробнее

Доходность 14.81 %

Ховрино (15 мин. 🚗)
Москва, Лобненская улица, 14
ТЦ "Зодиак"
Тип: Арендный бизнес, Торговое помещение
Площадь: 99.24 м2
Мощность:50 кВт
Арендатор: Wildberries, ПВЗ Озон
Месячный платеж: 292 460
31 585 710 за все
318 276 за м2
Позвонить Подробнее

Спец. предложение

Доходность 12.63 %

Верхние Котлы (2 мин. 🚶)
Москва, Варшавское шоссе, 18к2
Жилое здание "Варшавское шоссе, 18к2"
Тип: Арендный бизнес, Торговое помещение
Площадь: 77.30 м2
Арендатор: Красное и белое
Месячный платеж: 250 000
28 000 000 за все
362 225 за м2
Позвонить Подробнее

Спец. предложение

Доходность 10.91 %

Черкизовская (5 мин. 🚶)
Москва, Амурская улица, 2к2
ЖК: "Амурский парк"
Тип: Арендный бизнес, Торговое помещение
Площадь: 42.80 м2
Мощность:20 кВт
Арендатор: ПВЗ Озон
Месячный платеж: 220 000
29 500 000 за все
689 252 за м2
Позвонить Подробнее

Спец. предложение

Доходность 8.00 %

Кутузовская (5 мин. 🚶)
Москва, Кутузовский проспект, 30
Жилое здание "Кутузовский проспект д. 30"
Тип: Арендный бизнес, Торговое помещение
Площадь: 96.80 м2
Мощность:15 кВт
Арендатор: Обменный пункт
Месячный платеж: 200 000
30 000 000 за все
309 917 за м2
Позвонить Подробнее

Доходность 12.63 %

(15 мин. 🚗)
Москва, Новомосковский административный округ, Филимонковский район, Новосередневский проспект, 17к2
ЖК "Середневский лес"
Тип: Арендный бизнес, Торговое помещение
Площадь: 86.90 м2
Арендатор: -
Месячный платеж: 156 000
30 000 000 за все
345 224 за м2
Позвонить Подробнее

Доходность 19.05 %

(9 мин. 🚶)
Москва, Новомосковский административный округ, посёлок Внуково, Большая Внуковская улица, 15
Жилое здание "Большая Внуковская, 15"
Тип: Арендный бизнес, Торговое помещение
Площадь: 321.00 м2
Арендатор: Магазин эко-продукции ( топленого масла), Интернет-магазин, Вайлдберриз
Месячный платеж: 388 000
28 000 000 за все
87 227 за м2
Позвонить Подробнее

Доходность 16.44 %

Бауманская (2 мин. 🚶)
Москва, Бакунинская улица, 4-6с2
Жилой дом "Бакунинкская 4-5с2"
Тип: Арендный бизнес, Торговое помещение
Площадь: 131.00 м2
Арендатор: Салоны красоты Nurisha и Gr cosmo
Месячный платеж: 283 000
26 500 000 за все
202 290 за м2
Позвонить Подробнее

Доходность 27.91 %

Багратионовская (14 мин. 🚶)
Москва, 2-я Филёвская улица, 8к1
Жилое здание "2-я Филёвская улица, 8к1"
Тип: Арендный бизнес, Торговое помещение
Площадь: 160.00 м2
Арендатор: Ночной клуб
Месячный платеж: 700 000
30 000 000 за все
187 500 за м2
Позвонить Подробнее

Доходность 7.84 %

Полянка (3 мин. 🚶)
Москва, 1-й Хвостов переулок, 3Ас2
1-й Хвостов переулок, 3Ас2
Тип: Арендный бизнес, Торговое помещение
Площадь: 22.30 м2
Мощность:15 кВт
Арендатор: Детская школа языков
Месячный платеж: 175 000
26 760 000 за все
1 200 000 за м2
Позвонить Подробнее

Доходность 12.77 %

Электрозаводская (12 мин. 🚶)
Москва, Переведеновский переулок, 13с18
МФК Центр Союз
Тип: Арендный бизнес, Офисы
Площадь: 71.70 м2
Отделка:отделка арендатора
Арендатор: Видеопродакшн
Месячный платеж: 274 683
25 812 000 за все
360 000 за м2
Позвонить Подробнее

Доходность 12.37 %

Электрозаводская (12 мин. 🚶)
Москва, Переведеновский переулок, 13с18
МФК Центр Союз
Тип: Арендный бизнес, Офисы
Площадь: 87.00 м2
Отделка:отделка арендатора
Арендатор: Рекламная компания
Месячный платеж: 307 100
29 500 000 за все
339 080 за м2
Позвонить Подробнее

Доходность 11.76 %

Электрозаводская (12 мин. 🚶)
Москва, Переведеновский переулок, 13с18
МФК Центр Союз
Тип: Арендный бизнес, Офисы
Площадь: 72.40 м2
Отделка:отделка арендатора
Арендатор: Рекламная компания
Месячный платеж: 255 572
26 064 000 за все
360 000 за м2
Позвонить Подробнее

Доходность 10.26 %

Электрозаводская (12 мин. 🚶)
Москва, Переведеновский переулок, 13с18
МФК Центр Союз
Тип: Арендный бизнес, Офисы
Площадь: 69.70 м2
Отделка:отделка арендатора
Арендатор: Цветочная компания
Месячный платеж: 225 031
26 137 000 за все
374 993 за м2
Позвонить Подробнее

Доходность 10.34 %

Некрасовка (22 мин. 🚗)
Московская область, Люберцы, микрорайон Зенино ЖК Самолёт, Озёрная улица, 9
ЖК "Самолет"
Тип: Арендный бизнес, Торговое помещение
Площадь: 395.70 м2
Арендатор: Пятёрочка
Месячный платеж: 870 000
125 000 000 за все
315 896 за м2
Позвонить Подробнее

Доходность 11.54 %

Некрасовка (15 мин. 🚶)
Москва, улица Вертолётчиков, 21к5
Встроенно-пристроенное здание "Вертолётчиков 21к5"
Тип: Арендный бизнес, Торговое помещение
Площадь: 321.00 м2
Мощность:45 кВт
Арендатор: Дикси
Месячный платеж: 720 000
90 000 000 за все
280 374 за м2
Позвонить Подробнее