Аренда торгового помещения ЖК "Резиденция Замоскворечье"

Аренда торгового помещения ЖК Аренда торгового помещения ЖК
Аренда торгового помещения ЖК Аренда торгового помещения ЖК
Москва, Большой Строченовский переулок, 9
Позвоните по телефону +7 495 230-28-26, либо оставьте заявку на просмотр прямо сейчас и узнайте условия специального предложения по объекту.
загрузка карты...
Аренда в год за м2 27 872 ₽
Аренда в месяц 524 000 ₽
Схема сделки прямая аренда
Баринов Игорь Юрьевич

Объект ведет консультант:

Баринов Игорь Юрьевич

Общие
ID 44280
Тип сделки Аренда
Площадь 225.60
Тип объекта Жилой комплекс
Этаж -1
Всего этажей в здании 4
Метраж по этажам
Информация об объекте
Состояние объекта рабочее
Состояние блока Shell & Core
Планировка Смешанная
Перекрытия Смешаные
Нюансы Отдельный вход,ПСН,Новостройка
Торговая недвижимость
Линия домов 2 линия
Возможности Зона разгрузки,Витрины,Место для рекламы,Проходное место,Проездное место
Электр. мощность (кВт) 25
Коммерческие условия
Аренда в год за м2 27 872 ₽
Аренда в месяц 524 000 ₽
Схема сделки прямая аренда
Тип собственника Юридическое лицо

Описание объекта
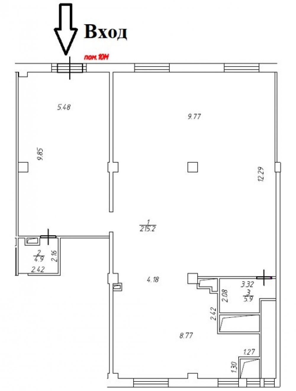
Помещение в цокольном этаже стилобата с отдельным входом с ул. Зацепа и окнами в Жилом комплексе бизнесс класса. ЖК включает в себя 206 апартамента бизнес-класса, спорткомплекс и подземный паркинг на 180 м/м. Цокольный этаж  вход с уровня земли, окна размером 1,03х1,4-2,05 м. Высота потолков: 3,05 м. Эл-во мощность 90 Вт на м2. Помещение на плане здания №10Н. Пешая доступность (5-7 минут) от трех станций метро Павелецкая, Серпуховская и Добрынинская. 2я линяя домов. Общая площадь 225,60 кв.м, 4 окна, отдельный вход. Аренда 524000 руб в мес из них Постоянная часть арендной платы 451 500 руб в мес + Переменная часть арендной платы = Эксплуатационные платежи + тепло+ ОДС(общедомовое содержание) . Коммунальные услуги арендатор оплачивает по показаниям приборов учёта (по счетчикам).

Наша оценка
Локация
Цена
Техническое оснащение
Состояние
Метраж
Общая оценка 5

Нужна консультация по подбору торговых площадей для аренды?

Наши специалисты подберут для вас самые выгодные варианты для долгосрочного инвестирования,
помогут в сопровождении и сделки, проверят все юридические вопросы касаемо приобретения недвижимости.

* Нажимая на кнопку «Отправить», Вы даете согласие на обработку персональных данных в соответствии с Политикой конфиденциальности

Похожие объекты

(12 мин. 🚶)
Москва, Корабельная улица, 3А
ЖК "Ривер Парк"
Тип: Торговое помещение
Площадь: 210.00 м2
Мощность:80 кВт
950 000 в месяц
54 286 в год за м2
Позвонить Подробнее
Академическая (3 мин. 🚶)
Москва, Профсоюзная улица, 5/9
Жилое здание "Профсоюзная улица, 5/9"
Тип: Торговое помещение
Площадь: 212.00 м2
950 000 в месяц
53 774 в год за м2
Позвонить Подробнее
Нахимовский проспект (6 мин. 🚶)
Закрытая продажа #60023
Тип: Торговое помещение
Площадь: 242.00 м2
Мощность:60 кВт
484 000 в месяц
24 000 в год за м2
Позвонить Подробнее
Улица 1905 года (4 мин. 🚶)
Москва, Улица Красная Пресня, 46с1
Офисное здание «Красная Пресня 46 с1»
Тип: Торговое помещение
Площадь: 239.50 м2
Мощность:90 кВт
1 200 000 в месяц
60 125 в год за м2
Позвонить Подробнее
Марксистская (9 мин. 🚶)
Москва, Таганская улица, 36к2
Жилое здание "Таганская улица, 36к2"
Тип: Торговое помещение
Площадь: 230.00 м2
630 000 в месяц
32 870 в год за м2
Позвонить Подробнее
Смоленская (Филевская) Смоленская (Арбатско-Покровская) (5 мин. 🚶)
Москва, улица Арбат, 30/3с2
Жилое здание "улица Арбат, 30/3с2"
Тип: Торговое помещение
Площадь: 212.90 м2
479 025 в месяц
27 000 в год за м2
Позвонить Подробнее
Планерная (5 мин. 🚗)
Москва, Планерная улица, 7к1
Жилое здание "Планерная улица, 7к1"
Тип: Торговое помещение
Площадь: 209.00 м2
950 000 в месяц
54 545 в год за м2
Позвонить Подробнее
Стрешнево (10 мин. 🚶)
Москва, Волоколамское шоссе, 10
Жилое здание "Волоколамское шоссе, 10"
Тип: Торговое помещение
Площадь: 230.00 м2
Мощность:50 кВт
950 000 в месяц
49 565 в год за м2
Позвонить Подробнее
Каширская (7 мин. 🚗)
Москва, Каширский проезд, 25к2
ЖК: LIFE-Варшавская (Лайф-Варшавская)
Тип: Торговое помещение
Площадь: 232.50 м2
Мощность:190 кВт
699 000 в месяц
36 077 в год за м2
Позвонить Подробнее
ВДНХ (19 мин. 🚗)
Москва, улица Бориса Галушкина, 19к2
Жилое здание "Бориса Галушкина, 19к2"
Тип: Торговое помещение
Площадь: 205.60 м2
Мощность:15 кВт
450 000 в месяц
26 265 в год за м2
Позвонить Подробнее
Смоленская (Филевская) Смоленская (Арбатско-Покровская) (2 мин. 🚶)
Москва, Карманицкий переулок, 9
БЦ Арбат
Тип: Торговое помещение
Площадь: 218.30 м2
1 500 000 в месяц
82 455 в год за м2
Позвонить Подробнее
Щёлковская (25 мин. 🚶)
Москва, Уссурийская улица, 9
Жилое здание "Уссурийская, 9"
Тип: Торговое помещение
Площадь: 219.60 м2
600 000 в месяц
32 787 в год за м2
Позвонить Подробнее
Ховрино (25 мин. 🚗)
Москва, Ленинградское шоссе, 228к6
ЖК «1-й Ленинградский», к. 1
Тип: Торговое помещение
Площадь: 89.20 м2
Мощность:20 кВт
223 000 в месяц
30 000 в год за м2
Позвонить Подробнее
Новокузнецкая (6 мин. 🚶)
Москва, Овчинниковская набережная, 6с3
Бизнес-центр "Овчинниковская наб. 6с3"
Тип: Торговое помещение
Площадь: 187.00 м2
440 000 в месяц
28 235 в год за м2
Позвонить Подробнее
Кунцевская (20 мин. 🚶)
Москва, Можайское шоссе, 11
Жилое здание «Можайское 11»
Тип: Торговое помещение
Площадь: 139.80 м2
Мощность:30 кВт
300 000 в месяц
25 751 в год за м2
Позвонить Подробнее
Красногвардейская (40 мин. 🚗)
Московская область, Ленинский городской округ, посёлок Развилка, Римский проезд, 15
ЖК "Римский"
Тип: Торговое помещение
Площадь: 142.00 м2
360 000 в месяц
30 423 в год за м2
Позвонить Подробнее
Смоленская (Филевская) Смоленская (Арбатско-Покровская) (5 мин. 🚶)
Москва, улица Арбат, 30/3с2
Жилое здание "улица Арбат, 30/3с2"
Тип: Торговое помещение
Площадь: 212.90 м2
479 025 в месяц
27 000 в год за м2
Позвонить Подробнее
Бауманская (13 мин. 🚶)
Москва, Новая Басманная улица, 28с1
Жилое здание "Новая Басманная улица д. 28с1"
Тип: Торговое помещение
Площадь: 137.00 м2
Мощность:41 кВт
350 000 в месяц
30 657 в год за м2
Позвонить Подробнее
Тёплый стан (1 мин. 🚶)
Москва, Новоясеневский проспект, 1к1
Здание "Новоясеневский проспект, 1к1"
Тип: Торговое помещение
Площадь: 4750.00 м2
12 000 000 в месяц
30 316 в год за м2
Позвонить Подробнее
Перово (15 мин. 🚗)
Москва, улица Плеханова, 24к1
Жилое здание "Плеханова, 24к1"
Тип: Торговое помещение
Площадь: 181.30 м2
Мощность:65 кВт
450 000 в месяц
29 785 в год за м2
Позвонить Подробнее
Новогиреево (10 мин. 🚗)
Москва, шоссе Энтузиастов, 55
Жилое здание "шоссе Энтузиастов, 55"
Тип: Торговое помещение
Площадь: 311.00 м2
777 000 в месяц
29 981 в год за м2
Позвонить Подробнее
ВДНХ (19 мин. 🚗)
Москва, улица Бориса Галушкина, 19к2
Жилое здание "Бориса Галушкина, 19к2"
Тип: Торговое помещение
Площадь: 205.60 м2
Мощность:15 кВт
450 000 в месяц
26 265 в год за м2
Позвонить Подробнее
Автозаводская (3 мин. 🚶)
Москва, Улица Мастеркова, 4
Торгово-офисный центр "Панорама"
Тип: Торговое помещение
Площадь: 495.00 м2
Мощность:200 кВт
1 237 500 в месяц
30 000 в год за м2
Позвонить Подробнее
Добрынинская (9 мин. 🚶)
Москва, Большой Строченовский переулок, 9
ЖК "Резиденция Замоскворечье"
Тип: Торговое помещение
Площадь: 158.70 м2
Мощность:25 кВт
400 000 в месяц
30 246 в год за м2
Позвонить Подробнее
Добрынинская (9 мин. 🚶)
Москва, Пятницкая улица, 60
Особняк «Пятницкая 60»
Тип: Торговое помещение
Площадь: 458.00 м2
Мощность:100 кВт
4 500 000 в месяц
117 904 в год за м2
Позвонить Подробнее
Добрынинская (9 мин. 🚶)
Москва, Большой Строченовский переулок, 9
ЖК "Резиденция Замоскворечье"
Тип: Торговое помещение
Площадь: 158.70 м2
Мощность:25 кВт
400 000 в месяц
30 246 в год за м2
Позвонить Подробнее
Добрынинская (9 мин. 🚶)
Москва, Большой Строченовский переулок, 9
ЖК "Резиденция Замоскворечье"
Тип: Торговое помещение
Площадь: 148.90 м2
Мощность:25 кВт
410 000 в месяц
33 042 в год за м2
Позвонить Подробнее
Добрынинская (1 мин. 🚶)
Москва, Большая Серпуховская улица, 8/7с2
Административное здание «Большая Серпуховская 8/7 с2»
Тип: Торговое помещение
Площадь: 46.20 м2
Мощность:30 кВт
370 000 в месяц
96 104 в год за м2
Позвонить Подробнее
Добрынинская (5 мин. 🚶)
Москва, Улица Большая Полянка, 51А/9
Административное здание «Большая Полянка 51а/9»
Тип: Торговое помещение
Площадь: 345.00 м2
Мощность:70 кВт
1 275 000 в месяц
44 348 в год за м2
Позвонить Подробнее
Добрынинская (3 мин. 🚶)
Москва, Серпуховская площадь, 36/71с1
Офисное здание «Серпуховская 36/71 с1»
Тип: Торговое помещение
Площадь: 88.00 м2
Мощность:60 кВт
586 667 в месяц
80 000 в год за м2
Позвонить Подробнее
Добрынинская (3 мин. 🚶)
Москва, Серпуховская площадь, 36/71с1
Офисное здание «Серпуховская 36/71 с1»
Тип: Торговое помещение
Площадь: 77.00 м2
Мощность:60 кВт
513 333 в месяц
80 000 в год за м2
Позвонить Подробнее
Добрынинская (5 мин. 🚶)
Москва, Житная улица, 10
Жилое здание «Житная 10»
Тип: Торговое помещение
Площадь: 543.50 м2
Мощность:100 кВт
1 500 000 в месяц
33 119 в год за м2
Позвонить Подробнее
Добрынинская (9 мин. 🚶)
Москва, Большой Строченовский переулок, 9
ЖК "Резиденция Замоскворечье"
Тип: Торговое помещение
Площадь: 121.10 м2
Мощность:25 кВт
302 750 в месяц
30 000 в год за м2
Позвонить Подробнее