Аренда торгового помещения ОСЗ "Чечёрский пр-д вл. 22"

Аренда торгового помещения ОСЗ Аренда торгового помещения ОСЗ Аренда торгового помещения ОСЗ Аренда торгового помещения ОСЗ Аренда торгового помещения ОСЗ
Аренда торгового помещения ОСЗ Аренда торгового помещения ОСЗ Аренда торгового помещения ОСЗ Аренда торгового помещения ОСЗ Аренда торгового помещения ОСЗ
Москва, Чечёрский проезд, вл22
Позвоните по телефону +7 495 230-28-26, либо оставьте заявку на просмотр прямо сейчас и узнайте условия специального предложения по объекту.
загрузка карты...
Аренда в год за м2 36 000 ₽
Аренда в месяц 5 490 000 ₽
Схема сделки прямая аренда
Баринов Игорь Юрьевич

Объект ведет консультант:

Баринов Игорь Юрьевич

Общие
ID 60110
Тип сделки Аренда
Площадь 1830.00
Площадь всего 3458.80
Тип объекта Административное здание
Этаж 2 - 3
Всего этажей в здании 3
Метраж по этажам
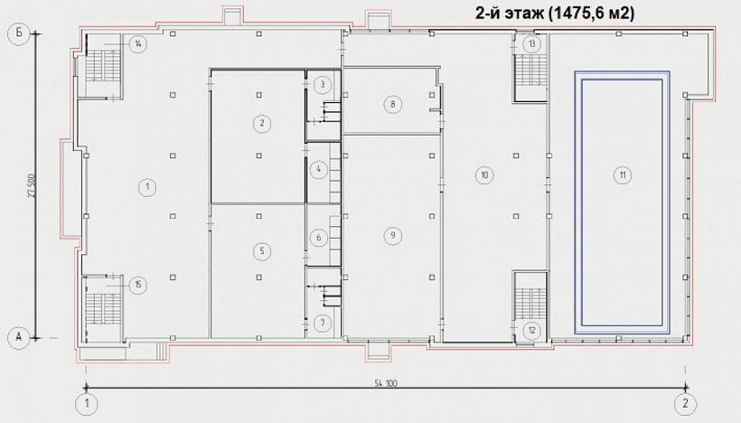
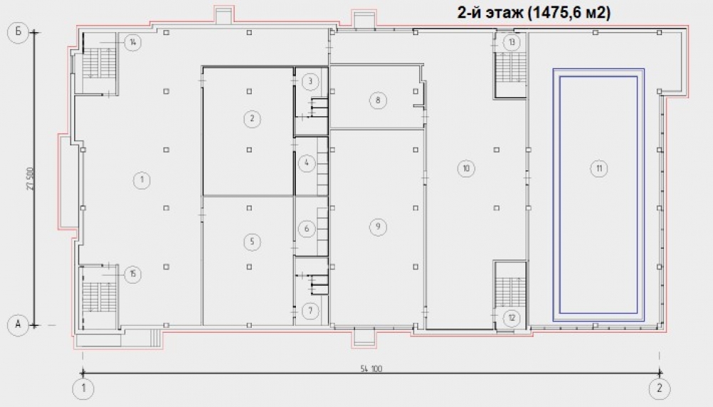
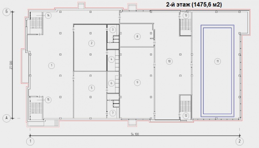
Этаж: 2 - 1475,6 м2
Этаж: 3 - 354,7 м2
Информация об объекте
Состояние объекта рабочее
Состояние блока помещение без отделки
Планировка Открытая
Перекрытия Железобетонные
Нюансы Отдельный вход,ПСН
Торговая недвижимость
Линия домов 1 линия
Возможности Зона разгрузки,Ресторанная вытяжка,Торговый центр,Витрины,Место для рекламы,Проходное место,Проездное место
Электр. мощность (кВт) 250
Коммерческие условия
Аренда в год за м2 36 000 ₽
Аренда в месяц 5 490 000 ₽
Схема сделки прямая аренда
Тип собственника Физическое лицо

Описание объекта
Аренда помещения  1830,3 м2 под Фитнес центр с бассейном в  нежилом отдельно стоящем здании с большой парковкой в 15 минутах от метро "Бульвар Адмирала Ушакова", м. "улица Горчакова", ЮЗАО. Помещение в МФЦ в 3-х этажном здании общей площадью 3458,8 м2 в центре крупного жилого массива с многоквартирными домами района Южного Бутово.  Первая линия домов, большие витрины по периметру здания. Рекламные площади по фасаду здания. Зальная планировка. Высокие потолки от 4,5 до 9 м. Здание монолитное, современное, все инженерные системы централизованные, гвс, хвс, отопление, канализация, су, мокрые точки, бассейн на 2-м этаже. Эл-во 400 кВт. Парковка на 80 машино-мест вдоль периметра. Земельный участок 4100 кв.м. Идеально под фитнес-центр с бассейном на 2-м этаже здания. Отличное место под Медцентр, Удачное месторасположение, удобный заезд и выезд к зданию. На 1-ом этаже 10 отдельных входов с улицы, удобная зона для разгрузки-погрузки арендаторов. Площадь 2 этаж 1475,6 м2, 3-й этаж 354,7 м2 + второй свет над чашей бассейна 2-го этажа. Долгосрочная аренда

Наша оценка
Локация
Цена
Техническое оснащение
Состояние
Метраж
Общая оценка 5

Нужна консультация по подбору торговых площадей для аренды?

Наши специалисты подберут для вас самые выгодные варианты для долгосрочного инвестирования,
помогут в сопровождении и сделки, проверят все юридические вопросы касаемо приобретения недвижимости.

* Нажимая на кнопку «Отправить», Вы даете согласие на обработку персональных данных в соответствии с Политикой конфиденциальности

Похожие объекты

Кунцевская (16 мин. 🚗)
Московская область, Одинцовский городской округ, рабочий посёлок Новоивановское, Западная улица, 181
МФК Орбион
Тип: Торговое помещение
Площадь: 1707.20 м2
4 165 568 в месяц
29 280 в год за м2
Позвонить Подробнее
Тверская (5 мин. 🚶)
Москва, Тверская улица, 22
Бизнес-центр «Саммит»
Тип: Торговое помещение
Площадь: 2000.00 м2
13 216 667 в месяц
79 300 в год за м2
Позвонить Подробнее
Бульвар Рокоссовского (8 мин. 🚶)
Закрытая продажа #62137
Тип: Торговое помещение
Площадь: 2000.00 м2
Мощность:50 кВт
4 000 000 в месяц
24 000 в год за м2
Позвонить Подробнее
Пражская (9 мин. 🚶)
Москва, Кировоградская улица, 11с1
ТЦ "Армада Хоум"
Тип: Торговое помещение
Площадь: 2000.00 м2
Мощность:50 кВт
5 000 000 в месяц
30 000 в год за м2
Позвонить Подробнее
Мичуринский проспект (6 мин. 🚶)
Москва, улица Лобачевского, 114
Административное здание «Лобачевского 114»
Тип: Торговое помещение
Площадь: 2007.00 м2
Мощность:400 кВт
5 853 750 в месяц
35 000 в год за м2
Позвонить Подробнее
Аннино (5 мин. 🚶)
Москва, Варшавское шоссе, 170Г
ТОРГОВЫЙ ЦЕНТР "ЕВРО СИТИ"
Тип: Торговое помещение
Площадь: 1850.00 м2
Мощность:100 кВт
2 775 000 в месяц
18 000 в год за м2
Позвонить Подробнее
Маяковская (5 мин. 🚶)
Москва, Оружейный переулок, 15А
Бизнес - центр «Маяковская Плаза»
Тип: Торговое помещение
Площадь: 1750.00 м2
Мощность:150 кВт
4 156 250 в месяц
28 500 в год за м2
Позвонить Подробнее
Бульвар Дмитрия Донского (10 мин. 🚶)
Москва, улица Поляны, 8
ТРЦ ВИВА
Тип: Торговое помещение
Площадь: 1660.00 м2
2 191 200 в месяц
15 840 в год за м2
Позвонить Подробнее
Тёплый стан (11 мин. 🚶)
Москва, Новомосковский административный округ, район Коммунарка, посёлок завода Мосрентген, улица Героя России Соломатина, 3А
ТЦ "Гусь"
Тип: Торговое помещение
Площадь: 1800.00 м2
900 000 в месяц
6 000 в год за м2
Позвонить Подробнее
Первомайская (2 мин. 🚶)
Закрытая продажа #46652
Тип: Торговое помещение
Площадь: 1801.00 м2
6 000 000 в месяц
39 978 в год за м2
Позвонить Подробнее
Ховрино (40 мин. 🚗)
Московская область, Химки, микрорайон Сходня, улица Некрасова, 2
ОСЗ "Некрасова вл1стр1"
Тип: Торговое помещение
Площадь: 1650.00 м2
Мощность:60 кВт
1 650 000 в месяц
12 000 в год за м2
Позвонить Подробнее
Павелецкая (10 мин. 🚗)
Москва, Павелецкая набережная, 2с18
Бизнес-парк «Loft Ville»
Тип: Торговое помещение
Площадь: 1700.00 м2
Мощность:30 кВт
2 720 000 в месяц
19 200 в год за м2
Позвонить Подробнее
Войковская (6 мин. 🚶)
Москва, Старопетровский проезд, 8
ЖК: Балтийский
Тип: Торговое помещение
Площадь: 122.00 м2
Мощность:15 кВт
365 100 в месяц
35 911 в год за м2
Позвонить Подробнее
Баррикадная (3 мин. 🚶)
Москва, Кудринская площадь, 1с1
Встроенно-пристроенное "Кудринская площадь, 1с1"
Тип: Торговое помещение
Площадь: 380.00 м2
Мощность:120 кВт
1 100 000 в месяц
34 737 в год за м2
Позвонить Подробнее
Молодёжная (11 мин. 🚶)
Москва, Молодогвардейская улица, 25к1
Жилое здание "Молодогвардейская улица, 25к1"
Тип: Торговое помещение
Площадь: 256.00 м2
Мощность:105 кВт
800 000 в месяц
37 500 в год за м2
Позвонить Подробнее
Маяковская (2 мин. 🚶)
Закрытая продажа #63984
Тип: Торговое помещение
Площадь: 1240.00 м2
Мощность:250 кВт
3 500 000 в месяц
33 871 в год за м2
Позвонить Подробнее
Медведково (3 мин. 🚶)
Москва, улица Грекова, вл7
Административное здание "улица Грекова, вл7"
Тип: Торговое помещение
Площадь: 891.90 м2
2 675 700 в месяц
36 000 в год за м2
Позвонить Подробнее
Новослободская (13 мин. 🚶)
Москва, Краснопролетарская улица, 2/4с13
Бизнес-центр «Эрмитаж Плаза»
Тип: Торговое помещение
Площадь: 272.30 м2
Мощность:105 кВт
750 000 в месяц
33 052 в год за м2
Позвонить Подробнее
Коломенская (11 мин. 🚶)
Москва, Проспект Андропова, 48
Административное здание «проспект Андропова 48»
Тип: Торговое помещение
Площадь: 220.00 м2
Мощность:60 кВт
700 000 в месяц
38 182 в год за м2
Позвонить Подробнее
Царицыно (10 мин. 🚗)
Москва, 6-я Радиальная улица, 7/1к2
Жилое здание "6-я Радиальная 7/1к2"
Тип: Торговое помещение
Площадь: 72.00 м2
Мощность:30 кВт
220 000 в месяц
36 667 в год за м2
Позвонить Подробнее
Авиамоторная (13 мин. 🚶)
Москва, Проезд Завода Серп и Молот, 10
Бизнес-центр «Интеграл»
Тип: Торговое помещение
Площадь: 407.90 м2
1 244 095 в месяц
36 600 в год за м2
Позвонить Подробнее
Китай-город (7 мин. 🚶)
Москва, Подкопаевский переулок, 4с3
Бизнес-центр "Ивановская горка" с3
Тип: Торговое помещение
Площадь: 110.50 м2
Мощность:15 кВт
363 729 в месяц
39 500 в год за м2
Позвонить Подробнее
Тушинская (4 мин. 🚶)
Москва, Тушинская улица, 16с4
ОСЗ "Тушинская улица, 16с4"
Тип: Торговое помещение
Площадь: 232.00 м2
Мощность:100 кВт
750 000 в месяц
38 793 в год за м2
Позвонить Подробнее
Рассказовка (40 мин. 🚗)
Московская область, Одинцово, Берёзовая улица, 6к2
ЖК "Одинцово 1"
Тип: Торговое помещение
Площадь: 119.70 м2
359 100 в месяц
36 000 в год за м2
Позвонить Подробнее
Ул. Горчакова (13 мин. 🚶)
Москва, Чечёрский проезд, вл22
ОСЗ "Чечёрский пр-д вл. 22"
Тип: Торговое помещение
Площадь: 1230.00 м2
Мощность:200 кВт
3 690 000 в месяц
36 000 в год за м2
Позвонить Подробнее
Ул. Горчакова (13 мин. 🚶)
Закрытая продажа #59985
Тип: Торговое помещение
Площадь: 3458.80 м2
Мощность:400 кВт
8 647 000 в месяц
30 000 в год за м2
Позвонить Подробнее
Ул. Горчакова (13 мин. 🚶)
Москва, Чечёрский проезд, вл22
ОСЗ "Чечёрский пр-д вл. 22"
Тип: Торговое помещение
Площадь: 850.00 м2
Мощность:200 кВт
2 550 000 в месяц
36 000 в год за м2
Позвонить Подробнее
Ул. Горчакова (13 мин. 🚶)
Москва, Чечёрский проезд, вл22
ОСЗ "Чечёрский пр-д вл. 22"
Тип: Торговое помещение
Площадь: 60.00 м2
Мощность:15 кВт
270 000 в месяц
54 000 в год за м2
Позвонить Подробнее
Ул. Горчакова (13 мин. 🚶)
Москва, Чечёрский проезд, вл22
ОСЗ "Чечёрский пр-д вл. 22"
Тип: Торговое помещение
Площадь: 250.00 м2
Мощность:60 кВт
750 000 в месяц
36 000 в год за м2
Позвонить Подробнее
Ул. Горчакова (13 мин. 🚶)
Москва, Чечёрский проезд, вл22
ОСЗ "Чечёрский пр-д вл. 22"
Тип: Торговое помещение
Площадь: 700.00 м2
Мощность:150 кВт
2 100 000 в месяц
36 000 в год за м2
Позвонить Подробнее