Аренда торгового помещения МФК Орбион

Аренда торгового помещения МФК Орбион Аренда торгового помещения МФК Орбион Аренда торгового помещения МФК Орбион Аренда торгового помещения МФК Орбион Аренда торгового помещения МФК Орбион Аренда торгового помещения МФК Орбион Аренда торгового помещения МФК Орбион
Аренда торгового помещения МФК Орбион - превью Аренда торгового помещения МФК Орбион - превью Аренда торгового помещения МФК Орбион - превью Аренда торгового помещения МФК Орбион - превью Аренда торгового помещения МФК Орбион - превью Аренда торгового помещения МФК Орбион - превью Аренда торгового помещения МФК Орбион - превью
Московская область, Одинцовский городской округ, рабочий посёлок Новоивановское, Западная улица, 181
Позвоните по телефону +7 495 230-28-26, либо оставьте заявку на просмотр прямо сейчас и узнайте условия специального предложения по объекту.
загрузка карты...
Аренда в год за м2 29 280 ₽
Аренда в месяц 4 165 568 ₽
Схема сделки прямая аренда
Капина Владлена Викторовна

Объект ведет консультант:

Капина Владлена Викторовна

Общие
ID 63108
Тип сделки Аренда
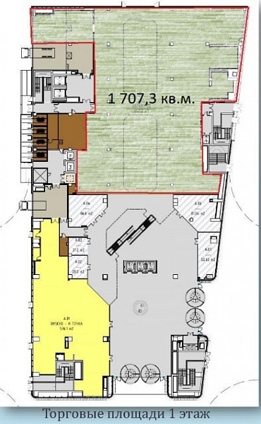
Площадь 1707.20
Площадь всего 70156.00
Тип объекта Многофункциональный комплекс
Этаж 1
Всего этажей в здании 21
Метраж по этажам
Информация об объекте
Состояние объекта рабочее
Состояние блока отделка арендатора
Планировка Открытая
Перекрытия Неизвестно
Парковка стихийная
Нюансы Отдельный вход
Торговая недвижимость
Линия домов 1 линия
Возможности Зона разгрузки,Витрины,Место для рекламы,Проходное место,Проездное место
Коммерческие условия
Аренда в год за м2 29 280 ₽
Аренда в месяц 4 165 568 ₽
Схема сделки прямая аренда
Тип собственника Юридическое лицо

Описание объекта
Предлагается в аренду помещение свободного назначения на 1 этаже в многофункциональном центре "ОРБИОН". Подойдет под автосалон, фитнес, магазин.
Помещение готово к въезду.

Многофункциональный комплекс ОРБИОН (Минское шоссе М-1, 3 км от МКАД, «Сколково» МЦД-1). Общая площадь объекта 65 128 кв. м., аренднопригодная площадь 38 145 кв. м (торговые площади 11 708 кв. м, офисы 26 437кв.м.). Парковка 353 машиномест (подземная 100 машиномест, наземная 253 машиноместа), 10 скоростных лифтов Thyssenkrupp (в том числе 2 панорамных • 2 грузопассажирских)
панорамное остекление
шаг колонн 9 метров
введен в эксплуатацию: 3 квартал 2019 год
Состояние объекта аренды:
Помещения передаются Арендатору после ремонта, со стандартной офисной отделкой (потолок армстронг, освещение, стены окрашены в светлые тона, плиточный ковролин, стеклянные перегородки и др.), и разводкой электрических сетей в Объекте аренды.
Работы по монтажу или адаптации слаботочных сетей (СКС) и оборудованию серверной Арендатор осуществляет за свой счет.

Срок аренды :1-5 лет
передача Объекта аренды: Объект аренды передается арендатору по Акту приема-передачи.
индексация: 8% начиная со второго года Срока аренды.

Дата начала арендных платежей: Датой начала арендных платежей является дата подписания Акта приема-передачи.

Порядок платежей по договору аренды: Оплата аренды и другие платежи по договору осуществляются ежемесячными авансовыми платежами не позднее 5-го числа месяца,
подлежащего оплате.

Коммунальные платежи (Оплачиваются дополнительно и включают в себя):
Стоимость электроэнергии, потребляемой Арендатором в Арендуемых Помещениях
Стоимость электроэнергии, потребляемой на Площадях Общего Пользования Здания и в процессе эксплуатации общих Инженерных систем Здания (в том числе систем,
связанных с микроклиматом Помещения).
Стоимость водоснабжения, водоотведения и платы за негативное воздействие на работу централизованной системы водоотведения, потребляемого на Площадях общего
пользования Здания.
Стоимость теплоснабжения на Долю Арендатора.
обеспечительный платеж: По подписании договора аренды Арендатор выплачивает Гарантийный взнос в размере, равном 2-м месяцам арендной платы.
телекоммуникации: Оптико-волоконные телекоммуникации, выделенные линии Интернет.

Арендатор самостоятельно заключает договор с провайдером на оказание
телекоммуникационных услуг на выбор: МегаФон, Ростелеком, Тайм Лайн, Наука-Связь, МТС, МАСТЕРТЕЛ, все без эксклюзива.

Арендатор имеет право доступа в Здание 7 дней в неделю 24 часа в сутки.

Нужна консультация по подбору торговых площадей для аренды?

Наши специалисты подберут для вас самые выгодные варианты для долгосрочного инвестирования,
помогут в сопровождении и сделки, проверят все юридические вопросы касаемо приобретения недвижимости.

* Нажимая на кнопку «Отправить», Вы даете согласие на обработку персональных данных в соответствии с Политикой конфиденциальности

Похожие объекты

Ул. Горчакова (13 мин. 🚶)
Москва, Чечёрский проезд, вл22
ОСЗ "Чечёрский пр-д вл. 22"
Тип: Торговое помещение
Площадь: 1830.00 м2
Мощность:250 кВт
5 490 000 в месяц
36 000 в год за м2
Позвонить Подробнее
Менделеевская (2 мин. 🚶)
Москва, Новослободская улица, 39
ОСЗ "Новослободская 39"
Тип: Торговое помещение
Площадь: 1728.80 м2
Мощность:250 кВт
5 500 000 в месяц
38 177 в год за м2
Позвонить Подробнее
Аннино (5 мин. 🚶)
Москва, Варшавское шоссе, 170Г
ТОРГОВЫЙ ЦЕНТР "ЕВРО СИТИ"
Тип: Торговое помещение
Площадь: 1850.00 м2
Мощность:100 кВт
2 775 000 в месяц
18 000 в год за м2
Позвонить Подробнее
Кунцевская (10 мин. 🚶)
Москва, улица Вересаева, 6
Жилое здание "улица Вересаева, 6"
Тип: Торговое помещение
Площадь: 1600.00 м2
Мощность:150 кВт
3 066 667 в месяц
23 000 в год за м2
Позвонить Подробнее
Бульвар Дмитрия Донского (10 мин. 🚶)
Москва, улица Поляны, 8
ТРЦ ВИВА
Тип: Торговое помещение
Площадь: 1660.00 м2
2 191 200 в месяц
15 840 в год за м2
Позвонить Подробнее
Тёплый стан (11 мин. 🚶)
Москва, Новомосковский административный округ, район Коммунарка, посёлок завода Мосрентген, улица Героя России Соломатина, 3А
ТЦ "Гусь"
Тип: Торговое помещение
Площадь: 1800.00 м2
900 000 в месяц
6 000 в год за м2
Позвонить Подробнее
Ховрино (40 мин. 🚗)
Московская область, Химки, микрорайон Сходня, улица Некрасова, 2
ОСЗ "Некрасова вл1стр1"
Тип: Торговое помещение
Площадь: 1650.00 м2
Мощность:60 кВт
1 650 000 в месяц
12 000 в год за м2
Позвонить Подробнее
Павелецкая (10 мин. 🚗)
Москва, Павелецкая набережная, 2с18
Бизнес-парк «Loft Ville»
Тип: Торговое помещение
Площадь: 1700.00 м2
Мощность:30 кВт
2 720 000 в месяц
19 200 в год за м2
Позвонить Подробнее
Кузьминки (14 мин. 🚶)
Москва, Есенинский бульвар, 1/26к1
Жилой дом "Есенинский бульвар 1/26с1"
Тип: Торговое помещение
Площадь: 104.50 м2
270 000 в месяц
31 005 в год за м2
Позвонить Подробнее
Красные Ворота (2 мин. 🚶)
Москва, Садовая-Спасская улица, 21/1
Бизнес-центр «Садовая-Спасская 21/1»
Тип: Торговое помещение
Площадь: 278.50 м2
Мощность:100 кВт
650 000 в месяц
28 007 в год за м2
Позвонить Подробнее
Тульская (7 мин. 🚶)
Москва, улица Серпуховский Вал, 5
Жилое здание "Серпуховский Вал, 5"
Тип: Торговое помещение
Площадь: 897.40 м2
Мощность:80 кВт
2 000 000 в месяц
26 744 в год за м2
Позвонить Подробнее
Водный стадион (14 мин. 🚶)
Москва, Смольная улица, 2
Бизнес-центр «SMOLA»
Тип: Торговое помещение
Площадь: 341.00 м2
Мощность:20 кВт
900 000 в месяц
31 672 в год за м2
Позвонить Подробнее
Ботанический сад (3 мин. 🚶)
Москва, 1-я улица Леонова, 18
Апарт-отель "YES Botanica"
Тип: Торговое помещение
Площадь: 264.00 м2
Мощность:71 кВт
700 000 в месяц
31 818 в год за м2
Позвонить Подробнее
Бибирево (22 мин. 🚶)
Москва, улица Римского-Корсакова, 11с12
ЖК «Римского-Корсакова»
Тип: Торговое помещение
Площадь: 105.07 м2
Мощность:30 кВт
250 000 в месяц
28 552 в год за м2
Позвонить Подробнее
Смоленская (Филевская) Смоленская (Арбатско-Покровская) (5 мин. 🚶)
Москва, улица Арбат, 30/3с2
Жилое здание "улица Арбат, 30/3с2"
Тип: Торговое помещение
Площадь: 212.90 м2
479 025 в месяц
27 000 в год за м2
Позвонить Подробнее
Добрынинская (9 мин. 🚶)
Москва, Большой Строченовский переулок, 9
ЖК "Резиденция Замоскворечье"
Тип: Торговое помещение
Площадь: 88.20 м2
Мощность:25 кВт
210 000 в месяц
28 571 в год за м2
Позвонить Подробнее
Свиблово (40 мин. 🚗)
Московская область, городской округ Мытищи, деревня Пирогово, улица Ильинского, 8
ЖК "Пироговская Ривьера»
Тип: Торговое помещение
Площадь: 349.80 м2
Мощность:34 кВт
804 540 в месяц
27 600 в год за м2
Позвонить Подробнее
Свиблово (40 мин. 🚗)
Московская область, городской округ Мытищи, деревня Пирогово, улица Ильинского, 8
ЖК "Пироговская Ривьера»
Тип: Торговое помещение
Площадь: 148.09 м2
Мощность:8 кВт
342 470 в месяц
27 751 в год за м2
Позвонить Подробнее
Коммунарка (15 мин. 🚗)
Москва, Новомосковский административный округ, район Коммунарка, Скандинавский бульвар, 14
ЖК "Скандинавия"
Тип: Торговое помещение
Площадь: 64.00 м2
Мощность:41 кВт
160 000 в месяц
30 000 в год за м2
Позвонить Подробнее
Коммунарка (15 мин. 🚗)
Москва, Новомосковский административный округ, район Коммунарка, Скандинавский бульвар, 14
ЖК "Скандинавия"
Тип: Торговое помещение
Площадь: 88.60 м2
Мощность:41 кВт
221 500 в месяц
30 000 в год за м2
Позвонить Подробнее
Кунцевская (15 мин. 🚗)
Москва, Верейская улица, 41
ЖК "Верейская, 41"
Тип: Торговое помещение
Площадь: 208.20 м2
1 033 000 в месяц
59 539 в год за м2
Позвонить Подробнее
Кунцевская (15 мин. 🚗)
Москва, Верейская улица, 41
ЖК "Верейская, 41"
Тип: Торговое помещение
Площадь: 59.60 м2
265 696 в месяц
53 496 в год за м2
Позвонить Подробнее
Кунцевская (10 мин. 🚶)
Москва, Молдавская улица, 1с8
Бизнес-центр "Upside Кунцево"
Тип: Торговое помещение
Площадь: 278.00 м2
Мощность:150 кВт
1 635 480 в месяц
70 596 в год за м2
Позвонить Подробнее
Кунцевская (10 мин. 🚶)
Москва, Молдавская улица, 1с8
Бизнес-центр "Upside Кунцево"
Тип: Торговое помещение
Площадь: 735.00 м2
Мощность:150 кВт
1 102 650 в месяц
18 002 в год за м2
Позвонить Подробнее
Кунцевская (10 мин. 🚶)
Москва, Молдавская улица, 1с8
Бизнес-центр "Upside Кунцево"
Тип: Торговое помещение
Площадь: 155.30 м2
Мощность:35 кВт
922 637 в месяц
71 292 в год за м2
Позвонить Подробнее
Кунцевская (10 мин. 🚶)
Москва, Молдавская улица, 1с8
Бизнес-центр "Upside Кунцево"
Тип: Торговое помещение
Площадь: 111.00 м2
Мощность:5 кВт
664 798 в месяц
71 870 в год за м2
Позвонить Подробнее
Кунцевская (10 мин. 🚶)
Москва, Молдавская улица, 1с8
Бизнес-центр "Upside Кунцево"
Тип: Торговое помещение
Площадь: 71.80 м2
Мощность:5 кВт
491 212 в месяц
82 097 в год за м2
Позвонить Подробнее
Кунцевская (10 мин. 🚶)
Москва, Молдавская улица, 1с8
Бизнес-центр "Upside Кунцево"
Тип: Торговое помещение
Площадь: 63.00 м2
Мощность:5 кВт
439 401 в месяц
83 695 в год за м2
Позвонить Подробнее
Кунцевская (10 мин. 🚶)
Москва, Молдавская улица, 1с8
Бизнес-центр "Upside Кунцево"
Тип: Торговое помещение
Площадь: 55.00 м2
Мощность:5 кВт
358 800 в месяц
78 284 в год за м2
Позвонить Подробнее
Кунцевская (10 мин. 🚶)
Москва, Молдавская улица, 1с8
Бизнес-центр "Upside Кунцево"
Тип: Торговое помещение
Площадь: 43.50 м2
Мощность:5 кВт
286 818 в месяц
79 122 в год за м2
Позвонить Подробнее
Кунцевская (10 мин. 🚶)
Москва, Молдавская улица, 1с8
Бизнес-центр "Upside Кунцево"
Тип: Торговое помещение
Площадь: 28.00 м2
Мощность:5 кВт
197 980 в месяц
84 849 в год за м2
Позвонить Подробнее
Кунцевская (16 мин. 🚗)
Московская область, Одинцовский городской округ, рабочий посёлок Новоивановское, Западная улица, 181
МФК Орбион
Тип: Торговое помещение
Площадь: 1340.30 м2
3 270 332 в месяц
29 280 в год за м2
Позвонить Подробнее