Аренда торгового помещения МФК Орбион

Аренда торгового помещения МФК Орбион Аренда торгового помещения МФК Орбион Аренда торгового помещения МФК Орбион Аренда торгового помещения МФК Орбион Аренда торгового помещения МФК Орбион Аренда торгового помещения МФК Орбион Аренда торгового помещения МФК Орбион
Аренда торгового помещения МФК Орбион - превью Аренда торгового помещения МФК Орбион - превью Аренда торгового помещения МФК Орбион - превью Аренда торгового помещения МФК Орбион - превью Аренда торгового помещения МФК Орбион - превью Аренда торгового помещения МФК Орбион - превью Аренда торгового помещения МФК Орбион - превью
Московская область, Одинцовский городской округ, рабочий посёлок Новоивановское, Западная улица, 181
Позвоните по телефону +7 495 230-28-26, либо оставьте заявку на просмотр прямо сейчас и узнайте условия специального предложения по объекту.
загрузка карты...
Аренда в год за м2 29 280 ₽
Аренда в месяц 3 270 332 ₽
Схема сделки прямая аренда
Капина Владлена Викторовна

Объект ведет консультант:

Капина Владлена Викторовна

Общие
ID 63109
Тип сделки Аренда
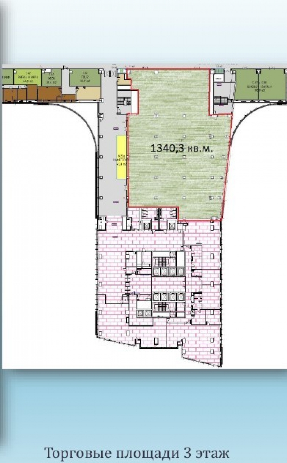
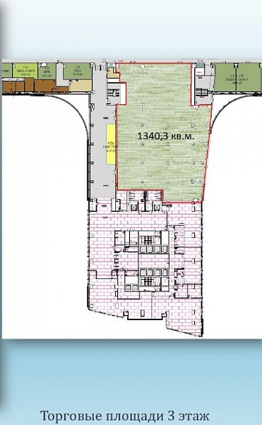
Площадь 1340.30
Площадь всего 70156.00
Тип объекта Многофункциональный комплекс
Этаж 3
Всего этажей в здании 21
Метраж по этажам
Информация об объекте
Состояние объекта рабочее
Состояние блока отделка арендатора
Планировка Открытая
Перекрытия Неизвестно
Парковка стихийная
Нюансы Отдельный вход
Торговая недвижимость
Линия домов 1 линия
Возможности Зона разгрузки,Витрины,Место для рекламы,Проходное место,Проездное место
Коммерческие условия
Аренда в год за м2 29 280 ₽
Аренда в месяц 3 270 332 ₽
Схема сделки прямая аренда
Тип собственника Юридическое лицо

Описание объекта
Предлагается в аренду помещение свободного назначения на 3 этаже в многофункциональном центре "ОРБИОН".  
Помещение готово к въезду.

Многофункциональный комплекс ОРБИОН (Минское шоссе М-1, 3 км от МКАД, «Сколково» МЦД-1). Общая площадь объекта 65 128 кв. м., аренднопригодная площадь 38 145 кв. м (торговые площади 11 708 кв. м, офисы 26 437кв.м.). Парковка 353 машиномест (подземная 100 машиномест, наземная 253 машиноместа), 10 скоростных лифтов Thyssenkrupp (в том числе 2 панорамных • 2 грузопассажирских)
панорамное остекление
шаг колонн 9 метров
введен в эксплуатацию: 3 квартал 2019 год
Состояние объекта аренды:
Помещения передаются Арендатору после ремонта, со стандартной офисной отделкой (потолок армстронг, освещение, стены окрашены в светлые тона, плиточный ковролин, стеклянные перегородки и др.), и разводкой электрических сетей в Объекте аренды.
Работы по монтажу или адаптации слаботочных сетей (СКС) и оборудованию серверной Арендатор осуществляет за свой счет.

Срок аренды :1-5 лет
передача Объекта аренды: Объект аренды передается арендатору по Акту приема-передачи.
индексация: 8% начиная со второго года Срока аренды.

Дата начала арендных платежей: Датой начала арендных платежей является дата подписания Акта приема-передачи.

Порядок платежей по договору аренды: Оплата аренды и другие платежи по договору осуществляются ежемесячными авансовыми платежами не позднее 5-го числа месяца,
подлежащего оплате.

Коммунальные платежи (Оплачиваются дополнительно и включают в себя):
Стоимость электроэнергии, потребляемой Арендатором в Арендуемых Помещениях
Стоимость электроэнергии, потребляемой на Площадях Общего Пользования Здания и в процессе эксплуатации общих Инженерных систем Здания (в том числе систем,
связанных с микроклиматом Помещения).
Стоимость водоснабжения, водоотведения и платы за негативное воздействие на работу централизованной системы водоотведения, потребляемого на Площадях общего
пользования Здания.
Стоимость теплоснабжения на Долю Арендатора.
обеспечительный платеж: По подписании договора аренды Арендатор выплачивает Гарантийный взнос в размере, равном 2-м месяцам арендной платы.
телекоммуникации: Оптико-волоконные телекоммуникации, выделенные линии Интернет.

Арендатор самостоятельно заключает договор с провайдером на оказание
телекоммуникационных услуг на выбор: МегаФон, Ростелеком, Тайм Лайн, Наука-Связь, МТС, МАСТЕРТЕЛ, все без эксклюзива.

Арендатор имеет право доступа в Здание 7 дней в неделю 24 часа в сутки.

Нужна консультация по подбору торговых площадей для аренды?

Наши специалисты подберут для вас самые выгодные варианты для долгосрочного инвестирования,
помогут в сопровождении и сделки, проверят все юридические вопросы касаемо приобретения недвижимости.

* Нажимая на кнопку «Отправить», Вы даете согласие на обработку персональных данных в соответствии с Политикой конфиденциальности

Похожие объекты

Аннино (1 мин. 🚶)
Москва, Варшавское шоссе, 143А
ТЦ Аннино
Тип: Торговое помещение
Площадь: 1449.90 м2
Мощность:100 кВт
2 609 820 в месяц
21 600 в год за м2
Позвонить Подробнее
Третьяковская (13 мин. 🚶)
Москва, Болотная улица, 14с1
Административное здание " Болотная улица, 14с1"
Тип: Торговое помещение
Площадь: 1263.00 м2
Мощность:200 кВт
5 000 000 в месяц
47 506 в год за м2
Позвонить Подробнее
(21 мин. 🚗)
Москва, Беловежская улица, 12
Автокомплекс "Беловежская улица, 12"
Тип: Торговое помещение
Площадь: 1430.00 м2
Мощность:30 кВт
890 000 в месяц
7 469 в год за м2
Позвонить Подробнее
Ховрино (29 мин. 🚶)
Московская область, Химки, микрорайон Подрезково, квартал Филино, 143
ПСК "Молжаниново"
Тип: Торговое помещение
Площадь: 1350.00 м2
Мощность:150 кВт
2 160 000 в месяц
19 200 в год за м2
Позвонить Подробнее
Кантемировская (10 мин. 🚶)
Москва, Кантемировская улица, 58
Бизнес-центр «Коплект»
Тип: Торговое помещение
Площадь: 1462.00 м2
Мощность:50 кВт
2 071 167 в месяц
17 000 в год за м2
Позвонить Подробнее
Ленинский проспект (10 мин. 🚶)
Москва, Ленинский проспект, 38
Бизнес-центр «Lunar (Лунар)»
Тип: Торговое помещение
Площадь: 1463.60 м2
Мощность:450 кВт
7 318 000 в месяц
60 000 в год за м2
Позвонить Подробнее
Ул. Горчакова (13 мин. 🚶)
Москва, Чечёрский проезд, вл22
ОСЗ "Чечёрский пр-д вл. 22"
Тип: Торговое помещение
Площадь: 1230.00 м2
Мощность:200 кВт
3 690 000 в месяц
36 000 в год за м2
Позвонить Подробнее
Волоколамская (12 мин. 🚗)
Московская область, Красногорск, Большая Воскресенская улица, 5
ЖК "Тетрис"
Тип: Торговое помещение
Площадь: 1265.00 м2
Мощность:200 кВт
3 795 000 в месяц
36 000 в год за м2
Позвонить Подробнее
Мякинино (30 мин. 🚶)
Московская область, Красногорск, Красногорский бульвар, 4с1
ТЦ "Терабит"
Тип: Торговое помещение
Площадь: 1343.00 м2
Мощность:300 кВт
1 880 200 в месяц
16 800 в год за м2
Позвонить Подробнее
Щёлковская (17 мин. 🚗)
Москва, Щёлковское шоссе, 100к100
ТЦ "Щелково"
Тип: Торговое помещение
Площадь: 1450.00 м2
2 175 000 в месяц
18 000 в год за м2
Позвонить Подробнее
Партизанская (22 мин. 🚗)
Москва, 1-я улица Измайловского Зверинца, 8
Бизнес-центр «Автомолл»
Тип: Торговое помещение
Площадь: 1450.00 м2
1 232 500 в месяц
10 200 в год за м2
Позвонить Подробнее
Марьино (16 мин. 🚗)
Москва, Поречная улица, 10
ТРЦ «Мари»
Тип: Торговое помещение
Площадь: 1402.70 м2
2 805 400 в месяц
24 000 в год за м2
Позвонить Подробнее
Улица 1905 года (5 мин. 🚶)
Москва, Большая Декабрьская улица, 3с3
ОСЗ "Большая Декабрьская улица, 3с3"
Тип: Торговое помещение
Площадь: 832.00 м2
Мощность:70 кВт
2 000 000 в месяц
28 846 в год за м2
Позвонить Подробнее
Октябрьское Поле (14 мин. 🚶)
Москва, улица Расплетина, 2
Жилое здание "Расплетина, 2"
Тип: Торговое помещение
Площадь: 134.00 м2
Мощность:50 кВт
299 000 в месяц
26 776 в год за м2
Позвонить Подробнее
Бульвар Дмитрия Донского (7 мин. 🚶)
Москва, Ратная улица, 8А
ОСЗ "Ратная улица, 8А"
Тип: Торговое помещение
Площадь: 52.00 м2
Мощность:40 кВт
120 000 в месяц
27 692 в год за м2
Позвонить Подробнее
Сокол Сокольники Соколиная Гора (3 мин. 🚶)
Москва, Ленинградский проспект, 69с1
Жилое здание "Ленинградский пр-т 69"
Тип: Торговое помещение
Площадь: 300.00 м2
Мощность:100 кВт
700 000 в месяц
28 000 в год за м2
Позвонить Подробнее
Сокол Сокольники Соколиная Гора (3 мин. 🚶)
Москва, Ленинградский проспект, 69с1
Жилое здание "Ленинградский пр-т 69"
Тип: Торговое помещение
Площадь: 250.00 м2
Мощность:100 кВт
550 000 в месяц
26 400 в год за м2
Позвонить Подробнее
Стрешнево (12 мин. 🚶)
Москва, Большой Волоколамский проезд, 23
ЖК «Комплекс апартаментов Baires (Байрес)»
Тип: Торговое помещение
Площадь: 67.40 м2
Мощность:15 кВт
157 600 в месяц
28 059 в год за м2
Позвонить Подробнее
Марксистская (9 мин. 🚶)
Москва, Таганская улица, 36к2
Жилое здание "Таганская улица, 36к2"
Тип: Торговое помещение
Площадь: 230.00 м2
570 000 в месяц
29 739 в год за м2
Позвонить Подробнее
Пражская (1 мин. 🚶)
Москва, Кировоградская улица, 24А
ТРК Пражский град
Тип: Торговое помещение
Площадь: 571.00 м2
1 384 675 в месяц
29 100 в год за м2
Позвонить Подробнее
Пятницкое шоссе (15 мин. 🚶)
Москва, Муравская улица, 38к1
ЖК "Мир Митино" к1
Тип: Торговое помещение
Площадь: 60.00 м2
Мощность:12 кВт
160 000 в месяц
32 000 в год за м2
Позвонить Подробнее
Щёлковская (7 мин. 🚗)
Москва, Хабаровская улица, 12/23
Жилое здание "Хабаровская улица, 12/23"
Тип: Торговое помещение
Площадь: 80.00 м2
Мощность:5 кВт
180 000 в месяц
27 000 в год за м2
Позвонить Подробнее
Университет (5 мин. 🚶)
Москва, Ломоносовский проспект, 18
Жилое здание "Ломоносовский просп., 18"
Тип: Торговое помещение
Площадь: 480.00 м2
Мощность:75 кВт
1 250 000 в месяц
31 250 в год за м2
Позвонить Подробнее
Ховрино (25 мин. 🚗)
Москва, Ленинградское шоссе, 228к6
ЖК «1-й Ленинградский», к. 1
Тип: Торговое помещение
Площадь: 138.10 м2
Мощность:25 кВт
345 250 в месяц
30 000 в год за м2
Позвонить Подробнее
Кунцевская (15 мин. 🚗)
Москва, Верейская улица, 41
ЖК "Верейская, 41"
Тип: Торговое помещение
Площадь: 208.20 м2
1 033 000 в месяц
59 539 в год за м2
Позвонить Подробнее
Кунцевская (15 мин. 🚗)
Москва, Верейская улица, 41
ЖК "Верейская, 41"
Тип: Торговое помещение
Площадь: 59.60 м2
265 696 в месяц
53 496 в год за м2
Позвонить Подробнее
Кунцевская (10 мин. 🚶)
Москва, Молдавская улица, 1с8
Бизнес-центр "Upside Кунцево"
Тип: Торговое помещение
Площадь: 278.00 м2
Мощность:150 кВт
1 635 480 в месяц
70 596 в год за м2
Позвонить Подробнее
Кунцевская (10 мин. 🚶)
Москва, Молдавская улица, 1с8
Бизнес-центр "Upside Кунцево"
Тип: Торговое помещение
Площадь: 735.00 м2
Мощность:150 кВт
1 102 650 в месяц
18 002 в год за м2
Позвонить Подробнее
Кунцевская (10 мин. 🚶)
Москва, Молдавская улица, 1с8
Бизнес-центр "Upside Кунцево"
Тип: Торговое помещение
Площадь: 155.30 м2
Мощность:35 кВт
922 637 в месяц
71 292 в год за м2
Позвонить Подробнее
Кунцевская (10 мин. 🚶)
Москва, Молдавская улица, 1с8
Бизнес-центр "Upside Кунцево"
Тип: Торговое помещение
Площадь: 111.00 м2
Мощность:5 кВт
664 798 в месяц
71 870 в год за м2
Позвонить Подробнее
Кунцевская (10 мин. 🚶)
Москва, Молдавская улица, 1с8
Бизнес-центр "Upside Кунцево"
Тип: Торговое помещение
Площадь: 71.80 м2
Мощность:5 кВт
491 212 в месяц
82 097 в год за м2
Позвонить Подробнее
Кунцевская (10 мин. 🚶)
Москва, Молдавская улица, 1с8
Бизнес-центр "Upside Кунцево"
Тип: Торговое помещение
Площадь: 63.00 м2
Мощность:5 кВт
439 401 в месяц
83 695 в год за м2
Позвонить Подробнее
Кунцевская (10 мин. 🚶)
Москва, Молдавская улица, 1с8
Бизнес-центр "Upside Кунцево"
Тип: Торговое помещение
Площадь: 55.00 м2
Мощность:5 кВт
358 800 в месяц
78 284 в год за м2
Позвонить Подробнее
Кунцевская (10 мин. 🚶)
Москва, Молдавская улица, 1с8
Бизнес-центр "Upside Кунцево"
Тип: Торговое помещение
Площадь: 43.50 м2
Мощность:5 кВт
286 818 в месяц
79 122 в год за м2
Позвонить Подробнее
Кунцевская (10 мин. 🚶)
Москва, Молдавская улица, 1с8
Бизнес-центр "Upside Кунцево"
Тип: Торговое помещение
Площадь: 28.00 м2
Мощность:5 кВт
197 980 в месяц
84 849 в год за м2
Позвонить Подробнее
Кунцевская (16 мин. 🚗)
Московская область, Одинцовский городской округ, рабочий посёлок Новоивановское, Западная улица, 181
МФК Орбион
Тип: Торговое помещение
Площадь: 1707.20 м2
4 165 568 в месяц
29 280 в год за м2
Позвонить Подробнее