Аренда торгового помещения ТЦ "Терабит"

Аренда торгового помещения ТЦ Аренда торгового помещения ТЦ Аренда торгового помещения ТЦ Аренда торгового помещения ТЦ Аренда торгового помещения ТЦ Аренда торгового помещения ТЦ Аренда торгового помещения ТЦ
Аренда торгового помещения ТЦ Аренда торгового помещения ТЦ Аренда торгового помещения ТЦ Аренда торгового помещения ТЦ Аренда торгового помещения ТЦ Аренда торгового помещения ТЦ Аренда торгового помещения ТЦ
Московская область, Красногорск, Красногорский бульвар, 4с1
Позвоните по телефону +7 495 230-28-26, либо оставьте заявку на просмотр прямо сейчас и узнайте условия специального предложения по объекту.
загрузка карты...
Аренда в год за м2 15 600 ₽
Аренда в месяц 1 745 900 ₽
Схема сделки прямая аренда
Капина Владлена Викторовна

Объект ведет консультант:

Капина Владлена Викторовна

Общие
ID 57399
Тип сделки Аренда
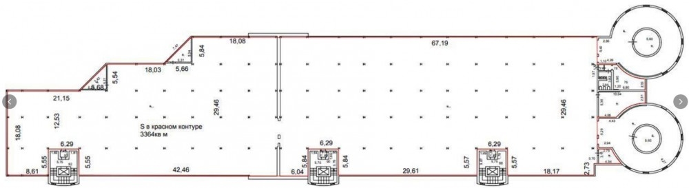
Площадь 1343.00
Тип объекта Торговый центр
Этаж 3
Всего этажей в здании 6
Метраж по этажам
Информация об объекте
Состояние объекта рабочее
Состояние блока помещение без отделки
Планировка Открытая
Перекрытия Железобетонные
Нюансы ПСН
Торговая недвижимость
Возможности Зона разгрузки,Торговый центр,Место для рекламы,Проходное место,Проездное место
Электр. мощность (кВт) 300
Коммерческие условия
Аренда в год за м2 15 600 ₽
Аренда в месяц 1 745 900 ₽
Схема сделки прямая аренда
Тип собственника Юридическое лицо

Описание объекта
Предлагается в аренду помещение свободного назначения в современном ТЦ "Терабит" в центре густонаселенного жилого массива  с развитой инфраструктурой. Помещение на 3 этаже общей площадью 1 343 м2, высота потолков 3 метра.

Помещение объединено со вторым этажом лестничным маршем, ближайшая часть этажа к входной группы здания. Идеально под торговые площади.

Свободная площадь в состоянии «open space», базовая отделка без внутренних перегородок с 3 по 6 этаж

В ближайшем окружении проживает более 100 000 человек, в непосредственной близости будет построено 200 000 м2 жилого массива. Доступ 24/7, паркинг на 150 машиномест. Помещение подходит под производство, имеются все необходимые технологии. Электрическая мощность - 300 кВт с возможностью увеличения. Возможен заезд автомобиля непосредственно в помещение на любой этаж. Также установлен грузовой подъемник с улица (с зоны погрузки/разгрузки), который позволяет доставлять тяжелые грузы непосредственно в помещение.  Все коммуникации. Показ в любое время.

Общая площадь -25000 кв.м
- Электрическая мощность 2.5 МВт
- Земля в собственности
- 7 этажей
- 3пассажирских лифта
- 2грузовых уличных подъемника
- Рампа для въезда/выезда автотранспорта на каждый из этажей здания
- Центральные сети коммуникаций
- В шаговой доступности от станции МЦД «Павшинская пойма».
- Парковка на 91 машиноместо

Ставка 1300 руб/м2 в месяц + НДС

Нужна консультация по подбору торговых площадей для аренды?

Наши специалисты подберут для вас самые выгодные варианты для долгосрочного инвестирования,
помогут в сопровождении и сделки, проверят все юридические вопросы касаемо приобретения недвижимости.

* Нажимая на кнопку «Отправить», Вы даете согласие на обработку персональных данных в соответствии с Политикой конфиденциальности

Похожие объекты

Ленинский проспект (10 мин. 🚶)
Москва, Ленинский проспект, 38
Бизнес-центр «Lunar (Лунар)»
Тип: Торговое помещение
Площадь: 1463.60 м2
Мощность:450 кВт
7 318 000 в месяц
60 000 в год за м2
Позвонить Подробнее
Кунцевская (16 мин. 🚗)
Московская область, Одинцовский городской округ, рабочий посёлок Новоивановское, Западная улица, 181
МФК Орбион
Тип: Торговое помещение
Площадь: 1340.30 м2
3 270 332 в месяц
29 280 в год за м2
Позвонить Подробнее
Аннино (1 мин. 🚶)
Москва, Варшавское шоссе, 143А
ТЦ Аннино
Тип: Торговое помещение
Площадь: 1449.90 м2
Мощность:100 кВт
2 609 820 в месяц
21 600 в год за м2
Позвонить Подробнее
Третьяковская (13 мин. 🚶)
Москва, Болотная улица, 14с1
Административное здание " Болотная улица, 14с1"
Тип: Торговое помещение
Площадь: 1263.00 м2
Мощность:200 кВт
5 000 000 в месяц
47 506 в год за м2
Позвонить Подробнее
(21 мин. 🚗)
Москва, Беловежская улица, 12
Автокомплекс "Беловежская улица, 12"
Тип: Торговое помещение
Площадь: 1430.00 м2
Мощность:30 кВт
890 000 в месяц
7 469 в год за м2
Позвонить Подробнее
Ул. Горчакова (13 мин. 🚶)
Москва, Чечёрский проезд, вл22
ОСЗ "Чечёрский пр-д вл. 22"
Тип: Торговое помещение
Площадь: 1230.00 м2
Мощность:200 кВт
3 690 000 в месяц
36 000 в год за м2
Позвонить Подробнее
Волоколамская (12 мин. 🚗)
Московская область, Красногорск, Большая Воскресенская улица, 5
ЖК "Тетрис"
Тип: Торговое помещение
Площадь: 1265.00 м2
Мощность:200 кВт
3 795 000 в месяц
36 000 в год за м2
Позвонить Подробнее
Кунцевская (23 мин. 🚗)
Закрытая продажа #62899
Тип: Торговое помещение
Площадь: 1257.00 м2
Мощность:50 кВт
2 304 500 в месяц
22 000 в год за м2
Позвонить Подробнее
Щёлковская (17 мин. 🚗)
Москва, Щёлковское шоссе, 100к100
ТЦ "Щелково"
Тип: Торговое помещение
Площадь: 1450.00 м2
2 175 000 в месяц
18 000 в год за м2
Позвонить Подробнее
Партизанская (22 мин. 🚗)
Москва, 1-я улица Измайловского Зверинца, 8
Бизнес-центр «Автомолл»
Тип: Торговое помещение
Площадь: 1450.00 м2
1 232 500 в месяц
10 200 в год за м2
Позвонить Подробнее
Марьино (16 мин. 🚗)
Москва, Поречная улица, 10
ТРЦ «Мари»
Тип: Торговое помещение
Площадь: 1402.70 м2
2 805 400 в месяц
24 000 в год за м2
Позвонить Подробнее
Алма-Атинская (12 мин. 🚶)
Москва, Ключевая улица, 6к1
Офисное здание «Ключевая 6»
Тип: Торговое помещение
Площадь: 1241.00 м2
Мощность:30 кВт
2 000 000 в месяц
19 339 в год за м2
Позвонить Подробнее
Алексеевская (7 мин. 🚶)
Москва, проспект Мира, 108
Жилое здание "проспект Мира д. 108"
Тип: Торговое помещение
Площадь: 430.00 м2
Мощность:65 кВт
600 000 в месяц
16 744 в год за м2
Позвонить Подробнее
Университет (10 мин. 🚶)
Москва, улица Строителей, 13к1
Жилое здание "Строителей, 13к1"
Тип: Торговое помещение
Площадь: 167.50 м2
225 000 в месяц
16 119 в год за м2
Позвонить Подробнее
Коломенская (8 мин. 🚶)
Москва, Нагатинская улица, 16к1с5
ОСЗ "Нагатинская ул, 16к1с5"
Тип: Торговое помещение
Площадь: 522.90 м2
Мощность:400 кВт
653 625 в месяц
15 000 в год за м2
Позвонить Подробнее
Бутырская (10 мин. 🚶)
Москва, улица Руставели, 8Б
Жилое здание " Руставели, 8Б"
Тип: Торговое помещение
Площадь: 136.00 м2
Мощность:15 кВт
180 000 в месяц
15 882 в год за м2
Позвонить Подробнее
Рязанский проспект (5 мин. 🚶)
Москва, Зеленодольская улица, 10/14
Жилое здание "Зеленодольская улица, 10/14"
Тип: Торговое помещение
Площадь: 250.00 м2
Мощность:15 кВт
300 000 в месяц
14 400 в год за м2
Позвонить Подробнее
Тульская (7 мин. 🚶)
Москва, улица Серпуховский Вал, 5
Жилое здание "Серпуховский Вал, 5"
Тип: Торговое помещение
Площадь: 414.00 м2
Мощность:15 кВт
500 000 в месяц
14 493 в год за м2
Позвонить Подробнее
(18 мин. 🚶)
Москва, улица Обручева, 52с3
БЦ "РТС Обручева"
Тип: Торговое помещение
Площадь: 2659.40 м2
3 546 000 в месяц
16 001 в год за м2
Позвонить Подробнее
(15 мин. 🚶)
Москва, Очаковское шоссе, 28с2
Бизнес-парк "Дорохофф"
Тип: Торговое помещение
Площадь: 511.70 м2
639 625 в месяц
15 000 в год за м2
Позвонить Подробнее
Тёплый стан (14 мин. 🚗)
Москва, Новомосковский административный округ, район Коммунарка, Калужское шоссе, 21-й километр, с1
ТЦ "Мега Теплый Стан"
Тип: Торговое помещение
Площадь: 3000.00 м2
4 125 000 в месяц
16 500 в год за м2
Позвонить Подробнее
Тёплый стан (14 мин. 🚗)
Москва, Новомосковский административный округ, район Коммунарка, Калужское шоссе, 21-й километр, с1
ТЦ "Мега Теплый Стан"
Тип: Торговое помещение
Площадь: 6000.00 м2
8 250 000 в месяц
16 500 в год за м2
Позвонить Подробнее
Котельники (20 мин. 🚗)
Московская область, Котельники, 1-й Покровский проезд, 5
ТЦ "Мега Белая Дача"
Тип: Торговое помещение
Площадь: 3000.00 м2
Мощность:850 кВт
4 125 000 в месяц
16 500 в год за м2
Позвонить Подробнее
Тёплый стан (14 мин. 🚗)
Москва, Новомосковский административный округ, район Коммунарка, Калужское шоссе, 21-й километр, с1
ТЦ "Мега Теплый Стан"
Тип: Торговое помещение
Площадь: 34020.00 м2
Мощность:1500 кВт
46 777 500 в месяц
16 500 в год за м2
Позвонить Подробнее
Мякинино (30 мин. 🚶)
Московская область, Красногорск, Красногорский бульвар, 4с1
ТЦ "Терабит"
Тип: Торговое помещение
Площадь: 3350.00 м2
Мощность:300 кВт
3 300 000 в месяц
11 821 в год за м2
Позвонить Подробнее
Мякинино (50 мин. 🚗)
Московская область, городской округ Красногорск, посёлок Ильинское-Усово, Заповедная улица, 20
ЖК "Ильинские Луга"
Тип: Торговое помещение
Площадь: 195.00 м2
Мощность:40 кВт
526 500 в месяц
32 400 в год за м2
Позвонить Подробнее