Аренда офиса Деловой квартал "Сколково Парк"

Аренда офиса Деловой квартал Аренда офиса Деловой квартал Аренда офиса Деловой квартал
Аренда офиса Деловой квартал Аренда офиса Деловой квартал Аренда офиса Деловой квартал
Москва, Сколковское шоссе, вл43
Позвоните по телефону +7 495 230-28-26, либо оставьте заявку на просмотр прямо сейчас и узнайте условия специального предложения по объекту.
загрузка карты...
Аренда в год за м2 78 000 ₽
Аренда в месяц 4 264 000 ₽
Схема сделки прямая аренда
Первушина Марина Алексеевна

Объект ведет консультант:

Первушина Марина Алексеевна

Общие
ID 45053
Тип сделки Аренда
Площадь 656.00
Тип объекта Бизнес-парк
Этаж 4
Всего этажей в здании 6
Метраж по этажам
Информация об объекте
Состояние объекта рабочее
Состояние блока выполнена высококачественная отделка
Планировка Смешанная
Перекрытия Железобетонные
Парковка подземная 20900р/мес
Коммерческие условия
Аренда в год за м2 78 000 ₽
Аренда в месяц 4 264 000 ₽
Схема сделки прямая аренда
Тип собственника Юридическое лицо

Описание объекта
Предлагается в аренду офисное пространство в первом корпусе нового делового квартала класса А «Сколково парк».
Деловой квартал находится между Кутузовским проспектом и МКАД, что обеспечивает удобную транспортную доступность как на личном, так и общественном транспорте. Бизнес парк занимает территорию 212000м2 и состоит из 6 офисных зданий с развитой инфраструктурой.
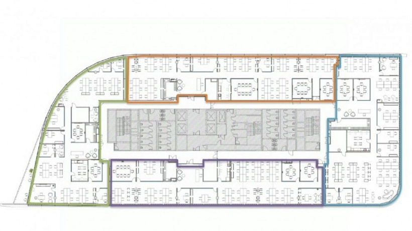
Офис 656м2 находится на 4 этаже (на плане выделен оранжевым). Остекление от пола до потолка. Помещение сдается с высококачественной отделкой.
В ставку включена эксплуатация, к/у оплачиваются отдельно.
За дополнительную плату предоставляются места на парковке.
Офис свободен к заезду с 1 февраля.

Нужна консультация по подбору помещения под офис?

Наши специалисты подберут для вас самые выгодные варианты для долгосрочного инвестирования,
помогут в сопровождении и сделки, проверят все юридические вопросы касаемо приобретения недвижимости.

* Нажимая на кнопку «Отправить», Вы даете согласие на обработку персональных данных в соответствии с Политикой конфиденциальности

Похожие объекты

Новослободская (5 мин. 🚶)
Москва, Краснопролетарская улица, 16с1
БЦ "Красный пролетарий"
Тип: Офисы
Площадь: 600.00 м2
Отделка:качественная отделка
2 250 000 в месяц
45 000 в год за м2
Позвонить Подробнее
Минская (12 мин. 🚶)
Москва, Минская улица, 2Гк1
Бизнес-центр «Кутузов Холл»
Тип: Офисы
Площадь: 648.00 м2
Отделка:качественная отделка
2 100 000 в месяц
38 889 в год за м2
Позвонить Подробнее
Селигерская (5 мин. 🚶)
Москва, Дмитровское шоссе, 81
МФК «Apart Ville»
Тип: Офисы
Площадь: 625.00 м2
Отделка:выполнена высококачественная отделка
990 000 в месяц
19 008 в год за м2
Позвонить Подробнее
Комсомольская (5 мин. 🚶)
Москва, Каланчёвский тупик, 3-5с1
Особняк " Каланчёвский тупик, 3-5с1"
Тип: Офисы
Площадь: 654.00 м2
Отделка:отделка в стиле Loft
1 900 000 в месяц
34 862 в год за м2
Позвонить Подробнее
Сухаревская (1 мин. 🚶)
Москва, Малая Сухаревская площадь, 12
ТОЦ «Садовая Галерея»
Тип: Офисы
Площадь: 627.93 м2
Отделка:качественная отделка
2 878 013 в месяц
55 000 в год за м2
Позвонить Подробнее
Алексеевская (10 мин. 🚶)
Москва, Графский переулок, 12Ас1
Графский переулок, 12Ас1
Тип: Офисы
Площадь: 635.00 м2
Отделка:выполнена стандартная офисная отделка
1 400 000 в месяц
26 457 в год за м2
Позвонить Подробнее
Комсомольская (5 мин. 🚶)
Закрытая продажа #61741
Тип: Офисы
Площадь: 623.00 м2
Отделка:качественная отделка
2 750 000 в месяц
52 970 в год за м2
Позвонить Подробнее
Калужская (3 мин. 🚶)
Москва, Профсоюзная улица, 65к1
Бизнес-центр «Лотте»
Тип: Офисы
Площадь: 628.60 м2
Отделка:выполнена стандартная офисная отделка
2 489 256 в месяц
47 520 в год за м2
Позвонить Подробнее
Чкаловская (10 мин. 🚶)
Москва, Улица Земляной Вал, 50А/8с2
Бизнес-центр «СадКо»
Тип: Офисы
Площадь: 686.00 м2
Отделка:выполнена стандартная офисная отделка
2 915 500 в месяц
51 000 в год за м2
Позвонить Подробнее
Сокол Сокольники Соколиная Гора (15 мин. 🚶)
Москва, Чапаевский переулок, 14
Бизнес-центр «Сокол Плейс»
Тип: Офисы
Площадь: 612.75 м2
Отделка:выполнена стандартная офисная отделка
2 042 500 в месяц
40 000 в год за м2
Позвонить Подробнее
Беговая (10 мин. 🚶)
Москва, 2-й Хорошёвский проезд, 7с13
Офисно-складской комплекс «Красная Пресня»
Тип: Офисы
Площадь: 687.50 м2
Отделка:выполнена стандартная офисная отделка
1 031 250 в месяц
18 000 в год за м2
Позвонить Подробнее
Краснопресненская (5 мин. 🚶)
Москва, переулок Капранова, 3с2
Бизнес-центр «Премьер Плаза» с2
Тип: Офисы
Площадь: 672.00 м2
Отделка:выполнена стандартная офисная отделка
2 333 520 в месяц
41 670 в год за м2
Позвонить Подробнее
Кунцевская (12 мин. 🚗)
Москва, Сколковское шоссе, вл43
Деловой квартал "Сколково Парк"
Тип: Офисы
Площадь: 2693.00 м2
Отделка:выполнена высококачественная отделка
18 851 000 в месяц
84 000 в год за м2
Позвонить Подробнее
Хорошёво (10 мин. 🚶)
Москва, Проспект Маршала Жукова, 1с1
Бизнес-центр «1 Zhukov»
Тип: Офисы
Площадь: 150.50 м2
Отделка:качественная отделка
903 000 в месяц
72 000 в год за м2
Позвонить Подробнее
Арбатская (Филевская) Арбатская (Арбатско-Покровская) (3 мин. 🚶)
Москва, Улица Арбат, 10
Торгово-офисный комплекс "Midland Plaza"
Тип: Офисы
Площадь: 68.10 м2
Отделка:выполнена стандартная офисная отделка
421 370 в месяц
74 250 в год за м2
Позвонить Подробнее
Кропоткинская (5 мин. 🚶)
Москва, Гоголевский бульвар, 11
Бизнес-центр «Гоголевский»
Тип: Офисы
Площадь: 215.56 м2
Отделка:выполнена стандартная офисная отделка
1 493 831 в месяц
83 160 в год за м2
Позвонить Подробнее
Ленинский проспект (7 мин. 🚶)
Москва, проспект 60-летия Октября, 6
ОСЗ "проспект 60-летия Октября, 6"
Тип: Офисы
Площадь: 1181.80 м2
Отделка:помещение без отделки
7 600 000 в месяц
77 170 в год за м2
Позвонить Подробнее
Деловой центр Деловой центр (МЦК) (2 мин. 🚶)
Москва, Пресненская набережная, 6с2
Москва-Сити "Башня Империя"
Тип: Офисы
Площадь: 122.00 м2
Отделка:качественная отделка
823 500 в месяц
81 000 в год за м2
Позвонить Подробнее
Кутузовская (10 мин. 🚶)
Москва, Поклонная улица, 3
Деловой комплекс «Poklonka Place»
Тип: Офисы
Площадь: 617.50 м2
Отделка:выполнена высококачественная отделка
4 000 000 в месяц
77 733 в год за м2
Позвонить Подробнее
Павелецкая (5 мин. 🚶)
Москва, Летниковская улица, 2с1
Бизнес-центр «Вивальди Плаза»
Тип: Офисы
Площадь: 730.00 м2
Отделка:выполнена стандартная офисная отделка
4 766 900 в месяц
78 360 в год за м2
Позвонить Подробнее
Деловой центр Деловой центр (МЦК) (4 мин. 🚶)
Москва, Тестовская улица, 8
Москва-сити «Северная Башня»
Тип: Офисы
Площадь: 1860.00 м2
Отделка:выполнена стандартная офисная отделка
13 020 000 в месяц
84 000 в год за м2
Позвонить Подробнее
Улица 1905 года (15 мин. 🚶)
Москва, Рочдельская улица, 15
Бизнес-парк "Трехгорная Мануфактура"
Тип: Офисы
Площадь: 1290.40 м2
Отделка:выполнена стандартная офисная отделка
8 065 000 в месяц
75 000 в год за м2
Позвонить Подробнее
Деловой центр Деловой центр (МЦК) (4 мин. 🚶)
Москва, Тестовская улица, 8
Москва-сити «Северная Башня»
Тип: Офисы
Площадь: 694.00 м2
Отделка:выполнена стандартная офисная отделка
4 858 000 в месяц
84 000 в год за м2
Позвонить Подробнее
Павелецкая (2 мин. 🚶)
Москва, Павелецкая площадь, 2с2
Бизнес-центр «Павелецкая Тауэр»
Тип: Офисы
Площадь: 1725.00 м2
Отделка:выполнена стандартная офисная отделка
10 695 000 в месяц
74 400 в год за м2
Позвонить Подробнее
Кунцевская (12 мин. 🚗)
Москва, Сколковское шоссе, вл43
Деловой квартал "Сколково Парк"
Тип: Офисы
Площадь: 2693.00 м2
Отделка:выполнена высококачественная отделка
18 851 000 в месяц
84 000 в год за м2
Позвонить Подробнее
Кунцевская (16 мин. 🚗)
Московская область, Одинцовский городской округ, рабочий посёлок Новоивановское, Западная улица, 181
МФК Орбион
Тип: Офисы
Площадь: 365.60 м2
Отделка:выполнена стандартная офисная отделка
891 500 в месяц
29 261 в год за м2
Позвонить Подробнее
Кунцевская (16 мин. 🚗)
Московская область, Одинцовский городской округ, рабочий посёлок Новоивановское, Западная улица, 181
МФК Орбион
Тип: Офисы
Площадь: 812.10 м2
Отделка:выполнена стандартная офисная отделка
2 030 250 в месяц
30 000 в год за м2
Позвонить Подробнее
Кунцевская (16 мин. 🚗)
Московская область, Одинцовский городской округ, рабочий посёлок Новоивановское, Западная улица, 181
МФК Орбион
Тип: Офисы
Площадь: 245.20 м2
Отделка:выполнена стандартная офисная отделка
606 250 в месяц
29 670 в год за м2
Позвонить Подробнее
Кунцевская (20 мин. 🚗)
Москва, Верейская улица, 11
Бизнес-центр «Квадрат»
Тип: Офисы
Площадь: 1212.10 м2
Отделка:выполнена стандартная офисная отделка
4 141 342 в месяц
41 000 в год за м2
Позвонить Подробнее
Кунцевская (17 мин. 🚗)
Москва, Инновационный центр Сколково, улица Сикорского, 11
БЦ "Ренова Лаб Сколково"
Тип: Офисы
Площадь: 697.00 м2
Отделка:качественная отделка
1 951 600 в месяц
33 600 в год за м2
Позвонить Подробнее
Кунцевская (17 мин. 🚗)
Москва, Инновационный центр Сколково, улица Сикорского, 11
БЦ "Ренова Лаб Сколково"
Тип: Офисы
Площадь: 389.40 м2
Отделка:качественная отделка
1 090 320 в месяц
33 600 в год за м2
Позвонить Подробнее
Кунцевская (17 мин. 🚗)
Москва, Инновационный центр Сколково, улица Сикорского, 11
БЦ "Ренова Лаб Сколково"
Тип: Офисы
Площадь: 880.00 м2
Отделка:качественная отделка
2 464 000 в месяц
33 600 в год за м2
Позвонить Подробнее
Кунцевская (10 мин. 🚶)
Москва, улица Вересаева, 6
Жилое здание "улица Вересаева, 6"
Тип: Офисы
Площадь: 2360.00 м2
Отделка:требуется косметический ремонт
4 523 333 в месяц
23 000 в год за м2
Позвонить Подробнее
Кунцевская (5 мин. 🚶)
Москва, Улица Ивана Франко, 8
Бизнес-центр «Кутузофф Тауэр»
Тип: Офисы
Площадь: 1588.85 м2
Отделка:выполнена стандартная офисная отделка
5 354 425 в месяц
40 440 в год за м2
Позвонить Подробнее
Кунцевская (5 мин. 🚶)
Москва, Улица Ивана Франко, 8
Бизнес-центр «Кутузофф Тауэр»
Тип: Офисы
Площадь: 534.42 м2
Отделка:выполнена стандартная офисная отделка
1 800 995 в месяц
40 440 в год за м2
Позвонить Подробнее
Кунцевская (5 мин. 🚶)
Москва, Улица Ивана Франко, 8
Бизнес-центр «Кутузофф Тауэр»
Тип: Офисы
Площадь: 293.25 м2
Отделка:выполнена стандартная офисная отделка
988 253 в месяц
40 440 в год за м2
Позвонить Подробнее