Продажа офиса Особняк "Гранатный пер. 6А"

Продажа офиса Особняк Продажа офиса Особняк
Продажа офиса Особняк Продажа офиса Особняк
Москва, Гранатный переулок, 6А
Позвоните по телефону +7 495 230-28-26, либо оставьте заявку на просмотр прямо сейчас и узнайте условия специального предложения по объекту.
загрузка карты...
Общие
ID 46987
Тип сделки Продажа
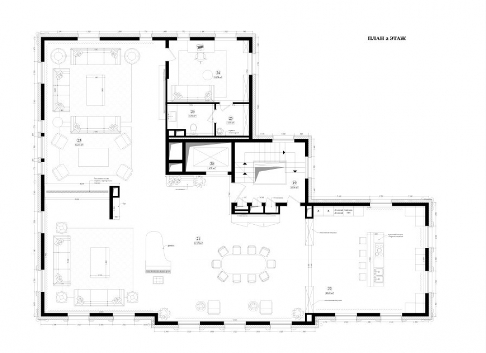
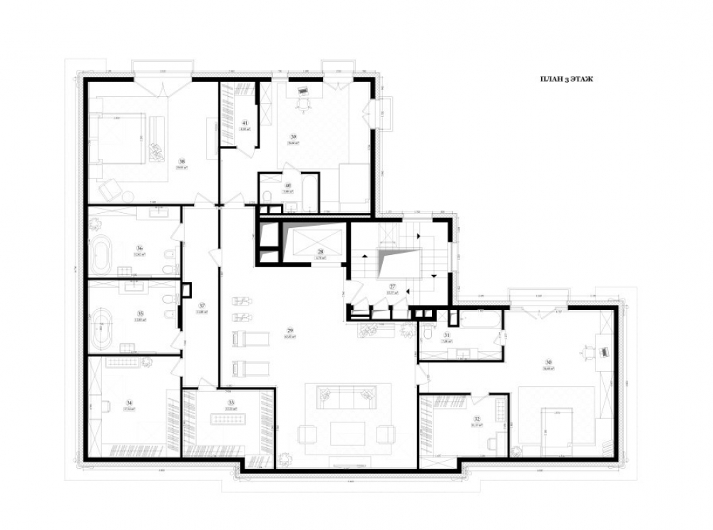
Площадь 1088.60
Площадь всего 1088.60
Тип объекта Особняк
Этаж 1 - 3
Всего этажей в здании 5
Метраж по этажам
Информация об объекте
Состояние объекта рабочее
Планировка Смешанная
Перекрытия Железобетонные
Нюансы Отдельный вход,ПСН
Коммерческие условия
За м 2 1 148 264 ₽
Тип собственника Физическое лицо

Описание объекта
Продаётся особняк свободного назначения  в самой престижном и популярном районе Москвы - Патриаршие пруды, в Гранатном переулке.
Особняк представляет собой отдельно стоящее здание свободного назначения площадью 1270 кв.м., 3 этажа наземные, 2 подземных (паркинг). Возможное использование: апарт-отель, офис, резиденция, шоурум. Земельный участок в долгосрочной аренде. Особняк НЕ является объектом культурного наследия. Современное монолитное здание, фасады
соответствуют историческому архитектурному облику района. Здание оборудовано современной инженерией, центральным кондиционированием и вентиляцией, противопожарной сигнализацией и системой пожаротушения и оснащено системой единой диспетчеризации с одного компьютера, которая включает:
- управление приточно-вытяжной системой с подогревом и охлаждением (управление темп.);
- управление освещением, наружным и внутренним;
- управление автолифтом и пассажирским лифтом;
- управление системой отопления ИТП с комп.
Видеонаблюдение наружное и внутреннее. Обогрев кровли и водостоков. Два лифта: автолифт на парковку и пассажирский лифт.

Нужна консультация по покупке или продаже офиса?

Наши специалисты подберут для вас самые выгодные варианты для долгосрочного инвестирования,
помогут в сопровождении и сделки, проверят все юридические вопросы касаемо приобретения недвижимости.

* Нажимая на кнопку «Отправить», Вы даете согласие на обработку персональных данных в соответствии с Политикой конфиденциальности

Похожие объекты

(4 мин. 🚶)
Москва, Георгиевский переулок, 1
ОФИСНАЯ РЕЗИДЕНЦИЯ «ВРЕМЯ» КАМЕРГЕР
Тип: Офисы
Площадь: 1018.50 м2
Отделка:Shell and Core
1 527 750 000 за все
1 500 000 за м2
Позвонить Подробнее
Деловой центр Деловой центр (МЦК) (2 мин. 🚶)
Москва, Пресненская набережная, 6с2
Москва-Сити "Башня Империя"
Тип: Офисы
Площадь: 1000.00 м2
Отделка:выполнена высококачественная отделка
1 050 000 000 за все
1 050 000 за м2
Позвонить Подробнее
Красные Ворота (5 мин. 🚶)
Москва, Хомутовский тупик, 5-7с13
Особняк "Хомутовский тупик, 5-7с13"
Тип: Офисы
Площадь: 1066.00 м2
Отделка:качественная отделка
189 000 000 за все
177 298 за м2
Позвонить Подробнее
Планерная (23 мин. 🚗)
Московская область, Химки, Куркинское шоссе, с2
Бизнес-центр «Aero City (Аэро Сити)»
Тип: Офисы
Площадь: 993.70 м2
Отделка:Shell and Core
141 453 195 за все
142 350 за м2
Позвонить Подробнее
Автозаводская (8 мин. 🚶)
Москва, улица Ленинская Слобода, 19с6
Бизнес-центр «Омега Плаза 6»
Тип: Офисы
Площадь: 1038.60 м2
Отделка:качественная отделка
238 981 860 за все
230 100 за м2
Позвонить Подробнее
Римская (5 мин. 🚶)
Москва, Рабочая улица, 91с2
Административное Здание
Тип: Офисы
Площадь: 1054.00 м2
200 000 000 за все
189 753 за м2
Позвонить Подробнее
Крестьянская Застава (5 мин. 🚶)
Москва, Воронцовский переулок, 5/7
Воронцовский переулок, 5/7
Тип: Офисы
Площадь: 1089.70 м2
380 000 000 за все
348 720 за м2
Позвонить Подробнее
Калужская (12 мин. 🚶)
Москва, Научный проезд, 19
Бизнес-центр «9 Акров»
Тип: Офисы
Площадь: 1080.00 м2
Отделка:выполнена стандартная офисная отделка
275 000 000 за все
254 630 за м2
Позвонить Подробнее
Павелецкая (12 мин. 🚶)
Москва, Летниковская улица, 10с2
Бизнес-центр «Святогор-2»
Тип: Офисы
Площадь: 1176.40 м2
Отделка:выполнена стандартная офисная отделка
364 684 000 за все
310 000 за м2
Позвонить Подробнее
Павелецкая (12 мин. 🚶)
Москва, Летниковская улица, 10с2
Бизнес-центр «Святогор-2»
Тип: Офисы
Площадь: 1189.00 м2
Отделка:выполнена стандартная офисная отделка
368 590 000 за все
310 000 за м2
Позвонить Подробнее
Октябрьское Поле (15 мин. 🚶)
Москва, улица Ротмистрова, 10
Бизнес-центр "Октябрьское Поле"
Тип: Офисы
Площадь: 1080.90 м2
Отделка:Shell and Core
432 360 000 за все
400 000 за м2
Позвонить Подробнее
Арбатская (Филевская) Арбатская (Арбатско-Покровская) (12 мин. 🚶)
Москва, Большой Николопесковский переулок, 10с1
Административное здание "Б. Николопенсковский пер. 10с1"
Тип: Офисы
Площадь: 1081.60 м2
800 000 000 за все
739 645 за м2
Позвонить Подробнее
Смоленская (Филевская) Смоленская (Арбатско-Покровская) (7 мин. 🚶)
Москва, Смоленская-Сенная площадь, 27с6
Смоленская-Сенная площадь, 27с6
Тип: Офисы
Площадь: 1640.00 м2
Отделка:выполнена стандартная офисная отделка
1 200 000 000 за все
731 707 за м2
Позвонить Подробнее
Тульская (10 мин. 🚶)
Москва, Варшавское шоссе, 1с1-2
Бизнес-центр W Plaza (В Плаза)
Тип: Офисы
Площадь: 2737.00 м2
Отделка:качественная отделка
1 365 763 000 за все
499 000 за м2
Позвонить Подробнее
Фили (15 мин. 🚶)
Москва, Заречная улица, 2/1
БЦ "PORTA Workplace (ПОРТА)"
Тип: Офисы
Площадь: 1968.00 м2
Отделка:Shell and Core
1 201 715 904 за все
610 628 за м2
Позвонить Подробнее
Технопарк (7 мин. 🚶)
Москва, ЖК Нагатино Ай-Ленд, к1
ЖК "Нагатино Ай-Ленд" к1
Тип: Офисы
Площадь: 3208.50 м2
Отделка:Shell and Core
1 153 000 000 за все
359 358 за м2
Позвонить Подробнее
Павелецкая (15 мин. 🚶)
Москва, Жуков проезд, вл8
Бизнес-центр TALLER
Тип: Офисы
Площадь: 2158.00 м2
Отделка:Shell and Core
1 172 434 078 за все
543 297 за м2
Позвонить Подробнее
Баррикадная (11 мин. 🚶)
Москва, Поварская улица, 31/29
Жилой дом «Поварская 31/29»
Тип: Офисы
Площадь: 144.20 м2
Отделка:отделка арендатора
44 200 000 за все
306 519 за м2
Позвонить Подробнее