Аренда торгового помещения Авторский дом "Roza Rossa"

Объект успешно реализован!
Аренда торгового помещения Авторский дом Аренда торгового помещения Авторский дом Аренда торгового помещения Авторский дом Аренда торгового помещения Авторский дом Аренда торгового помещения Авторский дом
Аренда торгового помещения Авторский дом Аренда торгового помещения Авторский дом Аренда торгового помещения Авторский дом Аренда торгового помещения Авторский дом Аренда торгового помещения Авторский дом
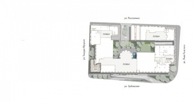
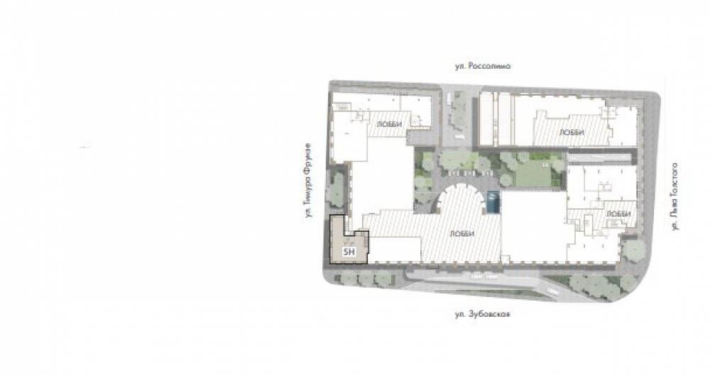
Москва, Зубовская улица, 7
Объект успешно реализован, но у нас есть много других интересных предложений. Позвоните по телефону +7 495 230-28-26, либо оставьте заявку на подбор прямо сейчас и получите список подходящих для вас объектов.
загрузка карты...
Аренда в год за м2 80 000 ₽
Аренда в месяц 1 904 667 ₽
Общие
ID 57206
Тип сделки Аренда
Площадь 285.70
Площадь всего 10626.00
Тип объекта Бизнес-центр
Класс здания C
Этаж -1 - 1
Всего этажей в здании 4
Метраж по этажам
Этаж: -1 - 138.7 м2
Этаж: 1 - 147 м2
Информация об объекте
Состояние объекта рабочее
Состояние блока Shell and Core
Планировка Открытая
Нюансы Отдельный вход,ПСН
Новостройка Новостройка
Торговая недвижимость
Линия домов 1 линия
Возможности Зона разгрузки,Ресторанная вытяжка,Витрины,Место для рекламы,Проходное место,Проездное место
Электр. мощность (кВт) 58
Коммерческие условия
Аренда в год за м2 80 000 ₽
Аренда в месяц 1 904 667 ₽
Тип собственника Юридическое лицо

Описание объекта
Предлагается торговое помещение в современном авторском доме "Roza Rossa" в Хамовниках по адресу Зубовская улица, дом 7. Объект расположен в непосредственной близости от Садового кольца, имеет прямой доступ с улиц Тимура Фрунзе, Льва Толстого и Россолимо. Площадь помещения 285,7 кв.м. Помещение оснащено панорамными окнами, что обеспечит высокие рекламные возможности.

Наша оценка
Локация
Цена
Техническое оснащение
Состояние
Метраж
Общая оценка 5

Нужна консультация по подбору торговых площадей для аренды?

Наши специалисты подберут для вас самые выгодные варианты для долгосрочного инвестирования,
помогут в сопровождении и сделки, проверят все юридические вопросы касаемо приобретения недвижимости.

* Нажимая на кнопку «Отправить», Вы даете согласие на обработку персональных данных в соответствии с Политикой конфиденциальности

Похожие объекты

Ясенево (15 мин. 🚶)
Москва, Вильнюсская улица, 15
Жилой дом "Вильнюсская 15"
Тип: Торговое помещение
Площадь: 258.60 м2
465 000 в месяц
21 578 в год за м2
Позвонить Подробнее
Марьина Роща (13 мин. 🚶)
Москва, Улица Сущёвский Вал, 16с1
Бизнес-парк «Минаевский»
Тип: Торговое помещение
Площадь: 284.00 м2
Мощность:50 кВт
600 000 в месяц
25 352 в год за м2
Позвонить Подробнее
Верхние Лихоборы Лихоборы (20 мин. 🚗)
Москва, Дмитровское шоссе, 85
БЦ «РТС» Селигерская
Тип: Торговое помещение
Площадь: 274.00 м2
410 100 в месяц
17 961 в год за м2
Позвонить Подробнее
Братиславская (9 мин. 🚶)
Москва, Люблинская улица, 153
ТЦ "Люблю Молл"
Тип: Торговое помещение
Площадь: 287.00 м2
1 004 500 в месяц
42 000 в год за м2
Позвонить Подробнее
Тургеневская (4 мин. 🚶)
Москва, Мясницкая улица, 13с24
Административное здание "Мясницкая улица, 13с24"
Тип: Торговое помещение
Площадь: 256.50 м2
1 000 000 в месяц
46 784 в год за м2
Позвонить Подробнее
Ботанический сад (8 мин. 🚶)
Москва, Сельскохозяйственная улица, 32
ОСЗ "Сельскохозяйственная 32"
Тип: Торговое помещение
Площадь: 281.29 м2
Мощность:108 кВт
1 500 000 в месяц
63 991 в год за м2
Позвонить Подробнее
(7 мин. 🚶)
Москва, Улица Воздвиженка, 4/7с2
Бизнес-центр «Моховая I»
Тип: Торговое помещение
Площадь: 308.40 м2
3 000 000 в месяц
116 732 в год за м2
Позвонить Подробнее
Савёловская (1 мин. 🚶)
Москва, Бутырская улица, 4
Жилое здание "Бутырская ул., д. 4"
Тип: Торговое помещение
Площадь: 264.50 м2
1 050 000 в месяц
47 637 в год за м2
Позвонить Подробнее
Университет (12 мин. 🚶)
Москва, Ленинский проспект, 77к1
Жилое здание "Ленинский проспект, 77к1"
Тип: Торговое помещение
Площадь: 272.30 м2
Мощность:49 кВт
816 900 в месяц
36 000 в год за м2
Позвонить Подробнее
Технопарк (10 мин. 🚶)
Москва, проспект Андропова, 11к2
Деловой квартал "ЮПорт"
Тип: Торговое помещение
Площадь: 300.00 м2
875 000 в месяц
35 000 в год за м2
Позвонить Подробнее
Кунцевская (10 мин. 🚶)
Москва, Молдавская улица, 1с8
Бизнес-центр "Upside Кунцево"
Тип: Торговое помещение
Площадь: 278.00 м2
Мощность:150 кВт
1 635 480 в месяц
70 596 в год за м2
Позвонить Подробнее
Отрадное (11 мин. 🚶)
Москва, Отрадная улица, 8
Жилой комплекс Дом «МАЛЕВИЧ»
Тип: Торговое помещение
Площадь: 273.70 м2
798 292 в месяц
35 000 в год за м2
Позвонить Подробнее
Павелецкая (10 мин. 🚶)
Москва, Летниковская улица, 11/10с22
ЖК "HIGH LIFE&OPUS"
Тип: Торговое помещение
Площадь: 138.50 м2
Мощность:50 кВт
900 000 в месяц
77 978 в год за м2
Позвонить Подробнее
Перово (1 мин. 🚶)
Москва, Зелёный проспект, 19
Административное здание Зеленый проспект, 19
Тип: Торговое помещение
Площадь: 108.00 м2
Мощность:40 кВт
750 000 в месяц
83 333 в год за м2
Позвонить Подробнее
Братиславская (9 мин. 🚶)
Москва, Люблинская улица, 153
ТЦ "Люблю Молл"
Тип: Торговое помещение
Площадь: 82.50 м2
544 500 в месяц
79 200 в год за м2
Позвонить Подробнее
Братиславская (9 мин. 🚶)
Москва, Люблинская улица, 153
ТЦ "Люблю Молл"
Тип: Торговое помещение
Площадь: 55.40 м2
365 640 в месяц
79 200 в год за м2
Позвонить Подробнее
Братиславская (9 мин. 🚶)
Москва, Люблинская улица, 153
ТЦ "Люблю Молл"
Тип: Торговое помещение
Площадь: 54.00 м2
378 000 в месяц
84 000 в год за м2
Позвонить Подробнее
Полежаевская (11 мин. 🚶)
Москва, Улица Зорге, 9
Бизнес-квартал «Зорге 9»
Тип: Торговое помещение
Площадь: 106.90 м2
Мощность:40 кВт
757 208 в месяц
85 000 в год за м2
Позвонить Подробнее
Сухаревская (1 мин. 🚶)
Москва, Малая Сухаревская площадь, 12
ТОЦ «Садовая Галерея»
Тип: Торговое помещение
Площадь: 1150.00 м2
7 666 667 в месяц
80 000 в год за м2
Позвонить Подробнее
Белорусская (10 мин. 🚶)
Москва, Большая Грузинская улица, 57с1
Street Retail на Большой Грузинской
Тип: Торговое помещение
Площадь: 118.00 м2
Мощность:42 кВт
750 000 в месяц
76 271 в год за м2
Позвонить Подробнее
Багратионовская (8 мин. 🚶)
Москва, Кастанаевская улица, 16с1
Бизнес-центр "Фили Резиденс"
Тип: Торговое помещение
Площадь: 132.30 м2
937 125 в месяц
85 000 в год за м2
Позвонить Подробнее
Университет (4 мин. 🚶)
Москва, Ломоносовский проспект, 23
Жилой дом "Ломоносовский проспект, 23"
Тип: Торговое помещение
Площадь: 125.00 м2
Мощность:40 кВт
850 000 в месяц
81 600 в год за м2
Позвонить Подробнее
Кунцевская (10 мин. 🚶)
Москва, Молдавская улица, 1с8
Бизнес-центр "Upside Кунцево"
Тип: Торговое помещение
Площадь: 71.80 м2
Мощность:5 кВт
491 212 в месяц
82 097 в год за м2
Позвонить Подробнее
Кунцевская (10 мин. 🚶)
Москва, Молдавская улица, 1с8
Бизнес-центр "Upside Кунцево"
Тип: Торговое помещение
Площадь: 63.00 м2
Мощность:5 кВт
439 401 в месяц
83 695 в год за м2
Позвонить Подробнее
Парк культуры (3 мин. 🚶)
Москва, Улица Тимура Фрунзе, 11к2
Бизнес-центр «Мамонтов»
Тип: Торговое помещение
Площадь: 63.49 м2
Мощность:25 кВт
613 208 в месяц
115 900 в год за м2
Позвонить Подробнее
Парк культуры
Закрытая продажа #60101
Тип: Торговое помещение
Площадь: 259.40 м2
Мощность:50 кВт
990 000 в месяц
45 798 в год за м2
Позвонить Подробнее
Парк культуры (5 мин. 🚶)
Москва, Померанцев переулок, 3
Жилое здание "Померанцев переулок, 3"
Тип: Торговое помещение
Площадь: 110.00 м2
Мощность:50 кВт
600 000 в месяц
65 455 в год за м2
Позвонить Подробнее