Продажа торгового помещения ТЦ "Терабит"

Продажа торгового помещения ТЦ Продажа торгового помещения ТЦ Продажа торгового помещения ТЦ Продажа торгового помещения ТЦ Продажа торгового помещения ТЦ Продажа торгового помещения ТЦ Продажа торгового помещения ТЦ
Продажа торгового помещения ТЦ Продажа торгового помещения ТЦ Продажа торгового помещения ТЦ Продажа торгового помещения ТЦ Продажа торгового помещения ТЦ Продажа торгового помещения ТЦ Продажа торгового помещения ТЦ
Московская область, Красногорск, Красногорский бульвар, 4с1
Позвоните по телефону +7 495 230-28-26, либо оставьте заявку на просмотр прямо сейчас и узнайте условия специального предложения по объекту.
загрузка карты...
Капина Владлена Викторовна

Объект ведет консультант:

Капина Владлена Викторовна

Общие
ID 57404
Тип сделки Продажа
Площадь 1343.00
Тип объекта Торговый центр
Этаж 3
Всего этажей в здании 6
Метраж по этажам
Информация об объекте
Состояние объекта рабочее
Состояние блока требуется косметический ремонт
Планировка Открытая
Перекрытия Железобетонные
Нюансы ПСН
Торговая недвижимость
Линия домов 1 линия
Возможности Зона разгрузки,Торговый центр,Витрины,Место для рекламы,Проходное место,Проездное место
Электр. мощность (кВт) 300
Коммерческие условия
За все 241 740 000 ₽
За м 2 180 000 ₽
Тип собственника Юридическое лицо

Описание объекта
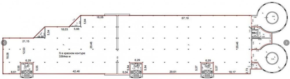
Предлагается в продажу помещение свободного назначения в современном ТЦ "Терабит" в центре густонаселенного жилого массива  с развитой инфраструктурой. Помещение на 3 этаже общей площадью 1 343 м2, высота потолков 3 метра.

Общая площадь -25000 кв.м
- Электрическая мощность 2.5 МВт
- Земля в собственности
- 7 этажей
- 3пассажирских лифта
- 2грузовых уличных подъемника
- Рампа для въезда/выезда автотранспорта  на каждый изэтажей здания
- Центральные сети коммуникаций
-  В шаговой доступности от станции МЦД  «Павшинская пойма».
• Парковка на 91 машиноместо

Помещение объединено со вторым этажом лестничным маршем, ближайшая часть этажа к входной группы здания. Идеально по торговые площади.

В ближайшем окружении проживает более 100 000 человек, в непосредственной близости будет построено 200 000 м2 жилого массива. Доступ 24/7. Помещение подходит под производство, имеются все необходимые технологии.

Нужна консультация покупке или продаже торговых помещений?

Наши специалисты подберут для вас самые выгодные варианты для долгосрочного инвестирования,
помогут в сопровождении и сделки, проверят все юридические вопросы касаемо приобретения недвижимости.

* Нажимая на кнопку «Отправить», Вы даете согласие на обработку персональных данных в соответствии с Политикой конфиденциальности

Похожие объекты

Профсоюзная (10 мин. 🚶)
Москва, улица Вавилова, 69А
ЖК: VAVILOVE (Вавилова, 69А)
Тип: Торговое помещение
Площадь: 1232.80 м2
Мощность:84 кВт
144 620 000 за все
117 310 за м2
Позвонить Подробнее
Калужская (15 мин. 🚶)
Москва, Новочерёмушкинская улица, 71/32
ЖК Дом Газпрома
Тип: Торговое помещение
Площадь: 1209.30 м2
Мощность:120 кВт
266 046 000 за все
220 000 за м2
Позвонить Подробнее
Жулебино (6 мин. 🚶)
Москва, улица Маршала Полубоярова, 18
ОСЗ "Маршала Полубоярова 18"
Тип: Торговое помещение
Площадь: 1405.00 м2
Мощность:150 кВт
210 000 000 за все
149 466 за м2
Позвонить Подробнее
Волоколамская (57 мин. 🚗)
Московская область, муниципальный округ Истра, село Новопетровское, Первомайская улица, 1
Здание "Истра, село Новопетровское, Первомайская улица, 1"
Тип: Торговое помещение
Площадь: 1270.90 м2
Мощность:35 кВт
60 000 000 за все
47 211 за м2
Позвонить Подробнее
Бульвар Рокоссовского (5 мин. 🚶)
Москва, Тюменский проезд, 3к1
ЖК "Преображение"
Тип: Торговое помещение
Площадь: 1222.60 м2
Мощность:155 кВт
320 406 782 за все
262 070 за м2
Позвонить Подробнее
Красные Ворота (10 мин. 🚶)
Москва, проспект Академика Сахарова, 7
ЖК "RED7"
Тип: Торговое помещение
Площадь: 341.40 м2
Мощность:85 кВт
238 980 000 за все
700 000 за м2
Позвонить Подробнее
Ленинский проспект (4 мин. 🚶)
Москва, улица Вавилова, вл11
БЦ STONE Ленинский
Тип: Торговое помещение
Площадь: 315.00 м2
Мощность:30 кВт
219 481 000 за все
696 765 за м2
Позвонить Подробнее
Авиамоторная (15 мин. 🚶)
Москва, улица Золоторожский Вал, 11
Бизнес-центр "STONE Римский"
Тип: Торговое помещение
Площадь: 297.70 м2
238 160 000 за все
800 000 за м2
Позвонить Подробнее
Дубровка (30 мин. 🚶)
Москва, улица Эдуарда Стрельцова, 2к1
ЖК «FORIVER (Форивер)»
Тип: Торговое помещение
Площадь: 370.50 м2
Мощность:111 кВт
217 640 000 за все
587 422 за м2
Позвонить Подробнее
Савёловская (19 мин. 🚶)
Москва, улица Двинцев, 3
БЦ "STONE Савёловская"
Тип: Торговое помещение
Площадь: 202.00 м2
Мощность:45 кВт
244 012 500 за все
1 207 983 за м2
Позвонить Подробнее
Улица 1905 года (7 мин. 🚶)
Москва, 2-я Звенигородская улица, 13с4
ОСЗ "2 -ая Звенигородская улица, д. 13с4"
Тип: Торговое помещение
Площадь: 185.00 м2
259 000 000 за все
1 400 000 за м2
Позвонить Подробнее
Волгоградский проспект (8 мин. 🚶)
Москва, Автомобильный проезд, 4
Апарт - комплекс NICE LОFT
Тип: Торговое помещение
Площадь: 598.40 м2
Мощность:115 кВт
238 941 120 за все
399 300 за м2
Позвонить Подробнее
Волгоградский проспект (8 мин. 🚶)
Москва, Автомобильный проезд, 4
Апарт - комплекс NICE LОFT
Тип: Торговое помещение
Площадь: 386.00 м2
Мощность:21 кВт
243 031 310 за все
629 615 за м2
Позвонить Подробнее
Медведково (26 мин. 🚗)
Московская область, Мытищи, улица Колпакова, 39
Здание "Московская область, Мытищи, улица Колпакова, 39"
Тип: Торговое помещение
Площадь: 4260.00 м2
Мощность:250 кВт
250 000 000 за все
58 685 за м2
Позвонить Подробнее
Улица 1905 года (14 мин. 🚶)
Москва, улица Сергея Макеева, вл11/9с1-10
ЖК "LIFE TIME"
Тип: Торговое помещение
Площадь: 168.60 м2
222 960 000 за все
1 322 420 за м2
Позвонить Подробнее
Селигерская (5 мин. 🚶)
Москва, Дмитровское шоссе, 81
МФК «Apart Ville»
Тип: Торговое помещение
Площадь: 1182.30 м2
Мощность:60 кВт
260 000 000 за все
219 910 за м2
Позвонить Подробнее
Дубровка (30 мин. 🚶)
Москва, улица Эдуарда Стрельцова, 2к1
ЖК «FORIVER (Форивер)»
Тип: Торговое помещение
Площадь: 404.70 м2
Мощность:121 кВт
254 950 000 за все
629 973 за м2
Позвонить Подробнее
Мякинино (50 мин. 🚗)
Московская область, городской округ Красногорск, посёлок Ильинское-Усово, ЖК Ильинские Луга, 3.6
ЖК "Ильинские Луга"
Тип: Торговое помещение
Площадь: 79.60 м2
23 000 000 за все
288 945 за м2
Позвонить Подробнее
Мякинино (30 мин. 🚶)
Московская область, Красногорск, Красногорский бульвар, 4с1
ТЦ "Терабит"
Тип: Торговое помещение
Площадь: 2000.00 м2
360 000 000 за все
180 000 за м2
Позвонить Подробнее
Мякинино (40 мин. 🚗)
Московская область, Красногорск, микрорайон Опалиха, Новая Московская улица, 49с1
ЖК бизнес-класса "8 Кленов"
Тип: Торговое помещение
Площадь: 185.00 м2
Мощность:37 кВт
60 000 000 за все
324 324 за м2
Позвонить Подробнее