Аренда офиса Бизнес-центр «Крылатский»

Объект успешно реализован!
Аренда офиса Бизнес-центр «Крылатский» Аренда офиса Бизнес-центр «Крылатский» Аренда офиса Бизнес-центр «Крылатский»
Аренда офиса Бизнес-центр «Крылатский» - превью Аренда офиса Бизнес-центр «Крылатский» - превью Аренда офиса Бизнес-центр «Крылатский» - превью
Москва, Осенний бульвар, 23
Объект успешно реализован, но у нас есть много других интересных предложений. Позвоните по телефону +7 495 230-28-26, либо оставьте заявку на подбор прямо сейчас и получите список подходящих для вас объектов.
загрузка карты...
Аренда в год за м2 42 000 ₽
Аренда в месяц 3 206 000 ₽
Схема сделки прямая аренда
Первушина Марина Алексеевна

Объект ведет консультант:

Первушина Марина Алексеевна

Общие
ID 57796
Тип сделки Аренда
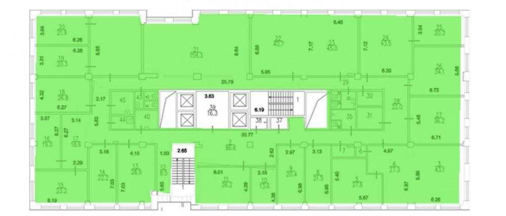
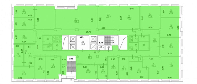
Площадь 916.00
Площадь всего 18500.00
Тип объекта Бизнес-центр
Класс здания B
Этаж 2
Всего этажей в здании 14
Метраж по этажам
Информация об объекте
Состояние объекта рабочее
Состояние блока выполнена стандартная офисная отделка
Планировка Залы и кабинеты
Коммуникации Система пожаротушения,Система видеонаблюдения,Интернет,Телефония
Лифт пассажирский 4
Перекрытия Железобетонные
Парковка наземный 16500р, подземный 27500р
Отопление Центральное
Вентиляция и кондиционирование Система приточно-вытяжной вентиляции
КПП Гостевой пропуск
Коммерческие условия
Аренда в год за м2 42 000 ₽
Аренда в месяц 3 206 000 ₽
Схема сделки прямая аренда
Тип собственника Юридическое лицо

Описание объекта
Предлагаем в аренду этаж под офис в бизнес-центре класса В+ в пешей доступности от м. Крылатское.
Много окон, стандартная отделка, свой с/у. В БЦ пропускной режим, приточная вентиляция, центрально кондиционирование, подземная и наземная парковки.
В ставку включены НДС, эксплуатация и коммунальные услуги.

Нужна консультация по подбору помещения под офис?

Наши специалисты подберут для вас самые выгодные варианты для долгосрочного инвестирования,
помогут в сопровождении и сделки, проверят все юридические вопросы касаемо приобретения недвижимости.

* Нажимая на кнопку «Отправить», Вы даете согласие на обработку персональных данных в соответствии с Политикой конфиденциальности

Похожие объекты

ЦСКА (15 мин. 🚶)
Москва, Ленинградский проспект, 37Ак4
БЦ "Аркус 3"
Тип: Офисы
Площадь: 837.00 м2
Отделка:выполнена стандартная офисная отделка
5 699 831 в месяц
81 718 в год за м2
Позвонить Подробнее
Третьяковская (13 мин. 🚶)
Москва, Болотная улица, 14с1
Административное здание " Болотная улица, 14с1"
Тип: Офисы
Площадь: 842.00 м2
Отделка:требуется косметический ремонт
3 000 000 в месяц
42 755 в год за м2
Позвонить Подробнее
Бауманская (8 мин. 🚶)
Москва, Бауманская улица, 58/25к12с2
Особняк «Бауманская 58/25к12 с2»
Тип: Офисы
Площадь: 866.10 м2
Отделка:выполнена стандартная офисная отделка
2 237 425 в месяц
31 000 в год за м2
Позвонить Подробнее
Войковская (7 мин. 🚶)
Москва, Ленинградское шоссе, 16Ас1
Бизнес-центр «Метрополис»
Тип: Офисы
Площадь: 835.00 м2
Отделка:качественная отделка
3 827 083 в месяц
55 000 в год за м2
Позвонить Подробнее
Чистые пруды (4 мин. 🚗)
Москва, Хохловский переулок, 10с3
Особняк «Хохловский 10 с3»
Тип: Офисы
Площадь: 911.00 м2
Отделка:выполнена стандартная офисная отделка
3 036 667 в месяц
40 000 в год за м2
Позвонить Подробнее
Электрозаводская (14 мин. 🚶)
Москва, Бакунинская улица, 73с3
БЦ Бакунинский
Тип: Офисы
Площадь: 896.00 м2
Отделка:выполнена стандартная офисная отделка
1 642 667 в месяц
22 000 в год за м2
Позвонить Подробнее
Савёловская (12 мин. 🚶)
Москва, Вятская улица, 35с4
Бизнес-центр «Вятка»
Тип: Офисы
Площадь: 990.00 м2
Отделка:выполнена стандартная офисная отделка
3 271 125 в месяц
39 650 в год за м2
Позвонить Подробнее
Сокол Сокольники Соколиная Гора (15 мин. 🚶)
Москва, Чапаевский переулок, 14
Бизнес-центр «Сокол Плейс»
Тип: Офисы
Площадь: 880.00 м2
Отделка:выполнена стандартная офисная отделка
2 933 333 в месяц
40 000 в год за м2
Позвонить Подробнее
Кожуховская (6 мин. 🚶)
Москва, 2-й Южнопортовый проезд, 14/22
Офисно-складской комплекс «Южнопортовый»
Тип: Офисы
Площадь: 980.00 м2
Отделка:выполнена стандартная офисная отделка
1 633 333 в месяц
20 000 в год за м2
Позвонить Подробнее
Кожуховская (6 мин. 🚶)
Москва, 2-й Южнопортовый проезд, 14/22
Офисно-складской комплекс «Южнопортовый»
Тип: Офисы
Площадь: 850.00 м2
Отделка:выполнена стандартная офисная отделка
1 416 667 в месяц
20 000 в год за м2
Позвонить Подробнее
(9 мин. 🚶)
Москва, Алтуфьевское шоссе, 1/7
Бизнес-центр «Бета центр»
Тип: Офисы
Площадь: 887.80 м2
Отделка:выполнена стандартная офисная отделка
1 331 700 в месяц
18 000 в год за м2
Позвонить Подробнее
Краснопресненская (5 мин. 🚶)
Москва, Большая Грузинская улица, 12с2
Бизнес-центр «Николаевский»
Тип: Офисы
Площадь: 969.30 м2
Отделка:выполнена стандартная офисная отделка
2 800 000 в месяц
34 664 в год за м2
Позвонить Подробнее
Полянка (3 мин. 🚶)
Москва, Улица Малая Полянка, 2
МФК Онегин (Onegin)
Тип: Офисы
Площадь: 194.50 м2
Отделка:выполнена стандартная офисная отделка
700 000 в месяц
43 188 в год за м2
Позвонить Подробнее
Павелецкая (15 мин. 🚶)
Москва, Жуков проезд, вл8
Бизнес-центр TALLER
Тип: Офисы
Площадь: 1731.72 м2
Отделка:помещение без отделки
6 514 153 в месяц
45 140 в год за м2
Позвонить Подробнее
Проспект Вернадского (14 мин. 🚗)
Москва, улица Академика Пилюгина, 22
Бизнес-центр «Алгоритм»
Тип: Офисы
Площадь: 1764.90 м2
Отделка:выполнена стандартная офисная отделка
6 100 671 в месяц
41 480 в год за м2
Позвонить Подробнее
Проспект Вернадского (14 мин. 🚗)
Москва, улица Академика Пилюгина, 22
Бизнес-центр «Алгоритм»
Тип: Офисы
Площадь: 480.59 м2
Отделка:выполнена стандартная офисная отделка
1 661 239 в месяц
41 480 в год за м2
Позвонить Подробнее
Третьяковская (13 мин. 🚶)
Москва, Болотная улица, 14с1
Административное здание " Болотная улица, 14с1"
Тип: Офисы
Площадь: 842.00 м2
Отделка:требуется косметический ремонт
3 000 000 в месяц
42 755 в год за м2
Позвонить Подробнее
Третьяковская (13 мин. 🚶)
Москва, Болотная улица, 14с1
Административное здание " Болотная улица, 14с1"
Тип: Офисы
Площадь: 421.00 м2
Отделка:требуется косметический ремонт
1 500 000 в месяц
42 755 в год за м2
Позвонить Подробнее
Чистые пруды (4 мин. 🚗)
Москва, Хохловский переулок, 10с3
Особняк «Хохловский 10 с3»
Тип: Офисы
Площадь: 911.00 м2
Отделка:выполнена стандартная офисная отделка
3 036 667 в месяц
40 000 в год за м2
Позвонить Подробнее
Тёплый стан (9 мин. 🚶)
Москва, Профсоюзная улица, 125к1
Офисный особняк «Профсоюзная 125к1»
Тип: Офисы
Площадь: 7452.00 м2
27 945 000 в месяц
45 000 в год за м2
Позвонить Подробнее
Савёловская (5 мин. 🚶)
Москва, Бумажный проезд, 19с4
БЦ STONE TOWERS
Тип: Офисы
Площадь: 143.00 м2
Отделка:Shell and Core
540 000 в месяц
45 315 в год за м2
Позвонить Подробнее
Савёловская (12 мин. 🚶)
Москва, Вятская улица, 35с4
Бизнес-центр «Вятка»
Тип: Офисы
Площадь: 2136.00 м2
Отделка:выполнена стандартная офисная отделка
7 057 700 в месяц
39 650 в год за м2
Позвонить Подробнее
Савёловская (12 мин. 🚶)
Москва, Вятская улица, 35с4
Бизнес-центр «Вятка»
Тип: Офисы
Площадь: 3513.00 м2
Отделка:выполнена стандартная офисная отделка
11 607 538 в месяц
39 650 в год за м2
Позвонить Подробнее
Савёловская (12 мин. 🚶)
Москва, Вятская улица, 35с4
Бизнес-центр «Вятка»
Тип: Офисы
Площадь: 990.00 м2
Отделка:выполнена стандартная офисная отделка
3 271 125 в месяц
39 650 в год за м2
Позвонить Подробнее
Крылатское (10 мин. 🚗)
Закрытая продажа #61168
Тип: Офисы
Площадь: 1500.00 м2
Отделка:качественная отделка
3 450 000 в месяц
27 600 в год за м2
Позвонить Подробнее
Крылатское (10 мин. 🚗)
Закрытая продажа #61167
Тип: Офисы
Площадь: 1200.00 м2
Отделка:качественная отделка
2 850 000 в месяц
28 500 в год за м2
Позвонить Подробнее
Крылатское (10 мин. 🚶)
Москва, Осенний бульвар, 23
Бизнес-центр «Крылатский»
Тип: Офисы
Площадь: 164.20 м2
Отделка:выполнена стандартная офисная отделка
584 280 в месяц
42 700 в год за м2
Позвонить Подробнее