Аренда офиса Технопарк «Отрадное»

Объект успешно реализован!
Аренда офиса Технопарк «Отрадное» Аренда офиса Технопарк «Отрадное» Аренда офиса Технопарк «Отрадное»
Аренда офиса Технопарк «Отрадное» - превью Аренда офиса Технопарк «Отрадное» - превью Аренда офиса Технопарк «Отрадное» - превью
Москва, Отрадная улица, 2Бс6
Объект успешно реализован, но у нас есть много других интересных предложений. Позвоните по телефону +7 495 230-28-26, либо оставьте заявку на подбор прямо сейчас и получите список подходящих для вас объектов.
загрузка карты...
Аренда в год за м2 35 600 ₽
Аренда в месяц 2 947 680 ₽
Схема сделки прямая аренда
Общие
ID 59453
Тип сделки Аренда
Площадь 993.60
Площадь всего 35900.00
Тип объекта Бизнес-центр
Класс здания B
Этаж 5
Всего этажей в здании 11
Метраж по этажам
Информация об объекте
Состояние объекта рабочее
Состояние блока выполнена стандартная офисная отделка
Планировка Смешанная
Коммуникации Система пожаротушения,Система видеонаблюдения,Интернет,Телефония
Парковка наземная, 8500р/мес, подземная 10500р/мес
КПП Гостевой пропуск
Коммерческие условия
Аренда в год за м2 35 600 ₽
Аренда в месяц 2 947 680 ₽
Схема сделки прямая аренда
Тип собственника Юридическое лицо

Описание объекта
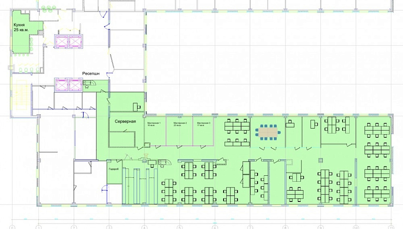
Предлагаем в аренду блок офисов в бизнес-парке класса В в пешей доступности от м. Отрадное.
Строение 6, пятый этаж этаж. Полезная площадь 864м2.  Смешанная планировка (10 кабинетов на 97 рабочих мест, серверная, кухня, ресепшн, мастерские с автономным охлаждением и шумоизоляцией,), с/у на этаже, офисная отделка. В здании пропускной режим, приточная вентиляция, центральное кондиционирование.
В ставку включена эксплуатация.
Возможна аренда с мебелью.
За дополнительную плату предоставляются места на парковке.
Офис освобождается по запросу.

Нужна консультация по подбору помещения под офис?

Наши специалисты подберут для вас самые выгодные варианты для долгосрочного инвестирования,
помогут в сопровождении и сделки, проверят все юридические вопросы касаемо приобретения недвижимости.

* Нажимая на кнопку «Отправить», Вы даете согласие на обработку персональных данных в соответствии с Политикой конфиденциальности

Похожие объекты

Китай-город (7 мин. 🚶)
Москва, Подкопаевский переулок, 4
Бизнес-центр «Ивановская горка»
Тип: Офисы
Площадь: 996.80 м2
Отделка:качественная отделка
5 399 333 в месяц
65 000 в год за м2
Позвонить Подробнее
Международная (5 мин. 🚶)
Москва, Пресненская набережная, 10А
Бизнес-центр «Башня на набережной»
Тип: Офисы
Площадь: 1014.00 м2
Отделка:качественная отделка
10 309 000 в месяц
122 000 в год за м2
Позвонить Подробнее
Профсоюзная (5 мин. 🚶)
Москва, Улица Кржижановского, 14к3
Бизнес-центр «Ферро-Плаза»
Тип: Офисы
Площадь: 1000.00 м2
Отделка:выполнена стандартная офисная отделка
3 333 333 в месяц
40 000 в год за м2
Позвонить Подробнее
Румянцево (3 мин. 🚶)
Москва, Поселение Московский, деревня Румянцево, Киевское шоссе, 1
Бизнес-парк «Румянцево»
Тип: Офисы
Площадь: 911.40 м2
Отделка:выполнена стандартная офисная отделка
1 139 250 в месяц
15 000 в год за м2
Позвонить Подробнее
Полянка (5 мин. 🚶)
Москва, улица Большая Якиманка, 17/2с1
Бизнес центр "улица Большая Якиманка, 17/2с1"
Тип: Офисы
Площадь: 1012.00 м2
Отделка:выполнена стандартная офисная отделка
4 486 450 в месяц
53 199 в год за м2
Позвонить Подробнее
Планерная (23 мин. 🚗)
Московская область, Химки, Куркинское шоссе, с2
Бизнес-центр «Aero City (Аэро Сити)»
Тип: Офисы
Площадь: 995.30 м2
Отделка:Shell and Core
945 535 в месяц
11 400 в год за м2
Позвонить Подробнее
Фрунзенская (7 мин. 🚶)
Москва, Усачёва улица, 2с1
Бизнес-центр «Фьюжн Парк»
Тип: Офисы
Площадь: 1000.00 м2
Отделка:выполнена высококачественная отделка
8 333 333 в месяц
100 000 в год за м2
Позвонить Подробнее
Электрозаводская (14 мин. 🚶)
Москва, Бакунинская улица, 73с3
БЦ Бакунинский
Тип: Офисы
Площадь: 896.00 м2
Отделка:выполнена стандартная офисная отделка
1 642 667 в месяц
22 000 в год за м2
Позвонить Подробнее
Савёловская (12 мин. 🚶)
Москва, Вятская улица, 35с4
Бизнес-центр «Вятка»
Тип: Офисы
Площадь: 951.00 м2
Отделка:выполнена стандартная офисная отделка
3 142 263 в месяц
39 650 в год за м2
Позвонить Подробнее
Новокузнецкая (7 мин. 🚶)
Москва, Озерковская набережная, 12
Озерковская набережная, 12
Тип: Офисы
Площадь: 959.50 м2
Отделка:выполнена стандартная офисная отделка
3 598 125 в месяц
45 000 в год за м2
Позвонить Подробнее
Нагатинская (14 мин. 🚶)
Москва, 1-й Нагатинский проезд, 10с1
Бизнес-центр «Ньютон Плаза»
Тип: Офисы
Площадь: 956.00 м2
Отделка:выполнена стандартная офисная отделка
2 947 667 в месяц
37 000 в год за м2
Позвонить Подробнее
Сходненская (5 мин. 🚶)
Москва, Сходненская улица, 56
Бизнес-центр «Калейдоскоп»
Тип: Офисы
Площадь: 977.20 м2
Отделка:выполнена стандартная офисная отделка
2 781 763 в месяц
34 160 в год за м2
Позвонить Подробнее
Ленинский проспект (5 мин. 🚶)
Москва, улица Орджоникидзе, 11с40
Бизнес-парк Орджоникидзе 11
Тип: Офисы
Площадь: 222.40 м2
Отделка:выполнена стандартная офисная отделка
648 667 в месяц
35 000 в год за м2
Позвонить Подробнее
Таганская (5 мин. 🚶)
Москва, улица Земляной Вал, 68/18с5
Офисное здание «Земляной 68/18 с5"
Тип: Офисы
Площадь: 145.00 м2
Отделка:выполнена стандартная офисная отделка
422 917 в месяц
35 000 в год за м2
Позвонить Подробнее
Павелецкая (16 мин. 🚗)
Москва, 1-й Дербеневский переулок, 5
Бизнес-центр «Дербеневская Плаза»
Тип: Офисы
Площадь: 442.50 м2
Отделка:выполнена стандартная офисная отделка
1 235 313 в месяц
33 500 в год за м2
Позвонить Подробнее
Сокольники (8 мин. 🚗)
Москва, 3-я Рыбинская улица, 18с22
Бизнес-центр «Буревестник» с22
Тип: Офисы
Площадь: 861.00 м2
Отделка:качественная отделка
2 801 120 в месяц
39 040 в год за м2
Позвонить Подробнее
Сокольники (8 мин. 🚗)
Москва, 3-я Рыбинская улица, 18с2
Бизнес-центр «Буревестник»
Тип: Офисы
Площадь: 528.13 м2
Отделка:выполнена стандартная офисная отделка
1 718 183 в месяц
39 040 в год за м2
Позвонить Подробнее
Спортивная (10 мин. 🚶)
Москва, Малая Пироговская улица, 18с1
Малая Пироговская улица, 18с1
Тип: Офисы
Площадь: 186.00 м2
Отделка:выполнена стандартная офисная отделка
542 500 в месяц
35 000 в год за м2
Позвонить Подробнее
Бауманская (7 мин. 🚶)
Москва, Бауманская улица, 11с8
Торгово-офисный комлекс"Бауманская улица, 11с8"
Тип: Офисы
Площадь: 522.00 м2
Отделка:отделка в стиле Loft
1 696 500 в месяц
39 000 в год за м2
Позвонить Подробнее
Спортивная (5 мин. 🚶)
Москва, Большой Саввинский переулок, 12с6
Деловой квартал «Московский шелк» c6
Тип: Офисы
Площадь: 231.90 м2
Отделка:выполнена высококачественная отделка
734 350 в месяц
38 000 в год за м2
Позвонить Подробнее
Речной вокзал (14 мин. 🚶)
Москва, Смольная улица, 24Д
Бизнес-центр «Меридиан»
Тип: Офисы
Площадь: 1100.00 м2
Отделка:выполнена стандартная офисная отделка
3 116 667 в месяц
34 000 в год за м2
Позвонить Подробнее
Тульская (17 мин. 🚗)
Москва, Новоданиловская набережная, 6к1
Бизнес-центр «Данилов Плаза»
Тип: Офисы
Площадь: 286.00 м2
Отделка:выполнена стандартная офисная отделка
858 000 в месяц
36 000 в год за м2
Позвонить Подробнее
Таганская (19 мин. 🚶)
Москва, Космодамианская набережная, 32-34
Жилое здание "Космодамианская набережная, 32-34"
Тип: Офисы
Площадь: 574.00 м2
Отделка:выполнена стандартная офисная отделка
1 578 500 в месяц
33 000 в год за м2
Позвонить Подробнее
ЦСКА (5 мин. 🚶)
Москва, Улица Авиаконструктора Микояна, 12
Бизнес-центр «Линкор»
Тип: Офисы
Площадь: 373.00 м2
Отделка:выполнена стандартная офисная отделка
1 175 572 в месяц
37 820 в год за м2
Позвонить Подробнее
Отрадное (10 мин. 🚶)
Москва, Отрадная улица, 2Бс6
Технопарк «Отрадное»
Тип: Офисы
Площадь: 423.00 м2
Отделка:выполнена стандартная офисная отделка
1 515 750 в месяц
43 000 в год за м2
Позвонить Подробнее
Отрадное (10 мин. 🚶)
Москва, Отрадная улица, 2Бс6
Технопарк «Отрадное»
Тип: Офисы
Площадь: 1449.00 м2
Отделка:выполнена стандартная офисная отделка
5 192 250 в месяц
43 000 в год за м2
Позвонить Подробнее
Отрадное (10 мин. 🚶)
Москва, Отрадная улица, 2Бс6
Технопарк «Отрадное»
Тип: Офисы
Площадь: 2378.31 м2
Отделка:выполнена стандартная офисная отделка
6 659 268 в месяц
33 600 в год за м2
Позвонить Подробнее
Отрадное (10 мин. 🚶)
Москва, Отрадная улица, 2Бс6
Технопарк «Отрадное»
Тип: Офисы
Площадь: 294.90 м2
Отделка:выполнена стандартная офисная отделка
801 145 в месяц
32 600 в год за м2
Позвонить Подробнее
Отрадное (12 мин. 🚶)
Москва, Отрадная улица, 4А
МФК "Дом Malevich"
Тип: Офисы
Площадь: 273.70 м2
Отделка:помещение без отделки
798 292 в месяц
35 000 в год за м2
Позвонить Подробнее