Аренда офиса БЦ Бакунинский

Аренда офиса БЦ Бакунинский
Москва, Бакунинская улица, 73с3
Позвоните по телефону +7 495 230-28-26, либо оставьте заявку на просмотр прямо сейчас и узнайте условия специального предложения по объекту.
загрузка карты...
Аренда в год за м2 22 000 ₽
Аренда в месяц 1 642 667 ₽
Схема сделки прямая аренда
Первушина Марина Алексеевна

Объект ведет консультант:

Первушина Марина Алексеевна

Общие
ID 63327
Тип сделки Аренда
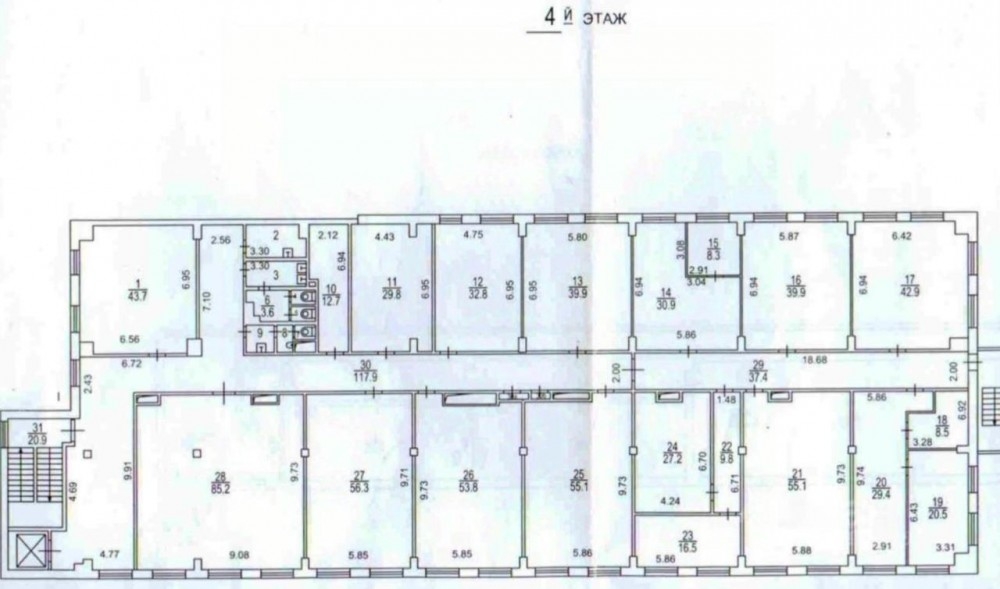
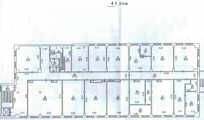
Площадь 896.00
Площадь всего 3843.00
Тип объекта Бизнес-центр
Этаж 4
Всего этажей в здании 4
Метраж по этажам
Информация об объекте
Состояние объекта рабочее
Состояние блока выполнена стандартная офисная отделка
Планировка Залы и кабинеты
Перекрытия Железобетонные
Парковка наземная 6000р/мес
Коммерческие условия
Аренда в год за м2 22 000 ₽
Аренда в месяц 1 642 667 ₽
Схема сделки прямая аренда
Тип собственника Юридическое лицо

Описание объекта
Предлагаем в аренду офис в бизнес-центре класса В в Басманном районе. До м.Электрозаводская 12 минут пешком.
Офисный блок расположен на 4-м этаже, смешанная планировка, есть зона кухни и свои с/у, стандартный офисный ремонт. Установлена приточно-вытяжная вентиляция и кондиционирование.
В ставку включена эксплуатация и к/у, отдельно оплачивается э/э.
За дополнительную плату предоставляются места на парковке.
Офис свободен к заезду с 30 апреля 2026

Нужна консультация по подбору помещения под офис?

Наши специалисты подберут для вас самые выгодные варианты для долгосрочного инвестирования,
помогут в сопровождении и сделки, проверят все юридические вопросы касаемо приобретения недвижимости.

* Нажимая на кнопку «Отправить», Вы даете согласие на обработку персональных данных в соответствии с Политикой конфиденциальности

Похожие объекты

Шаболовская (7 мин. 🚶)
Москва, Улица Шухова, 14
Бизнес-центр «Шухова Плаза»
Тип: Офисы
Площадь: 946.58 м2
Отделка:выполнена стандартная офисная отделка
4 338 492 в месяц
55 000 в год за м2
Позвонить Подробнее
Шаболовская (11 мин. 🚶)
Москва, Ленинский проспект, 15А
Бизнес-центр «Central Park Tower»
Тип: Офисы
Площадь: 827.20 м2
Отделка:выполнена высококачественная отделка
4 793 624 в месяц
69 540 в год за м2
Позвонить Подробнее
Курская (5 мин. 🚶)
Москва, Улица Земляной Вал, 9
Бизнес-центр «СитиДел»
Тип: Офисы
Площадь: 844.10 м2
Отделка:выполнена стандартная офисная отделка
5 406 461 в месяц
76 860 в год за м2
Позвонить Подробнее
(9 мин. 🚶)
Москва, Алтуфьевское шоссе, 1/7
Бизнес-центр «Бета центр»
Тип: Офисы
Площадь: 887.80 м2
Отделка:выполнена стандартная офисная отделка
1 405 683 в месяц
19 000 в год за м2
Позвонить Подробнее
Кунцевская (5 мин. 🚶)
Москва, Улица Ивана Франко, 8
Бизнес-центр «Кутузофф Тауэр»
Тип: Офисы
Площадь: 827.22 м2
Отделка:качественная отделка
3 153 776 в месяц
45 750 в год за м2
Позвонить Подробнее
Сокольники (8 мин. 🚗)
Москва, 3-я Рыбинская улица, 18с22
Бизнес-центр «Буревестник» с22
Тип: Офисы
Площадь: 861.90 м2
Отделка:качественная отделка
2 804 048 в месяц
39 040 в год за м2
Позвонить Подробнее
Кунцевская (17 мин. 🚗)
Москва, Инновационный центр Сколково, улица Сикорского, 11
БЦ "Ренова Лаб Сколково"
Тип: Офисы
Площадь: 880.00 м2
Отделка:качественная отделка
2 684 000 в месяц
36 600 в год за м2
Позвонить Подробнее
Новокузнецкая (7 мин. 🚶)
Москва, Озерковская набережная, 12
Озерковская набережная, 12
Тип: Офисы
Площадь: 959.50 м2
Отделка:выполнена стандартная офисная отделка
2 638 625 в месяц
33 000 в год за м2
Позвонить Подробнее
Курская (7 мин. 🚶)
Москва, Большой Казённый переулок, 8с1
Офисное здание «Большой Казённый 8 с1»
Тип: Офисы
Площадь: 832.00 м2
3 150 000 в месяц
45 433 в год за м2
Позвонить Подробнее
Аэропорт (21 мин. 🚗)
Москва, Ленинградский проспект, 37А
Бизнес-парк «Аркус 2»
Тип: Офисы
Площадь: 908.00 м2
Отделка:выполнена стандартная офисная отделка
3 405 000 в месяц
45 000 в год за м2
Позвонить Подробнее
Парк Победы (5 мин. 🚶)
Москва, улица Василисы Кожиной, 1
Бизнес-центр "Парк Победы"
Тип: Офисы
Площадь: 961.90 м2
Отделка:выполнена стандартная офисная отделка
4 404 861 в месяц
54 952 в год за м2
Позвонить Подробнее
Полянка (5 мин. 🚶)
Москва, улица Большая Якиманка, 17/2с1
Бизнес центр "улица Большая Якиманка, 17/2с1"
Тип: Офисы
Площадь: 924.00 м2
Отделка:выполнена стандартная офисная отделка
3 843 633 в месяц
49 917 в год за м2
Позвонить Подробнее
Тульская (7 мин. 🚶)
Москва, Варшавское шоссе, 1с7
ОСЗ "Варшавское шоссе, 1с7"
Тип: Офисы
Площадь: 417.00 м2
Отделка:отделка арендатора
750 000 в месяц
21 583 в год за м2
Позвонить Подробнее
Авиамоторная (10 мин. 🚗)
Москва, Проезд Завода Серп и Молот, 6к1
Бизнес-центр «Ростек»
Тип: Офисы
Площадь: 371.90 м2
Отделка:выполнена стандартная офисная отделка
694 213 в месяц
22 400 в год за м2
Позвонить Подробнее
Авиамоторная (10 мин. 🚗)
Москва, Проезд Завода Серп и Молот, 6к1
Бизнес-центр «Ростек»
Тип: Офисы
Площадь: 299.00 м2
Отделка:выполнена стандартная офисная отделка
558 133 в месяц
22 400 в год за м2
Позвонить Подробнее
Бауманская (2 мин. 🚶)
Москва, Спартаковская улица, 21
Особняк «Спартаковская 21»
Тип: Офисы
Площадь: 208.50 м2
Отделка:выполнена стандартная офисная отделка
420 000 в месяц
24 173 в год за м2
Позвонить Подробнее
Павелецкая (5 мин. 🚶)
Москва, 1-й Кожевнический переулок, 6с1
Бизнес-центр «Павелецкий»
Тип: Офисы
Площадь: 424.50 м2
Отделка:выполнена стандартная офисная отделка
707 500 в месяц
20 000 в год за м2
Позвонить Подробнее
Шелепиха (20 мин. 🚶)
Москва, 1-й Магистральный проезд, 11с1
Бизнес-центр «Интерьер»
Тип: Офисы
Площадь: 1088.00 м2
Отделка:требуется косметический ремонт
2 000 000 в месяц
22 059 в год за м2
Позвонить Подробнее
Домодедовская (5 мин. 🚶)
Москва, Каширское шоссе, 61к4с1
Складской комплекс "Каширское шоссе, 61к4с1"
Тип: Офисы
Площадь: 1199.00 м2
Отделка:выполнена стандартная офисная отделка
2 115 735 в месяц
21 175 в год за м2
Позвонить Подробнее
Алексеевская (10 мин. 🚶)
Москва, улица Годовикова, 9с31
Бизнес-центр «Калибр» с31
Тип: Офисы
Площадь: 280.20 м2
Отделка:выполнена стандартная офисная отделка
521 312 в месяц
22 326 в год за м2
Позвонить Подробнее
Шелепиха (20 мин. 🚶)
Москва, 1-й Магистральный проезд, 11с1
Бизнес-центр «Интерьер»
Тип: Офисы
Площадь: 550.00 м2
Отделка:выполнена стандартная офисная отделка
916 667 в месяц
20 000 в год за м2
Позвонить Подробнее
Шелепиха (20 мин. 🚶)
Москва, 1-й Магистральный проезд, 11с1
Бизнес-центр «Интерьер»
Тип: Офисы
Площадь: 447.20 м2
Отделка:выполнена стандартная офисная отделка
894 400 в месяц
24 000 в год за м2
Позвонить Подробнее
Шелепиха (20 мин. 🚶)
Москва, 1-й Магистральный проезд, 11с1
Бизнес-центр «Интерьер»
Тип: Офисы
Площадь: 290.00 м2
Отделка:отделка в стиле Loft
580 000 в месяц
24 000 в год за м2
Позвонить Подробнее
Пролетарская (2 мин. 🚶)
Москва, Волгоградский проспект, 2
Офисное здание «Волгоградский 2»
Тип: Офисы
Площадь: 304.80 м2
Отделка:выполнена стандартная офисная отделка
565 150 в месяц
22 250 в год за м2
Позвонить Подробнее
Электрозаводская (15 мин. 🚶)
Москва, Большая Почтовая улица, 26Вс2
Бизнес-центр «Пост Плаза»
Тип: Офисы
Площадь: 155.60 м2
Отделка:качественная отделка
253 109 в месяц
19 520 в год за м2
Позвонить Подробнее