Аренда торгового помещения Жилое здание "Дмитрия Ульянова, 24/1"

Аренда торгового помещения Жилое здание Аренда торгового помещения Жилое здание Аренда торгового помещения Жилое здание Аренда торгового помещения Жилое здание Аренда торгового помещения Жилое здание
Аренда торгового помещения Жилое здание Аренда торгового помещения Жилое здание Аренда торгового помещения Жилое здание Аренда торгового помещения Жилое здание Аренда торгового помещения Жилое здание
Москва, улица Дмитрия Ульянова, 24/1
Позвоните по телефону +7 495 230-28-26, либо оставьте заявку на просмотр прямо сейчас и узнайте условия специального предложения по объекту.
загрузка карты...
Аренда в год за м2 208 696 ₽
Аренда в месяц 280 000 ₽
Схема сделки прямая аренда
Общие
ID 58000
Тип сделки Аренда
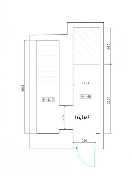
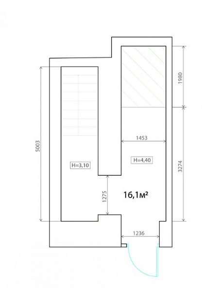
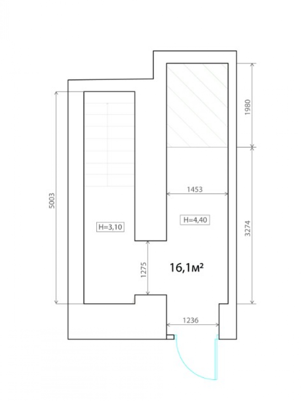
Площадь 16.10
Площадь всего 39647.00
Тип объекта Жилое здание
Этаж 1
Всего этажей в здании 8
Метраж по этажам
Информация об объекте
Состояние объекта рабочее
Состояние блока Shell and Core
Планировка Открытая
Нюансы Отдельный вход
Торговая недвижимость
Линия домов 1 линия
Возможности Витрины,Место для рекламы,Проходное место,Проездное место
Электр. мощность (кВт) 15
Коммерческие условия
Аренда в год за м2 208 696 ₽
Аренда в месяц 280 000 ₽
Схема сделки прямая аренда
Тип собственника Юридическое лицо

Описание объекта
Предлагается в аренду торговое помещение по адресу: Дмитрия Ульянова, 24. Помещение на 1 этаже, общей площадью 16,10 м2. Помещение расположено напротив входа/выхода из станции метро «Академическая». Первая фасадная линия. Интенсивный пешеходный трафик вдоль помещения. Густонаселенный жилой массив с развитой инфраструктурой и сложившимся торговым окружением.


Высота потолков 3,10-4,40 метров. Вход отдельный с фасада. Выделенная электрическая мощность 15 кВт.

Нужна консультация по подбору торговых площадей для аренды?

Наши специалисты подберут для вас самые выгодные варианты для долгосрочного инвестирования,
помогут в сопровождении и сделки, проверят все юридические вопросы касаемо приобретения недвижимости.

* Нажимая на кнопку «Отправить», Вы даете согласие на обработку персональных данных в соответствии с Политикой конфиденциальности

Похожие объекты

Смоленская (Филевская) Смоленская (Арбатско-Покровская) (2 мин. 🚶)
Москва, Карманицкий переулок, 9
БЦ Арбат
Тип: Торговое помещение
Площадь: 16.60 м2
Мощность:15 кВт
300 000 в месяц
216 867 в год за м2
Позвонить Подробнее
Университет (17 мин. 🚗)
Москва, улица Крупской, 8к2
Жилое здание "Крупской, 8к2"
Тип: Торговое помещение
Площадь: 15.00 м2
Мощность:15 кВт
30 000 в месяц
24 000 в год за м2
Позвонить Подробнее
Орехово (2 мин. 🚶)
Москва, Шипиловский проезд, 39к3
ОСЗ "Шипиловский проезд дом 39к3 "
Тип: Торговое помещение
Площадь: 17.50 м2
200 000 в месяц
137 143 в год за м2
Позвонить Подробнее
Планерная (5 мин. 🚶)
Москва, Планерная улица, 12к1
Жилое здание "Планерная 12к1"
Тип: Торговое помещение
Площадь: 17.60 м2
310 000 в месяц
211 364 в год за м2
Позвонить Подробнее
Аэропорт (1 мин. 🚶)
Москва, Ленинградский проспект, 62с26
ОСЗ "Ленинградский пр-т., д. 62 стр.26"
Тип: Торговое помещение
Площадь: 14.40 м2
200 000 в месяц
166 667 в год за м2
Позвонить Подробнее
Крестьянская Застава (1 мин. 🚶)
Москва, Динамовская улица, 1А
Деловой центр у метро
Тип: Торговое помещение
Площадь: 14.70 м2
Мощность:10 кВт
214 375 в месяц
175 000 в год за м2
Позвонить Подробнее
Коломенская (2 мин. 🚶)
Москва, проспект Андропова, 19А
ОСЗ "Пр-т Андропова, 19А"
Тип: Торговое помещение
Площадь: 15.00 м2
Мощность:5 кВт
150 000 в месяц
120 000 в год за м2
Позвонить Подробнее
Улица 1905 года (5 мин. 🚶)
Москва, Звенигородское шоссе, 3Ас1
Жилой дом "звенигородское ш. 3Ас1"
Тип: Торговое помещение
Площадь: 15.20 м2
225 000 в месяц
177 632 в год за м2
Позвонить Подробнее

Спец. предложение

Профсоюзная (2 мин. 🚶)
Москва, Нахимовский проспект, 46
Жилое здание "Нахимовский проспект, 46"
Тип: Торговое помещение
Площадь: 16.00 м2
Мощность:15 кВт
185 000 в месяц
138 750 в год за м2
Позвонить Подробнее
Китай-город (3 мин. 🚶)
Москва, Улица Солянка, 2/6
Особняк «Солянка 2/6»
Тип: Торговое помещение
Площадь: 15.50 м2
350 000 в месяц
270 968 в год за м2
Позвонить Подробнее
Арбатская (Филевская) Арбатская (Арбатско-Покровская) (10 мин. 🚶)
Москва, Малая Никитская улица, 8/1
Жилое здание Малая Никитская, 8/1
Тип: Торговое помещение
Площадь: 65.50 м2
1 100 000 в месяц
201 527 в год за м2
Позвонить Подробнее
Смоленская (Филевская) Смоленская (Арбатско-Покровская) (2 мин. 🚶)
Москва, Карманицкий переулок, 9
БЦ Арбат
Тип: Торговое помещение
Площадь: 16.60 м2
Мощность:15 кВт
300 000 в месяц
216 867 в год за м2
Позвонить Подробнее
Планерная (5 мин. 🚶)
Москва, Планерная улица, 12к1
Жилое здание "Планерная 12к1"
Тип: Торговое помещение
Площадь: 17.60 м2
310 000 в месяц
211 364 в год за м2
Позвонить Подробнее
Октябрьское Поле (1 мин. 🚶)
Москва, улица Маршала Бирюзова, 16
Жилое здание
Тип: Торговое помещение
Площадь: 43.60 м2
750 000 в месяц
206 422 в год за м2
Позвонить Подробнее
Новокузнецкая (2 мин. 🚶)
Москва, Пятницкая улица, 16с1
Жилое здание "Пятницкая улица, 16с1"
Тип: Торговое помещение
Площадь: 78.20 м2
1 250 000 в месяц
191 816 в год за м2
Позвонить Подробнее
Лубянка (4 мин. 🚶)
Москва, Мясницкая улица, 8/2
Офисное здание «Мясницкая 8/2»
Тип: Торговое помещение
Площадь: 90.50 м2
1 500 000 в месяц
198 895 в год за м2
Позвонить Подробнее
Лубянка (4 мин. 🚶)
Москва, Мясницкая улица, 8/2
Офисное здание «Мясницкая 8/2»
Тип: Торговое помещение
Площадь: 75.30 м2
1 350 000 в месяц
215 139 в год за м2
Позвонить Подробнее
Белорусская (9 мин. 🚶)
Москва, Лесная улица, 20с3
БЦ "Депо Лесная"
Тип: Торговое помещение
Площадь: 18.23 м2
300 000 в месяц
197 477 в год за м2
Позвонить Подробнее
Новокузнецкая (3 мин. 🚶)
Москва, Пятницкая улица, 16
Административное здание "Пятницкая улица д. 16"
Тип: Торговое помещение
Площадь: 78.20 м2
1 250 000 в месяц
191 816 в год за м2
Позвонить Подробнее
Академическая (7 мин. 🚶)
Москва, улица Дмитрия Ульянова, 10/1к1
Жилое здание "улица Дмитрия Ульянова, 10/1к1"
Тип: Торговое помещение
Площадь: 44.10 м2
290 000 в месяц
78 912 в год за м2
Позвонить Подробнее
Академическая (7 мин. 🚶)
Москва, улица Дмитрия Ульянова, 10/1к1
Жилое здание "улица Дмитрия Ульянова, 10/1к1"
Тип: Торговое помещение
Площадь: 38.40 м2
260 000 в месяц
81 250 в год за м2
Позвонить Подробнее
Академическая (15 мин. 🚶)
Москва, Ленинский проспект, 61/1
Жилое здание "Ленинский проспект, 61/1"
Тип: Торговое помещение
Площадь: 243.00 м2
800 000 в месяц
39 506 в год за м2
Позвонить Подробнее
Академическая (3 мин. 🚶)
Москва, Профсоюзная улица, 5/9
Жилое здание "Профсоюзная улица, 5/9"
Тип: Торговое помещение
Площадь: 33.40 м2
380 000 в месяц
136 527 в год за м2
Позвонить Подробнее
Академическая (3 мин. 🚶)
Москва, Профсоюзная улица, 5/9
Жилое здание "Профсоюзная улица, 5/9"
Тип: Торговое помещение
Площадь: 212.00 м2
950 000 в месяц
53 774 в год за м2
Позвонить Подробнее