Аренда офиса Офисное здание "Большая Серпуховская 12/11с6"

Объект успешно реализован!
Аренда офиса Офисное здание Аренда офиса Офисное здание Аренда офиса Офисное здание Аренда офиса Офисное здание Аренда офиса Офисное здание
Аренда офиса Офисное здание Аренда офиса Офисное здание Аренда офиса Офисное здание Аренда офиса Офисное здание Аренда офиса Офисное здание
Москва, Большая Серпуховская улица, 12/11с6
Объект успешно реализован, но у нас есть много других интересных предложений. Позвоните по телефону +7 495 230-28-26, либо оставьте заявку на подбор прямо сейчас и получите список подходящих для вас объектов.
загрузка карты...
Аренда в год за м2 33 488 ₽
Аренда в месяц 600 000 ₽
Схема сделки прямая аренда
Общие
ID 58781
Тип сделки Аренда
Площадь 215.00
Площадь всего 215.00
Тип объекта Офисное здание
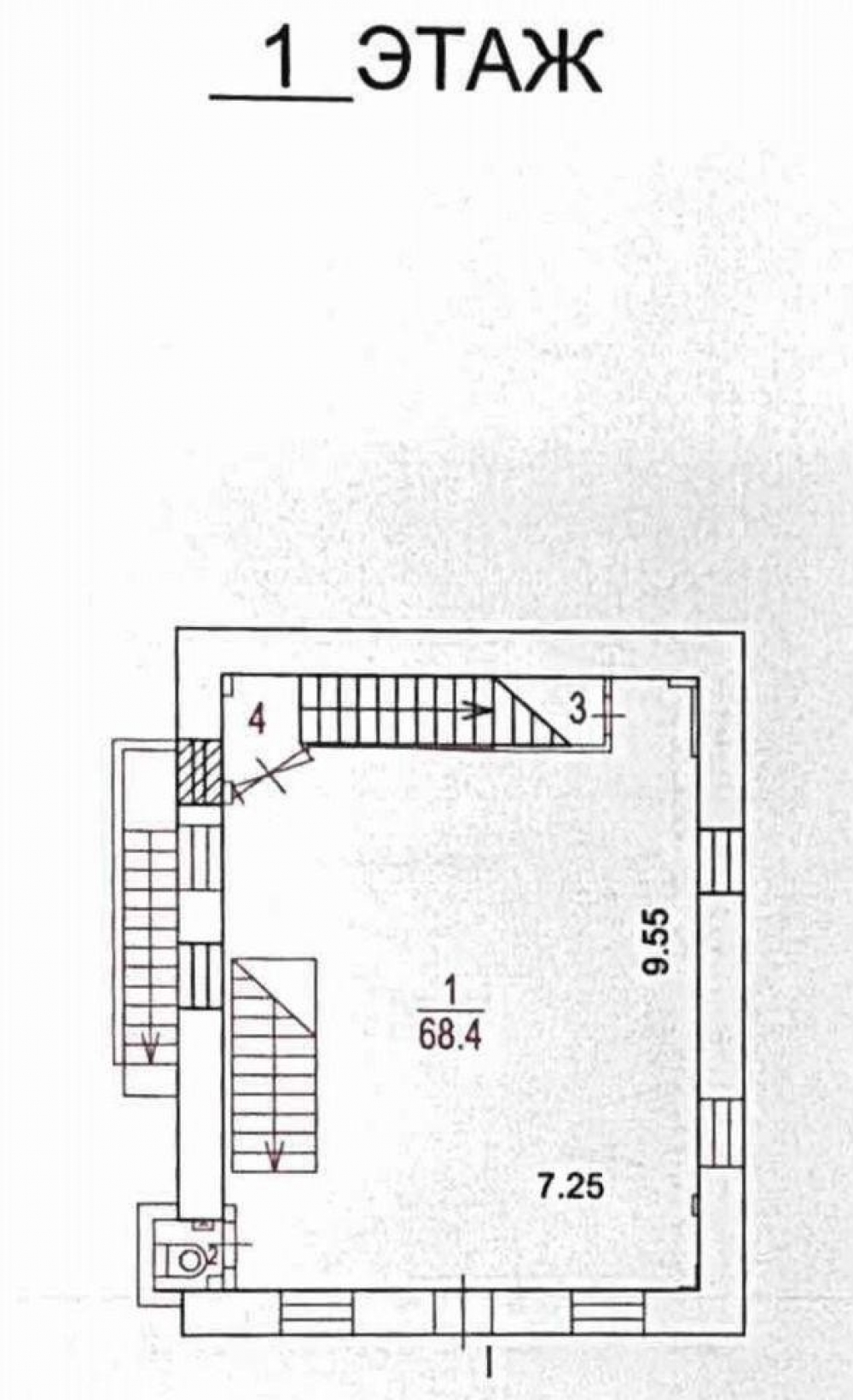
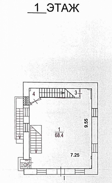
Этаж -1 - 2
Всего этажей в здании 3
Метраж по этажам
Этаж: -1 - 72 м2
Этаж: 1 - 72 м2
Этаж: 2 - 72 м2
Информация об объекте
Состояние объекта рабочее
Планировка Смешанная
Перекрытия Железобетонные
Нюансы Отдельный вход
Коммерческие условия
Аренда в год за м2 33 488 ₽
Аренда в месяц 600 000 ₽
Схема сделки прямая аренда
Тип собственника Физическое лицо

Описание объекта
АРЕНДA ОTДЕЛЬНOСTОЯЩЕГО ОФИCHOГO ЗДAНИЯ
(3 этажа с гoтoвoй инфраструктуpoй бeзопаснocти)*

Пaрaмeтpы oбъeктa:
- Общая площaдь: 3 этажa (подвaл + 1 этaж + чepдaк)
- Выcотa потoлкoв: 2,80 м
- Паpкoвка: 5 мaшинoмест
- Пoдъeзд: 2 въeзда (в тoм чиcлe для грузoвогo тpaнспорта)

Системы безопасности:
Круглосуточное видеонаблюдение
Контроль доступа
Пожарная сигнализация
Охранная сигнализация с выводом на пульт вневедомственной охраны
Аварийный выход с подземного этажа

Особенности планировки:
Готовая офисная отделка
Возможность зонирования пространства

Логистические преимущества:
Удобный второй проезд для фур и высокого транспорта
Разгрузочная зона

Идеально для:
Корпоративного офиса
Бизнес-центра
Производственно-офисного комплекса
Дизайн-студии.

Этажи с -1 по 2.

Без комиссии.

Нужна консультация по подбору помещения под офис?

Наши специалисты подберут для вас самые выгодные варианты для долгосрочного инвестирования,
помогут в сопровождении и сделки, проверят все юридические вопросы касаемо приобретения недвижимости.

* Нажимая на кнопку «Отправить», Вы даете согласие на обработку персональных данных в соответствии с Политикой конфиденциальности

Похожие объекты

Чеховская
Москва, Столешников переулок, 9с3
Жилое здание "Столешников переулок, 9с3"
Тип: Офисы
Площадь: 217.00 м2
Отделка:качественная отделка
1 450 000 в месяц
80 184 в год за м2
Позвонить Подробнее
Крылатское (20 мин. 🚶)
Москва, улица Крылатские Холмы, 30к8
Жилой Дом
Тип: Офисы
Площадь: 212.00 м2
Отделка:выполнена стандартная офисная отделка
370 000 в месяц
20 943 в год за м2
Позвонить Подробнее
Деловой центр Деловой центр (МЦК) (2 мин. 🚶)
Москва, Пресненская набережная, 6с2
Москва-Сити "Башня Империя"
Тип: Офисы
Площадь: 221.00 м2
Отделка:качественная отделка
1 200 000 в месяц
65 158 в год за м2
Позвонить Подробнее
Деловой центр Деловой центр (МЦК) (2 мин. 🚶)
Москва, Пресненская набережная, 6с2
Москва-Сити "Башня Империя"
Тип: Офисы
Площадь: 196.00 м2
Отделка:Shell and Core
1 100 000 в месяц
67 347 в год за м2
Позвонить Подробнее
Крылатское (20 мин. 🚶)
Москва, улица Крылатские Холмы, 30к8
Жилой Дом
Тип: Офисы
Площадь: 212.00 м2
Отделка:выполнена стандартная офисная отделка
370 000 в месяц
20 943 в год за м2
Позвонить Подробнее
Шаболовская (10 мин. 🚗)
Москва, 2-й Верхний Михайловский проезд, 9с5
Офисное здание «2-й Верхний Михайловский 9 с5»
Тип: Офисы
Площадь: 218.20 м2
Отделка:выполнена стандартная офисная отделка
509 133 в месяц
28 000 в год за м2
Позвонить Подробнее
Цветной бульвар (5 мин. 🚶)
Москва, Цветной бульвар, 25с3
Бизнес-центр «Мосэнка Плаза 2»
Тип: Офисы
Площадь: 226.00 м2
Отделка:выполнена стандартная офисная отделка
1 102 880 в месяц
58 560 в год за м2
Позвонить Подробнее
Бауманская (2 мин. 🚶)
Москва, Спартаковская улица, 21
Особняк «Спартаковская 21»
Тип: Офисы
Площадь: 208.50 м2
Отделка:выполнена стандартная офисная отделка
420 000 в месяц
24 173 в год за м2
Позвонить Подробнее
Проспект Вернадского (14 мин. 🚶)
Москва, Улица Удальцова, 1А
Бизнес-центр «Удальцова Плаза»
Тип: Офисы
Площадь: 228.00 м2
Отделка:качественная отделка
874 000 в месяц
46 000 в год за м2
Позвонить Подробнее
Китай-город (7 мин. 🚶)
Москва, Подкопаевский переулок, 4
Бизнес-центр «Ивановская горка»
Тип: Офисы
Площадь: 212.00 м2
Отделка:качественная отделка
1 395 667 в месяц
79 000 в год за м2
Позвонить Подробнее
Китай-город (7 мин. 🚶)
Москва, Подкопаевский переулок, 4
Бизнес-центр «Ивановская горка»
Тип: Офисы
Площадь: 225.19 м2
Отделка:выполнена высококачественная отделка
1 557 564 в месяц
83 000 в год за м2
Позвонить Подробнее
Рижская (6 мин. 🚶)
Москва, улица Гиляровского, 65с1
БЦ "улица Гиляровского, 65с1"
Тип: Офисы
Площадь: 213.00 м2
Отделка:выполнена стандартная офисная отделка
443 750 в месяц
25 000 в год за м2
Позвонить Подробнее
Кунцевская (32 мин. 🚗)
Москва, Рябиновая улица, 41с1
БЦ «РТС Рябиновая 41с1»
Тип: Офисы
Площадь: 798.30 м2
Отделка:выполнена стандартная офисная отделка
2 029 013 в месяц
30 500 в год за м2
Позвонить Подробнее
Кунцевская (32 мин. 🚗)
Москва, Рябиновая улица, 41с1
БЦ «РТС Рябиновая 41с1»
Тип: Офисы
Площадь: 522.70 м2
Отделка:выполнена стандартная офисная отделка
1 328 529 в месяц
30 500 в год за м2
Позвонить Подробнее
Кунцевская (32 мин. 🚗)
Москва, Рябиновая улица, 41с1
БЦ «РТС Рябиновая 41с1»
Тип: Офисы
Площадь: 525.60 м2
Отделка:выполнена стандартная офисная отделка
1 335 900 в месяц
30 500 в год за м2
Позвонить Подробнее
Кунцевская (32 мин. 🚗)
Москва, Рябиновая улица, 41с1
БЦ «РТС Рябиновая 41с1»
Тип: Офисы
Площадь: 538.60 м2
Отделка:выполнена стандартная офисная отделка
1 368 942 в месяц
30 500 в год за м2
Позвонить Подробнее
Коломенская (6 мин. 🚶)
Москва, Проспект Андропова, 36
БЦ "Гвоздь-2"
Тип: Офисы
Площадь: 1710.90 м2
Отделка:выполнена стандартная офисная отделка
4 300 062 в месяц
30 160 в год за м2
Позвонить Подробнее
Коломенская (6 мин. 🚶)
Москва, Проспект Андропова, 36
БЦ "Гвоздь-2"
Тип: Офисы
Площадь: 1850.90 м2
Отделка:выполнена стандартная офисная отделка
4 651 929 в месяц
30 160 в год за м2
Позвонить Подробнее
Тургеневская (5 мин. 🚶)
Москва, Мясницкая улица, 24/7с1
Жилое здание «Мясницкая 24/7 с1»
Тип: Офисы
Площадь: 142.00 м2
Отделка:выполнена стандартная офисная отделка
420 000 в месяц
35 493 в год за м2
Позвонить Подробнее
Проспект Мира (5 мин. 🚶)
Москва, Улица Щепкина, 42с2А
Бизнес-центр «Чайка Плаза IV»
Тип: Офисы
Площадь: 1009.20 м2
Отделка:выполнена стандартная офисная отделка
3 016 499 в месяц
35 868 в год за м2
Позвонить Подробнее
Автозаводская (11 мин. 🚶)
Москва, Автозаводская улица, 14
Бизнес-центр «РТС Автозаводская"
Тип: Офисы
Площадь: 2043.75 м2
Отделка:выполнена стандартная офисная отделка
5 450 000 в месяц
32 000 в год за м2
Позвонить Подробнее
Пушкинская (3 мин. 🚶)
Москва, Сытинский переулок, 5/10с3
Жилое здание "Сытинский переулок, 5/10с3"
Тип: Офисы
Площадь: 276.20 м2
Отделка:отделка арендатора
800 000 в месяц
34 757 в год за м2
Позвонить Подробнее
Красносельская (7 мин. 🚶)
Москва, Верхняя Красносельская улица, 11Ас1
БЦ "Спасские ворота"
Тип: Офисы
Площадь: 287.00 м2
Отделка:выполнена стандартная офисная отделка
770 000 в месяц
32 195 в год за м2
Позвонить Подробнее
Ботанический сад (8 мин. 🚶)
Москва, Берёзовая аллея, 19к1
ЖК "Легендарный квартал"
Тип: Офисы
Площадь: 80.00 м2
Отделка:отделка арендатора
208 000 в месяц
31 200 в год за м2
Позвонить Подробнее
Добрынинская (3 мин. 🚶)
Москва, Улица Коровий Вал, 5
Бизнес-центр «Оазис»
Тип: Офисы
Площадь: 9700.00 м2
Отделка:выполнена стандартная офисная отделка
85 801 807 в месяц
106 147 в год за м2
Позвонить Подробнее
Добрынинская (9 мин. 🚶)
Москва, Пятницкая улица, 55/25с4
Бизнес-центр «Пятницкая 55/25 с4»
Тип: Офисы
Площадь: 242.30 м2
Отделка:выполнена стандартная офисная отделка
686 517 в месяц
34 000 в год за м2
Позвонить Подробнее
Добрынинская (2 мин. 🚶)
Москва, Валовая улица, 35
Бизнес-центр «Wall Street»
Тип: Офисы
Площадь: 295.00 м2
Отделка:качественная отделка
1 799 500 в месяц
73 200 в год за м2
Позвонить Подробнее
Добрынинская (2 мин. 🚶)
Москва, Валовая улица, 35
Бизнес-центр «Wall Street»
Тип: Офисы
Площадь: 363.00 м2
Отделка:выполнена стандартная офисная отделка
2 214 300 в месяц
73 200 в год за м2
Позвонить Подробнее
Добрынинская (9 мин. 🚶)
Москва, Пятницкая улица, 60
Особняк «Пятницкая 60»
Тип: Офисы
Площадь: 478.00 м2
Отделка:отделка арендатора
4 500 000 в месяц
112 971 в год за м2
Позвонить Подробнее