Аренда офиса МФК "Кристалл"

Объект успешно реализован!
Аренда офиса МФК
Москва, Самокатная улица, 4с1
Объект успешно реализован, но у нас есть много других интересных предложений. Позвоните по телефону +7 495 230-28-26, либо оставьте заявку на подбор прямо сейчас и получите список подходящих для вас объектов.
загрузка карты...
Аренда в год за м2 20 000 ₽
Аренда в месяц 588 833 ₽
Схема сделки прямая аренда
Первушина Марина Алексеевна

Объект ведет консультант:

Первушина Марина Алексеевна

Общие
ID 59494
Тип сделки Аренда
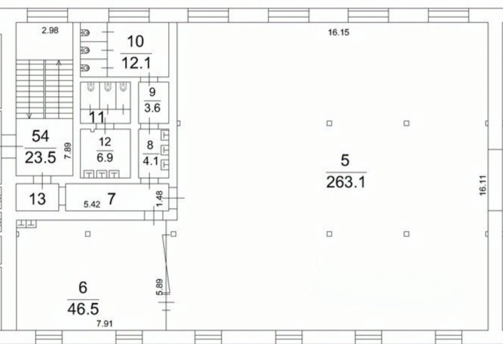
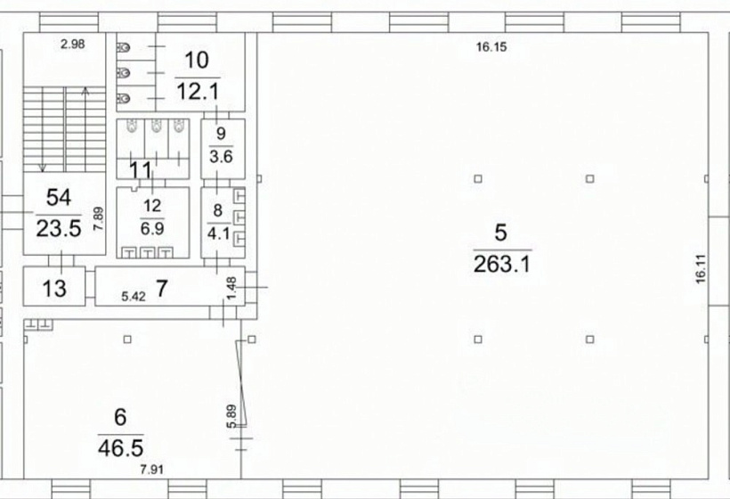
Площадь 353.30
Площадь всего 32682.00
Тип объекта Многофункциональный комплекс
Этаж 2
Всего этажей в здании 8
Метраж по этажам
Информация об объекте
Состояние объекта рабочее
Состояние блока отделка в стиле Loft
Планировка Смешанная
Перекрытия Неизвестно
Нюансы ПСН
Коммерческие условия
Аренда в год за м2 20 000 ₽
Аренда в месяц 588 833 ₽
Схема сделки прямая аренда
Тип собственника Юридическое лицо

Описание объекта
Предлагаем в аренду помещение под офис/шоурум на территории. Бывшего завода Кристалл. Пешая доступность до м. Площадь Ильича. Второй этаж, много окон, потолки 4,50 м, смешанная планировка, ремонт в стиле лофт, системы вентиляции и кондиционирования. Э/э 30квт. Доступ 24/7. Есть наземная парковка. В ставку включена эксплуатация. Помещение свободно к заезду.

Нужна консультация по подбору помещения под офис?

Наши специалисты подберут для вас самые выгодные варианты для долгосрочного инвестирования,
помогут в сопровождении и сделки, проверят все юридические вопросы касаемо приобретения недвижимости.

* Нажимая на кнопку «Отправить», Вы даете согласие на обработку персональных данных в соответствии с Политикой конфиденциальности

Похожие объекты

Комсомольская (8 мин. 🚶)
Москва, Новая Басманная улица, 20с5
Особняк "Н. Басманная 20с5"
Тип: Офисы
Площадь: 318.00 м2
Отделка:требуется косметический ремонт
900 000 в месяц
33 962 в год за м2
Позвонить Подробнее
Проспект Мира (1 мин. 🚶)
Москва, Проспект Мира, 33к1
МФК «Олимпик плаза»
Тип: Офисы
Площадь: 356.95 м2
Отделка:выполнена стандартная офисная отделка
1 100 596 в месяц
37 000 в год за м2
Позвонить Подробнее
Белорусская (4 мин. 🚶)
Москва, 1-я Тверская-Ямская улица, 23с1
Деловой центр "Тверская-Ямская23"
Тип: Офисы
Площадь: 379.10 м2
Отделка:выполнена стандартная офисная отделка
1 326 850 в месяц
42 000 в год за м2
Позвонить Подробнее
Добрынинская (2 мин. 🚶)
Москва, Валовая улица, 35
Бизнес-центр «Wall Street»
Тип: Офисы
Площадь: 363.00 м2
Отделка:выполнена стандартная офисная отделка
2 214 300 в месяц
73 200 в год за м2
Позвонить Подробнее
Цветной бульвар (5 мин. 🚶)
Москва, Цветной бульвар, 30с1
Офисное здание «Цветной 30»
Тип: Офисы
Площадь: 354.90 м2
Отделка:выполнена высококачественная отделка
2 513 875 в месяц
85 000 в год за м2
Позвонить Подробнее
Марьина Роща (14 мин. 🚶)
Москва, Улица Сущёвский Вал, 18
Бизнес-центр «NOVO» (ново)
Тип: Офисы
Площадь: 365.00 м2
Отделка:выполнена высококачественная отделка
1 977 084 в месяц
65 000 в год за м2
Позвонить Подробнее
Речной вокзал (14 мин. 🚶)
Москва, Смольная улица, 24Д
Бизнес-центр «Меридиан»
Тип: Офисы
Площадь: 340.00 м2
Отделка:выполнена стандартная офисная отделка
949 167 в месяц
33 500 в год за м2
Позвонить Подробнее
Багратионовская (4 мин. 🚶)
Москва, Улица Барклая, 13с1
БЦ Барклая 13
Тип: Офисы
Площадь: 371.40 м2
Отделка:выполнена стандартная офисная отделка
742 000 в месяц
23 974 в год за м2
Позвонить Подробнее
Дмитровская (12 мин. 🚶)
Москва, 2-я Хуторская улица, 38А
Бизнес-центр "Мирлэнд"
Тип: Офисы
Площадь: 372.40 м2
Отделка:выполнена стандартная офисная отделка
868 933 в месяц
28 000 в год за м2
Позвонить Подробнее
Китай-город (7 мин. 🚶)
Москва, Подкопаевский переулок, 4
Бизнес-центр «Ивановская горка»
Тип: Офисы
Площадь: 328.00 м2
Отделка:выполнена высококачественная отделка
2 323 333 в месяц
85 000 в год за м2
Позвонить Подробнее
Динамо (10 мин. 🚶)
Москва, Ленинградский проспект, 36с41
Бизнес-центр "MULTISPACE"
Тип: Офисы
Площадь: 373.00 м2
Отделка:качественная отделка
4 526 200 в месяц
145 615 в год за м2
Позвонить Подробнее
Комсомольская (5 мин. 🚶)
Москва, Каланчёвская улица, 15А
БЦ «Каланчевский»
Тип: Офисы
Площадь: 378.60 м2
Отделка:выполнена стандартная офисная отделка
1 105 000 в месяц
35 024 в год за м2
Позвонить Подробнее
Электрозаводская (14 мин. 🚶)
Москва, Бакунинская улица, 73с3
БЦ Бакунинский
Тип: Офисы
Площадь: 896.00 м2
Отделка:выполнена стандартная офисная отделка
1 642 667 в месяц
22 000 в год за м2
Позвонить Подробнее
(9 мин. 🚶)
Москва, Алтуфьевское шоссе, 1/7
Бизнес-центр «Бета центр»
Тип: Офисы
Площадь: 887.80 м2
Отделка:выполнена стандартная офисная отделка
1 331 700 в месяц
18 000 в год за м2
Позвонить Подробнее
Планерная (24 мин. 🚗)
Москва, Химки, улица Панфилова, 19/1
Бизнес-центр «GreenPoint»
Тип: Офисы
Площадь: 480.56 м2
Отделка:выполнена стандартная офисная отделка
760 887 в месяц
19 000 в год за м2
Позвонить Подробнее
Семёновская (7 мин. 🚗)
Москва, улица Ибрагимова, 31к47
БЦ РТС Семёновский
Тип: Офисы
Площадь: 215.90 м2
Отделка:отделка арендатора
378 000 в месяц
21 010 в год за м2
Позвонить Подробнее
Марьино (15 мин. 🚶)
Москва, улица Перерва, 11с1
Технопарк "Перерва"
Тип: Офисы
Площадь: 796.20 м2
Отделка:помещение без отделки
1 459 700 в месяц
22 000 в год за м2
Позвонить Подробнее
Ул. Академика Янгеля (7 мин. 🚶)
Москва, Варшавское шоссе, 148
Бизнес-центр «РТС Варшавский»
Тип: Офисы
Площадь: 824.00 м2
Отделка:выполнена стандартная офисная отделка
1 373 677 в месяц
20 005 в год за м2
Позвонить Подробнее
Ул. Академика Янгеля (7 мин. 🚶)
Москва, Варшавское шоссе, 148
Бизнес-центр «РТС Варшавский»
Тип: Офисы
Площадь: 1392.00 м2
Отделка:выполнена стандартная офисная отделка
2 436 696 в месяц
21 006 в год за м2
Позвонить Подробнее
Ул. Академика Янгеля (7 мин. 🚶)
Москва, Варшавское шоссе, 148
Бизнес-центр «РТС Варшавский»
Тип: Офисы
Площадь: 1903.00 м2
Отделка:выполнена стандартная офисная отделка
3 171 667 в месяц
20 000 в год за м2
Позвонить Подробнее
Ул. Академика Янгеля (7 мин. 🚶)
Москва, Варшавское шоссе, 148
Бизнес-центр «РТС Варшавский»
Тип: Офисы
Площадь: 1953.00 м2
Отделка:выполнена стандартная офисная отделка
3 256 000 в месяц
20 006 в год за м2
Позвонить Подробнее
Речной вокзал (32 мин. 🚗)
Москва, Химки, Ленинградская улица, 25
Бизнес-центр «KHIMKI ONE»
Тип: Офисы
Площадь: 1918.63 м2
Отделка:Shell and Core
3 332 181 в месяц
20 841 в год за м2
Позвонить Подробнее
Электрозаводская (15 мин. 🚶)
Москва, Большая Почтовая улица, 26Вс2
Бизнес-центр «Пост Плаза»
Тип: Офисы
Площадь: 155.60 м2
Отделка:качественная отделка
253 109 в месяц
19 520 в год за м2
Позвонить Подробнее
Университет (5 мин. 🚶)
Москва, Проспект Вернадского, 6
БЦ «Капитолий»
Тип: Офисы
Площадь: 1648.00 м2
Отделка:выполнена стандартная офисная отделка
3 015 840 в месяц
21 960 в год за м2
Позвонить Подробнее
Площадь Ильича (3 мин. 🚶)
Москва, улица Золоторожский Вал, 34с2
Офисное здание «Золоторожский д. 34с1»
Тип: Офисы
Площадь: 381.90 м2
Отделка:выполнена стандартная офисная отделка
786 873 в месяц
24 725 в год за м2
Позвонить Подробнее
Площадь Ильича (20 мин. 🚶)
Москва, Самокатная улица, 1с1
Офисное здание «Самокатная 1 с1»
Тип: Офисы
Площадь: 505.00 м2
Отделка:выполнена стандартная офисная отделка
1 000 000 в месяц
23 762 в год за м2
Позвонить Подробнее
Площадь Ильича (4 мин. 🚶)
Москва, Улица Сергия Радонежского, 13с1
Особняк «Сергия Радонежского 13 с1»
Тип: Офисы
Площадь: 1302.00 м2
2 712 500 в месяц
25 000 в год за м2
Позвонить Подробнее