Продажа торгового помещения ЖК Дом Газпрома

Объект успешно реализован!
Продажа торгового помещения ЖК Дом Газпрома Продажа торгового помещения ЖК Дом Газпрома Продажа торгового помещения ЖК Дом Газпрома
Продажа торгового помещения ЖК Дом Газпрома - превью Продажа торгового помещения ЖК Дом Газпрома - превью Продажа торгового помещения ЖК Дом Газпрома - превью
Москва, Новочерёмушкинская улица, 71/32
Объект успешно реализован, но у нас есть много других интересных предложений. Позвоните по телефону +7 495 230-28-26, либо оставьте заявку на подбор прямо сейчас и получите список подходящих для вас объектов.
загрузка карты...
Общие
ID 59853
Тип сделки Продажа
Площадь 410.20
Площадь всего 45992.00
Тип объекта Жилой комплекс
Этаж 1 - 2
Всего этажей в здании 21
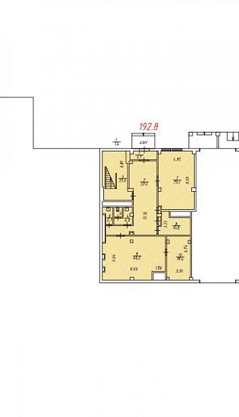
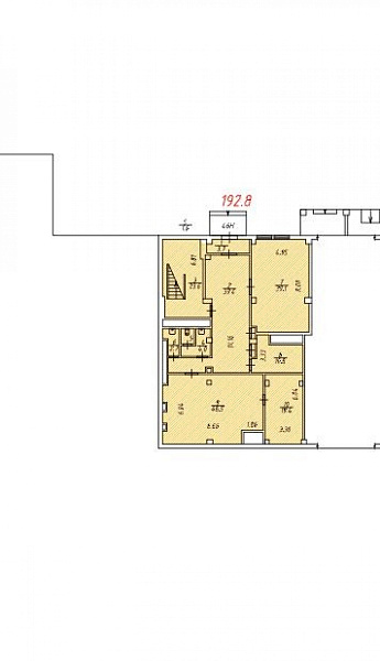
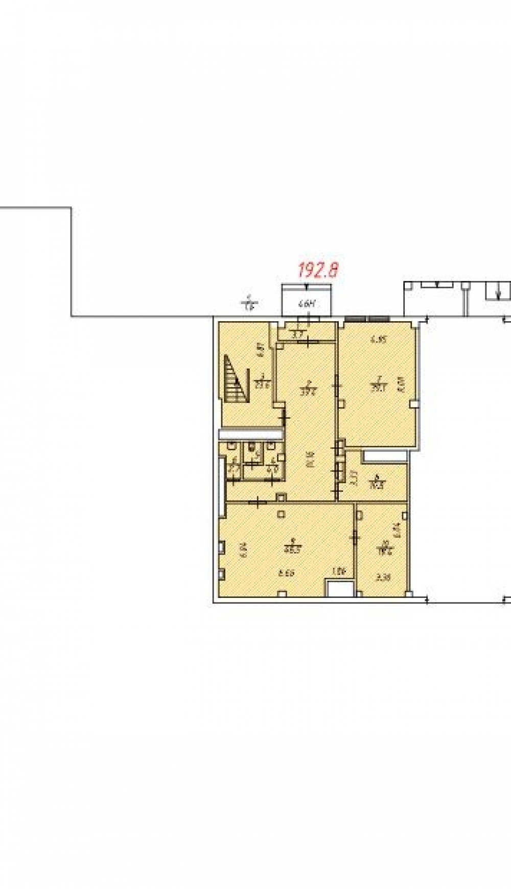
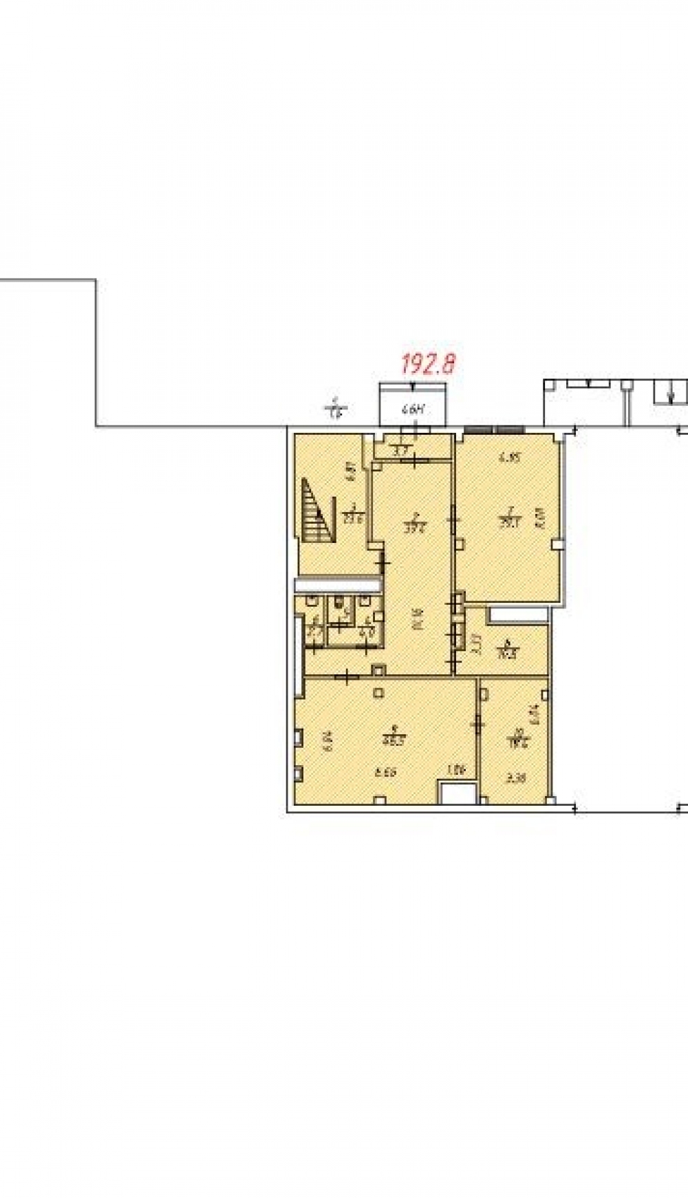
Метраж по этажам
Этаж: 1 - 192.8 м2
Этаж: 2 - 217.4 м2
Информация об объекте
Состояние объекта рабочее
Состояние блока выполнена стандартная офисная отделка
Планировка Залы и кабинеты
Перекрытия Железобетонные
Нюансы Отдельный вход,ПСН
Торговая недвижимость
Линия домов 1 линия
Возможности Витрины,Место для рекламы,Проходное место,Проездное место
Электр. мощность (кВт) 60
Коммерческие условия
За все 98 448 000 ₽
За м 2 240 000 ₽
Тип собственника Юридическое лицо

Описание объекта
Предлагаем на продажу помещение под офис/медицину в ЮЗАО. Стилобат ЖК Дом Газпрома. До м. Новые Черемушки 15 минут пешком.
Двухуровневый блок с отдельным входом со двора, кабинетная планировка, много окон, ремонт необходимо освежить, выделенная мощность 60квт.
Помещение свободно к заезду.

Нужна консультация покупке или продаже торговых помещений?

Наши специалисты подберут для вас самые выгодные варианты для долгосрочного инвестирования,
помогут в сопровождении и сделки, проверят все юридические вопросы касаемо приобретения недвижимости.

* Нажимая на кнопку «Отправить», Вы даете согласие на обработку персональных данных в соответствии с Политикой конфиденциальности

Похожие объекты

Домодедовская (6 мин. 🚗)
Москва, Каширское шоссе, 144к2
ОСЗ "Каширское ш. 144к2"
Тип: Торговое помещение
Площадь: 400.00 м2
Мощность:30 кВт
68 990 000 за все
172 475 за м2
Позвонить Подробнее
Шелепиха (10 мин. 🚶)
Москва, Заречная улица, вл6/1
Бизнес - центр "Эйлер"
Тип: Торговое помещение
Площадь: 431.70 м2
Мощность:100 кВт
377 275 000 за все
873 929 за м2
Позвонить Подробнее
(6 мин. 🚗)
Москва, Новомосковский административный округ, район Внуково, квартал № 19, 1с1
Бизнес-парк "Переделкино"
Тип: Торговое помещение
Площадь: 434.00 м2
Мощность:80 кВт
148 409 560 за все
341 958 за м2
Позвонить Подробнее
Беговая (10 мин. 🚶)
Москва, Беговая улица, 18к2
Жилое здание "Беговая улица, 18к2"
Тип: Торговое помещение
Площадь: 409.00 м2
Мощность:42 кВт
90 000 000 за все
220 049 за м2
Позвонить Подробнее
Котельники (15 мин. 🚗)
Московская область, Котельники, Новорязанское шоссе, 6с4
ЖК "Дюна"
Тип: Торговое помещение
Площадь: 386.16 м2
180 000 000 за все
466 128 за м2
Позвонить Подробнее
Дубровка (30 мин. 🚶)
Москва, улица Эдуарда Стрельцова, 2к1
ЖК «FORIVER (Форивер)»
Тип: Торговое помещение
Площадь: 404.70 м2
Мощность:121 кВт
242 830 000 за все
600 025 за м2
Позвонить Подробнее
Дубровка (30 мин. 🚶)
Москва, улица Эдуарда Стрельцова, 2к1
ЖК «FORIVER (Форивер)»
Тип: Торговое помещение
Площадь: 370.50 м2
Мощность:111 кВт
206 970 000 за все
558 623 за м2
Позвонить Подробнее
Цветной бульвар (5 мин. 🚶)
Москва, Садовая-Каретная улица, 24/7
Жилое здание "Садовая-Каретная улица, 24/7"
Тип: Торговое помещение
Площадь: 377.00 м2
115 000 000 за все
305 040 за м2
Позвонить Подробнее

Спец. предложение

Ховрино (32 мин. 🚶)
Московская область, городской округ Солнечногорск, посёлок городского типа Менделеево, Институтская улица, 19
Жилой дом "Институтская 19"
Тип: Торговое помещение
Площадь: 440.00 м2
Мощность:60 кВт
45 000 000 за все
102 273 за м2
Позвонить Подробнее
Парк культуры (11 мин. 🚶)
Москва, улица Бурденко, 3
ЖК "Бурденко"
Тип: Торговое помещение
Площадь: 437.70 м2
Мощность:116 кВт
684 864 125 за все
1 564 688 за м2
Позвонить Подробнее
Зорге (5 мин. 🚶)
Москва, 3-я Хорошёвская улица, 27к3
ЖК: Хорошёвский
Тип: Торговое помещение
Площадь: 430.00 м2
Мощность:88 кВт
280 000 000 за все
651 163 за м2
Позвонить Подробнее
Новокосино (90 мин. 🚗)
Московская область, Орехово-Зуево, Набережная улица, 20
Жилое здание "Орехово-Зуево, Набережная улица, 20"
Тип: Торговое помещение
Площадь: 422.00 м2
Мощность:50 кВт
20 000 000 за все
47 393 за м2
Позвонить Подробнее
Печатники (15 мин. 🚶)
Москва, ЖК Портленд
ЖК "Портленд"
Тип: Торговое помещение
Площадь: 177.30 м2
95 848 380 за все
540 600 за м2
Позвонить Подробнее
(6 мин. 🚶)
Москва, жилой комплекс Преображенская Площадь
ЖК "Преображенская площадь"
Тип: Торговое помещение
Площадь: 176.20 м2
94 852 231 за все
538 321 за м2
Позвонить Подробнее
Люблино (2 мин. 🚶)
Москва, Совхозная улица, 10Б
ЖК "L`CLUB"
Тип: Торговое помещение
Площадь: 123.00 м2
Мощность:50 кВт
92 000 000 за все
747 967 за м2
Позвонить Подробнее
Деловой центр Деловой центр (МЦК) (7 мин. 🚶)
Москва, Пресненская набережная, 12
Москва-Сити «Башня Федерация»
Тип: Торговое помещение
Площадь: 92.00 м2
Мощность:25 кВт
99 000 000 за все
1 076 087 за м2
Позвонить Подробнее
Бибирево (14 мин. 🚶)
Москва, Алтуфьевское шоссе, 79Ас3
Бизнес-центр RЕNТOWER
Тип: Торговое помещение
Площадь: 604.00 м2
Мощность:270 кВт
99 660 000 за все
165 000 за м2
Позвонить Подробнее
Беговая (10 мин. 🚶)
Москва, Беговая улица, 18к2
Жилое здание "Беговая улица, 18к2"
Тип: Торговое помещение
Площадь: 409.00 м2
Мощность:42 кВт
90 000 000 за все
220 049 за м2
Позвонить Подробнее
Дубровка (30 мин. 🚶)
Москва, улица Эдуарда Стрельцова, 2к1
ЖК «FORIVER (Форивер)»
Тип: Торговое помещение
Площадь: 139.70 м2
Мощность:42 кВт
90 920 000 за все
650 823 за м2
Позвонить Подробнее
Киевская (7 мин. 🚶)
Москва, Брянская улица, 12
Жилой дом "Брянская 12"
Тип: Торговое помещение
Площадь: 76.50 м2
96 600 000 за все
1 262 745 за м2
Позвонить Подробнее

Московская область, Люберцы, улица 8 Марта, 32
ЖК Влюберцы
Тип: Торговое помещение
Площадь: 207.00 м2
Мощность:120 кВт
99 000 000 за все
478 261 за м2
Позвонить Подробнее
Калужская (7 мин. 🚶)
Москва, Старокалужское шоссе, 62
Бизнес-центр «Vallex»
Тип: Торговое помещение
Площадь: 268.40 м2
Мощность:35 кВт
103 344 000 за все
385 037 за м2
Позвонить Подробнее
Планерная (5 мин. 🚶)
Москва, Планерная улица, 12к1
Жилое здание "Планерная 12к1"
Тип: Торговое помещение
Площадь: 99.10 м2
94 500 000 за все
953 582 за м2
Позвонить Подробнее
Театральная (6 мин. 🚶)
Москва, улица Большая Дмитровка, 5/6с8
Административное здание «Большая Дмитровка 5/6 с8»
Тип: Торговое помещение
Площадь: 100.00 м2
Мощность:100 кВт
89 000 000 за все
890 000 за м2
Позвонить Подробнее
Калужская (12 мин. 🚗)
Москва, улица Обручева, 11
ТЦ "улица Обручева, 11"
Тип: Торговое помещение
Площадь: 510.10 м2
150 000 000 за все
294 060 за м2
Позвонить Подробнее
Калужская (7 мин. 🚶)
Москва, Старокалужское шоссе, 62
Бизнес-центр «Vallex»
Тип: Торговое помещение
Площадь: 73.30 м2
24 189 000 за все
330 000 за м2
Позвонить Подробнее
Калужская (7 мин. 🚶)
Москва, Старокалужское шоссе, 62
Бизнес-центр «Vallex»
Тип: Торговое помещение
Площадь: 106.60 м2
35 178 000 за все
330 000 за м2
Позвонить Подробнее
Калужская (7 мин. 🚶)
Москва, Старокалужское шоссе, 62
Бизнес-центр «Vallex»
Тип: Торговое помещение
Площадь: 97.30 м2
37 460 500 за все
385 000 за м2
Позвонить Подробнее
Калужская (7 мин. 🚶)
Москва, Старокалужское шоссе, 62
Бизнес-центр «Vallex»
Тип: Торговое помещение
Площадь: 95.20 м2
36 176 000 за все
380 000 за м2
Позвонить Подробнее
Калужская (7 мин. 🚶)
Москва, Старокалужское шоссе, 62
Бизнес-центр «Vallex»
Тип: Торговое помещение
Площадь: 268.40 м2
Мощность:35 кВт
103 344 000 за все
385 037 за м2
Позвонить Подробнее
Калужская (7 мин. 🚶)
Москва, Старокалужское шоссе, 62
Бизнес-центр «Vallex»
Тип: Торговое помещение
Площадь: 99.20 м2
Мощность:35 кВт
32 736 000 за все
330 000 за м2
Позвонить Подробнее