Аренда торгового помещения МФК "Кристалл"

Объект успешно реализован!
Аренда торгового помещения МФК
Москва, Самокатная улица, 4с1
Объект успешно реализован, но у нас есть много других интересных предложений. Позвоните по телефону +7 495 230-28-26, либо оставьте заявку на подбор прямо сейчас и получите список подходящих для вас объектов.
загрузка карты...
Аренда в год за м2 20 000 ₽
Аренда в месяц 588 833 ₽
Схема сделки прямая аренда
Первушина Марина Алексеевна

Объект ведет консультант:

Первушина Марина Алексеевна

Общие
ID 59961
Тип сделки Аренда
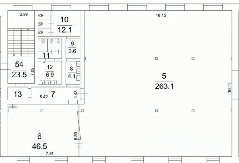
Площадь 353.30
Площадь всего 32682.00
Тип объекта Многофункциональный комплекс
Этаж 2
Всего этажей в здании 8
Метраж по этажам
Информация об объекте
Состояние объекта рабочее
Состояние блока отделка в стиле Loft
Планировка Смешанная
Перекрытия Неизвестно
Нюансы ПСН
Коммерческие условия
Аренда в год за м2 20 000 ₽
Аренда в месяц 588 833 ₽
Схема сделки прямая аренда
Тип собственника Юридическое лицо

Описание объекта
Предлагаем в аренду помещение под офис/шоурум на территории. Бывшего завода Кристалл. Пешая доступность до м. Площадь Ильича. Второй этаж, много окон, потолки 4,50 м, смешанная планировка, ремонт в стиле лофт, системы вентиляции и кондиционирования. Э/э 30квт. Доступ 24/7. Есть наземная парковка. В ставку включена эксплуатация. Помещение свободно к заезду.

Нужна консультация по подбору торговых площадей для аренды?

Наши специалисты подберут для вас самые выгодные варианты для долгосрочного инвестирования,
помогут в сопровождении и сделки, проверят все юридические вопросы касаемо приобретения недвижимости.

* Нажимая на кнопку «Отправить», Вы даете согласие на обработку персональных данных в соответствии с Политикой конфиденциальности

Похожие объекты

Тверская (5 мин. 🚶)
Москва, Тверская улица, 15
Жилое здание "Тверская улица д. 15"
Тип: Торговое помещение
Площадь: 380.00 м2
Мощность:150 кВт
3 500 000 в месяц
110 526 в год за м2
Позвонить Подробнее
Добрынинская (5 мин. 🚶)
Москва, Улица Большая Полянка, 51А/9
Административное здание «Большая Полянка 51а/9»
Тип: Торговое помещение
Площадь: 345.00 м2
Мощность:70 кВт
1 100 000 в месяц
38 261 в год за м2
Позвонить Подробнее
Волоколамская (7 мин. 🚶)
Москва, Пятницкое шоссе, 3
Офисное здание «Пятницкое 3»
Тип: Торговое помещение
Площадь: 350.00 м2
Мощность:20 кВт
612 500 в месяц
21 000 в год за м2
Позвонить Подробнее
Кожуховская (2 мин. 🚶)
Москва, улица Трофимова, 35/20
Жилое здание "Трофимова 35/20"
Тип: Торговое помещение
Площадь: 356.00 м2
Мощность:80 кВт
1 434 000 в месяц
48 337 в год за м2
Позвонить Подробнее
Нагатинская (15 мин. 🚶)
Москва, 1-й Нагатинский проезд, 11к1
ЖК «Скай Форт»
Тип: Торговое помещение
Площадь: 346.70 м2
Мощность:32 кВт
693 400 в месяц
24 000 в год за м2
Позвонить Подробнее
Некрасовка (10 мин. 🚶)
Москва, Рождественская улица, 27к1
Жилой дом "Рождественская 27"
Тип: Торговое помещение
Площадь: 363.40 м2
Мощность:25 кВт
830 000 в месяц
27 408 в год за м2
Позвонить Подробнее
Водный стадион (14 мин. 🚶)
Москва, Смольная улица, 2
Бизнес-центр «SMOLA»
Тип: Торговое помещение
Площадь: 341.00 м2
Мощность:20 кВт
900 000 в месяц
31 672 в год за м2
Позвонить Подробнее
Маяковская (6 мин. 🚶)
Москва, Большая Садовая улица, 5
Гостинично-офисный комплекс «Пекин»
Тип: Торговое помещение
Площадь: 380.20 м2
Мощность:100 кВт
1 500 000 в месяц
47 344 в год за м2
Позвонить Подробнее
Красные Ворота (10 мин. 🚶)
Москва, проспект Академика Сахарова, 7
ЖК "RED7"
Тип: Торговое помещение
Площадь: 341.40 м2
Мощность:85 кВт
1 075 410 в месяц
37 800 в год за м2
Позвонить Подробнее
Марксистская (10 мин. 🚶)
Москва, Таганская улица, 31/22
Жилое здание «Таганская 31/22»
Тип: Торговое помещение
Площадь: 336.00 м2
Мощность:104 кВт
1 000 000 в месяц
35 714 в год за м2
Позвонить Подробнее
Свиблово (40 мин. 🚗)
Московская область, городской округ Мытищи, деревня Пирогово, улица Ильинского, 8
ЖК "Пироговская Ривьера»
Тип: Торговое помещение
Площадь: 349.80 м2
Мощность:34 кВт
804 540 в месяц
27 600 в год за м2
Позвонить Подробнее
(11 мин. 🚗)
Москва, Коровинское шоссе, 29
ЖК "Коровинское шоссе, 29"
Тип: Торговое помещение
Площадь: 362.00 м2
1 086 000 в месяц
36 000 в год за м2
Позвонить Подробнее
Аннино (1 мин. 🚶)
Москва, Варшавское шоссе, 143А
ТЦ Аннино
Тип: Торговое помещение
Площадь: 1449.90 м2
Мощность:100 кВт
2 609 820 в месяц
21 600 в год за м2
Позвонить Подробнее
Бабушкинская (13 мин. 🚗)
Москва, улица Коминтерна, 10к1
ЖК "Коминтерна, 10к1"
Тип: Торговое помещение
Площадь: 190.30 м2
Мощность:24 кВт
315 000 в месяц
19 863 в год за м2
Позвонить Подробнее
Волоколамская (7 мин. 🚶)
Москва, Пятницкое шоссе, 3
Офисное здание «Пятницкое 3»
Тип: Торговое помещение
Площадь: 350.00 м2
Мощность:20 кВт
612 500 в месяц
21 000 в год за м2
Позвонить Подробнее
Минская (15 мин. 🚶)
Москва, улица Улофа Пальме, 1
ЖК «Депутатский Дом»
Тип: Торговое помещение
Площадь: 469.00 м2
Мощность:60 кВт
850 000 в месяц
21 748 в год за м2
Позвонить Подробнее
Ясенево (15 мин. 🚶)
Москва, Вильнюсская улица, 15
Жилой дом "Вильнюсская 15"
Тип: Торговое помещение
Площадь: 258.60 м2
465 000 в месяц
21 578 в год за м2
Позвонить Подробнее
Царицыно (17 мин. 🚗)
Москва, 6-я Радиальная улица, 5к5
БЦ "6-я Радиальная улица, 5к5"
Тип: Торговое помещение
Площадь: 1200.00 м2
Мощность:100 кВт
1 800 000 в месяц
18 000 в год за м2
Позвонить Подробнее
Ховрино (29 мин. 🚶)
Московская область, Химки, микрорайон Подрезково, квартал Филино, 143
ПСК "Молжаниново"
Тип: Торговое помещение
Площадь: 728.50 м2
Мощность:150 кВт
1 165 600 в месяц
19 200 в год за м2
Позвонить Подробнее
Ховрино (29 мин. 🚶)
Московская область, Химки, микрорайон Подрезково, квартал Филино, 143
ПСК "Молжаниново"
Тип: Торговое помещение
Площадь: 1350.00 м2
Мощность:150 кВт
2 160 000 в месяц
19 200 в год за м2
Позвонить Подробнее
Марьино (15 мин. 🚶)
Москва, улица Перерва, 11с1
Технопарк "Перерва"
Тип: Торговое помещение
Площадь: 796.20 м2
1 459 700 в месяц
22 000 в год за м2
Позвонить Подробнее
Каширская (14 мин. 🚗)
Москва, Каширское шоссе, 57к2
Жилое здание "Каширское шоссе, 57к2"
Тип: Торговое помещение
Площадь: 634.00 м2
Мощность:100 кВт
1 000 000 в месяц
18 927 в год за м2
Позвонить Подробнее
Кунцевская (10 мин. 🚶)
Москва, Молдавская улица, 1с8
Бизнес-центр "Upside Кунцево"
Тип: Торговое помещение
Площадь: 735.00 м2
Мощность:150 кВт
1 102 650 в месяц
18 002 в год за м2
Позвонить Подробнее
Марксистская (7 мин. 🚶)
Москва, Таганская улица, 26с1
Жилое здание «Таганская 26 с1»
Тип: Торговое помещение
Площадь: 325.30 м2
Мощность:30 кВт
502 000 в месяц
18 518 в год за м2
Позвонить Подробнее