Аренда торгового помещения Жилое здание "Ленинский проспект, 88к2"

Аренда торгового помещения Жилое здание Аренда торгового помещения Жилое здание
Аренда торгового помещения Жилое здание Аренда торгового помещения Жилое здание
Москва, Ленинский проспект, 88к2
Позвоните по телефону +7 495 230-28-26, либо оставьте заявку на просмотр прямо сейчас и узнайте условия специального предложения по объекту.
загрузка карты...
Аренда в год за м2 18 100 ₽
Аренда в месяц 400 000 ₽
Схема сделки прямая аренда
Общие
ID 63457
Тип сделки Аренда
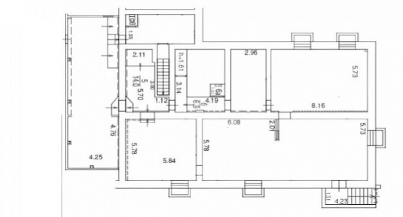
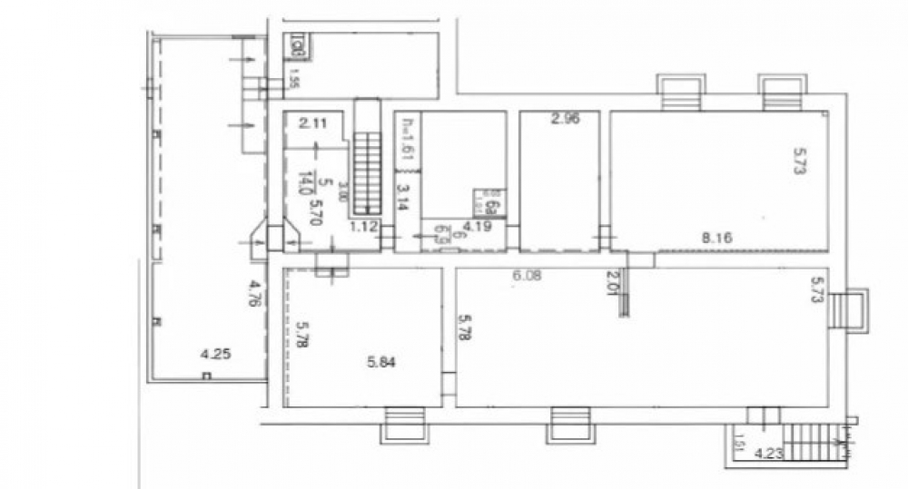
Площадь 265.20
Площадь всего 12382.00
Тип объекта Жилое здание
Этаж -1
Всего этажей в здании 8
Метраж по этажам
Информация об объекте
Состояние объекта рабочее
Состояние блока отделка арендатора
Планировка Залы и кабинеты
Перекрытия Железобетонные
Парковка Бесплатная парковка
Нюансы Отдельный вход,ПСН
Торговая недвижимость
Линия домов 2 линия
Возможности Зона разгрузки,Место для рекламы,Проходное место
Электр. мощность (кВт) 15
Коммерческие условия
Аренда в год за м2 18 100 ₽
Аренда в месяц 400 000 ₽
Схема сделки прямая аренда
Тип собственника Юридическое лицо

Описание объекта
Предлагается в аренду помещение 265,2 м2, цокольный этаж.10 мин до станции «Новаторская»,
2 мин до остановки общественного транспорта.
1 школа, 2 детский сад
Проживают в 10 мин ходьбы 35 266 чел.
Оперативный показ.

Нужна консультация по подбору торговых площадей для аренды?

Наши специалисты подберут для вас самые выгодные варианты для долгосрочного инвестирования,
помогут в сопровождении и сделки, проверят все юридические вопросы касаемо приобретения недвижимости.

* Нажимая на кнопку «Отправить», Вы даете согласие на обработку персональных данных в соответствии с Политикой конфиденциальности

Похожие объекты

Новослободская (13 мин. 🚶)
Москва, Краснопролетарская улица, 2/4с13
Бизнес-центр «Эрмитаж Плаза»
Тип: Торговое помещение
Площадь: 272.30 м2
Мощность:105 кВт
750 000 в месяц
33 052 в год за м2
Позвонить Подробнее
Крестьянская Застава (7 мин. 🚶)
Москва, Волгоградский проспект, 9с1
Жилое здание "Волгоградский проспект, 9с1"
Тип: Торговое помещение
Площадь: 281.00 м2
Мощность:68 кВт
690 000 в месяц
29 466 в год за м2
Позвонить Подробнее
Сокол Сокольники Соколиная Гора (3 мин. 🚶)
Москва, Ленинградский проспект, 69с1
Жилое здание "Ленинградский пр-т 69"
Тип: Торговое помещение
Площадь: 250.00 м2
Мощность:100 кВт
500 000 в месяц
24 000 в год за м2
Позвонить Подробнее
Арбатская (Филевская) Арбатская (Арбатско-Покровская) (7 мин. 🚶)
Москва, Большая Никитская улица, 12с1
Офисное здание «Большая Никитская 12»
Тип: Торговое помещение
Площадь: 248.90 м2
3 500 000 в месяц
168 742 в год за м2
Позвонить Подробнее
Молодёжная (11 мин. 🚶)
Москва, Молодогвардейская улица, 25к1
Жилое здание "Молодогвардейская улица, 25к1"
Тип: Торговое помещение
Площадь: 256.00 м2
Мощность:105 кВт
700 000 в месяц
32 813 в год за м2
Позвонить Подробнее
(9 мин. 🚶)
Москва, улица Хромова, 40
Особняк "улица Хромова, 40"
Тип: Торговое помещение
Площадь: 290.00 м2
Мощность:30 кВт
580 000 в месяц
24 000 в год за м2
Позвонить Подробнее
Комсомольская (2 мин. 🚶)
Москва, Комсомольская площадь, 6
Универмаг Московсий
Тип: Торговое помещение
Площадь: 250.00 м2
Мощность:50 кВт
500 000 в месяц
24 000 в год за м2
Позвонить Подробнее
Марьина Роща (13 мин. 🚶)
Москва, Улица Сущёвский Вал, 16с1
Бизнес-парк «Минаевский»
Тип: Торговое помещение
Площадь: 284.00 м2
Мощность:50 кВт
635 237 в месяц
26 841 в год за м2
Позвонить Подробнее
Ховрино (15 мин. 🚗)
Москва, Лобненская улица, 14
ТЦ "Зодиак"
Тип: Торговое помещение
Площадь: 270.50 м2
Мощность:70 кВт
649 200 в месяц
28 800 в год за м2
Позвонить Подробнее
Полежаевская (5 мин. 🚶)
Закрытая продажа #62341
Тип: Торговое помещение
Площадь: 255.00 м2
Мощность:30 кВт
612 000 в месяц
28 800 в год за м2
Позвонить Подробнее
Савёловская (5 мин. 🚶)
Москва, Бумажный проезд, 19с4
БЦ STONE TOWERS
Тип: Торговое помещение
Площадь: 265.00 м2
Мощность:100 кВт
2 135 903 в месяц
96 720 в год за м2
Позвонить Подробнее
(7 мин. 🚶)
Москва, улица Народного Ополчения, 28к1
Жилое здание "Народного Ополчения 28к1"
Тип: Торговое помещение
Площадь: 285.00 м2
650 000 в месяц
27 368 в год за м2
Позвонить Подробнее
Октябрьское Поле (4 мин. 🚶)
Москва, улица Маршала Рыбалко, 1
Жилое здание "улица Маршала Рыбалко, 1"
Тип: Торговое помещение
Площадь: 210.00 м2
Мощность:15 кВт
320 000 в месяц
18 286 в год за м2
Позвонить Подробнее
Алексеевская (7 мин. 🚶)
Москва, проспект Мира, 108
Жилое здание "проспект Мира д. 108"
Тип: Торговое помещение
Площадь: 430.00 м2
Мощность:65 кВт
600 000 в месяц
16 744 в год за м2
Позвонить Подробнее
Кунцевская (10 мин. 🚶)
Москва, Рублёвское шоссе, 21
Бизнес-центр "Upside Кунцево"
Тип: Торговое помещение
Площадь: 703.20 м2
Мощность:150 кВт
1 102 650 в месяц
18 817 в год за м2
Позвонить Подробнее

Москва, улица Стромынка, 25с1
ТЦ FoodPark
Тип: Торговое помещение
Площадь: 1150.00 м2
Мощность:100 кВт
1 907 083 в месяц
19 900 в год за м2
Позвонить Подробнее
Бабушкинская (13 мин. 🚗)
Москва, улица Коминтерна, 10к1
ЖК "Коминтерна, 10к1"
Тип: Торговое помещение
Площадь: 190.30 м2
Мощность:24 кВт
315 000 в месяц
19 863 в год за м2
Позвонить Подробнее
Царицыно (17 мин. 🚗)
Москва, 6-я Радиальная улица, 5к5
БЦ "6-я Радиальная улица, 5к5"
Тип: Торговое помещение
Площадь: 1200.00 м2
Мощность:100 кВт
1 800 000 в месяц
18 000 в год за м2
Позвонить Подробнее
Новокосино (3 мин. 🚶)
Московская область, Реутов, Носовихинское шоссе, 27
Жилое здание "Реутов, Носовихинское шоссе, 27"
Тип: Торговое помещение
Площадь: 118.00 м2
188 800 в месяц
19 200 в год за м2
Позвонить Подробнее
Тимирязевская (2 мин. 🚶)
Москва, улица Яблочкова, 19Г
ТЦ "Депо Молл"
Тип: Торговое помещение
Площадь: 1008.50 м2
Мощность:200 кВт
1 500 000 в месяц
17 848 в год за м2
Позвонить Подробнее
Марксистская (7 мин. 🚶)
Москва, Таганская улица, 26с1
Жилое здание «Таганская 26 с1»
Тип: Торговое помещение
Площадь: 325.30 м2
Мощность:30 кВт
502 000 в месяц
18 518 в год за м2
Позвонить Подробнее
Тёплый стан (14 мин. 🚗)
Москва, Новомосковский административный округ, район Коммунарка, Калужское шоссе, 21-й километр, с1
ТЦ "Мега Теплый Стан"
Тип: Торговое помещение
Площадь: 3000.00 м2
4 125 000 в месяц
16 500 в год за м2
Позвонить Подробнее
Тёплый стан (14 мин. 🚗)
Москва, Новомосковский административный округ, район Коммунарка, Калужское шоссе, 21-й километр, с1
ТЦ "Мега Теплый Стан"
Тип: Торговое помещение
Площадь: 6000.00 м2
8 250 000 в месяц
16 500 в год за м2
Позвонить Подробнее
Котельники (20 мин. 🚗)
Московская область, Котельники, 1-й Покровский проезд, 5
ТЦ "Мега Белая Дача"
Тип: Торговое помещение
Площадь: 3000.00 м2
Мощность:850 кВт
4 125 000 в месяц
16 500 в год за м2
Позвонить Подробнее
(20 мин. 🚶)
Москва, улица Архитектора Власова, 18
ЖК "Архитектора Власова, 18"
Тип: Торговое помещение
Площадь: 150.00 м2
Мощность:40 кВт
500 000 в месяц
40 000 в год за м2
Позвонить Подробнее