Аренда офиса Бизнес-парк "Оржоникидзе 11" с1А

Объект успешно реализован!
Аренда офиса Бизнес-парк Аренда офиса Бизнес-парк Аренда офиса Бизнес-парк
Аренда офиса Бизнес-парк Аренда офиса Бизнес-парк Аренда офиса Бизнес-парк
Москва, улица Орджоникидзе, 11с1А
Объект успешно реализован, но у нас есть много других интересных предложений. Позвоните по телефону +7 495 230-28-26, либо оставьте заявку на подбор прямо сейчас и получите список подходящих для вас объектов.
загрузка карты...
Аренда в год за м2 27 000 ₽
Аренда в месяц 811 350 ₽
Схема сделки прямая аренда
Общие
ID 60188
Тип сделки Аренда
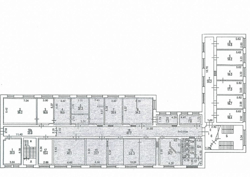
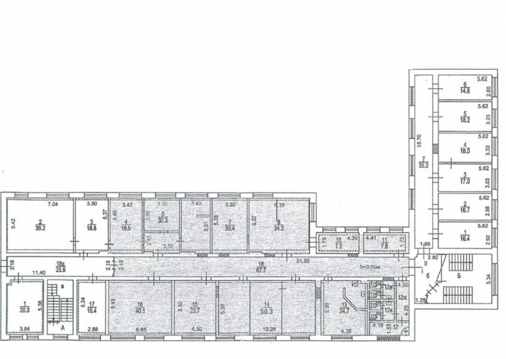
Площадь 360.60
Тип объекта Бизнес-парк
Этаж 3
Всего этажей в здании 5
Метраж по этажам
Информация об объекте
Состояние объекта рабочее
Состояние блока выполнена стандартная офисная отделка
Планировка Коридорная
Перекрытия Железобетонные
Парковка наземная 10000р/мес
Коммерческие условия
Аренда в год за м2 27 000 ₽
Аренда в месяц 811 350 ₽
Схема сделки прямая аренда
Тип собственника Юридическое лицо

Описание объекта
Предлагается в аренду офис в бизнес-центре класса В в Донском районе. До метро Ленинский проспект 5-6 минут пешком.
Офис расположен на третьем этаже, без лифта, площадь помещения 360,6м2, кабинетная планировка, стандартная офисная отделка. В здании приточно-вытяжная вентиляция, сплит-системы кондиционирования, наземная парковка.
В ставку включена экспуатация.
Офис свободен к заезду с 1 марта (делается ремонт).

Нужна консультация по подбору помещения под офис?

Наши специалисты подберут для вас самые выгодные варианты для долгосрочного инвестирования,
помогут в сопровождении и сделки, проверят все юридические вопросы касаемо приобретения недвижимости.

* Нажимая на кнопку «Отправить», Вы даете согласие на обработку персональных данных в соответствии с Политикой конфиденциальности

Похожие объекты

Красные Ворота (10 мин. 🚶)
Москва, Улица Чаплыгина, 9с1
Офисное здание «Чаплыгина 9 с1»
Тип: Офисы
Площадь: 385.00 м2
Отделка:выполнена стандартная офисная отделка
1 604 167 в месяц
50 000 в год за м2
Позвонить Подробнее
Белорусская (13 мин. 🚶)
Москва, Улица Грузинский Вал, 10
БЦ «Грузинский вал 10 »
Тип: Офисы
Площадь: 353.30 м2
Отделка:отделка в стиле Loft
1 987 313 в месяц
67 500 в год за м2
Позвонить Подробнее
Полежаевская (18 мин. 🚗)
Москва, Проспект Маршала Жукова, 78к3
Офисное здание «Маршала Жукова 78 к3»
Тип: Офисы
Площадь: 360.00 м2
Отделка:выполнена стандартная офисная отделка
510 000 в месяц
17 000 в год за м2
Позвонить Подробнее
Римская (10 мин. 🚶)
Москва, Волочаевская улица, 40Гс4
Особняк «Волочаевская 40с4»
Тип: Офисы
Площадь: 325.00 м2
Отделка:выполнена высококачественная отделка
1 337 000 в месяц
49 366 в год за м2
Позвонить Подробнее
Спортивная (2 мин. 🚶)
Москва, улица Усачёва, 62
МФК Arkenston
Тип: Офисы
Площадь: 324.50 м2
Отделка:отделка в стиле Loft
1 757 708 в месяц
65 000 в год за м2
Позвонить Подробнее
Савёловская (10 мин. 🚶)
Москва, Улица Двинцев, 12к1
Бизнес-центр «Двинцев»
Тип: Офисы
Площадь: 362.00 м2
Отделка:качественная отделка
2 003 338 в месяц
66 409 в год за м2
Позвонить Подробнее
Кунцевская (12 мин. 🚗)
Москва, Сколковское шоссе, вл43
Деловой квартал "Сколково Парк"
Тип: Офисы
Площадь: 328.00 м2
Отделка:выполнена высококачественная отделка
2 367 613 в месяц
86 620 в год за м2
Позвонить Подробнее
Арбатская (Филевская) Арбатская (Арбатско-Покровская) (3 мин. 🚶)
Москва, Улица Арбат, 10
Торгово-офисный комплекс "Midland Plaza"
Тип: Офисы
Площадь: 341.00 м2
Отделка:выполнена стандартная офисная отделка
1 980 000 в месяц
69 677 в год за м2
Позвонить Подробнее
Сухаревская (6 мин. 🚶)
Москва, Последний переулок, 19
Бизнес-центр «Сретенка Комплекс»
Тип: Офисы
Площадь: 351.00 м2
Отделка:выполнена стандартная офисная отделка
2 034 045 в месяц
69 540 в год за м2
Позвонить Подробнее
ЦСКА (5 мин. 🚶)
Москва, Улица Авиаконструктора Микояна, 12
Бизнес-центр «Линкор»
Тип: Офисы
Площадь: 373.00 м2
Отделка:выполнена стандартная офисная отделка
1 175 572 в месяц
37 820 в год за м2
Позвонить Подробнее
Фрунзенская (5 мин. 🚶)
Москва, Улица Россолимо, 17с1
Технопарк "Россолимо"
Тип: Офисы
Площадь: 377.40 м2
Отделка:требуется косметический ремонт
1 258 000 в месяц
40 000 в год за м2
Позвонить Подробнее
Тульская (2 мин. 🚶)
Москва, Гамсоновский переулок, 2с11
Бизнес-центр "Рябовская мануфактура" Ryabov LOFT
Тип: Офисы
Площадь: 337.47 м2
Отделка:выполнена высококачественная отделка
1 462 370 в месяц
52 000 в год за м2
Позвонить Подробнее
Бауманская (10 мин. 🚶)
Москва, Бакунинская улица, 71с10
Бизнес-центр «На Бакунинской»
Тип: Офисы
Площадь: 550.00 м2
Отделка:выполнена стандартная офисная отделка
1 145 833 в месяц
25 000 в год за м2
Позвонить Подробнее
Марьина Роща (12 мин. 🚶)
Москва, Полковая улица, 3
Бизнес-центр «Офис-парк Шереметьевский»
Тип: Офисы
Площадь: 830.00 м2
Отделка:выполнена стандартная офисная отделка
1 798 333 в месяц
26 000 в год за м2
Позвонить Подробнее
Боровское шоссе (17 мин. 🚗)
Москва, Инновационный центр Сколково, улица Нобеля, 5
Бизнес-Центр ТЕХНОПАРК. "Квартал Менделеева"
Тип: Офисы
Площадь: 682.55 м2
Отделка:выполнена стандартная офисная отделка
1 564 177 в месяц
27 500 в год за м2
Позвонить Подробнее
Боровское шоссе (17 мин. 🚗)
Москва, Инновационный центр Сколково, улица Нобеля, 5
Бизнес-Центр ТЕХНОПАРК. "Квартал Менделеева"
Тип: Офисы
Площадь: 404.59 м2
Отделка:выполнена стандартная офисная отделка
927 185 в месяц
27 500 в год за м2
Позвонить Подробнее
Боровское шоссе (17 мин. 🚗)
Москва, Инновационный центр Сколково, улица Нобеля, 1
Бизнес-Центр ТЕХНОПАРК. "Квартал Менделеева"
Тип: Офисы
Площадь: 873.77 м2
Отделка:выполнена стандартная офисная отделка
2 002 390 в месяц
27 500 в год за м2
Позвонить Подробнее
Боровское шоссе (17 мин. 🚗)
Москва, Инновационный центр Сколково, улица Нобеля, 1
Бизнес-Центр ТЕХНОПАРК. "Квартал Менделеева"
Тип: Офисы
Площадь: 1461.00 м2
Отделка:выполнена стандартная офисная отделка
3 348 125 в месяц
27 500 в год за м2
Позвонить Подробнее
Боровское шоссе (17 мин. 🚗)
Москва, Инновационный центр Сколково, улица Нобеля, 1
Бизнес-Центр ТЕХНОПАРК. "Квартал Менделеева"
Тип: Офисы
Площадь: 289.60 м2
Отделка:выполнена стандартная офисная отделка
663 667 в месяц
27 500 в год за м2
Позвонить Подробнее
Боровское шоссе (17 мин. 🚗)
Москва, Инновационный центр Сколково, улица Нобеля, 1
Бизнес-Центр ТЕХНОПАРК. "Квартал Менделеева"
Тип: Офисы
Площадь: 587.23 м2
Отделка:выполнена стандартная офисная отделка
1 345 735 в месяц
27 500 в год за м2
Позвонить Подробнее
Боровское шоссе (17 мин. 🚗)
Москва, Инновационный центр Сколково, улица Нобеля, 1
Бизнес-Центр ТЕХНОПАРК. "Квартал Менделеева"
Тип: Офисы
Площадь: 407.00 м2
Отделка:отделка арендатора
932 708 в месяц
27 500 в год за м2
Позвонить Подробнее
Молодёжная (16 мин. 🚗)
Москва, улица Толбухина, 5к4
Административное здание "улица Толбухина, 5к4"
Тип: Офисы
Площадь: 832.20 м2
Отделка:отделка арендатора
1 900 121 в месяц
27 399 в год за м2
Позвонить Подробнее
Авиамоторная (12 мин. 🚶)
Москва, Улица Золоторожский Вал, 11с22
Бизнес-центр «Золоторожский»
Тип: Офисы
Площадь: 1700.00 м2
Отделка:выполнена стандартная офисная отделка
3 740 000 в месяц
26 400 в год за м2
Позвонить Подробнее
Кожуховская (17 мин. 🚶)
Москва, 2-й Южнопортовый проезд, 20Ас4
Офисно-складской комплекс "Южнопортовый"
Тип: Офисы
Площадь: 440.00 м2
Отделка:выполнена стандартная офисная отделка
990 000 в месяц
27 000 в год за м2
Позвонить Подробнее
Ленинский проспект (10 мин. 🚶)
Москва, Ленинский проспект, 38
Бизнес-центр «Lunar (Лунар)»
Тип: Офисы
Площадь: 224.00 м2
Отделка:Shell and Core
933 333 в месяц
50 000 в год за м2
Позвонить Подробнее
Ленинский проспект (5 мин. 🚶)
Москва, улица Орджоникидзе, 11с40
Бизнес-парк Орджоникидзе 11
Тип: Офисы
Площадь: 222.40 м2
Отделка:выполнена стандартная офисная отделка
648 667 в месяц
35 000 в год за м2
Позвонить Подробнее
Ленинский проспект (10 мин. 🚶)
Москва, улица Орджоникидзе, 5
Административное Здание на 1й Линии
Тип: Офисы
Площадь: 7400.00 м2
17 000 000 в месяц
27 568 в год за м2
Позвонить Подробнее
Ленинский проспект (17 мин. 🚶)
Москва, улица Орджоникидзе, 11/52
КДЦ "Гагаринский"
Тип: Офисы
Площадь: 10648.00 м2
Отделка:помещение без отделки
48 448 400 в месяц
54 600 в год за м2
Позвонить Подробнее
Ленинский проспект (11 мин. 🚶)
Москва, Улица Вавилова, 24к1
Бизнес-центр «Vaviloff Tower»
Тип: Офисы
Площадь: 1160.76 м2
Отделка:выполнена высококачественная отделка
4 449 580 в месяц
46 000 в год за м2
Позвонить Подробнее
Ленинский проспект (11 мин. 🚶)
Москва, Улица Вавилова, 24к1
Бизнес-центр «Vaviloff Tower»
Тип: Офисы
Площадь: 583.13 м2
Отделка:выполнена высококачественная отделка
2 235 332 в месяц
46 000 в год за м2
Позвонить Подробнее
Ленинский проспект (5 мин. 🚶)
Москва, улица Орджоникидзе, 11с40
Бизнес-парк Орджоникидзе 11
Тип: Офисы
Площадь: 371.90 м2
Отделка:выполнена стандартная офисная отделка
1 084 708 в месяц
35 000 в год за м2
Позвонить Подробнее
Ленинский проспект (10 мин. 🚶)
Москва, улица Орджоникидзе, 11с1А
Бизнес-парк "Оржоникидзе 11" с1А
Тип: Офисы
Площадь: 371.90 м2
Отделка:выполнена стандартная офисная отделка
1 084 708 в месяц
35 000 в год за м2
Позвонить Подробнее
Ленинский проспект (13 мин. 🚶)
Москва, 5-й Донской проезд, 17
БЦ "Клевер"
Тип: Офисы
Площадь: 438.00 м2
Отделка:качественная отделка
1 076 750 в месяц
29 500 в год за м2
Позвонить Подробнее