Аренда офиса БЦ "Клевер"

Аренда офиса БЦ Аренда офиса БЦ Аренда офиса БЦ
Аренда офиса БЦ Аренда офиса БЦ Аренда офиса БЦ
Москва, 5-й Донской проезд, 17
Позвоните по телефону +7 495 230-28-26, либо оставьте заявку на просмотр прямо сейчас и узнайте условия специального предложения по объекту.
загрузка карты...
Аренда в год за м2 29 500 ₽
Аренда в месяц 1 076 750 ₽
Схема сделки прямая аренда
Первушина Марина Алексеевна

Объект ведет консультант:

Первушина Марина Алексеевна

Общие
ID 61479
Тип сделки Аренда
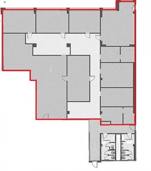
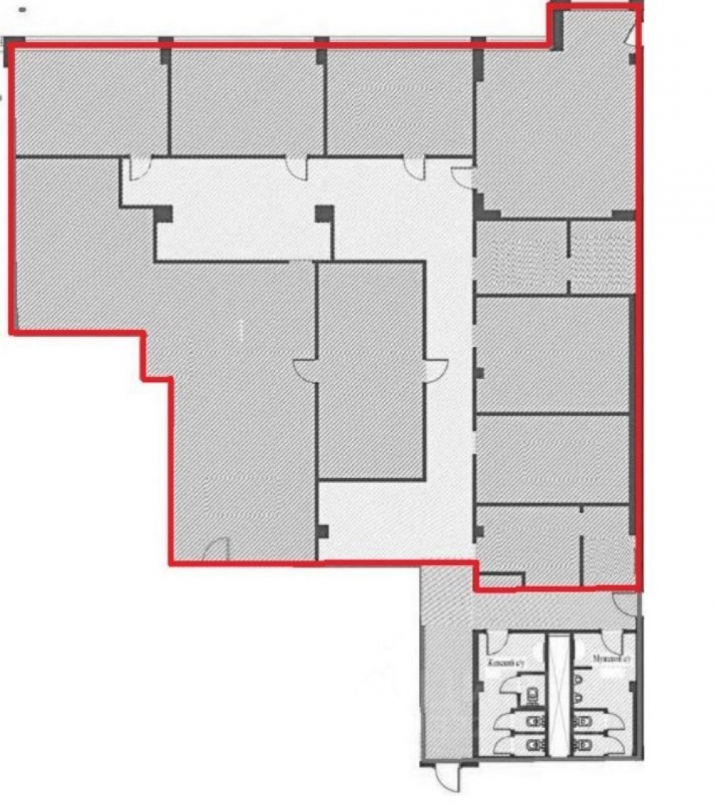
Площадь 438.00
Тип объекта Бизнес-центр
Класс здания B
Этаж 8
Всего этажей в здании 5
Метраж по этажам
Информация об объекте
Состояние объекта рабочее
Состояние блока качественная отделка
Планировка Залы и кабинеты
Перекрытия Железобетонные
Парковка наземная 10000р/мес
Коммерческие условия
Аренда в год за м2 29 500 ₽
Аренда в месяц 1 076 750 ₽
Схема сделки прямая аренда
Тип собственника Юридическое лицо

Описание объекта
Предлагаем в аренду офис в бизнес-центре класса В в Донском районе. До м.Ленинский проспект 10 минут пешком.
Помещение расположено на 8-м этаже, кабинетная планировка, ремонт за выездом арендатора. В здании приточно-вытяжная вентиляция, центральное кондиционирование.
В ставку включена эксплуатация.
За дополнительную плату предоставляют места на наземной паковке.
Офис свободен к заезду.

Нужна консультация по подбору помещения под офис?

Наши специалисты подберут для вас самые выгодные варианты для долгосрочного инвестирования,
помогут в сопровождении и сделки, проверят все юридические вопросы касаемо приобретения недвижимости.

* Нажимая на кнопку «Отправить», Вы даете согласие на обработку персональных данных в соответствии с Политикой конфиденциальности

Похожие объекты

Ломоносовский проспект (4 мин. 🚶)
Москва, улица Дружбы, 10А
ОСЗ "ул. Дружбы 10А"
Тип: Офисы
Площадь: 431.34 м2
Отделка:качественная отделка
1 258 075 в месяц
35 000 в год за м2
Позвонить Подробнее
Дмитровская (12 мин. 🚶)
Москва, 2-я Хуторская улица, 38А
Бизнес-центр "Мирлэнд"
Тип: Офисы
Площадь: 397.90 м2
Отделка:выполнена стандартная офисная отделка
795 800 в месяц
24 000 в год за м2
Позвонить Подробнее
Курская (5 мин. 🚶)
Москва, Мельницкий переулок, 8/1с1
Особняк "Мельницкий переулок, 8/1с1"
Тип: Офисы
Площадь: 463.00 м2
1 736 250 в месяц
45 000 в год за м2
Позвонить Подробнее
Китай-город (7 мин. 🚶)
Москва, Подкопаевский переулок, 4
Бизнес-центр «Ивановская горка»
Тип: Офисы
Площадь: 454.00 м2
Отделка:выполнена высококачественная отделка
2 478 083 в месяц
65 500 в год за м2
Позвонить Подробнее
Красносельская (10 мин. 🚶)
Москва, Спартаковский переулок, 2с1
Лофт-квартал «Платформа»
Тип: Офисы
Площадь: 450.00 м2
Отделка:выполнена стандартная офисная отделка
990 000 в месяц
26 400 в год за м2
Позвонить Подробнее
Кантемировская (10 мин. 🚶)
Москва, Кантемировская улица, 58
Бизнес-центр «Коплект»
Тип: Офисы
Площадь: 421.00 м2
Отделка:выполнена стандартная офисная отделка
645 533 в месяц
18 400 в год за м2
Позвонить Подробнее
Цветной бульвар (5 мин. 🚶)
Москва, Цветной бульвар, 30с1
Офисное здание «Цветной 30»
Тип: Офисы
Площадь: 460.00 м2
Отделка:выполнена стандартная офисная отделка
1 725 000 в месяц
45 000 в год за м2
Позвонить Подробнее
Калужская (9 мин. 🚶)
Москва, Улица Обручева, 23к3
Бизнес-центр «Газфилд»
Тип: Офисы
Площадь: 398.89 м2
Отделка:выполнена стандартная офисная отделка
1 096 948 в месяц
33 000 в год за м2
Позвонить Подробнее
Калужская (9 мин. 🚶)
Москва, Улица Обручева, 23к3
Бизнес-центр «Газфилд»
Тип: Офисы
Площадь: 430.70 м2
Отделка:выполнена стандартная офисная отделка
1 184 425 в месяц
33 000 в год за м2
Позвонить Подробнее
Проспект Вернадского (14 мин. 🚶)
Москва, Улица Удальцова, 1А
Бизнес-центр «Удальцова Плаза»
Тип: Офисы
Площадь: 404.23 м2
Отделка:выполнена стандартная офисная отделка
1 583 234 в месяц
47 000 в год за м2
Позвонить Подробнее
Семёновская (2 мин. 🚶)
Москва, Семёновская площадь, 7
Бизнес-центр «Семеновский»
Тип: Офисы
Площадь: 430.00 м2
Отделка:выполнена стандартная офисная отделка
774 000 в месяц
21 600 в год за м2
Позвонить Подробнее
Добрынинская (9 мин. 🚶)
Москва, Пятницкая улица, 60
Особняк «Пятницкая 60»
Тип: Офисы
Площадь: 478.00 м2
Отделка:отделка арендатора
4 500 000 в месяц
112 971 в год за м2
Позвонить Подробнее
Бауманская (2 мин. 🚶)
Москва, Спартаковская улица, 21
Особняк «Спартаковская 21»
Тип: Офисы
Площадь: 208.50 м2
Отделка:выполнена стандартная офисная отделка
470 000 в месяц
27 050 в год за м2
Позвонить Подробнее
Бабушкинская (24 мин. 🚗)
Москва, Челюскинская улица, 9
Жилое здание "Челюскинская улица, 9"
Тип: Офисы
Площадь: 193.20 м2
Отделка:качественная отделка
434 700 в месяц
27 000 в год за м2
Позвонить Подробнее
Бабушкинская (24 мин. 🚗)
Москва, Челюскинская улица, 9
Жилое здание "Челюскинская улица, 9"
Тип: Офисы
Площадь: 361.30 м2
Отделка:качественная отделка
812 925 в месяц
27 000 в год за м2
Позвонить Подробнее
Тульская (5 мин. 🚶)
Москва, Павловская улица, 18с2
Офисное здание «Павловская 18 с2»
Тип: Офисы
Площадь: 150.00 м2
Отделка:выполнена стандартная офисная отделка
399 900 в месяц
31 992 в год за м2
Позвонить Подробнее
Ботанический сад (10 мин. 🚶)
Москва, Проезд Серебрякова, 6
Бизнес-центр «Серебрякова»
Тип: Офисы
Площадь: 6936.00 м2
16 184 000 в месяц
28 000 в год за м2
Позвонить Подробнее
Речной вокзал (14 мин. 🚶)
Москва, Смольная улица, 24Д
Бизнес-центр «Меридиан»
Тип: Офисы
Площадь: 295.00 м2
Отделка:выполнена стандартная офисная отделка
663 750 в месяц
27 000 в год за м2
Позвонить Подробнее
Люблино (15 мин. 🚗)
Москва, Егорьевская улица, 14с1
ОСЗ "Егорьевская ул., 14с1"
Тип: Офисы
Площадь: 1400.00 м2
3 300 000 в месяц
28 286 в год за м2
Позвонить Подробнее
Сретенский бульвар (11 мин. 🚶)
Москва, улица Покровка, 27с5
Особняк "Покровка 27с5"
Тип: Офисы
Площадь: 735.00 м2
1 700 000 в месяц
27 755 в год за м2
Позвонить Подробнее
Новохохловская (8 мин. 🚶)
Москва, Новохохловская улица, 21к2с1
ОСК "Ринг Парк"
Тип: Офисы
Площадь: 1060.00 м2
Отделка:отделка в стиле Loft
2 650 000 в месяц
30 000 в год за м2
Позвонить Подробнее
Новохохловская (8 мин. 🚶)
Москва, Новохохловская улица, 21к2с1
ОСК "Ринг Парк"
Тип: Офисы
Площадь: 566.00 м2
Отделка:отделка в стиле Loft
1 415 000 в месяц
30 000 в год за м2
Позвонить Подробнее
Новохохловская (8 мин. 🚶)
Москва, Новохохловская улица, 21к2с1
ОСК "Ринг Парк"
Тип: Офисы
Площадь: 494.00 м2
Отделка:отделка в стиле Loft
1 235 000 в месяц
30 000 в год за м2
Позвонить Подробнее
Ботанический сад (3 мин. 🚶)
Москва, 1-я улица Леонова, 18
Апарт-отель "YES Botanica"
Тип: Офисы
Площадь: 263.00 м2
Отделка:качественная отделка
700 000 в месяц
31 939 в год за м2
Позвонить Подробнее
Ленинский проспект (13 мин. 🚗)
Москва, 2-й Рощинский проезд, 8с4
БЦ "Серпуховской двор" с4
Тип: Офисы
Площадь: 1090.60 м2
Отделка:выполнена стандартная офисная отделка
2 300 000 в месяц
25 307 в год за м2
Позвонить Подробнее
Ленинский проспект (11 мин. 🚶)
Москва, Улица Вавилова, 24к1
Бизнес-центр «Vaviloff Tower»
Тип: Офисы
Площадь: 2263.00 м2
Отделка:выполнена высококачественная отделка
8 486 250 в месяц
45 000 в год за м2
Позвонить Подробнее
Ленинский проспект (10 мин. 🚶)
Москва, Ленинский проспект, 38
Бизнес-центр «Lunar (Лунар)»
Тип: Офисы
Площадь: 93.00 м2
Отделка:Shell & Core
420 000 в месяц
54 194 в год за м2
Позвонить Подробнее
Ленинский проспект (7 мин. 🚶)
Москва, проспект 60-летия Октября, 6
ОСЗ "проспект 60-летия Октября, 6"
Тип: Офисы
Площадь: 1181.80 м2
Отделка:помещение без отделки
7 600 000 в месяц
77 170 в год за м2
Позвонить Подробнее
Ленинский проспект (13 мин. 🚶)
Москва, 5-й Донской проезд, 17
БЦ "Клевер"
Тип: Офисы
Площадь: 166.30 м2
Отделка:выполнена стандартная офисная отделка
408 821 в месяц
29 500 в год за м2
Позвонить Подробнее
Ленинский проспект (10 мин. 🚶)
Москва, Улица Орджоникидзе, 11с10
Бизнес-парк «Оржоникидзе 11»
Тип: Офисы
Площадь: 279.00 м2
Отделка:выполнена стандартная офисная отделка
1 046 250 в месяц
45 000 в год за м2
Позвонить Подробнее
Ленинский проспект (5 мин. 🚶)
Москва, улица Вавилова, 1
Бизнес-парк "Орджоникидзе 11"
Тип: Офисы
Площадь: 144.50 м2
Отделка:выполнена стандартная офисная отделка
481 667 в месяц
40 000 в год за м2
Позвонить Подробнее
Ленинский проспект (10 мин. 🚶)
Москва, Ленинский проспект, 38
Бизнес-центр «Lunar (Лунар)»
Тип: Офисы
Площадь: 81.00 м2
Отделка:отделка в стиле Loft
380 000 в месяц
56 296 в год за м2
Позвонить Подробнее
Ленинский проспект (11 мин. 🚶)
Москва, Улица Вавилова, 24к1
Бизнес-центр «Vaviloff Tower»
Тип: Офисы
Площадь: 1105.53 м2
Отделка:выполнена высококачественная отделка
4 145 738 в месяц
45 000 в год за м2
Позвонить Подробнее
Ленинский проспект (11 мин. 🚶)
Москва, Улица Вавилова, 24к1
Бизнес-центр «Vaviloff Tower»
Тип: Офисы
Площадь: 583.13 м2
Отделка:выполнена высококачественная отделка
2 186 738 в месяц
45 000 в год за м2
Позвонить Подробнее
Ленинский проспект (11 мин. 🚶)
Москва, Улица Вавилова, 24к1
Бизнес-центр «Vaviloff Tower»
Тип: Офисы
Площадь: 522.40 м2
Отделка:выполнена высококачественная отделка
1 959 000 в месяц
45 000 в год за м2
Позвонить Подробнее
Ленинский проспект (10 мин. 🚶)
Москва, улица Орджоникидзе, 11с1А
Бизнес-парк "Оржоникидзе 11" с1А
Тип: Офисы
Площадь: 371.90 м2
Отделка:выполнена стандартная офисная отделка
898 758 в месяц
29 000 в год за м2
Позвонить Подробнее