Продажа офиса БЦ STONE Ленинский

Объект успешно реализован!
Продажа офиса БЦ STONE Ленинский Продажа офиса БЦ STONE Ленинский Продажа офиса БЦ STONE Ленинский
Продажа офиса БЦ STONE Ленинский - превью Продажа офиса БЦ STONE Ленинский - превью Продажа офиса БЦ STONE Ленинский - превью
Москва, улица Вавилова, вл11
Объект успешно реализован, но у нас есть много других интересных предложений. Позвоните по телефону +7 495 230-28-26, либо оставьте заявку на подбор прямо сейчас и получите список подходящих для вас объектов.
загрузка карты...
Общие
ID 60316
Тип сделки Продажа
Площадь 931.00
Площадь всего 73100.00
Тип объекта Бизнес-центр
Класс здания A
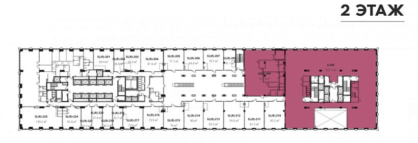
Этаж 2
Всего этажей в здании 23
Метраж по этажам
Информация об объекте
Состояние объекта новое строительство
Состояние блока Shell & Core
Планировка Открытая
Перекрытия Неизвестно
Коммерческие условия
За все 217 902 000 ₽
За м 2 234 052 ₽
Тип собственника Юридическое лицо

Описание объекта
Продажа торгового помещения в премиальном БЦ Stone Ленинский.
Адрес: Москва, ЮЗАО, ул. Вавилова, вл. 11, площадью 931,7 кв.м., помещение находится на 2 этаже в стилобате 23-х этажного нового премиального бизнес центра класса А.
От метро Ленинский проспект 4 мин. пешком.

STONE Ленинский – один из первых бизнес-центров класса А, появившихся в районе за последние 10 лет. Он отличается удобной транспортной доступностью: в пешей близости находятся станции метро и МЦК.
Окружение бизнес-центра подчеркивает его деловой статус: рядом расположены штаб-квартиры крупных компаний, новая штаб-квартира «Яндекса» и инновационная долина МГУ.

Высокий трафик: 99 тыс. пассажиров ст. м. «Ленинский проспект» и МЦК «Площадь Гагарина» в сутки, а также 6 400 сотрудников.

Окончание строительства - 2026 г.

Технические характеристики:
2 этаж в стилобате. Помещение площадью 315.8 кв.м. Открытая планировка. Высота потолков 4,3 м. Помещение без отделки. Мокрая точка.
Свободная планировка. Панорамное остекление.
Все центральные коммуникации. Центральная система кондиционирования. Профессиональная УК.

Коммерческие условия:
Стоимость объекта 217 902 000 рублей с НДС.
Стоимость объекта за кв. м. 690 000 рублей с НДС.
Возможно приобретение в рассрочку.

Нужна консультация по покупке или продаже офиса?

Наши специалисты подберут для вас самые выгодные варианты для долгосрочного инвестирования,
помогут в сопровождении и сделки, проверят все юридические вопросы касаемо приобретения недвижимости.

* Нажимая на кнопку «Отправить», Вы даете согласие на обработку персональных данных в соответствии с Политикой конфиденциальности

Похожие объекты

(7 мин. 🚶)
Москва, Электрозаводская улица, 35с4
Особняк "Электрозаводская улица, 35с4"
Тип: Офисы
Площадь: 903.00 м2
Отделка:Shell and Core
360 000 000 за все
398 671 за м2
Позвонить Подробнее
Марьина Роща (10 мин. 🚶)
Москва, 3-й проезд Марьиной Рощи, 40с1
Офисное здание «3-й Марьиной Рощи 40с1»
Тип: Офисы
Площадь: 915.00 м2
Отделка:выполнена стандартная офисная отделка
155 550 000 за все
170 000 за м2
Позвонить Подробнее
Деловой центр Деловой центр (МЦК) (2 мин. 🚶)
Москва, Пресненская набережная, 6с2
Москва-Сити "Башня Империя"
Тип: Офисы
Площадь: 1000.00 м2
Отделка:выполнена высококачественная отделка
1 050 000 000 за все
1 050 000 за м2
Позвонить Подробнее
Кузьминки (12 мин. 🚶)
Москва, Волгоградский проспект, 93к2
Административное Здание
Тип: Офисы
Площадь: 861.00 м2
Отделка:отделка арендатора
150 000 000 за все
174 216 за м2
Позвонить Подробнее
Воробьёвы горы (13 мин. 🚶)
Закрытая продажа #58582
Тип: Офисы
Площадь: 869.00 м2
305 000 000 за все
350 978 за м2
Позвонить Подробнее
(4 мин. 🚶)
Москва, Георгиевский переулок, 1
ОФИСНАЯ РЕЗИДЕНЦИЯ «ВРЕМЯ» КАМЕРГЕР
Тип: Офисы
Площадь: 1018.50 м2
Отделка:Shell and Core
1 527 750 000 за все
1 500 000 за м2
Позвонить Подробнее
Сокольники (7 мин. 🚶)
Москва, Улица Шумкина, 20с1
Бизнес-центр «на Шумкина»
Тип: Офисы
Площадь: 899.00 м2
Отделка:выполнена стандартная офисная отделка
732 000 000 за все
814 238 за м2
Позвонить Подробнее
Планерная (23 мин. 🚗)
Московская область, Химки, Куркинское шоссе, с2
Бизнес-центр «Aero City (Аэро Сити)»
Тип: Офисы
Площадь: 993.70 м2
Отделка:Shell and Core
141 453 195 за все
142 350 за м2
Позвонить Подробнее
Фонвизинская (6 мин. 🚶)
Москва, Огородный проезд, 20
Бизнес-центр UPSIDE (Апсайд) ОСТАНКИНО
Тип: Офисы
Площадь: 897.79 м2
Отделка:Shell and Core
376 892 242 за все
419 800 за м2
Позвонить Подробнее
Технопарк (3 мин. 🚶)
Москва, Проектируемый проезд № 4062, 6с2
Бизнес-центр «Порт Плаза»
Тип: Офисы
Площадь: 903.70 м2
Отделка:отделка арендатора
260 175 230 за все
287 900 за м2
Позвонить Подробнее
Кунцевская (10 мин. 🚶)
Москва, Рублёвское шоссе, 21
Бизнес-центр "Upside Кунцево"
Тип: Офисы
Площадь: 927.10 м2
Отделка:Shell and Core
607 528 630 за все
655 300 за м2
Позвонить Подробнее
Дмитровская (7 мин. 🚗)
Москва, 4-я улица 8 Марта, 6А
Бизнес-центр «Аэропорт»
Тип: Офисы
Площадь: 890.00 м2
Отделка:выполнена стандартная офисная отделка
231 400 000 за все
260 000 за м2
Позвонить Подробнее
Волоколамская (13 мин. 🚗)
Москва, Улица Василия Петушкова, 27
Офисное здание «Василия Петушкова 27»
Тип: Офисы
Площадь: 1505.00 м2
Отделка:качественная отделка
225 000 000 за все
149 502 за м2
Позвонить Подробнее
Нижегородская (10 мин. 🚶)
Москва, шоссе Фрезер, 19с2
Level work (Левел Ворк) Нижегородская
Тип: Офисы
Площадь: 557.80 м2
Отделка:Shell and Core
203 921 143 за все
365 581 за м2
Позвонить Подробнее
Шелепиха (10 мин. 🚶)
Москва, Заречная улица, вл6/1
Бизнес - центр "Эйлер"
Тип: Офисы
Площадь: 260.30 м2
Отделка:Shell and Core
229 028 800 за все
879 865 за м2
Позвонить Подробнее
Планерная (23 мин. 🚗)
Московская область, Химки, Куркинское шоссе, с2
Бизнес-центр «Aero City (Аэро Сити)»
Тип: Офисы
Площадь: 1401.80 м2
Отделка:Shell and Core
199 546 230 за все
142 350 за м2
Позвонить Подробнее
Автозаводская (8 мин. 🚶)
Москва, улица Ленинская Слобода, 19с6
Бизнес-центр «Омега Плаза 6»
Тип: Офисы
Площадь: 1038.60 м2
Отделка:качественная отделка
238 981 860 за все
230 100 за м2
Позвонить Подробнее
Тульская (3 мин. 🚶)
Москва, Холодильный переулок, 3к1
БЦ "Башня Рябов"
Тип: Офисы
Площадь: 400.50 м2
Отделка:Shell and Core
200 250 000 за все
500 000 за м2
Позвонить Подробнее
Римская (5 мин. 🚶)
Москва, Рабочая улица, 91с2
Административное Здание
Тип: Офисы
Площадь: 1054.00 м2
200 000 000 за все
189 753 за м2
Позвонить Подробнее
Волгоградский проспект (8 мин. 🚶)
Москва, Сосинская улица, 43
ЖК "CHAMPINE"
Тип: Офисы
Площадь: 574.50 м2
Отделка:Shell and Core
231 000 000 за все
402 089 за м2
Позвонить Подробнее
Дмитровская (7 мин. 🚗)
Москва, 4-я улица 8 Марта, 6А
Бизнес-центр «Аэропорт»
Тип: Офисы
Площадь: 890.00 м2
Отделка:выполнена стандартная офисная отделка
231 400 000 за все
260 000 за м2
Позвонить Подробнее
Автозаводская (8 мин. 🚶)
Москва, улица Ленинская Слобода, 19с6
Бизнес-центр «Омега Плаза 6»
Тип: Офисы
Площадь: 695.70 м2
Отделка:выполнена высококачественная отделка
211 423 230 за все
303 900 за м2
Позвонить Подробнее
Ленинский проспект (4 мин. 🚶)
Москва, улица Вавилова, вл11
БЦ STONE Ленинский
Тип: Офисы
Площадь: 389.10 м2
Отделка:Shell and Core
239 296 500 за все
615 000 за м2
Позвонить Подробнее
Бауманская (4 мин. 🚶)
Москва, Лефортовский переулок, 12/50с2
Здание "Лефортовский переулок, 12/50с2"
Тип: Офисы
Площадь: 703.40 м2
Отделка:помещение без отделки
204 000 000 за все
290 020 за м2
Позвонить Подробнее
Ленинский проспект (10 мин. 🚶)
Москва, Ленинский проспект, 38
Бизнес-центр «Lunar (Лунар)»
Тип: Офисы
Площадь: 224.00 м2
Отделка:Shell and Core
112 000 000 за все
500 000 за м2
Позвонить Подробнее
Ленинский проспект (4 мин. 🚶)
Москва, улица Вавилова, вл11
БЦ STONE Ленинский
Тип: Офисы
Площадь: 389.10 м2
Отделка:Shell and Core
239 296 500 за все
615 000 за м2
Позвонить Подробнее