Аренда торгового помещения Жилой дом "Славянский бульвар 5к1"

Аренда торгового помещения Жилой дом Аренда торгового помещения Жилой дом Аренда торгового помещения Жилой дом Аренда торгового помещения Жилой дом
Аренда торгового помещения Жилой дом Аренда торгового помещения Жилой дом Аренда торгового помещения Жилой дом Аренда торгового помещения Жилой дом
Москва, Славянский бульвар, 5к1
Позвоните по телефону +7 495 230-28-26, либо оставьте заявку на просмотр прямо сейчас и узнайте условия специального предложения по объекту.
загрузка карты...
Аренда в год за м2 115 663 ₽
Аренда в месяц 800 000 ₽
Схема сделки прямая аренда
Общие
ID 60671
Тип сделки Аренда
Площадь 83.00
Площадь всего 21184.00
Тип объекта Жилое здание
Этаж 1
Всего этажей в здании 12
Метраж по этажам
Информация об объекте
Состояние объекта рабочее
Состояние блока помещение без отделки
Планировка Открытая
Перекрытия Железобетонные
Торговая недвижимость
Линия домов 1 линия
Возможности Торговый центр,Витрины,Место для рекламы,Проходное место,Проездное место
Коммерческие условия
Аренда в год за м2 115 663 ₽
Аренда в месяц 800 000 ₽
Схема сделки прямая аренда
Тип собственника Юридическое лицо

Описание объекта
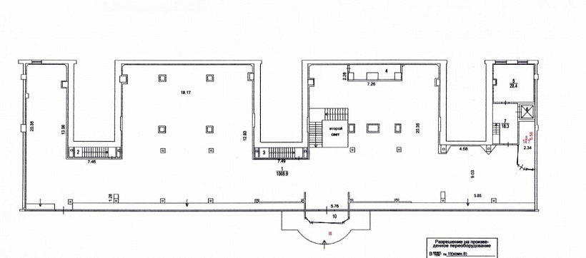
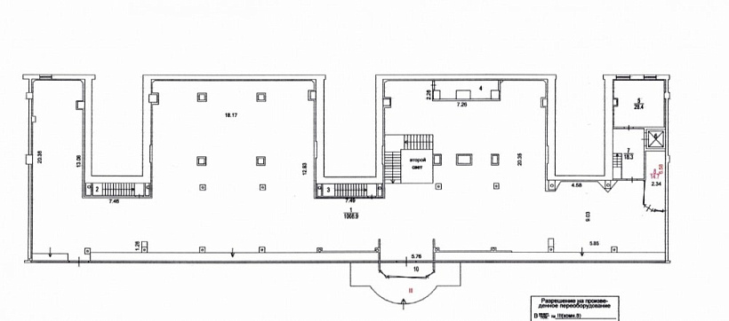
Предлагается в аренду помещение в встроенно-пристроенном здании. 1 этаж, общая площадь 83 (53 + 30 м2), помещение без отделки, высота потолков 4 метров! Помещение находятся в 3-4 минутах пешком от метро Славянский бульвар.

Нужна консультация по подбору торговых площадей для аренды?

Наши специалисты подберут для вас самые выгодные варианты для долгосрочного инвестирования,
помогут в сопровождении и сделки, проверят все юридические вопросы касаемо приобретения недвижимости.

* Нажимая на кнопку «Отправить», Вы даете согласие на обработку персональных данных в соответствии с Политикой конфиденциальности

Похожие объекты

Электрозаводская (1 мин. 🚶)
Москва, Большая Семёновская улица, 17А
Торговый Центр "Март"
Тип: Торговое помещение
Площадь: 89.10 м2
335 000 в месяц
45 118 в год за м2
Позвонить Подробнее
Ленинский проспект (10 мин. 🚶)
Москва, Ленинский проспект, 38
Бизнес-центр «Lunar (Лунар)»
Тип: Торговое помещение
Площадь: 90.40 м2
Мощность:15 кВт
753 333 в месяц
100 000 в год за м2
Позвонить Подробнее

Спец. предложение

Новокузнецкая (5 мин. 🚶)
Москва, Новокузнецкая улица, 30с1
Жилой Дом на Новокузнецкой улице
Тип: Торговое помещение
Площадь: 75.40 м2
Мощность:25 кВт
319 000 в месяц
50 769 в год за м2
Позвонить Подробнее
Сходненская (2 мин. 🚶)
Москва, улица Героев Панфиловцев, 1к3
Жилое здание "улица Героев Панфиловцев, 1к3"
Тип: Торговое помещение
Площадь: 89.30 м2
Мощность:15 кВт
225 000 в месяц
30 235 в год за м2
Позвонить Подробнее
Парк Победы (9 мин. 🚶)
Закрытая продажа #63488
Тип: Торговое помещение
Площадь: 75.30 м2
Мощность:20 кВт
753 000 в месяц
120 000 в год за м2
Позвонить Подробнее
Коломенская (1 мин. 🚶)
Москва, проспект Андропова, 23
ТЦ "Коломенский"
Тип: Торговое помещение
Площадь: 91.10 м2
Мощность:15 кВт
455 500 в месяц
60 000 в год за м2
Позвонить Подробнее
Кунцевская (10 мин. 🚶)
Москва, Рублёвское шоссе, 21
Бизнес-центр "Upside Кунцево"
Тип: Торговое помещение
Площадь: 78.65 м2
Мощность:5 кВт
491 212 в месяц
74 947 в год за м2
Позвонить Подробнее
Электрозаводская (9 мин. 🚶)
Москва, Большая Почтовая улица, 30с1к10
ЖК "Резиденции Архитекторов"
Тип: Торговое помещение
Площадь: 82.00 м2
Мощность:15 кВт
656 000 в месяц
96 000 в год за м2
Позвонить Подробнее
Перово (1 мин. 🚶)
Москва, Зелёный проспект, 19
Торгово-офисный комплекс Зеленый проспект, 19
Тип: Торговое помещение
Площадь: 90.00 м2
Мощность:50 кВт
550 000 в месяц
73 333 в год за м2
Позвонить Подробнее
Красные Ворота (10 мин. 🚶)
Москва, Садовая-Черногрязская улица, 13/3с1
Особняк «Садовая-Черногрязская 13/3 с1»
Тип: Торговое помещение
Площадь: 84.00 м2
252 000 в месяц
36 000 в год за м2
Позвонить Подробнее
Добрынинская (3 мин. 🚶)
Москва, Серпуховская площадь, 36/71с1
Офисное здание «Серпуховская 36/71 с1»
Тип: Торговое помещение
Площадь: 76.93 м2
Мощность:60 кВт
512 867 в месяц
80 000 в год за м2
Позвонить Подробнее
Киевская (7 мин. 🚶)
Москва, Брянская улица, 12
Жилой дом "Брянская 12"
Тип: Торговое помещение
Площадь: 83.70 м2
800 000 в месяц
114 695 в год за м2
Позвонить Подробнее
Ростокино (16 мин. 🚗)
Москва, улица Красная Сосна, 3
ЖК "Настроение"
Тип: Торговое помещение
Площадь: 103.70 м2
Мощность:26 кВт
980 000 в месяц
113 404 в год за м2
Позвонить Подробнее
Проспект Вернадского (10 мин. 🚶)
Москва, проспект Вернадского, 41
Бизнес-центр «Академик»
Тип: Торговое помещение
Площадь: 224.70 м2
2 000 000 в месяц
106 809 в год за м2
Позвонить Подробнее
Проспект Вернадского (10 мин. 🚶)
Москва, проспект Вернадского, 41
Бизнес-центр «Академик»
Тип: Торговое помещение
Площадь: 157.30 м2
1 500 000 в месяц
114 431 в год за м2
Позвонить Подробнее
Парк культуры (10 мин. 🚶)
Москва, Зубовская улица, 7
Авторский дом "Roza Rossa"
Тип: Торговое помещение
Площадь: 285.70 м2
Мощность:58 кВт
2 857 000 в месяц
120 000 в год за м2
Позвонить Подробнее
Фрунзенская (10 мин. 🚶)
Москва, Усачёва улица, 15А
ЖК "САДОВЫЕ КВАРТАЛЫ"
Тип: Торговое помещение
Площадь: 105.60 м2
Мощность:22 кВт
1 100 000 в месяц
125 000 в год за м2
Позвонить Подробнее
Трубная (4 мин. 🚶)
Москва, 1-й Колобовский переулок, 18
Жилое здание "1-й Колобовский переулок, 18"
Тип: Торговое помещение
Площадь: 189.00 м2
Мощность:15 кВт
1 870 000 в месяц
118 730 в год за м2
Позвонить Подробнее
Парк Победы (9 мин. 🚶)
Закрытая продажа #63489
Тип: Торговое помещение
Площадь: 69.90 м2
Мощность:20 кВт
699 000 в месяц
120 000 в год за м2
Позвонить Подробнее
Парк Победы (9 мин. 🚶)
Закрытая продажа #63488
Тип: Торговое помещение
Площадь: 75.30 м2
Мощность:20 кВт
753 000 в месяц
120 000 в год за м2
Позвонить Подробнее
Киевская (7 мин. 🚶)
Москва, Брянская улица, 12
Жилой дом "Брянская 12"
Тип: Торговое помещение
Площадь: 83.70 м2
800 000 в месяц
114 695 в год за м2
Позвонить Подробнее
Киевская (7 мин. 🚶)
Москва, Брянская улица, 12
Жилой дом "Брянская 12"
Тип: Торговое помещение
Площадь: 76.50 м2
700 000 в месяц
109 804 в год за м2
Позвонить Подробнее
Курская (13 мин. 🚶)
Москва, улица Покровка, 16
Торгово-офисный комплекс "Покровка 16"
Тип: Торговое помещение
Площадь: 84.00 м2
Мощность:35 кВт
750 000 в месяц
107 143 в год за м2
Позвонить Подробнее
Пражская (2 мин. 🚶)
Москва, улица Красного Маяка, 2Б
ТЦ "Пражский пассаж"
Тип: Торговое помещение
Площадь: 187.60 м2
Мощность:40 кВт
1 876 000 в месяц
120 000 в год за м2
Позвонить Подробнее